SEDE CARITAS
Scheda Opera
- Comune: Campobasso
- Denominazione: SEDE CARITAS
- Indirizzo: Via Nicola De Luca
- Data: 1998 - 2003
- Tipologia: Edifici per attività assistenziali e spirituali
- Autori principali: Roberto Ianigro
Descrizione
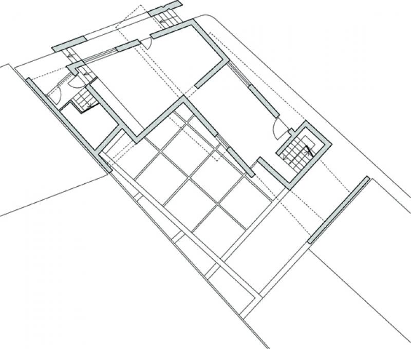
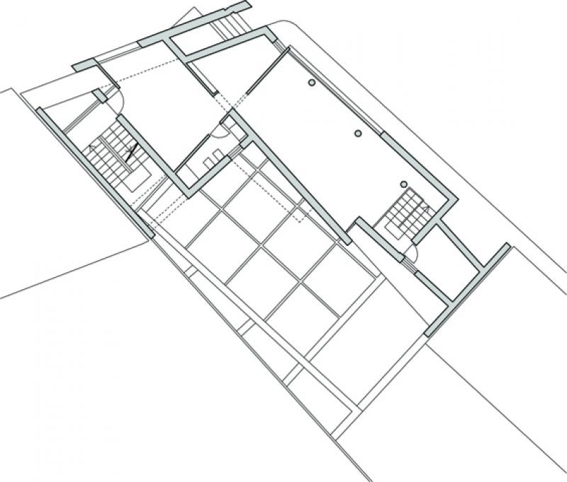
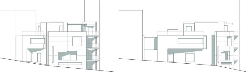
L’area di intervento è un vuoto urbano ubicato nel punto di contatto tra due tessuti edilizi: il primo consolidato dall’espansione dei primi del Novecento, l’altro ordito sull’impianto planimetrico razionalista del piano del 1942, redatto da Luigi Piccinato e Cesare Antonelli. Il progetto registra l’interferenza delle due trame urbane riproponendone i tracciati attraverso le principali direzioni della città (SO-NE e E-O) e la stessa propria configurazione geometrica, con l’intenzione di porsi come un frammento costruito che contenga l’informazione genetica del luogo e, allo stesso tempo, ne renda manifeste le dissonanze metriche e morfologiche. Il processo compositivo si basa su quattro considerazioni fondamentali, cui corrispondono precise operazioni sulla forma. L’edificio rappresenta la terminazione prospettica di un asse di accesso alla città, complementare a quello diretto in senso opposto, il cui fondale è la chiesa di S. Francesco. Questa particolare condizione suggerisce il posizionamento, all’interno della composizione, di un elemento che costituisca un punto di arresto per lo sguardo, ovvero l’isolamento morfologico e materico, sul fronte nord-ovest, di una quinta quadrata lapidea. Quest’ultima scivola nel terreno rivelando il corpo scala, trasparente, a stabilire continuità tra strada e corte. L’intersezione delle due giaciture dell’edificio è risolta attraverso l’estrazione di un frammento piano dalla superficie del setto longitudinale centrale che, sul lato interno enfatizza le proprietà tettoniche dell’intervento. La concatenazione di un nodo plastico costituito da due volumi a L contrapposte costituisce invece l’immagine che caratterizza il fronte nord-est. All'insufficienza della cubatura disponibile, che non consente di instaurare un rapporto volumetrico equilibrato con i fabbricati adiacenti, corrisponde infine la scelta di contrapporre alle due pesanti masse preesistenti due setti. Ne risulta una decompressione visiva ma anche una sorta di sospensione architettonica dell’edificio che sembra “farsi spazio” all'interno della città.
Info
- Progetto: 1998 -
- Esecuzione: 2000 - 2003
- Committente: Caritas
- Proprietà: Proprietà privata
- Destinazione originaria: uffici
- Destinazione attuale: uffici
Autori
- Strutture: pilastri in calcestruzzo armato
- Materiale di facciata: travertino; intonaco
- Coperture: piana in calcestruzzo armato
- Serramenti: alluminio
- Stato Strutture: Buono
- Stato Materiale di facciata: Buono
- Stato Coperture: Buono
- Stato Serramenti: Buono
- Vincolo: Non Vincolata
- Provvedimenti di tutela: Nessuna opzione
- Data Provvedimento:
- Riferimento Normativo:
- Altri Provvedimenti:
- Foglio Catastale: 121
- Particella: 16
Note
-
Bibliografia
| Autore | Anno | Titolo | Edizione | Luogo Edizione | Pagina | Specifica |
|---|---|---|---|---|---|---|
| Pisani Mario | 2003 | edificio per la Caritas in via Crispi, a Campobasso | «L'Arca», n.183, | 89 | Si | |
| Muratore Giorgio | 2004 | Nuova sede Caritas = The new Caritas offices, Campobasso | L'Architettura cronache e storia», n. 580 | 98-103 | Si | |
| Bellotti Leonardo (a cura di) | 2008 | Campobasso nella formazione di una nuova generazione di architetti | Repertorio Variabile02 | Librìa, Melfi | 70-73 | Si |
| Palestini Caterina, Pozzi Carlo (curatori) | 2013 | L'Architettura in Abruzzo e Molise dal 1945 ad oggi selezione delle opere di rilevante interesse storico | Gangemi Editrice | Roma | 272-273 | Si |
Criteri
| 1. L’edificio o l’opera di architettura è citata in almeno tre studi storico-sistematici sull’architettura contemporanea di livello nazionale e/o internazionale. | |
| 3. L’edificio o l’opera di architettura ha una riconosciuta importanza nel panorama dell’architettura nazionale, degli anni nei quali è stata costruita, anche in relazione ai contemporanei sviluppi sia del dibattito, sia della ricerca architettonica nazionale e internazionale, | |
| 4. L’edificio o l’opera di architettura riveste un ruolo significativo nell’ambito dell’evoluzione del tipo edilizio di pertinenza, ne offre un’interpretazione progressiva o sperimenta innovazioni di carattere distributivo e funzionale. | |
| 7. L’edificio o l’opera di architettura si segnala per il particolare valore qualitativo all’interno del contesto urbano in cui è realizzata. |
Crediti Scheda
Enti di riferimento: PaBAAC - Direzione Regionale per il MoliseTitolare della ricerca: Fondazione Architetti Pianificatori e Paesaggisti della Prov. Di Campobasso
Responsabile scientifico: Cinthia Benvenuto
Scheda redatta da
creata il 31/12/2013
ultima modifica il 31/01/2023
Revisori:
Martina Massaro








