CASA RIVALTA
Scheda Opera
- Comune: Ravenna
- Località: Marina Romea
- Denominazione: CASA RIVALTA
- Indirizzo: Viale Italia
- Data: 1957 - 1960
- Tipologia: Abitazioni unifamiliari
- Autori principali: Sandro Monducci
Descrizione
L’abitazione è costruita sul limite tra centro abitato e campagna, in una zona definita da un sistema viario ortogonale orientato secondo la linea della costa, che conserva ampie porzioni di vegetazione appartenenti alla Pineta che un tempo occupava tutta la fascia litorale.
Il prospetto posteriore dell’abitazione si affaccia su quello che era un tempo un campo di tiro a segno e galoppatoio, esteso fino alla laguna retrostante.
L’edificio ancora oggi visibile è quello commissionato da Umberto Rivalta e costruito nel 1959-60 secondo il progetto di Sandro Monducci nel 1958, che prevedeva un’abitazione di un solo piano, sopraelevata dal livello stradale di almeno 50 cm.
Nel primo progetto, invece, la casa era di due piani, dalla pianta compatta e con una galleria vetrata che, affacciandosi sul balcone esterno, illuminava l’abitazione e metteva in comunicazione la zona del soggiorno con quella delle camere da letto, ognuna delle quali era provvista di bagno personale. Il primo piano era raggiungibile dall’esterno, da una scala che immetteva nel balcone, e dall’interno, da un’altra scala posta nella zona giorno.
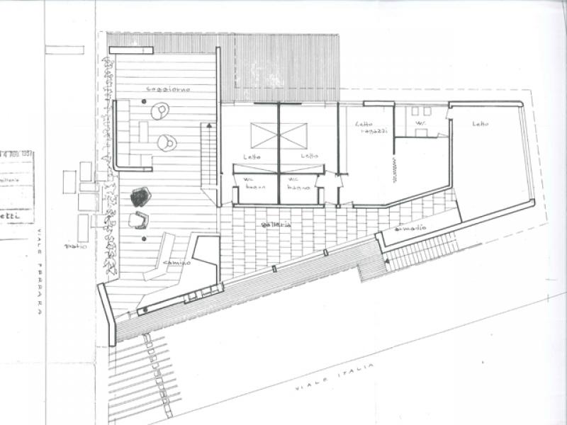
La planimetria attuale dell’edificio mostra come esso segua la forma del lotto d’angolo assecondandone la prevalente assialità longitudinale, da cui aggettano, nelle altre direzioni, i vari volumi delle stanze. L’organizzazione planimetrica prevede la separazione dei locali destinati al personale di servizio, posti sul retro, rispetto a quelli della famiglia disposti sui fronti principali a sud e a est.
La villa presenta quattro camere da letto (padronale, figli, ospiti e servitù), due bagni, una cucina e un soggiorno, con una chiara distinzione tra parte giorno e parte notte. Lungo il disimpegno e nelle camere da letto, l’architetto ricava gli spazi per gli arredi fissi. Sotto, al piano terra, vi sono due locali ai quali si accede dall’esterno, che hanno la funzione di cantina.
Il rapporto con l’ambiente circostante si risolve mediante alcuni accorgimenti tipici dell’architettura organica: i volumi aggettanti delle stanze, l’orizzontalità dei parapetti e della fascia di coronamento in cemento, intonacati di bianco, l’utilizzo del laterizio a vista, la pietra del camino e del muretto di recinzione esterno, riprendendo alcuni elementi presenti in altre opere dell’architetto, in particolare nella casa di Fontanelice.
Si legge il comune tentativo di integrazione tra interno ed esterno, in particolare visibile nella pianta libera che segue l’andamento del terreno e che distribuisce, all’interno, una sequenza di spazi fluidi. Tratti simili s’individuano ancora nell’uso ricorrente di materiali quali, mattoni, pietra ed intonaco e nella cura del dettaglio e degli interni, che evidenziano un evidente gusto artigianale, ispirato alla lezione dell’organicismo wrightiano, visibile anche nella caratterizzazione formale, volumetrica e plastica esterna, derivabile dal movimento centrifugo degli interni.
(Matteo Sintini, Ilaria Cattabriga)
Info
- Progetto: 1957 - 1959
- Esecuzione: 1959 - 1960
- Tipologia Specifica: Villa
- Proprietà: Proprietà privata
- Destinazione originaria: villa
- Destinazione attuale: villa
Autori
| Nome | Cognome | Ruolo | Fase Progetto | Archivio Architetti | Url Profilo | Autore Principale |
|---|---|---|---|---|---|---|
| Asioli | Godo | Impresa esecutrice | Esecuzione | NO | ||
| Sandro | Monducci | Progetto architettonico | Progetto | Visualizza Profilo | https://bbcc.regione.emilia-romagna.it/pater/loadcard.do?id_card=263830&force=1 | SI |
- Strutture: muratura
- Materiale di facciata: laterizi, pietra, intonaco
- Coperture: piana, metallo
- Serramenti: legno
- Stato Strutture: Buono
- Stato Materiale di facciata: Buono
- Stato Coperture: Buono
- Stato Serramenti: Buono
- Vincolo: Non Vincolata
- Provvedimenti di tutela: Nessuna opzione
- Data Provvedimento:
- Riferimento Normativo:
- Altri Provvedimenti:
- Foglio Catastale: -
- Particella: -
Note
Sandro Monducci (Imola 1918) Si laurea a Venezia nel 1950 e successivamente apre un suo studio personale a Bologna. Collabora nel 1959 con Marcello D’Olivo per il progetto del quartiere Ina a Vallenoncello, Pordenone. La sua ricerca personale è unica e non trova riscontro in nessun’altra espressione architettonica. Egli effettua uno studio paziente che si innesta in un processo più ampio di cui vuole conoscere potenzialità e rischi. La sua ricerca verte sugli stati d’animo, sui momenti dissonanti dell’anima, e preferisce il sentimento e l’avventura alle riflessioni intellettuali: i suoi percorsi interiori si riflettono nella struttura degli spazio interno dei suoi edifici.
Bibliografia
| Autore | Anno | Titolo | Edizione | Luogo Edizione | Pagina | Specifica |
|---|---|---|---|---|---|---|
| Giordani Pieluigi | 1960 | Fatiche di provincia: quattro edifici dell'architetto Sandro Monducci | L'Architettura. Cronache e storia n. 52 | 670-675 | Si | |
| Zucconi Guido, Borella Francesco, Luppi Ferruccio, Nicoloso Paolo | 1998 | Marcello D’Olivo Marcello: Architetture e progetti 1947-1991 | Electa | Milano | No | |
| Casciato Maristella, Orlandi Piero (a cura di) | 2005 | Quale e Quanta. Architettura in Emilia Romagna nel secondo Novecento | Clueb | Bologna | No |
Allegati
Criteri
| 7. L’edificio o l’opera di architettura si segnala per il particolare valore qualitativo all’interno del contesto urbano in cui è realizzata. |
Crediti Scheda
Enti di riferimento: PaTitolare della ricerca: Università degli studi di Bologna Dipartimento di Architettura
Responsabile scientifico: Marco Pretelli
Scheda redatta da Matteo Sintini, Ilaria Cattabriga
creata il 31/12/2013
ultima modifica il 24/01/2025
Revisori:
Setti Stefano 2022












