PALAZZINA INAIL DETTA “CASA DELLE STREGHE”
Scheda Opera
- Comune: Roma
- Località: Ostiense
- Denominazione: PALAZZINA INAIL DETTA “CASA DELLE STREGHE”
- Indirizzo: Viale Marco Polo N. 96
- Data: 1952 - 1956
- Tipologia: Abitazioni plurifamiliari
- Autori principali: Mario Ridolfi, Wolfgang Frankl
Descrizione
La Palazzina I.N.A.I.L. detta Casa delle Streghe, viene commissionata come civile abitazione nel 1952 dalla Cooperativa edilizia “Saturnus Tellus” a Mario Ridolfi, Wolfgang Frankl e Domenico Malagricci.
Il tentativo di Ridolfi e Frankl è quello di valorizzare un edificio residenziale collocato negli sfilacciati margini metropolitani qualificandone l'involucro esterno e caratterizzandolo il più possibile. L'edificio sorge in un'area dall'andamento collinare che costeggia la linea ferroviaria lungo Viale Marco Polo. Collocata in un quartiere residenziale delimitato da ampi viali di scorrimento, e caratterizzato da un rapporto equilibrato con gli spazi verdi, conserva una qualità architettonico-edilizia diffusa.
Tuttavia la costruzione emerge nel contesto circostante come esempio di nuova edificazione degli anni '50, nella quale gli autori abbandonano la progettazione per parti per lavorare sulla semplificazione dell’elemento decorativo, attraverso la progettazione di un involucro intonacato che chiude una massa architettonica. L'edificio denuncia infatti tutte le caratteristiche di una “Palazzina d'autore”: attenzione al dettaglio, elevata qualità delle finiture, coerenza stilistica e formale. Ricorrente è la geometria dell’esagono, visibile dal di fuori nel motivo dei parapetti dei balconi.
La cultura architettonica anni Cinquanta tutta dedicata al “manufatto” trova qui un nuovo e diverso equilibrio, nel quale questa attenzione è legata alla realizzazione attraverso l’esperienza “artigiana” fatta di competenze tecniche ed esperienze di cantiere dei due autori. Riguardo a questo edificio, Alessandro Anselmi parla di una scomposizione della massa, poi rinchiusa tridimensionalmente, e loda l'utilizzo della mansarda, di per sé elemento plastico e tridimensionale, e le “mancanze” volumetriche al piano terra, aperture che ne accentuano i caratteri formali.
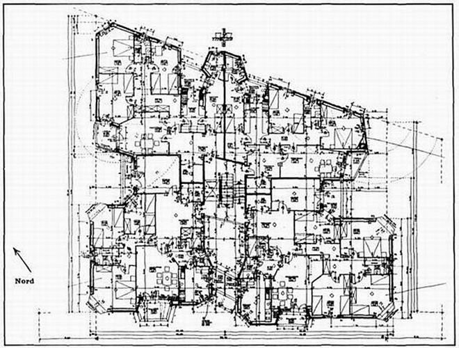
In questa palazzina l'ordine geometrico è complesso e polivalente, mentre il trattamento delle parti si mantiene sostanzialmente omogeneo. Il vano scala, saldandosi con la chiostrina, che a sua volta si apre sull'esterno, tende a spezzare la centralità, configurando quasi uno schema ad U aperto sulla ferrovia parallela al viale. "La necessità di dosare gli alloggi in modo scalare (il lato d'ingresso sul Viale è sopraelevato di 7 metri rispetto al resto della costruzione) per aderire più elasticamente alle esigenze dei cooperatori ha imposto all'edificio una forma planimetrica simile ad un quadrifoglio a lobi di diversa grandezza. La forma a lobo di ogni appartamento ha consentito il mantenimento di una compattezza superficiale che permette di abbreviare i traffici interni e rende possibile una grande flessibilità degli ambienti" (Casabella continuità, 1957).
Ognuno dei quattro appartamenti del piano tipo si organizza intorno ad un proprio centro, in modo da formare, col sovrapporsi regolare dei piani, una torre di sapore medioevale: come commento divertito, questa è posta sull'ingresso come torre di guardia artificiosamente formata dall'isolamento di due vani di servizio ed è surrealisticamente sollevata su un pilastrino centrale. Il carattere giocoso di tutta la composizione, confermato dai membri che coronano le parti di congiunzione tra le torri, tradisce una difficoltà: complicandosi per assorbire tutte le valenze del discorso architettonico, lo schema non stabilisce alcun rapporto di scambio con le fasi della sua costruzione e con il luogo in cui viene costruito, ed il lavoro di dettaglio diventa un ironico commento all'edificio stesso.
Con un apparente paradosso, proprio questa costruzione, così articolata e dallo schema quasi antropomorfico, segna il limite di questa fase del lavoro di Ridolfi. Il policentrismo, come un volume stereometrico, diventa talmente forte da riassorbire tutte le differenze; le variazioni dell'atrio e del piano attico, pur notevolmente caratterizzate, non riescono ad entrare in dialettica con l'impianto e ad aprirlo all'inserimento di valenze. Dopo questa esperienza il lavoro di Ridolfi torna a contrapposizioni più semplici, perdendo un po' il fascino narrativo di questa soluzioni degli anni '50, ma acquistando incisività e capacità di esprimere valori tipologici.
Nel 1956, a lavori appena ultimati, all'ultimo piano della palazzina si trasferisce lo studio stesso di Ridolfi: si tratta della sua ultima tappa romana prima del trasferimento alle Marmore, dove vive e lavora fino al 1984.
Info
- Progetto: 1952 - 1952
- Esecuzione: 1953 - 1956
- Committente: Cooperativa edilizia “Saturnus Tellus”
- Proprietà: Proprietà privata
- Destinazione attuale: abitazione
Autori
| Nome | Cognome | Ruolo | Fase Progetto | Archivio Architetti | Url Profilo | Autore Principale |
|---|---|---|---|---|---|---|
| Wolfgang | Frankl | Progetto architettonico | Progetto | Visualizza Profilo | https://siusa.archivi.beniculturali.it/cgi-bin/siusa/pagina.pl?TipoPag=prodpersona&Chiave=40722 | SI |
| Mario | Ridolfi | Progetto architettonico | Progetto | Visualizza Profilo | https://siusa.archivi.beniculturali.it/cgi-bin/siusa/pagina.pl?TipoPag=prodpersona&Chiave=32832 | SI |
| Impresa | Zaccardi | Impresa esecutrice | Esecuzione | NO |
- Strutture: cemento armato
- Materiale di facciata: intonaco
- Coperture: piana
- Stato Strutture: Buono
- Stato Materiale di facciata: Buono
- Stato Coperture: Buono
- Vincolo: Non Vincolata
- Provvedimenti di tutela: Nessuna opzione
- Data Provvedimento:
- Riferimento Normativo:
- Altri Provvedimenti:
- Foglio Catastale: -
- Particella: -
Note
L’intera struttura è costituita da: - Piano cantine: 5 appartamenti. - Piano seminterrato: 4 appartamenti. - Piano terra: 4 appartamenti. - Primo piano: 2 appartamenti. - Secondo piano: 6 appartamenti. - Terzo piano: 6 appartamenti. - Attico: 3 appartamenti e ufficio. Destinazioni presenti all'interno dell'edificio: - 3 locali destinati ad attività commerciale lungo il fronte di Viale Marco Polo al piano terreno - 1 locale utilizzabile come stenditoio coperto al piano servizi - 17 locali utilizzabili come autorimesse, con accesso a mezzo passo carrabile, 3 dei quali siti al primo piano cantine e gli altri 14 al secondo piano cantine - 2 locali utilizzabili come ripostigli al piano terreno - 31 locali utilizzabili come cantine al 2° piano cantine
Bibliografia
| Autore | Anno | Titolo | Edizione | Luogo Edizione | Pagina | Specifica |
|---|---|---|---|---|---|---|
| Ridolfi Mario | 1957 | Palazzina in via Marco Polo e trasformazione di un villino a Roma | Casabella n. 215 | 7-13 | Si | |
| ANIAI - Associazione Nazionale Ingegneri e Architetti Italiani | 1965 | Guida dell'architettura contemporanea in Roma | Tekni/con | Roma | Scheda I6 | Si |
| 1974 | Intervista a Mario Ridolfi | Controspazio n. 3 | 2; 97-100 | No | ||
| De Guttry Irene | 1978 | Guida di Roma moderna dal 1870 ad oggi | De Luca | Roma | 86 | No |
| Cellini Francesco, D'Amato Claudio, Valeriani Enrico (a cura di) | 1979 | Le Architetture di Ridolfi e Frankl | De Luca | Roma | 63 | No |
| Berni Lorenzo | 1983 | Effemeridi di architettura | Kappa | Roma | No | |
| Rossi Piero Ostilio | 1984 | Roma. Guida all'architettura moderna 1909-1984 (I ed.) | Laterza | Roma-Bari | Scheda n. 89 | Si |
| Brunetti Fabrizio | 1985 | Mario Ridolfi | Alinea | Firenze | 86-88 | No |
| Stocchetti Alfonso | 1985 | Spazi per la vita degli uomini. Architetture e parametri | Alinea | Firenze | No | |
| Rossi Piero Ostilio | 1991 | Roma. Guida all'architettura moderna 1909-1991 (II ed.) | Laterza | Roma-Bari | Scheda n. 88 | Si |
| Sgarbi Vittorio | 1991 | Dizionario dei monumenti italiani e dei loro autori. Roma. Dal Rinascimento ai giorni nostri | Bompiani | Milano | 222 | No |
| Bellini Federico | 1993 | Mario Ridolfi | Laterza | Roma-Bari | 76 | No |
| Andriani Carmen | 1996 | Palazzine romane di Mario Ridolfi: dalla Rea alla Zaccardi, alterazione distorsione e corruzione della figura razionalista | Rassegna di architettura e urbanistica n. 89-90 | 122-129 | No | |
| Palmieri Valerio | 1997 | Mario Ridolfi. Guida all'architettura | Arsenale | Venezia | 82-83; Scheda n. 36 | Si |
| Rossi Piero Ostilio | 2000 | Roma. Guida all'architettura moderna 1909-2000 (III ed.) | Laterza | Roma-Bari | Scheda n. 88 | Si |
| De Guttry Irene | 2001 | Guida di Roma moderna dal 1870 ad oggi | De Luca | Roma | 84 | No |
| Cellini Francesco, D'Amato Claudio | 2003 | Mario Ridolfi all'Accademia di S. Luca | Graffiti | Roma | 25; 150-156; 489 | Si |
| Cellini Francesco, D'Amato Claudio | 2005 | Le architetture di Ridolfi e Frankl | Electa | Milano | 56-57; 207-208 | Si |
| 2005 | L'abitare borghese | Controspazio n. 114-115 | 92-135 | No | ||
| Monti Guglielmo | 2005 | Le palazzine romane | Controspazio n. 111-112 | 122-133 | No | |
| Santuccio Salvatore | 2009 | La palazzina e gli anni Cinquanta. Tra rinascita borghese e disegno di una nuova architettura, in Chiavoni Emanuela, Paolini Priscilla (a cura di), Metodi e tecniche integrate di rilevamento per la realizzazione di modelli virtuali dell'architettura della città | Gangemi | Roma | 329-330 | No |
| Rossi Piero Ostilio | 2012 | Roma. Guida all'architettura moderna 1909-2011 (IV ed.) | Laterza | Roma-Bari | Scheda n. 88 | Si |
| Passeri Alfredo | 2013 | Palazzine romane. Valutazione e fattibilità del progetto di conservazione | Aracne | Roma | 884-895 | Si |
| D'Amato Claudio | 2015 | Studiare l'architettura. Un vademecum e un dialogo | Gangemi | Roma | 89 | No |
Fonti Archivistiche
| Titolo | Autore | Ente | Descrizione | Conservazione |
|---|---|---|---|---|
| Fondo Ridolfi Frankl Malagricci | Mario Ridolfi, Wolfgang Frankl | Accademia Nazionale di San Luca, Roma | Palazzina INAIL, già Cooperativa edilizia "Saturnus Tellus", detta "Casa delle streghe" |
Criteri
| 1. L’edificio o l’opera di architettura è citata in almeno tre studi storico-sistematici sull’architettura contemporanea di livello nazionale e/o internazionale. | |
| 3. L’edificio o l’opera di architettura ha una riconosciuta importanza nel panorama dell’architettura nazionale, degli anni nei quali è stata costruita, anche in relazione ai contemporanei sviluppi sia del dibattito, sia della ricerca architettonica nazionale e internazionale, | |
| 6. L’edificio o l’opera di architettura è stata progettata da una figura di rilievo nel panorama dell’architettura nazionale e/o internazionale. |
Sitografia ed altri contenuti online
| Titolo | Url |
|---|---|
| Palazzina INAIL, già Cooperativa edilizia "Saturnus Tellus", detta "Casa delle streghe" | Visualizza |
| Fondo Ridolfi-Frankl-Malagricci | Visualizza |
| SAN Archivi degli Architetti - Mario Ridolfi | Visualizza |
| Dizionario biografico degli Italiani - Mario Ridolfi | Visualizza |
| Enciclopedia Treccani - Mario Ridolfi | Visualizza |
Crediti Scheda
Enti di riferimento: PaBAAC - Direzione Regionale per il LazioTitolare della ricerca: Università degli studi di Roma "Sapienza"
Responsabile scientifico: Piero Ostilio Rossi
Scheda redatta da
creata il 31/12/2012
ultima modifica il 27/02/2025
Revisori:
Alberto Coppo 2021



