EDIFICIO FUNERARIO DI FAMIGLIA ARDITO
Scheda Opera
- Comune: Casamassima
- Località: Cimitero di Casamassima
- Denominazione: EDIFICIO FUNERARIO DI FAMIGLIA ARDITO
- Indirizzo: SP 75 Casamassima-Acquaviva
- Data: 1996 - 2000
- Tipologia: Cimiteri
- Autori principali: Vitangelo Ardito
Descrizione
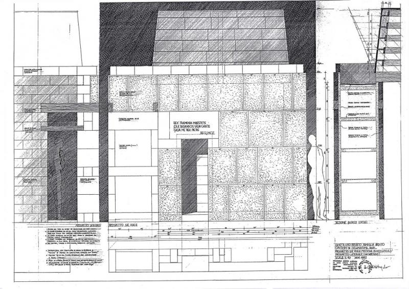
Il cimitero di Casamassima, si compone a livello planimetrico di una parte storica costituita da un quadriportico e da un’ampliamento di recente costruzione, nel quale si inserisce l’edificio funebre della famiglia Ardito. Quest’ultimo nasce dall’esigenza del padre dell’architetto di costruire un luogo per la memoria dei propri famigliari. Questo aspetto ha fortemente influenzato l’architetto nella fase progettuale, portandolo a ideare una copertura in legno, proprio in memoria di suo padre, noto falegname di Casamassima.
Lo spazio è costituito da una stanza di forma cubica (metri 2,80 x 2,80 x 2,80), il cui paramento murario interno è costituito da conci (20x40x15 cm) di pietra di Apricena, mentre quello esterno, pur essendo dello stesso materiale, è realizzato con grandi blocchi di pietra privi di finitura, che presentano una texture naturale. Questi blocchi sono stati realizzati con un procedimento piuttosto primitivo ma efficace che consiste nel percuotere con un martello l’asse del masso di spessore doppio rispetto a quello di progetto, poggiante su un tondino metallico. La connotazione frammentaria della cappella, permette di realizzare una copertura in legno, di natura diversa rispetto alla parte inferiore. Visivamente la copertura risulta essere leggera, e questo carattere di leggerezza è ottenuto costruttivamente svuotando l’appoggio, ovvero svuotando l’angolo. Tuttavia, una struttura del genere faceva lavorare a sbalzo le doghe delle pareti che nel tempo avrebbero sicuramente subito un’inflessione, per ovviare a tale eventualità, l’architetto ha sapientemente inserito un tirante che impedisce la deformazione e mantiene costante la distanza tra le doghe. Infine sulle doghe sono state poggiate delle lastre in pietra di Locorotondo, una pietra calcarenitica che tende ad ossidarsi sotto l’azione degli agenti atmosferici, cambiando il suo colore. Da notare inoltre è la posizione del fronte e quindi dell’ingresso della chiesa, situati lateralmente rispetto alla strada, dalla quale invece si vede una porta chiusa. E’ facile quindi cogliere il riferimento con la cappella Ardito, il cui ingresso sul fronte principale è murato e l’accesso può pertanto avvenire solo dall’ingresso laterale.
Info
- Progetto: 1996 - 1996
- Esecuzione: 2000 - 2000
- Tipologia Specifica: Edificio funerario
- Committente: Famiglia Ardito
- Proprietà: Proprietà privata
- Destinazione originaria: Edificio funerario
- Destinazione attuale: Edificio funerario
Autori
- Strutture: pietra di Apricena
- Materiale di facciata: pietra di Apricena
- Coperture: legno e lastre in pietra di Locorotondo
- Stato Strutture: Buono
- Stato Materiale di facciata: Buono
- Stato Coperture: Buono
- Vincolo: Non Vincolata
- Provvedimenti di tutela: Nessuna opzione
- Data Provvedimento:
- Riferimento Normativo:
- Altri Provvedimenti:
- Foglio Catastale: 40
- Particella: 623
Note
-
Bibliografia
| Autore | Anno | Titolo | Edizione | Luogo Edizione | Pagina | Specifica |
|---|---|---|---|---|---|---|
| Ardito Vitangelo | 2005 | "Edificio funerario di famiglia, cimitero di Adelfia-Montrone, Bari. Edicola funeraria, cimitero di Casamassima, Bari" in Strappa (a cura di), "Edilizia per il culto. vol. 1" | UTET | Torino | 383-391 | Si |
| Leoni Giovanni | 2011 | Sepolcri di famiglia. Edificio funerario di famiglia, Casamassima, Bari. Vitangelo Ardito | Area n. 56 | Milano | 110-119 | Si |
Criteri
| 4. L’edificio o l’opera di architettura riveste un ruolo significativo nell’ambito dell’evoluzione del tipo edilizio di pertinenza, ne offre un’interpretazione progressiva o sperimenta innovazioni di carattere distributivo e funzionale. | |
| 5. L’edificio o l’opera di architettura introduce e sperimenta significative innovazioni nell’uso dei materiali o nell’applicazione delle tecnologie costruttive. | |
| 6. L’edificio o l’opera di architettura è stata progettata da una figura di rilievo nel panorama dell’architettura nazionale e/o internazionale. |
Crediti Scheda
Enti di riferimento: PaBAAC - Direzione Regionale per la PugliaTitolare della ricerca: Politecnico di Bari - DICATECh
Responsabile scientifico: Francesco Moschini
Scheda redatta da
creata il 31/12/2011
ultima modifica il 31/01/2023
Revisori:
Battaglia Laura 2022


