CASA PETRINI-VILLANI
Scheda Opera
- Comune: Polignano a Mare
- Denominazione: CASA PETRINI-VILLANI
- Indirizzo: Via Fattoi, N. 52
- Data: 2007 - 2011
- Tipologia: Interventi di recupero e trasformazione
- Autori principali: Antonella Mari, Matteo Lorusso
Descrizione
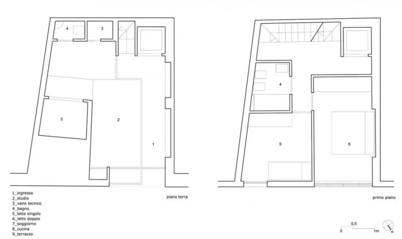
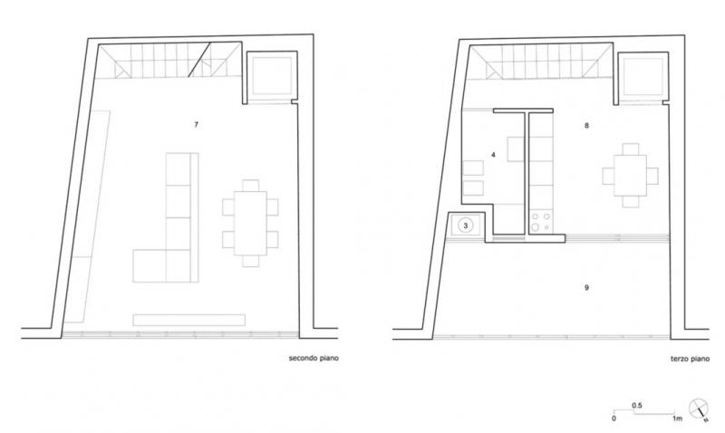
Si tratta di un intervento di ampliamento di una preesistenza costituita da un volume basso in muratura di tufo dotato di un unico prospetto su via Fattoi e confinante sui restanti tre lati con edifici di altra proprietà.
L’edificio, era costituito da tre piccoli ambienti e da un vano scala che conduceva al lastrico solare. La facciata, oltre ai due vani di ingresso a livello strada presentava due sole aperture di piccole dimensioni. Le caratteristiche distributive e morfologiche dell’immobile, insieme alla condizione precaria delle strutture ed alla necessità di sopraelevare, hanno reso opportuno un intervento di ristrutturazione edilizia consistente nella demolizione di una parte delle strutture interne esistenti, nello spostamento della scala e nella realizzazione di nuovi solai in latero-cemento. Non sono state, invece, apportate modifiche sostanziali al prospetto su strada per la parte a piano terra, a meno del ridisegno del vano di ingresso.
Il progetto si è basato sulla scelta di evidenziare l’intervento di ampliamento rispetto alla preesistenza attraverso il contrasto tra il volume in muratura intonacata al piano terra, reso formalmente autonomo rispetto alla parte nuova dell’edificio, e la nuova facciata, orientata a nord, si caratterizza per l’utilizzo di una doppia pelle: la prima, interna, consistente in ampie aperture vetrate; la seconda, esterna, costituita da un sistema di pannelli in mattonelle di legno su telai metallici, fissi ed apribili, aventi funzione di schermatura e protezione. Essi sono caratterizzati dall’alternanza casuale di pieni e vuoti, ottenuta dall’ingrandimento dei pixel di un’immagine digitale, e realizzati montando su telai metallici piastrelle in legno di dimensioni 15×15 cm.
Sebbene l’orientamento a nord del prospetto e la presenza del sistema schermante riducano il rischio di surriscaldamento nei mesi estivi, per ovviare al problema della dispersione del calore, sono stati installati infissi a taglio termico con vetri camera a bassa trasmittanza. Rispetto al filo di facciata i nuovi piani sono lievemente arretrati. Ai fini del risparmio energetico, l’impianto termico è stato alimentato da una caldaia a condensazione collegata ad un pannello solare.
Info
- Progetto: 2007 -
- Esecuzione: 2008 - 2011
- Tipologia Specifica: Abitazione unifamiliare
- Committente: Monica Villani
- Proprietà: Proprietà privata
- Destinazione originaria: Edificio residenziale
- Destinazione attuale: Edificio residenziale
Autori
| Nome | Cognome | Ruolo | Fase Progetto | Archivio Architetti | Url Profilo | Autore Principale |
|---|---|---|---|---|---|---|
| Wanessa | Bruno | Collaboratore | Progetto | NO | ||
| Antonio | Lonuzzo | Progetto strutturale | Progetto | NO | ||
| Matteo | Lorusso | Progetto architettonico | Progetto | SI | ||
| Antonella | Mari | Progetto architettonico | Progetto | Visualizza Profilo | https://www.antonellamari.com/about-us/ | SI |
- Strutture: Pietra; cemento armato
- Materiale di facciata: pannelli in mattonelle di legno; telai metallici
- Coperture: piana in laterocemento
- Stato Strutture: Ottimo
- Stato Materiale di facciata: Ottimo
- Stato Coperture: Ottimo
- Vincolo: Non Vincolata
- Provvedimenti di tutela: Nessuna opzione
- Data Provvedimento:
- Riferimento Normativo:
- Altri Provvedimenti:
- Foglio Catastale: -
- Particella: -
Note
-
Bibliografia
| Autore | Anno | Titolo | Edizione | Luogo Edizione | Pagina | Specifica |
|---|---|---|---|---|---|---|
| Cera Michele (a cura di) | 2012 | Premio Apulia 2011, Undici progetti di architettura realizzati in Puglia | Libria | Melfi | 77-83 | Si |
Criteri
| 5. L’edificio o l’opera di architettura introduce e sperimenta significative innovazioni nell’uso dei materiali o nell’applicazione delle tecnologie costruttive. |
Crediti Scheda
Enti di riferimento: PaBAAC - Direzione Regionale per la PugliaTitolare della ricerca: Politecnico di Bari - DICATECh
Responsabile scientifico: Francesco Moschini
Scheda redatta da
creata il 31/12/2011
ultima modifica il 05/04/2024
Revisori:
Battaglia Laura 2022



