CASA BIANCA
Scheda Opera
- Comune: Orsara di Puglia
- Denominazione: CASA BIANCA
- Indirizzo: SP 123
- Data: 2005 - 2010
- Tipologia: Abitazioni unifamiliari
- Autori principali: Raimondo Guidacci
Descrizione
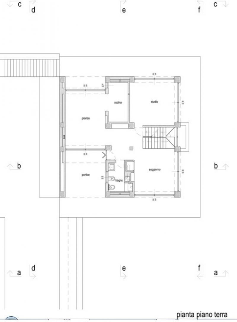
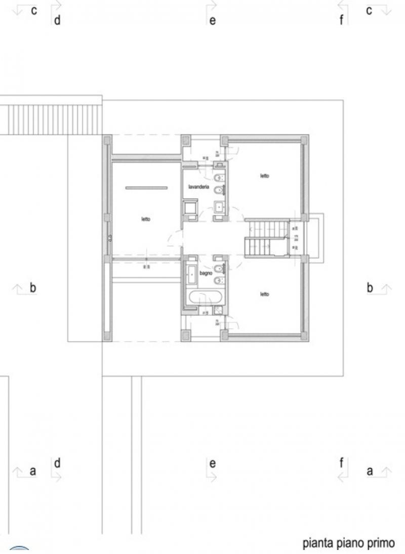
Si tratta di una piccola casa unifamiliare progettata dall’architetto Raimondo Guidacci per suo fratello e la sua famiglia ad Orsara di Puglia. Il progetto è frutto di un intenso rapporto di collaborazione tra committente e progettista (o più correttamente di lunghe lotte e discussioni tra fratelli). Si tratta di un volume molto semplice: un cubo bianco di dieci metri di lato, scavato nel suo volume iniziale; squadrato, geometrico, apparentemente astratto, ma in realtà simile a tante architetture del paesaggio circostante. Un volume semplice, elementare, in contrapposizione alle complesse ed articolate case circostanti. La casa, raggiungibile attraverso una lunga rampa pedonale, poggia su di un alto basamento rivestito in pietra di Trani. Una loggia a tutta altezza precede l’ingresso all’abitazione, il cui piano terra si apre, attraverso grosse vetrate scorrevoli, sul giardino circostante. Il primo piano, molto più chiuso e compatto, ospita le camere da letto. Il progetto cerca di reinterpretare, in chiave moderna, alcuni elementi tipici dell’architettura locale: come il muro in pietra a secco della campagna barese, o le candide case bianche finite a calce, di molti centri storici pugliesi.
Info
- Progetto: 2005 - 2009
- Esecuzione: 2009 - 2010
- Committente: Alfredo Guidacci
- Proprietà: Proprietà privata
- Destinazione originaria: Edificio residenziale
- Destinazione attuale: Edificio residenziale
Autori
| Nome | Cognome | Ruolo | Fase Progetto | Archivio Architetti | Url Profilo | Autore Principale |
|---|---|---|---|---|---|---|
| Raimondo | Guidacci | Progetto architettonico | Progetto | Visualizza Profilo | http://raimondoguidacci.it/raimondo_guidacci_architetto/home.html | SI |
- Strutture: cemento armato
- Materiale di facciata: intonaco
- Coperture: piane
- Serramenti: alluminio
- Stato Strutture: Ottimo
- Stato Materiale di facciata: Ottimo
- Stato Coperture: Ottimo
- Stato Serramenti: Ottimo
- Vincolo: Non Vincolata
- Provvedimenti di tutela: Nessuna opzione
- Data Provvedimento:
- Riferimento Normativo:
- Altri Provvedimenti:
- Foglio Catastale: 10
- Particella: 303
Note
-
Bibliografia
| Autore | Anno | Titolo | Edizione | Luogo Edizione | Pagina | Specifica |
|---|---|---|---|---|---|---|
| Prestinenza Puglisi Luigi | 2010 | Raimondo Guidacci | The plan: architecture & technology in detail n. 42 | 21-26 | No |
Criteri
| 5. L’edificio o l’opera di architettura introduce e sperimenta significative innovazioni nell’uso dei materiali o nell’applicazione delle tecnologie costruttive. |
Sitografia ed altri contenuti online
| Titolo | Url |
|---|---|
| Osservatorio di Pietra | Visualizza |
| Archilovers | Visualizza |
| Divisare | Visualizza |
Crediti Scheda
Enti di riferimento: PaBAAC - Direzione Regionale per la PugliaTitolare della ricerca: Politecnico di Bari - DICATECh
Responsabile scientifico: Francesco Moschini
Scheda redatta da
creata il 31/12/2011
ultima modifica il 23/04/2024
Revisori:
Battaglia Laura 2021





