CIMITERO DI PRÉ-SAINT-DIDIER
Scheda Opera
- Comune: Pré-Saint-Didier
- Denominazione: CIMITERO DI PRÉ-SAINT-DIDIER
- Indirizzo: Avenue Dent du Géant N. 1
- Data: 1973 - 1984
- Tipologia: Cimiteri
- Autori principali: Augusto Romano
Descrizione
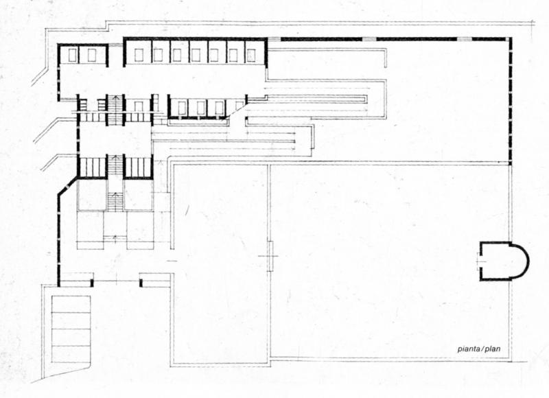
L’ampliamento del cimitero di Pré-Saint-Didier si presenta come un progetto estremamente misurato che intreccia architettura e suolo, in cui l’intervento sul sito limita al minimo i movimenti di terra e le costruzioni fuoriterra per realizzare un vero e proprio paesaggio terrazzato. L’analogia con i terrazzamenti delle vallate alpine è evidente.
Questo rimando metaforico è un dispositivo progettuale che ricorre in molte realizzazioni alpine della scuola piemontese ed in particolar modo nei progetti di Gabetti & Isola. Si pensi ad esempio a quello per un complesso turistico per Pila mai realizzato (1975) o ancora a quello per il residence Concaneve a Sestrière dove gli edifici sono concepiti come oggetti tettonici che assecondano la morfologia del paesaggio integrandosi con il pendio.
L’intenzione del progettista è denunciata in occasione di una pubblicazione del suo lavoro: «volevo realizzare un cimitero dove le tombe fossero nascoste, non visibili dall’esterno, ma raccolte e visibili lungo un itinerario interno realizzato con ambienti coperti ed a cielo libero».
Si è venuto così a creare un ambiente raccolto, fatto di collegamenti coperti che permettono di salire lungo la massima pendenza e di passaggi distributivi che seguono le curve di livello consentendo l’accesso alle tombe.
L’uso dei setti murari che fanno da contenimento del terreno, il sistema distributivo e le coperture metalliche che segnano i percorsi costituiscono i punti di forza del progetto che presenta diverse analogie anche con quello per il tribunale di Alba di Gabetti & Isola (1987).
Per quanto riguarda la scelta dei materiali è stato fatto ricorso agli elementi tipici della tradizione costruttiva montana ovvero pietra e legno.
In particolare, la pietra ha, secondo Romano, una funzione mediatrice. Da un lato funge da cerniera tra il paesaggio e l’architettura e dall’altro fa simbolicamente da collegamento tra il sotto e il sopra, tra il mondo dei viventi e quello dei trapassati.
Una prima versione del progetto è stata ultimata nel 1973 ma la sua realizzazione, definita “riduttiva” da Romano in una lettera indirizzata a Bruno Zevi, avverrà solo nel 1984.
Info
- Progetto: 1973 -
- Esecuzione: - 1984
- Tipologia Specifica: Cimitero
- Committente: Comune di Pré-Saint-Didier
- Proprietà: Proprietà pubblica
- Destinazione originaria: cimitero
- Destinazione attuale: cimitero
Autori
- Strutture: Muratura in pietra e in cemento armato
- Materiale di facciata: Pietra a vista, legno
- Coperture: Capriate in legno e metallo, copertura in lamiera
- Serramenti: Metallo
- Stato Strutture: Buono
- Stato Materiale di facciata: Buono
- Stato Coperture: Buono
- Stato Serramenti: Buono
- Vincolo: Non Vincolata
- Provvedimenti di tutela: Nessuna opzione
- Data Provvedimento:
- Riferimento Normativo:
- Altri Provvedimenti:
- Foglio Catastale: 10
- Particella: F
Note
-
Bibliografia
| Autore | Anno | Titolo | Edizione | Luogo Edizione | Pagina | Specifica |
|---|---|---|---|---|---|---|
| L'Architettura n. 473 | 166-169 | No | ||||
| Nebbia Giuseppe | 2002 | Architettura Moderna in Valle d’Aosta. Il secondo Novecento | Musumeci Editore | Quart (AO) | 140 | No |
| Regis Daniele | 2011 | Architettura paesaggio arte per il cimitero di Pré-Saint-Didier | ArchAlp n. 0 | Torino | No | |
| De Rossi Antonio, Dini Roberto | 2012 | Architettura alpina contemporanea | Priuli & Verlucca | Scarmagno (TO) | 156 | No |
| Regis Daniele, Battaglia Lucetta | 2013 | Augusto Romano architetto | Celid | Torino | No |
Criteri
| 1. L’edificio o l’opera di architettura è citata in almeno tre studi storico-sistematici sull’architettura contemporanea di livello nazionale e/o internazionale. | |
| 2. L’edificio o l’opera di architettura è illustrata in almeno due riviste di architettura di livello nazionale e/o internazionale. | |
| 4. L’edificio o l’opera di architettura riveste un ruolo significativo nell’ambito dell’evoluzione del tipo edilizio di pertinenza, ne offre un’interpretazione progressiva o sperimenta innovazioni di carattere distributivo e funzionale. | |
| 5. L’edificio o l’opera di architettura introduce e sperimenta significative innovazioni nell’uso dei materiali o nell’applicazione delle tecnologie costruttive. | |
| 6. L’edificio o l’opera di architettura è stata progettata da una figura di rilievo nel panorama dell’architettura nazionale e/o internazionale. | |
| 7. L’edificio o l’opera di architettura si segnala per il particolare valore qualitativo all’interno del contesto urbano in cui è realizzata. |
Crediti Scheda
Enti di riferimento: DGAAP - Regione Autonoma Valle D'AostaTitolare della ricerca: Fondazione Courmayeur Mont Blanc
Responsabile scientifico: Roberto Dini, Giuseppe Nebbia
Scheda redatta da Roberto Dini
creata il 31/12/2014
ultima modifica il 29/01/2025
Revisori:
Mezzino Davide 2022







