CENTRO SOCIALE PARROCCHIALE
Scheda Opera
- Comune: Larino
- Denominazione: CENTRO SOCIALE PARROCCHIALE
- Indirizzo: Largo del Pretorio, N. 1
- Data: 2006 - 2008
- Tipologia: Edifici per attività assistenziali e spirituali
- Autori principali: Leonardo Bellotti, Alfonso Scardera
Descrizione
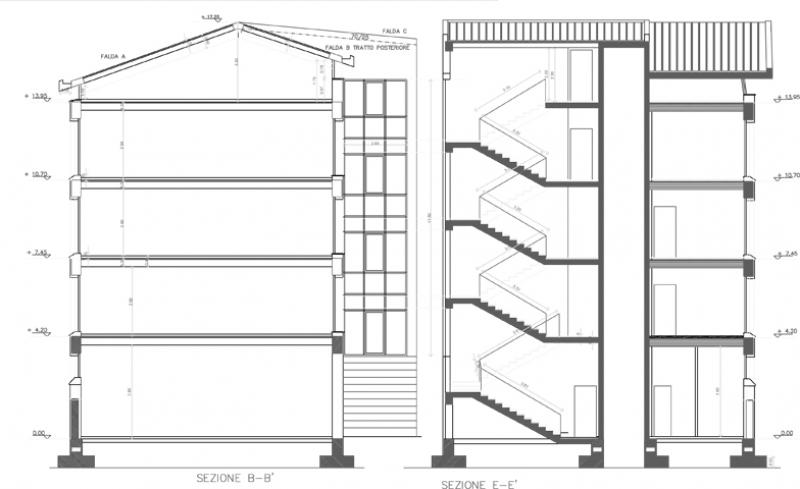
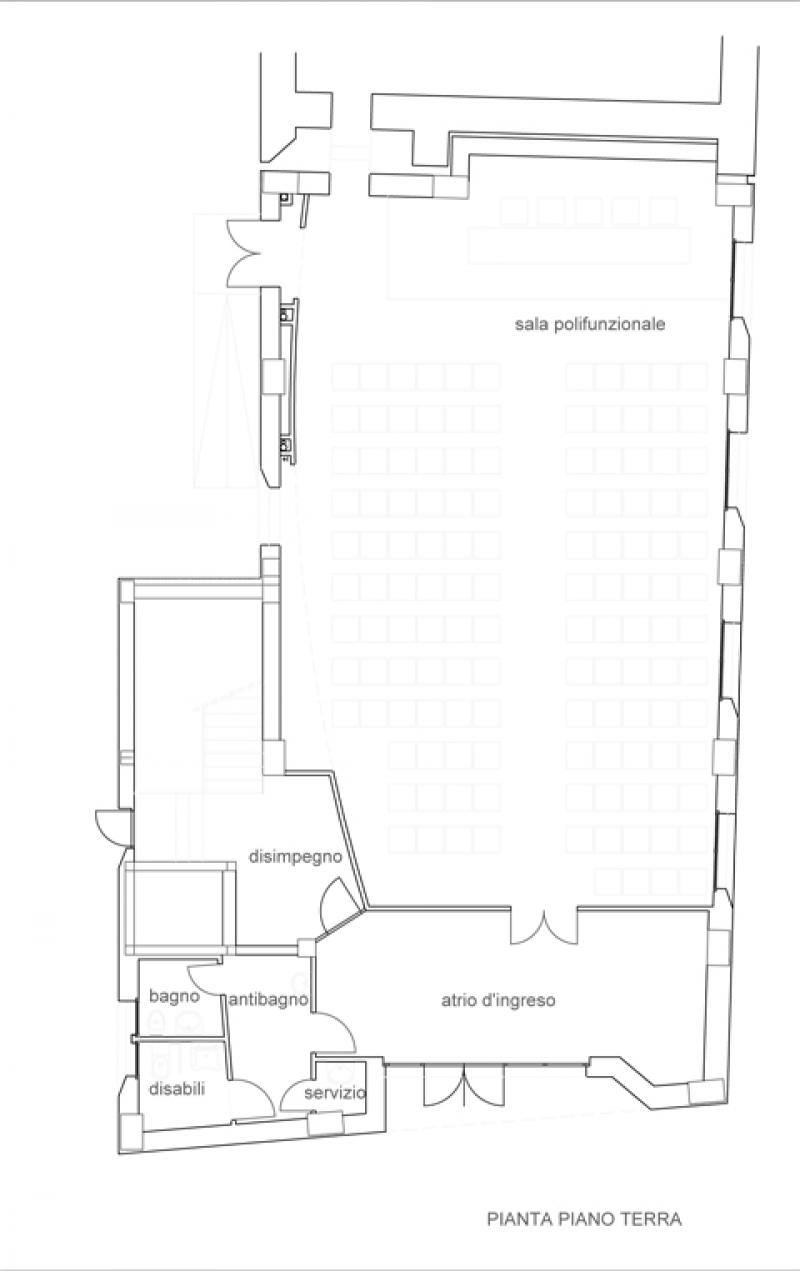
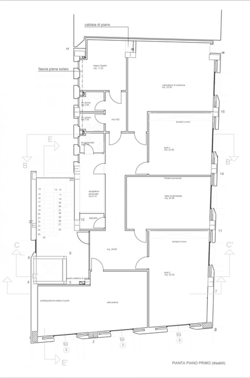
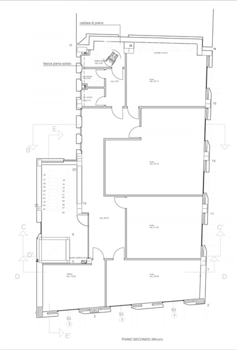
L'edificio nasce, in applicazione del DPR n. 380 del 6.6.01 di incentivazione alla sostituzione edilizia, come ricostruzione di un preesistente fabbricato colpito dal sisma del 2002 di cui recupera la presenza urbana con poche ma significative varianti che giustificano, pur nella continuità storica, la piena appartenenza al contemporaneo. Il progetto recupera il rapporto tra pieni e vuoti e riprende il disegno delle strombature dalla piccola chiesa posta a monte. La copertura è staccata dall'edificio attraverso un' asola vetrata che corre lungo il perimetro, reinterpretazione concettuale del cornicione, quale elemento di mediazione tra la parete e la copertura stessa. Allo stesso modo una cesura verticale, data da un arretramento della parete, segna l'attacco con l'edificio contiguo. La struttura in calcestruzzo armato in opera presenta luci fino a mt 10,50 tali da ottenere ampi spazi liberi.
Info
- Progetto: 2006 - 2006
- Esecuzione: 2006 - 2008
- Proprietà: Proprietà privata
- Destinazione originaria: centro sociale
- Destinazione attuale: centro sociale
Autori
- Strutture: calcestruzzo armato
- Materiale di facciata: intonaco
- Coperture: a falde
- Serramenti: alluminio anodizzato
- Stato Strutture: Ottimo
- Stato Materiale di facciata: Ottimo
- Stato Coperture: Ottimo
- Stato Serramenti: Ottimo
- Vincolo: Non Vincolata
- Provvedimenti di tutela: Nessuna opzione
- Data Provvedimento:
- Riferimento Normativo: L.R. 24/1989
- Altri Provvedimenti: P.T.P.A.A.V. n. 2
- Foglio Catastale: 77
- Particella: 259
Note
Dati dimensionali: - sup. complessiva mq 1419,30 - volume complessivo mc 4428,22
Allegati
Criteri
| 4. L’edificio o l’opera di architettura riveste un ruolo significativo nell’ambito dell’evoluzione del tipo edilizio di pertinenza, ne offre un’interpretazione progressiva o sperimenta innovazioni di carattere distributivo e funzionale. | |
| 7. L’edificio o l’opera di architettura si segnala per il particolare valore qualitativo all’interno del contesto urbano in cui è realizzata. |
Crediti Scheda
Enti di riferimento: PaBAAC - Direzione Regionale per il MoliseTitolare della ricerca: Fondazione Architetti Pianificatori e Paesaggisti della Prov. Di Campobasso
Responsabile scientifico: Cinthia Benvenuto
Scheda redatta da
creata il 31/12/2013
ultima modifica il 31/01/2023
Revisori:
Martina Massaro
















