Censimento delle architetture italiane dal 1945 ad oggi
EDIFICI PER ABITAZIONI
Scheda Opera
- Comune: Baranello
- Denominazione: EDIFICI PER ABITAZIONI
- Indirizzo: Strada Provinciale 49
- Data: 2004 - 2008
- Tipologia: Complessi residenziali
- Autori principali: Luca Corbo, Roberto De Cosmo
Descrizione
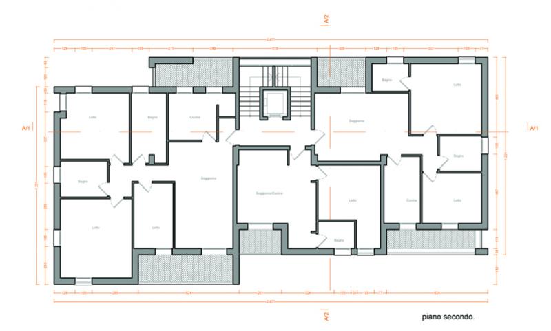
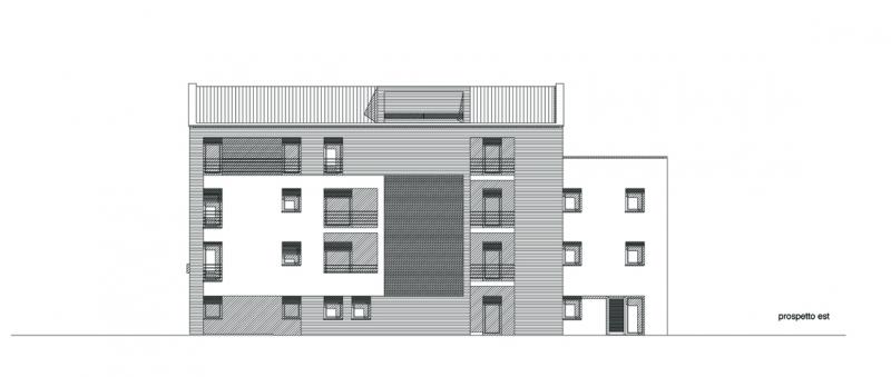
Il complesso è formato da tre edifici, con impianto speculare dell'uno rispetto all'altro, sviluppati su quattro livelli fuori terra ed uno interrato e composti da un volume con copertura a falde nel quale si innesta un secondo corpo dalla copertura piana: la composizione degli edifici e dell'impianto planimetrico è volta alla definizione di un profilo irregolare che possa ridurre l'impatto visivo con il territorio circostante, dal momento che questo complesso si trova al di fuori del centro abitato di Baranello, quindi in forte relazione con lo spazio aperto e non con il costruito.
Info
- Progetto: 2004 -
- Esecuzione: - 2008
- Proprietà: Proprietà privata
- Destinazione originaria: residenziale
- Destinazione attuale: residenziale
Autori
| Nome | Cognome | Ruolo | Fase Progetto | Archivio Architetti | Url Profilo | Autore Principale |
|---|---|---|---|---|---|---|
| Srl | Camardo | Impresa esecutrice | Esecuzione | NO | ||
| Luca | Corbo | Progetto architettonico | Progetto | Visualizza Profilo | https://corbo-luca.business.site/ | SI |
| Roberto | De Cosmo | Progetto architettonico | Progetto | SI | ||
| Gino | Piunno | Progetto strutturale | Progetto | NO |
- Strutture: cemento armato
- Materiale di facciata: mattoni facciavista, rivestimento in gres
- Coperture: a doppia falda inclinata
- Serramenti: alluminio
- Stato Strutture: Buono
- Stato Materiale di facciata: Buono
- Stato Coperture: Buono
- Stato Serramenti: Ottimo
- Vincolo: Non Vincolata
- Provvedimenti di tutela: Nessuna opzione
- Data Provvedimento:
- Riferimento Normativo:
- Altri Provvedimenti:
- Foglio Catastale: 20
- Particella: 592-2
Note
-
Criteri
| 4. L’edificio o l’opera di architettura riveste un ruolo significativo nell’ambito dell’evoluzione del tipo edilizio di pertinenza, ne offre un’interpretazione progressiva o sperimenta innovazioni di carattere distributivo e funzionale. |
Crediti Scheda
Enti di riferimento: PaBAAC - Direzione Regionale per il MoliseTitolare della ricerca: Fondazione Architetti Pianificatori e Paesaggisti della Prov. Di Campobasso
Responsabile scientifico: Cinthia Benvenuto
Scheda redatta da
creata il 31/12/2013
ultima modifica il 16/04/2024
Revisori:
Martina Massaro






