RISTRUTTURAZIONE DEL COLLEGIO SAN CARLO
Scheda Opera
- Comune: Modena
- Denominazione: RISTRUTTURAZIONE DEL COLLEGIO SAN CARLO
- Indirizzo: Via S. Carlo N. 5
- Data: - 1977
- Tipologia: Interventi di recupero e trasformazione
- Autori principali: Franca Stagi, Cesare Leonardi
Descrizione
"L’intervento di restauro della sede della Fondazione San Carlo interessa il complesso monumentale secentesco del Collegio dei Nobili di San Carlo, progettato a partire dal 1664 da Bartolomeo Avanzini, autore del Palazzo Ducale.
Alla fine degli anni venti del Novecento, l’architetto Enrico del Debbio, che realizza nel 1937 a Modena la sede della GIL, è incaricato del progetto di un nuovo edificio nel quartiere S. Faustino, intervento che non trova però realizzazione. L’Istituto rimane quindi nella sede storica che occupa fin dalla sua creazione ad inizio Seicento. L’opera di ristrutturazione del complesso nel corso degli anni Settanta, punta ad adeguare gli spazi alle nuove esigenze funzionali, resesi necessarie a partire dal 1954, con il cambio di statuto giuridico dell’Istituto, che si trasforma progressivamente in fondazione. Il progetto di Franca Stagi e Cesare Leonardi interviene in modo puntuale sulle parti del complesso, attraverso una comprensione degli spazi che ne rispetta in alcuni casi le qualità formali e materiali, mentre in altri non rinuncia all’introduzione di nuovi elementi espressivi. Si conservano ad esempio le gallerie voltate, mentre i corridoi dell’antico collegio vengono modificati introducendo box-armadi a servizio delle stanze. Ancora si restaurano la chiesa e il teatro settecentesco, l’unico del periodo presente in città, adeguandolo alle funzioni di auditorium. Si realizza una nuova sala conferenze, ricavata nell’antico oratorio adiacente la sacrestia e si riusano spazi di risulta, come nel caso del vano scala servente i locali della biblioteca, ricavato in un cavedio preesistente.
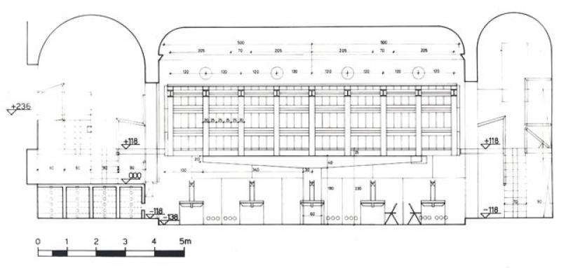
L’intervento più significativo riguarda proprio la biblioteca, ampliata attraverso la creazione di soppalchi sorretti da parti strutturali in metallo verniciato che conferiscono una nuova immagine agli spazi".
(Matteo Sintini in Mazzeri, Bulgarelli 2013)
Info
- Progetto: -
- Esecuzione: - 1977
- Committente: Fondazione San Carlo
- Proprietà: Proprietà privata
- Destinazione originaria: biblioteca e sale studio della Fondazione San Carlo
- Destinazione attuale: biblioteca e sale studio della Fondazione San Carlo
Autori
| Nome | Cognome | Ruolo | Fase Progetto | Archivio Architetti | Url Profilo | Autore Principale |
|---|---|---|---|---|---|---|
| Cesare | Leonardi | Progetto architettonico | Progetto | Visualizza Profilo | hhttps://siusa.archivi.beniculturali.it/cgi-bin/siusa/pagina.pl?TipoPag=prodpersona&Chiave=93274 | SI |
| Franca | Stagi | Progetto architettonico | Progetto | Visualizza Profilo | https://siusa.archivi.beniculturali.it/cgi-bin/siusa/pagina.pl?TipoPag=prodpersona&Chiave=59736 | SI |
- Strutture: metalliche
- Serramenti: metallici, lignei
- Stato Strutture: Buono
- Stato Serramenti: Buono
- Vincolo: Non Vincolata
- Provvedimenti di tutela: Nessuna opzione
- Data Provvedimento:
- Riferimento Normativo:
- Altri Provvedimenti:
- Foglio Catastale: 143
- Particella: 510
Note
Cesare Leonardi (Modena 1935-2021) Laureato in architettura all’Università di Firenze nel 1970, fino al 1985 ha lavorato nello studio associato con l’architetto Franca Stagi. Fra i primi progetti realizzati il Centro nuoto di Vignola, elaborato nel 1966, un’opera magistrale che esemplifica al meglio il suo interesse per la scala territoriale del progetto, in questo caso l’ambiente fluviale. La sua attività ha spaziato in molteplici campi: architettura, design, pittura. Fra le opere principali il progetto vincitore del concorso per un parco intitolato alla Resistenza a Modena (1970), il Centro nuoto di Mirandola (1975), il restauro del collegio San Carlo a Modena e l’inserimento della biblioteca (1977). Franca Stagi (Modena 1937-2008) Laureata nel 1962 in architettura al Politecnico di Milano, nel 1963 apre a Modena uno studio di architettura con Cesare Leonardi. Dal 1985 la sua attività proseguirà autonomamente, orientandosi principalmente su progetti di restauro e riuso di contenitori storici. Fra le realizzazioni più importanti a Modena si ricordano: il restauro della Chiesa e del Collegio San Carlo, del Foro Boario, il progetto del comparto San Paolo, il piano di recupero di Sant’Eufemia per istituti universitari, il riallestimento del Palazzo dei Musei, il restauro del Teatro Comunale e della Sinagoga di piazza Mazzini.
Bibliografia
| Autore | Anno | Titolo | Edizione | Luogo Edizione | Pagina | Specifica |
|---|---|---|---|---|---|---|
| 1977 | Ristrutturazione e restauro del Collegio San Carlo a Modena | L’Architettura. Cronache e Storia n. 264 | 332-346 | Si | ||
| 1977 | Modena, restauro del Collegio San Carlo | L'architettura cronache e storia n. 265 | 416 | Si | ||
| Lombardi Cesare | 1977 | Restauro del convento di S.Carlo a Modena | Bauen+Wohnen n. 4 | 127-132 | Si | |
| Leonardi Cesare, Stagi Franca | 1978 | College, S. Carlo, Modene, Italie | Techniques architecture n. 322 | 42-50 | Si | |
| Leonardi Cesare, Stagi Franca | 1978 | Fondazione S. Carlo – Modena, ristrutturazione e restauro della sede | L’industria delle costruzioni n. 79 | 5-29 | Si | |
| Casciato Maristella, Orlandi Piero (a cura di) | 2005 | Quale e Quanta. Architettura in Emilia Romagna nel secondo Novecento | Clueb | Bologna | No | |
| Borghi Vando, Leoni Giovanni, Borsari Andrea (a cura di) | 2011 | Il campo della cultura a Modena. Storia, luoghi e sfera pubblica | Mimesis edizioni | Milano | No | |
| Mazzeri Catia, Bulgarelli Vanni (a cura di) | 2013 | Città e architetture. Il Novecento a Modena | Cosimo Panini | Modena | 232 | Si |
| Cavani Andrea, Orsini Giulio (a cura di) | 2017 | Cesare Leonardi. L'architettura della vita / the architecture of life | Lazy dog | Milano | No |
Fonti Archivistiche
| Titolo | Autore | Ente | Descrizione | Conservazione |
|---|---|---|---|---|
| Archivio Franca Stagi | Franca Stagi | Biblioteca Poletti, Modena |
Allegati
Criteri
| 2. L’edificio o l’opera di architettura è illustrata in almeno due riviste di architettura di livello nazionale e/o internazionale. | |
| 6. L’edificio o l’opera di architettura è stata progettata da una figura di rilievo nel panorama dell’architettura nazionale e/o internazionale. | |
| 7. L’edificio o l’opera di architettura si segnala per il particolare valore qualitativo all’interno del contesto urbano in cui è realizzata. |
Sitografia ed altri contenuti online
| Titolo | Url |
|---|---|
| Comune di Modena | Visualizza |
| SAN Archivi degli Architetti - Franca Stagi | Visualizza |
| Archivio Cesare Leonardi | Visualizza |
| SAN Archivi degli Architetti - Cesare Leonardi | Visualizza |
Crediti Scheda
Enti di riferimento: PaBAAC - Segretariato Regionale per l'Emilia RomagnaTitolare della ricerca: Università degli studi di Bologna Dipartimento di Architettura
Responsabile scientifico: Marco Pretelli
Scheda redatta da Matteo Sintini
creata il 31/12/2013
ultima modifica il 24/01/2025
Revisori:
Stefano Setti














