TRASFORMAZIONE DELL'AREA EX-SAE
Scheda Opera
- Comune: Lecco
- Denominazione: TRASFORMAZIONE DELL'AREA EX-SAE
- Indirizzo: Viale Montegrappa
- Data: 1987 - 2003
- Tipologia: Edifici polifunzionali
- Autori principali: Associati International Gregotti
Descrizione
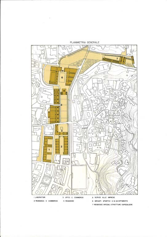
Il progetto complessivo riguarda la trasformazione di un'area ex-industriale di grandi dimensioni, di cui si pone come elemento di ricucitura urbana tra le nuove edificazioni e l'antico borgo di Acquate, anche tenendo conto di un corretto uso della morfologia del terreno. Il nuovo nucleo urbano costituisce la demarcazione e la congiunzione tra i due sistemi insediativi, valorizzando la conformazione del sito, armonizzando le interrelazioni tra viabilità, costruito, spazi aperti e scandendo lo spazio con un sistema di piazze.
Il progetto generale suddivide l'area in quattro comparti in cui si raccolgono e combinano le diverse destinazioni: residenza, commercio, terziario privato e pubblico. Gregotti Associati ha sviluppato su alcuni comparti specifici progetti: un complesso residenziale in cooperativa (1993/96) e un complesso residenziale con un centro commerciale (1997/2003).
Info
- Progetto: 1987 - 1987
- Esecuzione: 1993 - 2003
- Proprietà: Proprietà pubblica
- Destinazione originaria: area industriale
- Destinazione attuale: quartiere di espansione urbana
Autori
| Nome | Cognome | Ruolo | Fase Progetto | Archivio Architetti | Url Profilo | Autore Principale |
|---|---|---|---|---|---|---|
| Associati International | Gregotti | Progetto architettonico | Progetto | Visualizza Profilo | https://siusa.archivi.beniculturali.it/cgi-bin/siusa/pagina.pl?TipoPag=prodente&Chiave=19482 | SI |
- Strutture: cemento armato
- Materiale di facciata: intonaco
- Coperture: piana; a falde
- Serramenti: in legno
- Stato Strutture: Buono
- Stato Materiale di facciata: Buono
- Stato Coperture: Buono
- Stato Serramenti: Buono
- Vincolo: Non Vincolata
- Provvedimenti di tutela: Nessuna opzione
- Data Provvedimento:
- Riferimento Normativo:
- Altri Provvedimenti:
- Foglio Catastale: -
- Particella: -
Note
Nel 1938 nacque la ditta SAE Lecco (Società Anonima Elettrificazione), industria diventata leader mondiale nella realizzazione di linee per il trasporto dell'alta tensione. Nel 1992 la SAE ha terminato il programma di dismissione, nel 1993 sono cominciate le prime opere di realizzazione di edifici in edilizia convenzionata. I lavori sono terminati nel 2003 con l'inaugurazione del centro commerciale. Il progetto complessivo rientra nei grandi interventi di ristrutturazione urbana intrapresi a Lecco nell'arco di un ventennio circa (negli anni 1980 - 2000), dopo la dismissione di tanta parte delle sue aree industriali.
Bibliografia
| Autore | Anno | Titolo | Edizione | Luogo Edizione | Pagina | Specifica |
|---|---|---|---|---|---|---|
| Castelnuovo E., Ripamonti M.E. | 2010 | Recupero area ex-SAE, 1987/1993 | AL - Mensile d'informazione degli architetti lombardi n. 6 | 22 | No |
Fonti Archivistiche
| Titolo | Autore | Ente | Descrizione | Conservazione |
|---|---|---|---|---|
| Fondo Gregotti Associati | Vittorio Gregotti | Comune di Milano, Centro di Alti Studi sulle Arti Visive - CASVA |
Allegati
Criteri
| 4. L’edificio o l’opera di architettura riveste un ruolo significativo nell’ambito dell’evoluzione del tipo edilizio di pertinenza, ne offre un’interpretazione progressiva o sperimenta innovazioni di carattere distributivo e funzionale. | |
| 6. L’edificio o l’opera di architettura è stata progettata da una figura di rilievo nel panorama dell’architettura nazionale e/o internazionale. |
Sitografia ed altri contenuti online
| Titolo | Url |
|---|---|
| CASVA Milano | Visualizza |
Crediti Scheda
Enti di riferimento: DGAAP - Segretariato Regionale per la LombardiaTitolare della ricerca: Politecnico di Milano - Dipartimento di Design; Dipartimento di Architettura e Studi Urbani – DAStU
Responsabile scientifico: Fulvo Irace, Maurizio Boriani
Scheda redatta da
creata il 31/12/2012
ultima modifica il 01/03/2024
Revisori:
Setti Stefano 2022

















