PIANO DI RECUPERO EDILIZIO RESIDENZIALE
Scheda Opera
- Comune: Sondrio
- Denominazione: PIANO DI RECUPERO EDILIZIO RESIDENZIALE
- Indirizzo: Via Fracaiolo
- Data: 2006 - 2009
- Tipologia: Interventi di recupero e trasformazione
- Autori principali: Matteo Negri
Descrizione
La forte caratterizzazione dei fabbricati esistenti e del luogo hanno indirizzato le scelte progettuali, così come il limitato spazio a disposizione per il cantiere e la forte inclinazione del terreno ha determinato alcune scelte per evitare che i costi di costruzione rendessero l'operazione impraticabile dal punto di vista economico.
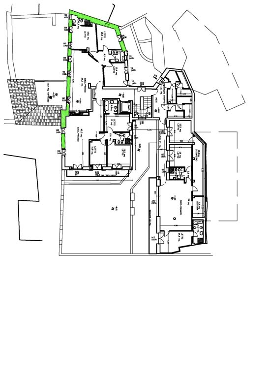
L'intervento ha previsto sostanzialmente un mantenimento della volumetria esistente e una ridistribuzione di alcuni volumi.
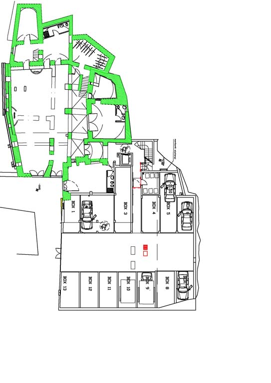
I posti auto per le unità immobiliari sono stati ricavati dal terreno dove sorgeva una tettoia, in quanto era accessibile direttamente dalla via Fracaiolo senza necessità di particolari interventi.
Sono stati demoliti una tettoia, una piccola casa e dei piccoli depositi realizzati contro la roccia, anche perché una loro conservazione sarebbe stata economicamente molto gravosa.
L'accessibilità di tutte le 13 unità immobiliari ricavate avviene da un solo corpo scala/ascensore che ne garantisce al contempo l'accessibilità alle persone portatrici di handicap.
Tutti i fabbricati sono stati costruiti con i principi di edilizia bioecologica.
L'intervento è da segnalare in quanto dimostra una grande sensibilità per le preesistenze anche minori e interviene in maniera puntuale, ripristinando un tessuto edilizio che rischiava di scomparire.
Info
- Progetto: 2006 - 2006
- Esecuzione: 2009 - 2009
- Proprietà: Proprietà privata
- Destinazione originaria: stabilimento produttivo, abitazioni
- Destinazione attuale: abitazione
Autori
- Strutture: muratura portante in pietra; solai in legno
- Materiale di facciata: pietra; legno
- Coperture: struttura lignea, manto in lastre di pietra
- Serramenti: in legno
- Stato Strutture: Ottimo
- Stato Materiale di facciata: Ottimo
- Stato Coperture: Ottimo
- Stato Serramenti: Ottimo
- Vincolo: Non Vincolata
- Provvedimenti di tutela: Nessuna opzione
- Data Provvedimento:
- Riferimento Normativo:
- Altri Provvedimenti:
- Foglio Catastale: 32
- Particella: 979
Note
Il progetto riguarda la realizzazione, terminata nel 2009, di un Piano di Recupero per la ristrutturazione edilizia di alcune case del quartiere di Fracaiolo nel centro storico di Sondrio. Il quartiere è posto sull'argine sinistro del Mallero, immediatamente sotto il castello Masegra, caratterizzato dalla presenza di un canale, ed era uno dei primi insediamenti produttivi che sfruttava la forza dell'acqua per il funzionamento di mulini, magli, seghe da assi, ecc.
Allegati
Criteri
| 3. L’edificio o l’opera di architettura ha una riconosciuta importanza nel panorama dell’architettura nazionale, degli anni nei quali è stata costruita, anche in relazione ai contemporanei sviluppi sia del dibattito, sia della ricerca architettonica nazionale e internazionale, | |
| 4. L’edificio o l’opera di architettura riveste un ruolo significativo nell’ambito dell’evoluzione del tipo edilizio di pertinenza, ne offre un’interpretazione progressiva o sperimenta innovazioni di carattere distributivo e funzionale. | |
| 5. L’edificio o l’opera di architettura introduce e sperimenta significative innovazioni nell’uso dei materiali o nell’applicazione delle tecnologie costruttive. | |
| 7. L’edificio o l’opera di architettura si segnala per il particolare valore qualitativo all’interno del contesto urbano in cui è realizzata. |
Crediti Scheda
Enti di riferimento: DGAAP - Segretariato Regionale per la LombardiaTitolare della ricerca: Politecnico di Milano - Dipartimento di Design; Dipartimento di Architettura e Studi Urbani - DAStU
Responsabile scientifico: Fulvo Irace, Maurizio Boriani
Scheda redatta da
creata il 31/12/2012
ultima modifica il 05/06/2023
Revisori:
Setti Stefano 2022








