STAZIONE DEGLI AUTOBUS STPS E SEDE DELLA COMUNITÀ MONTANA
Scheda Opera
- Comune: Morbegno
- Denominazione: STAZIONE DEGLI AUTOBUS STPS E SEDE DELLA COMUNITÀ MONTANA
- Indirizzo: Via Franco Ghislanzoni
- Data: 1988 - 1990
- Tipologia: Edifici per i trasporti
- Autori principali: Studio Act_Romegialli
Descrizione
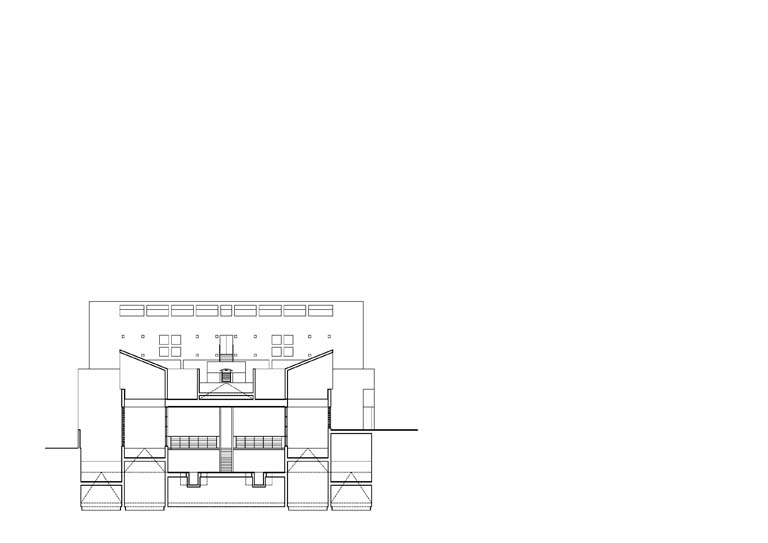
Su un lotto rettangolare lungo e stretto, a ridosso della ferrovia, sorge la stazione di interscambio, con ingresso principale in piazza Bossi. Il fronte in calcestruzzo a vista è alleggerito da un porticato a piano terra e da una loggia nella parte conclusiva dell'edificio. Un grande portale conduce nel piazzale retrostante di sosta degli autobus, con le banchine scandite da pilastri a sezione triangolare.
Nel seminterrato sono ospitate tutte le funzioni di manutenzioni del parco macchine, mentre in copertura è posizionato un parcheggio. Una passerella metallica sopra via Franco Ghislanzoni unisce la stazione degli autobus con la sede della Comunità Montana, un complesso di due volumi ortogonali tra di loro. Quello posto trasversalmente sulla via è un edificio con tetto a due falde, sospeso su pilastri e con la facciata con finestre a nastro interrotte da un serrato brise soleil in cemento.
L'altro volume riprende il modulo quadrato della stazione.
Il complesso è tutto in cemento a vista, con aperture progettate su un modulo quadrato, che determinano una forte continuità spaziale dell'intero sistema, mantenendo nel contempo la memoria delle austere forme industriali preesistenti.
Info
- Progetto: 1988 - 1988
- Esecuzione: 1990 - 1990
- Proprietà: Proprietà pubblica
- Destinazione originaria: stazione autobus, ufficio
- Destinazione attuale: stazione autobus, ufficio
Autori
| Nome | Cognome | Ruolo | Fase Progetto | Archivio Architetti | Url Profilo | Autore Principale |
|---|---|---|---|---|---|---|
| Studio | Act_Romegialli | Progetto architettonico | Progetto | https://www.actromegialli.it/ | SI | |
| Ghinato, | Ada | Progetto architettonico | Progetto | NO | ||
| Finozzi, | Alessandro | Progetto architettonico | Progetto | NO | ||
| Erika | Gaggia | Progetto architettonico | Progetto | Visualizza Profilo | https://www.actromegialli.it/studio | NO |
| Romegialli, | Roberto | Progetto architettonico | Progetto | NO | ||
| Marchini | Roberto | Progetto strutturale | Progetto | NO | ||
| Gianmatteo | Romegialli | Progetto architettonico | Progetto | Visualizza Profilo | https://www.actromegialli.it/studio | NO |
| Angela Maria | Romegialli | Progetto architettonico | Progetto | Visualizza Profilo | https://www.actromegialli.it/studio | NO |
- Strutture: cemento armato
- Materiale di facciata: cemento armato a vista
- Coperture: a falde, con manto in metallo (edificio Comunità Montana); a terrazza, utilizzata come parcheggio (stazione autobus)
- Serramenti: in metallo
- Stato Strutture: Ottimo
- Stato Materiale di facciata: Ottimo
- Stato Coperture: Buono
- Stato Serramenti: Ottimo
- Vincolo: Non Vincolata
- Provvedimenti di tutela: Nessuna opzione
- Data Provvedimento:
- Riferimento Normativo:
- Altri Provvedimenti:
- Foglio Catastale: -
- Particella: -
Note
Su un'area ex-industriale compresa tra la Strada Statale 38 dello Stelvio e la linea delle Ferrovie dello Stato, nei pressi della stazione, un piano di recupero individua negli anni '80 le necessarie trasformazioni. Il complesso edificato sull'area ospita la stazione pubblica delle autolinee, un parcheggio di interscambio tra la linea ferroviaria Milano-Tirano e la Strada Statale 38, e la sede della Comunità Montana della Bassa Valtellina.
Bibliografia
| Autore | Anno | Titolo | Edizione | Luogo Edizione | Pagina | Specifica |
|---|---|---|---|---|---|---|
| Racic M. | 1994 | Stazione degli autobus S.T.P.S. a Morbegno | Costruire n. 138 | 142-144 | Si | |
| Studio Romegialli | 1997 | Stazione degli autobus S.T.P.S. a Morbegno | Domus extra n. 789 | 18-21 | Si | |
| Pepponi Laura Cristina | 1998 | La nuova stazione degli autobus a Morbegno, SondrioL'industria italiana del cemento | No | |||
| Scalici Alessandra | 2000 | Il calcestruzzo 2: costruire con il cemento. Stazione degli autobus a Morbegno | Modulo n. 261 | No |
Fonti Archivistiche
| Titolo | Autore | Ente | Descrizione | Conservazione |
|---|---|---|---|---|
| Archivio act Romegialli | act Romegialli | Archivio privato, Morbegno |
Allegati
Criteri
| 2. L’edificio o l’opera di architettura è illustrata in almeno due riviste di architettura di livello nazionale e/o internazionale. | |
| 4. L’edificio o l’opera di architettura riveste un ruolo significativo nell’ambito dell’evoluzione del tipo edilizio di pertinenza, ne offre un’interpretazione progressiva o sperimenta innovazioni di carattere distributivo e funzionale. | |
| 5. L’edificio o l’opera di architettura introduce e sperimenta significative innovazioni nell’uso dei materiali o nell’applicazione delle tecnologie costruttive. | |
| 7. L’edificio o l’opera di architettura si segnala per il particolare valore qualitativo all’interno del contesto urbano in cui è realizzata. |
Crediti Scheda
Enti di riferimento: Direzione Regionale LombardiaTitolare della ricerca: Politecnico di Milano
Responsabile scientifico: Prof. Fulvo Irace - Prof. Maurizio Boriani
Scheda redatta da
creata il 31/12/2012
ultima modifica il 06/02/2025
Revisori:
Setti Stefano 2022

























