VILLA A TIRANO
Scheda Opera
- Comune: Tirano
- Denominazione: VILLA A TIRANO
- Indirizzo:
- Data: 1972 -
- Tipologia: Abitazioni unifamiliari
- Autori principali: Pietro (Piercarlo) Stefanelli
Descrizione
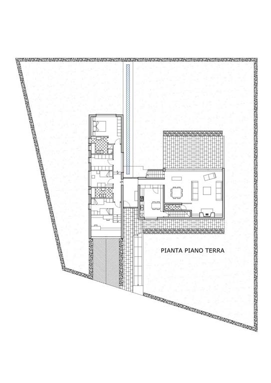
La casa è dimensionata per una famiglia di cinque persone e sorge in un contesto ambientale di grande fascino, lungo la strada che congiunge Tirano con la Val Poschiavo.
La complessità della sua forma, ricavata come un monoblocco di cemento armato a vista, articola separatamente l'ambiente abitativo da quello di lavoro: ospita infatti anche lo studio medico del proprietario. Alla base dell'edificio, interrato, vi è il box auto, che funge anche da isolante termico.
Fulcro della costruzione è l'ambiente di ingresso, a visuale passante, da cui si dirama su due livelli la distribuzione alla zona notte e alla zona giorno.
Elemento di forte individualità, si distingue per la geometria inconsueta rispetto all'intorno (edificato con tipi tradizionali) e per la giustapposizione volumetrica, che pare essere un connotato distintivo dell'architetto (si veda per esempio la casa unifamiliare a Colda, sempre in provincia di Sondrio, dello stesso periodo).
Info
- Progetto: 1972 - 1972
- Esecuzione: -
- Proprietà: Nessuna opzione
- Destinazione originaria: abitazione
- Destinazione attuale: abitazione
Autori
| Nome | Cognome | Ruolo | Fase Progetto | Archivio Architetti | Url Profilo | Autore Principale |
|---|---|---|---|---|---|---|
| Pietro (Piercarlo) | Stefanelli | Progetto architettonico | Progetto | Visualizza Profilo | http://www.studiostefanelli.it/ | SI |
- Strutture: cemento armato in monoblocco
- Materiale di facciata: cemento a vista
- Coperture: cemento armato
- Serramenti: in metallo con grandi cornici in aggetto
- Stato Strutture: Buono
- Stato Materiale di facciata: Buono
- Stato Coperture: Buono
- Stato Serramenti: Buono
- Vincolo: Non Vincolata
- Provvedimenti di tutela: Nessuna opzione
- Data Provvedimento:
- Riferimento Normativo:
- Altri Provvedimenti:
- Foglio Catastale: 30
- Particella: 313
Note
Lo studio Stefanelli, fondato da Pietro (Piercarlo) nel 1954, cui si associa nel 1989 Nicola Stefanelli come direttore tecnico, è particolarmente presente nel panorama del territorio locale (ma non solo), con una vasta gamma di progetti e realizzazioni di scala sia urbana, sia edilizia, nel settore sia pubblico, sia privato. Cardini dell'attività sono "la dedizione alle tematiche del recupero urbano e della progettazione a scala territoriale" e "la ricerca tipologica per l'innovazione edilizia": un approccio dunque versatile e attento ai valori ambientali che pure non rinuncia all'affermazione di un linguaggio originale.
Bibliografia
| Autore | Anno | Titolo | Edizione | Luogo Edizione | Pagina | Specifica |
|---|---|---|---|---|---|---|
| 1974 | Struttura in cemento | Domus n. 531 | 18-19 | Si | ||
| Guerra Leo | 2001 | Villa a Tirano, in Spazi di un secolo. Sondrio, guida all'architettura del Novecento | Italia nostra | Sondrio | No | |
| Guerra Leo (a cura di) | 2001 | Piercarlo Stefanelli. Opere e progetti 1959-2000 | Electa | Milano | 31-32 | Si |
| Scaramellini E. | 2010 | Casa unifamiliare - Tirano | AL - Mensile d'informazione degli architetti lombardi n. 6 | 32-33 | No |
Allegati
Criteri
| 4. L’edificio o l’opera di architettura riveste un ruolo significativo nell’ambito dell’evoluzione del tipo edilizio di pertinenza, ne offre un’interpretazione progressiva o sperimenta innovazioni di carattere distributivo e funzionale. | |
| 5. L’edificio o l’opera di architettura introduce e sperimenta significative innovazioni nell’uso dei materiali o nell’applicazione delle tecnologie costruttive. | |
| 7. L’edificio o l’opera di architettura si segnala per il particolare valore qualitativo all’interno del contesto urbano in cui è realizzata. |
Sitografia ed altri contenuti online
| Titolo | Url |
|---|---|
| Studio Stefanelli | Visualizza |
Crediti Scheda
Enti di riferimento: DGAAP - Segretariato Regionale per la LombardiaTitolare della ricerca: Politecnico di Milano - Dipartimento di Design; Dipartimento di Architettura e Studi Urbani - DAStU
Responsabile scientifico: Fulvo Irace, Maurizio Boriani
Scheda redatta da
creata il 31/12/2012
ultima modifica il 05/06/2023
Revisori:
Setti Stefano 2022













