CASA IN COLLINA
Scheda Opera
- Comune: Montebello della Battaglia
- Denominazione: CASA IN COLLINA
- Indirizzo: Via Costaiola N. 3-13
- Data: 2005 - 2008
- Tipologia: Interventi di recupero e trasformazione
- Autori principali: Liliana Bonforte, Luciano Giorgi
Descrizione
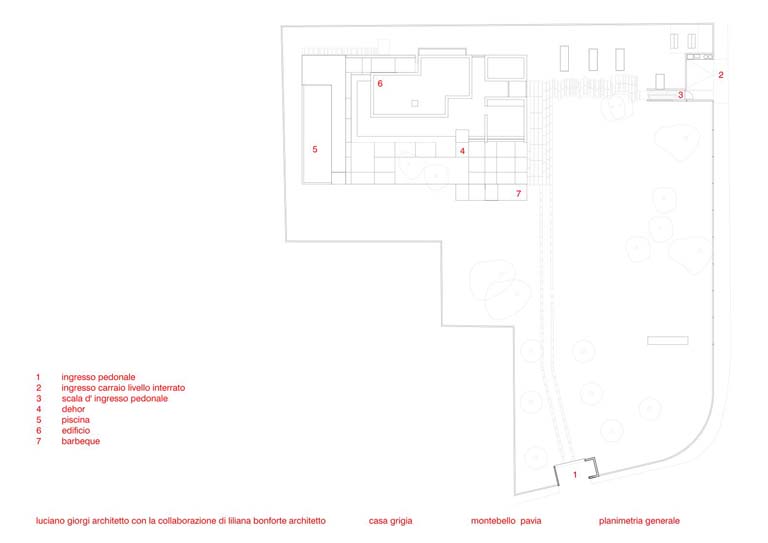
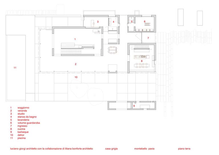
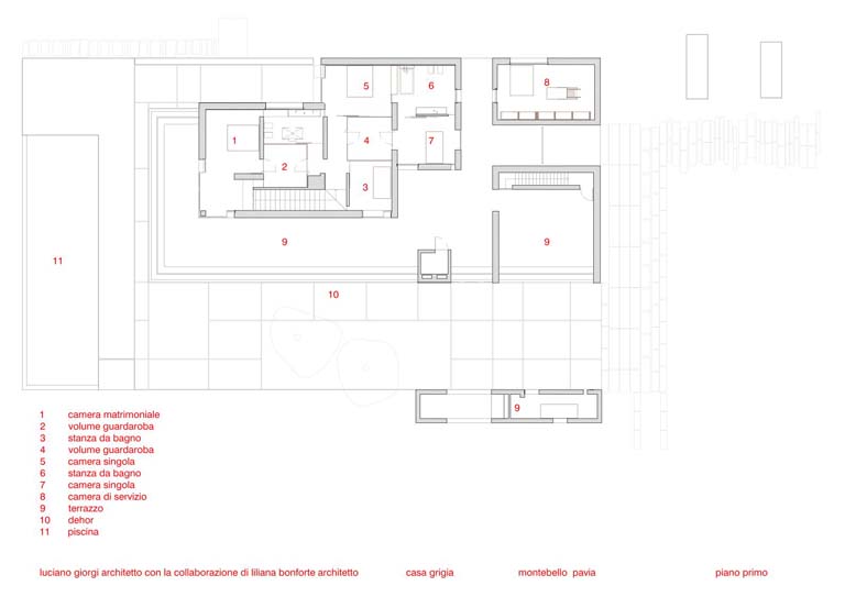
Il progetto consiste nel re-styling e nella integrazione volumetrica di un edificio preesistente rimasto incompiuto, portando quasi al raddoppio della dimensione della casa. Una veranda aperta a sud verso valle, sul lato lungo del complesso, e il trattamento unitario degli esterni, ricuciono e portano a coerenza i diversi volumi, che divengono le stanze in cui il nuovo organismo si riarticola.
Vi sono tre piani, che traggono profitto anche dal dislivello del terreno: la quota zero di accesso, dove si sviluppano la zona giorno, il dehor con terrazza e piscina e il giardino. Questa funge da cerniera tra il piano interrato, che connette i vari spazi di servizio (dall'autorimessa, al locale caldaia, agli annessi della piscina, ecc...), e il primo piano, dove si sviluppa la zona notte affacciata sull'ampio terrazzo formato dal tetto della veranda sottostante e rivestito di legno.
L'assetto composito della casa, tutt'altro che mascherato, è invece scientemente valorizzato nella contrapposizione tra i massicci volumi delle stanze e la luminosa leggerezza dell'ampia vetrata, che si propone come basamento unificante. In questa ricomposizione gli stessi volumi tecnici sono trattati come brani di architettura, venendo riscattati dal loro più usuale aspetto accessorio.
Info
- Progetto: 2005 - 2005
- Esecuzione: 2008 - 2008
- Proprietà: Proprietà privata
- Destinazione originaria: abitazione
- Destinazione attuale: abitazione
Autori
| Nome | Cognome | Ruolo | Fase Progetto | Archivio Architetti | Url Profilo | Autore Principale |
|---|---|---|---|---|---|---|
| Liliana | Bonforte | Progetto architettonico | Progetto | SI | ||
| Luciano | Giorgi | Progetto architettonico | Progetto | Visualizza Profilo | http://www.lgb-architetti.it/luciano-giorgi.php | SI |
- Strutture: cemento armato
- Materiale di facciata: intonaco
- Coperture: cemento armato, rivestimenti in legno
- Serramenti: struttura di metallo brunito
- Stato Strutture: Ottimo
- Stato Materiale di facciata: Ottimo
- Stato Coperture: Ottimo
- Stato Serramenti: Ottimo
- Vincolo: Non Vincolata
- Provvedimenti di tutela: Nessuna opzione
- Data Provvedimento:
- Riferimento Normativo:
- Altri Provvedimenti:
- Foglio Catastale: -
- Particella: -
Note
Il progetto porta a compimento un fabbricato esistente raddoppiandone la superficie. La localizzazione dell'edificio, sul crinale di una collina dove predomina la coltura del vigneto, e dove la vista spazia sul pregevole paesaggio circostante, è tra le più felici.
Bibliografia
| Autore | Anno | Titolo | Edizione | Luogo Edizione | Pagina | Specifica |
|---|---|---|---|---|---|---|
| Giorgi Luciano, Bonforte Liliana | 2005 | Materiali edili n. 67 | No | |||
| Sartori T. (fotografie) | 2010 | Mat black house | Elle Decor Japan, giugno | No | ||
| 2010 | La casa sulla collina | Elle Decor, gennaio - febbraio | No | |||
| Marmo Antonia, Sartori Tommaso (fotografie), Martiradonna Andrea (fotografie) | 2011 | 7 parole per LGB architetti | Livingroom n. 28 | No |
Fonti Archivistiche
| Titolo | Autore | Ente | Descrizione | Conservazione |
|---|---|---|---|---|
| Archivio Luciano Giorgi lgb architetti | Luciano Giorgi | Archivio privato, Milano |
Allegati
Criteri
| 4. L’edificio o l’opera di architettura riveste un ruolo significativo nell’ambito dell’evoluzione del tipo edilizio di pertinenza, ne offre un’interpretazione progressiva o sperimenta innovazioni di carattere distributivo e funzionale. | |
| 7. L’edificio o l’opera di architettura si segnala per il particolare valore qualitativo all’interno del contesto urbano in cui è realizzata. |
Sitografia ed altri contenuti online
| Titolo | Url |
|---|---|
| lgb architetti, casa in collina | Visualizza |
Crediti Scheda
Enti di riferimento: DGAAP - Segretariato Regionale per la LombardiaTitolare della ricerca: Politecnico di Milano - Dipartimento di Design; Dipartimento di Architettura e Studi Urbani - DAStU
Responsabile scientifico: Fulvo Irace, Maurizio Boriani
Scheda redatta da
creata il 31/12/2012
ultima modifica il 27/03/2024
Revisori:
Setti Stefano 2022















