CASA ED APPARTAMENTI BORGO
Scheda Opera
- Comune: Vicenza
- Denominazione: CASA ED APPARTAMENTI BORGO
- Indirizzo: Contrada del Quartiere N. 8-10
- Data: 1974 - 1979
- Tipologia: Abitazioni plurifamiliari
- Autori principali: Carlo Scarpa
Descrizione
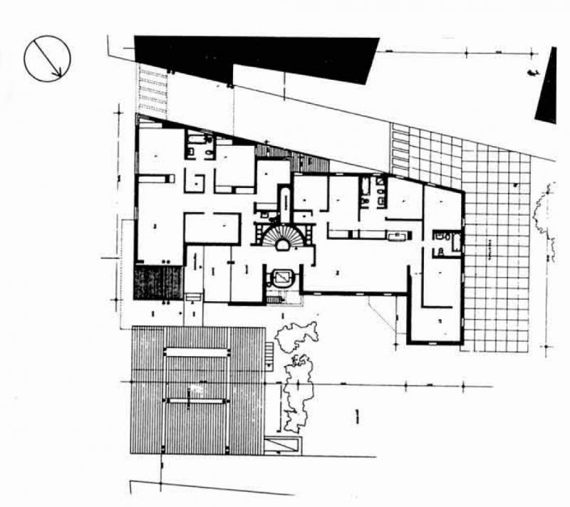
L’edificio presenta un impianto planimetrico a L: due blocchi di quattro piani fuori terra e uno, quello dei box auto, interrato, che assecondano la forma trapezoidale del lotto. Entrambi i blocchi appaiono caratterizzati da fronti molto compatti verso l’esterno – trattati ad intonaco chiaro – interrotti da finestre sempre della stessa forma e dimensione, a tutta altezza, che altresì permettono di interagire direttamente con l’ambiente circostante. Le finestre, a filo interno della struttura muraria, presentano in taluni casi dei balconcini aggettanti e in altri, invece, dei davanzali (in entrambi i casi trattati con pietra tenera di Vicenza, materiale peraltro utilizzato anche nelle nicchie decorative poste sul cornicione) che movimentano la facciata interrompendone la monotonia; gli scuri presentano delle ante a soffietto. La facciata è inoltre scandita orizzontalmente dalla presenza dei marcapiani, in calcestruzzo, leggermente arretrati rispetto ad essa che, correndo lungo il perimetro dell’edificio, segnano l’altezza di ogni piano. Il volume di uno dei due blocchi viene svuotato al suo attacco a terra e sorretto da una struttura a pilastri, a sezione quadrata ad angoli smussati. Caratteristica è la soluzione strutturale adottata da Carlo Scarpa per il lungo portico al piano terra: i pilastri in calcestruzzo sorreggono travi in acciaio dipinte di rosso, il nodo capitello che permette di agganciare il sistema di travatura ai pilastri è un elemento necessario alla struttura ma, allo stesso tempo, introduce un carattere di unicità alla struttura.
Info
- Progetto: 1974 - 1979
- Esecuzione: 1974 - 1979
- Tipologia Specifica: edificio residenziale
- Committente: Giacomo Borgo, Galliano Ceola
- Proprietà: Proprietà privata
- Destinazione originaria: appartamenti
- Destinazione attuale: appartamenti
Autori
| Nome | Cognome | Ruolo | Fase Progetto | Archivio Architetti | Url Profilo | Autore Principale |
|---|---|---|---|---|---|---|
| Sandro | Bagnol | Collaboratore | Progetto | NO | ||
| Francesco | Guiotto | Progetto strutturale | Progetto | NO | ||
| Guido | Pietropoli | Collaboratore | Progetto | Visualizza Profilo | http://www.studiopietropoli.it/about | NO |
| Carlo | Scarpa | Progetto architettonico | Progetto | Visualizza Profilo | https://siusa.archivi.beniculturali.it/cgi-bin/siusa/pagina.pl?TipoPag=prodpersona&Chiave=55412 | SI |
| Tobia | Scarpa | Collaboratore | Progetto | Visualizza Profilo | https://bbcc.regione.emilia-romagna.it/pater/loadcard.do?id_card=257907&force=1 | NO |
| Maristella | Tonin | Collaboratore | Progetto | NO |
- Strutture: calcestruzzo, acciaio
- Materiale di facciata: intonaco
- Stato Strutture: Buono
- Stato Materiale di facciata: Buono
- Vincolo: Non Vincolata
- Provvedimenti di tutela: Nessuna opzione
- Data Provvedimento:
- Riferimento Normativo:
- Altri Provvedimenti:
- Foglio Catastale: -
- Particella: -
Note
Nel 1974 Carlo Scarpa accettò l’incarico proposto da Giacomo Borgo di terminare il progetto per una casa ad appartamenti posta nella prima periferia di Vicenza – appena fuori dal centro storico – precedentemente avviato dall’ing. Guiotto e bloccato dalla Commissione Edilizia vigente, in corso d’opera. Dopo il parere negativo espresso dalla Commissione, l’ing. Guiotto fu destituito dal suo incarico che passò direttamente nelle mani di Scarpa. Data la natura delicata dell’intervento fu proprio l’Amministrazione Comunale a suggerire il nome di Scarpa alla committenza, dovendo rispettare da un lato le rigide direttive imposte dal Regolamento Edilizio in merito alle nuove costruzioni nel centro storico e, dall’altro, assecondare le esigenze richieste espressamente dal committente. Le numerose divergenze avute con la committenza portarono Scarpa a disinteressarsi completamente del cantiere: piccole modifiche apportate al progetto direttamente da Borgo all’insaputa dell’architetto portarono ad una condizione di disagio tra i due. A oggi l’opera realizzata non rispecchia totalmente quanto previsto dal progetto originale. Dal sito http://vincoliinretegeo.beniculturali.it non emergono vincoli di alcun genere applicati al bene immobile. Fotografie I. Friso. Scheda a cura di I. Friso.
Bibliografia
| Autore | Anno | Titolo | Edizione | Luogo Edizione | Pagina | Specifica |
|---|---|---|---|---|---|---|
| Bru E. | 1983 | Carlo Scarpa: més que el pas del temps | Quaderns d'arquitectura i urbanisme n. 158 | Barcellona | 64-69 | No |
| Marcianò Ada Francesca (a cura di) | 1984 | Carlo Scarpa | Zanichelli | Bologna | 164-165 | No |
| Dal Co Francesco, Mazzariol Giuseppe | 1984 | Carlo Scarpa. 1906-1978 | Mondadori | Milano | 140 | No |
| 1988 | Carlo Scarpa Selected Drawings | GA Document n. 21 | Tokyo | 101 | Si | |
| Croset Pierre Alain, Rovetta Chiara | 2000 | Casa per appartamenti in contrà del Quartiere, Vicenza, 1974-78, in Beltramini Guido, Forster Kurt W., Marini Paola (a cura di) Carlo Scarpa. Mostre e musei 1944-1976 / Case e paesaggi 1972-1978, catalogo della mostra | Milano | 314-327 | No | |
| Bruschi Greta | 2006 | Il calcestruzzo nelle architetture di Carlo Scarpa: forme, alterazioni e interventi | Editrice Compositori | Bologna | 149-150 | No |
| Longhi Davide | 2012 | Novecento. Architetture e città del Veneto | Il Poligrafo | Padova | 1012-1013 | No |
Fonti Archivistiche
| Titolo | Autore | Ente | Descrizione | Conservazione |
|---|---|---|---|---|
| Fondo Carlo Scarpa | Carlo Scarpa | Fototeca Cisa Palladio | Case per Appartamenti |
Allegati
Criteri
| 1. L’edificio o l’opera di architettura è citata in almeno tre studi storico-sistematici sull’architettura contemporanea di livello nazionale e/o internazionale. | |
| 2. L’edificio o l’opera di architettura è illustrata in almeno due riviste di architettura di livello nazionale e/o internazionale. | |
| 6. L’edificio o l’opera di architettura è stata progettata da una figura di rilievo nel panorama dell’architettura nazionale e/o internazionale. |
Sitografia ed altri contenuti online
| Titolo | Url |
|---|---|
| Enciclopedia Treccani - Tobia Scarpa | Visualizza |
| Archivio Carlo Scarpa | Visualizza |
| MAXXI Patrimonio - Carlo Scarpa | Visualizza |
| SAN Archivi degli Architetti - Carlo Scarpa | Visualizza |
| Dizionario biografico degli Italiani - Carlo Scarpa | Visualizza |
Crediti Scheda
Enti di riferimento: DGAAP - Segretariato Regionale per il VenetoTitolare della ricerca: Università di Padova – Dipartimento beni culturali
Responsabile scientifico: Elena Svalduz
Scheda redatta da
creata il 31/12/2015
ultima modifica il 29/01/2025
Revisori:
Menzietti Giulia 2021









