ALLOGGI INA-CASA
Scheda Opera
- Comune: Ornago
- Denominazione: ALLOGGI INA-CASA
- Indirizzo: Via San Domenico Savio
- Data: 1951 - 1951
- Tipologia: Edilizia residenziale pubblica
- Autori principali: Piero Bottoni
Descrizione
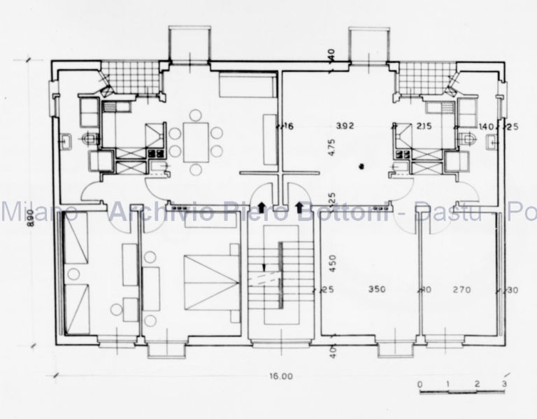
L'edificio è un piccolo blocco residenziale a tre piani fuori terra, corredato da un seminterrato destinato a cantine.
Ciascun livello ospita due alloggi simmetricamente disposti intorno a un unico vano-scala, che si ripetono uguali anche in altezza. Ogni appartamento dispone di una zona giorno composta da soggiorno e cucina (aperti uno sull'altro), che sono rispettivamente serviti da un balcone in aggetto e da una loggia, accessibile però sia dal soggiorno medesimo che dal bagno: in questo progetto di Bottoni, dunque, essa diventa una vera e propria stanza di servizio all'aperto, recuperando il carattere funzionale che ne è tipico nella tradizione lombarda. Sul fronte opposto si aprono invece le due stanze da letto, di cui quella padronale servita da un balconcino a cassone (cioè con il parapetto frontale pieno). Su entrambi i prospetti, le balaustre di logge e balconi sono trattati a intonaco bianco e quindi posti in forte contrasto cromatico con il resto delle facciate, finite in un colore bruno scuro. I fronti laterali, invece, sono quasi completamente ciechi poiché aperti solo in corrispondenza delle piccole finestre ad andamento verticale dei servizi igienici.
La costruzione è conclusa da un semplice tetto a falde inclinate, con manto in coppi.
Info
- Progetto: 1951 - 1951
- Esecuzione: 1951 - 1951
- Committente: Comune di Muggiò, INA-Casa
- Proprietà: Proprietà privata
- Destinazione originaria: destinazione originaria
- Destinazione attuale: abitazione
Autori
| Nome | Cognome | Ruolo | Fase Progetto | Archivio Architetti | Url Profilo | Autore Principale |
|---|---|---|---|---|---|---|
| Piero | Bottoni | Progetto architettonico | Progetto | Visualizza Profilo | https://siusa.archivi.beniculturali.it/cgi-bin/siusa/pagina.pl?TipoPag=prodpersona&Chiave=19465 | SI |
- Strutture: muratura portante
- Materiale di facciata: intonaco civile
- Coperture: a falda inclinata, con manto in coppi
- Serramenti: in legno, con avvolgibili
- Stato Strutture: Buono
- Stato Materiale di facciata: Buono
- Stato Coperture: Buono
- Stato Serramenti: Buono
- Vincolo: Non Vincolata
- Provvedimenti di tutela: Nessuna opzione
- Data Provvedimento:
- Riferimento Normativo:
- Altri Provvedimenti:
- Foglio Catastale: -
- Particella: -
Note
L'intervento di Bottoni sorge nel Comune di Ornago che, all'epoca della sua costruzione, era situato in provincia di Milano (oggi Monza e Brianza). Come molte della residenze popolari disegnate per l'INA-Casa, è stato realizzato su un terreno isolato ai margini dell'abitato che - nel corso degli anni - è stato inglobato dal processo di urbanizzazione.
Bibliografia
| Autore | Anno | Titolo | Edizione | Luogo Edizione | Pagina | Specifica |
|---|---|---|---|---|---|---|
| Consonni G./ Meneghetti L./ Tonon G. (a cura di) | 1990 | Piero Bottoni, opera completa - Case Ina-casa in Lombardia, 1949-56 | Milano | p. 352 | Si |
Allegati
Criteri
| 6. L’edificio o l’opera di architettura è stata progettata da una figura di rilievo nel panorama dell’architettura nazionale e/o internazionale. |
Sitografia ed altri contenuti online
| Titolo | Url |
|---|---|
| Archivio Piero Bottoni, Politecnico di Milano | Visualizza |
| Enciclopedia Treccani - Piero Bottoni | Visualizza |
Crediti Scheda
Enti di riferimento: DGAAP - Segretariato Regionale per la LombardiaTitolare della ricerca: Politecnico di Milano - Dipartimento di Design; Dipartimento di Architettura e Studi Urbani – DAStU
Responsabile scientifico: Fulvo Irace, Maurizio Boriani
Scheda redatta da
creata il 31/12/2012
ultima modifica il 04/02/2025





