PALAZZO ARGENTINA
Scheda Opera
- Comune: Milano
- Denominazione: PALAZZO ARGENTINA
- Indirizzo: Corso Buenos Aires N. 36
- Data: 1947 - 1951
- Tipologia: Edifici polifunzionali
- Autori principali: Piero Bottoni, Guglielmo Ulrich, Mario Pucci
Descrizione
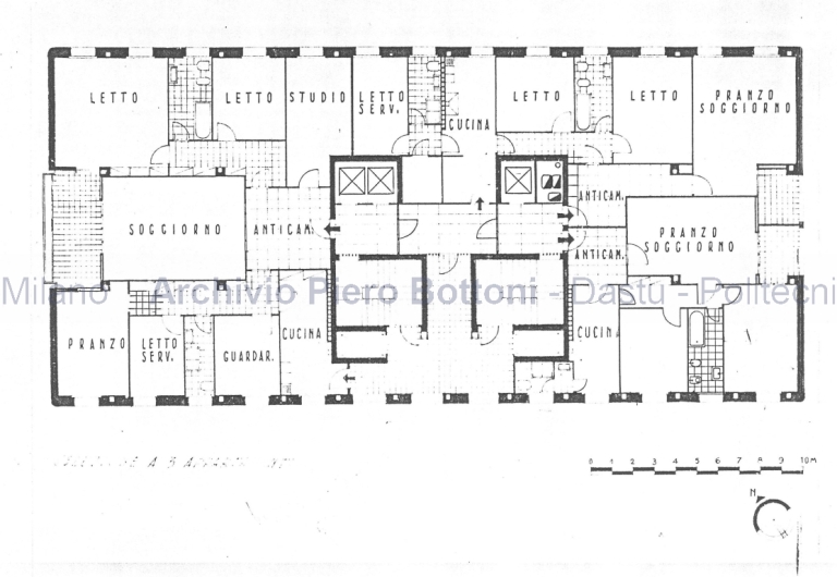
L'edificio, destinato a varie funzioni, è organizzato in due corpi accessibili da ingressi differenziati.
Il basamento a pianta quadrata con lato pari a una lunghezza di 40 metri si sviluppa su tre livelli ed è diviso, al piano terra, in due blocchi da una galleria pedonale, che separa i negozi e gli uffici da un cinematografo (oggi in disuso e pesantemente nascosto da cartelloni pubblicitari). Il corpo superiore, perpendicolare a corso Buenos Aires, è invece costituito da una torre di undici piani in cui sono collocate le abitazioni, dotate di logge ricavate sui lati corti del blocco. Alcune di queste terrazze sono state in seguito chiuse dagli inquilini, specialmente sul fronte rivolto a via Masera.
La netta distinzione è mantenuta anche per le scelte progettuali relative alle facciate. La piastra a destinazione commerciale presenta, infatti, una serie di grandi aperture con serramenti continui in metallo, mentre il corpo superiore è ritmato dalla successione ripetuta di finestre ad andamento verticale, che bucano ossessivamente il forte spessore del paramento murario. Qui la scelta è caduta su serramenti in rovere con apertura a bilico, in parte sostituiti nel corso degli anni così come la maggioranza di quelli dei negozi.
La facciata sud-ovest della torre, rivolta verso via Spallanzani, è inoltre solcata da tre file di piccoli balconi, che ne accentuano la corsa verso l'alto.
Il complesso di corso Buenos Aires presenta numerose analogie con quello che Bottoni aveva progettato a Bologna, negli anni compresi tra il 1936 e il 1937, lungo la via Roma e con la sede dell'INAIL costruita a Lecco (1940-1943).
La copertura del corpo basso è stata recentemente trasformata in una terrazza piana praticabile.
Info
- Progetto: 1947 - 1951
- Esecuzione: 1947 - 1951
- Committente: Lombarda Finanziaria Edilizia
- Proprietà: Proprietà privata
Autori
| Nome | Cognome | Ruolo | Fase Progetto | Archivio Architetti | Url Profilo | Autore Principale |
|---|---|---|---|---|---|---|
| Luciano | Agostoni | Progetto architettonico | Progetto | NO | ||
| Piero | Bottoni | Progetto architettonico | Progetto | Visualizza Profilo | https://siusa.archivi.beniculturali.it/cgi-bin/siusa/pagina.pl?TipoPag=prodpersona&Chiave=19465 | SI |
| Piero | Bottoni | Direzione lavori | Esecuzione | Visualizza Profilo | https://siusa.archivi.beniculturali.it/cgi-bin/siusa/pagina.pl?TipoPag=prodpersona&Chiave=19465 | NO |
| Mario | Cavallè - cinematografo | Progetto architettonico | Progetto | NO | ||
| Sante | Comolli | Impresa esecutrice | Esecuzione | NO | ||
| Sante | Comolli | Direzione lavori | Esecuzione | NO | ||
| Mario | Pucci | Progetto architettonico | Progetto | Visualizza Profilo | https://bbcc.regione.emilia-romagna.it/pater/loadcard.do?id_card=256932&force=1 | SI |
| Guglielmo | Ulrich | Progetto architettonico | Progetto | Visualizza Profilo | https://archiviostorico.fondazionefiera.it/entita/1118-ulrich-guglielmo | SI |
| Guglielmo | Ulrich | Direzione lavori | Esecuzione | https://archiviostorico.fondazionefiera.it/entita/1118-ulrich-guglielmo | NO |
- Strutture: struttura a travi e pilastri in calcestruzzo armato; fondazioni a travi rovesce su gruppi di pali in cemento armato a testa espansa
- Materiale di facciata: intonaco spuntato a punta di martello (corpo basso); cemento e graniglia (corpo alto)
- Coperture: a falde, con manto in pannelli di fibrocemento
- Serramenti: continui in alluminio (negozi del corpo basso); in legno di rovere con apertura a bilico (fronte principale)
- Stato Strutture: Buono
- Stato Materiale di facciata: Mediocre
- Stato Coperture: Mediocre
- Stato Serramenti: Buono
- Vincolo: Non Vincolata
- Provvedimenti di tutela: Nessuna opzione
- Data Provvedimento:
- Riferimento Normativo:
- Altri Provvedimenti:
- Foglio Catastale: 315
- Particella: 1
Note
Il primo progetto, firmato con Mario Pucci, prevedeva la realizzazione di una galleria a croce che fu soppressa per far posto al cinematografo, che a sua volta sostituì il grande magazzino previsto. Il braccio parallelo a corso Buenos Aires avrebbe dovuto, nelle intenzioni di Bottoni, configurarsi come parte di un percorso di gallerie pedonali pubbliche che avrebbe costeggiato l'intero viale. Era inoltre prevista una copertura piana invece di quella a falde inclinate che fu effettivamente realizzata, su insistente richiesta della committenza, a chiudere il piano dell'attico introdotto per soddisfare le esigenze di sfruttamento della massima cubatura concessa dal Piano Regolatore. Le facciate avrebbero dovuto essere rivestite in gres o in tessere di ceramica lucida, ma per questioni economiche alla fine fu scelto il cemento che, dall'ipotesi avanzata e sostenuta dai progettisti di una finitura spuntata a punta grossa, fu alla fine realizzato come raspato per il corpo della torre.
Bibliografia
| Autore | Anno | Titolo | Edizione | Luogo Edizione | Pagina | Specifica |
|---|---|---|---|---|---|---|
| Bottoni Piero | 1954 | Antologia di edifici moderni in Milano | Editoriale Domus | Milano | 33-37 | No |
| Pagani Carlo | 1955 | Architettura italiana oggi | Hoepli | Milano | No | |
| Pica Agnoldomenico | 1964 | Architettura moderna in Milano. Guida | Ariminum | Milano | 49 | No |
| Consonni Giancarlo, Meneghetti Lodovico, Patetta Luciano | 1973 | Piero Bottoni. Quarant'anni di battaglie per l'architettura | Controspazio n. 4 | 48-51 | No | |
| Montero Enrico | 1980 | Città e architettura nel razionalismo italiano | Casabella n. 463-464 | 74-80 | No | |
| Grandi Maurizio, Pracchi Attilio | 1980 | Milano. Guida all'architettura moderna | Zanichelli | Bologna | 249 | No |
| Consonni Giancarlo, Meneghetti Lodovico, Tonon Graziella (a cura di) | 1990 | Piero Bottoni. Opera completa | Fabbri | Milano | 337-340 | Si |
| Rumi Giorgio, Mazzotta Buratti Adele, Cova Alberto (a cura di) | 1990 | Milano ricostruisce. 1945-54 | Cassa di Risparmio delle Provincie Lombarde | Milano | 181 | No |
| Zilioli Amedeo | 1994 | Piero Bottoni. Edificio polifunzionale a Milano | Alinea | Firenze | Si | |
| Consonni Giancarlo, Meneghetti Lodovico, Tonon Graziella (a cura di) | 2001 | Piero Bottoni e Milano. Case, quartieri, paesaggi 1926-1970 | La vita felice | Milano | No | |
| Gramigna Giuliana, Mazza Sergio | 2001 | Milano. Un secolo di architettura milanese dal Cordusio alla Bicocca | Hoepli | Milano | 222 | No |
| Berizzi Carlo | 2015 | Architectural Guide. Milan. Buildings and Projects since 1919 | DOM Publishers | Berlin | 228-229 | No |
| Andreola Florencia, Biraghi Marco, Lo Ricco Gabriella (a cura di) | 2018 | Milano. Guida all'architettura moderna | Hoepli | Milano | 138 | No |
Fonti Archivistiche
| Titolo | Autore | Ente | Descrizione | Conservazione |
|---|---|---|---|---|
| Archivio Piero Bottoni | Piero Bottoni | Politecnico di Milano, Dipartimento Architettura e Studi Urbani, Milano | Edificio in corso Buenos Aires, Milano | |
| Archivio Civico di Milano | Comune di Milano |
Allegati
Criteri
| 1. L’edificio o l’opera di architettura è citata in almeno tre studi storico-sistematici sull’architettura contemporanea di livello nazionale e/o internazionale. | |
| 3. L’edificio o l’opera di architettura ha una riconosciuta importanza nel panorama dell’architettura nazionale, degli anni nei quali è stata costruita, anche in relazione ai contemporanei sviluppi sia del dibattito, sia della ricerca architettonica nazionale e internazionale, | |
| 4. L’edificio o l’opera di architettura riveste un ruolo significativo nell’ambito dell’evoluzione del tipo edilizio di pertinenza, ne offre un’interpretazione progressiva o sperimenta innovazioni di carattere distributivo e funzionale. | |
| 6. L’edificio o l’opera di architettura è stata progettata da una figura di rilievo nel panorama dell’architettura nazionale e/o internazionale. |
Sitografia ed altri contenuti online
| Titolo | Url |
|---|---|
| Archivio Piero Bottoni, Politecnico di Milano | Visualizza |
| Enciclopedia Treccani - Piero Bottoni | Visualizza |
Crediti Scheda
Enti di riferimento: DARCTitolare della ricerca: Politecnico di Milano - Dipartimento di Industrial Design, Arti, Comunicazione e Moda
Responsabile scientifico: Fulvo Irace, Graziella Leyla Ciagà
Scheda redatta da
creata il 31/12/2012
ultima modifica il 05/02/2025
Revisori:
Alberto Coppo 2022

























