QUARTIERE BICOCCA
Scheda Opera
- Comune: Milano
- Denominazione: QUARTIERE BICOCCA
- Indirizzo: Viale Fulvio Testi, via dell'innovazione, via Luigi Emanueli
- Data: 1985 - 2005
- Tipologia: Quartieri
- Autori principali: Associati International Gregotti, Architetti Associati Studio Valle
Descrizione
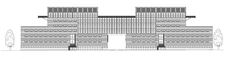
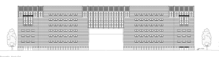
Il progetto di conversione funzionale delle aree della Bicocca una volta occupate dagli stabilimenti della Pirelli, è certamente uno degli eventi più significativi della storia urbanistica della Milano di fine millennio, che ha segnato il dibattito sulla riqualificazione delle aree industriali dismesse non solo italiane.
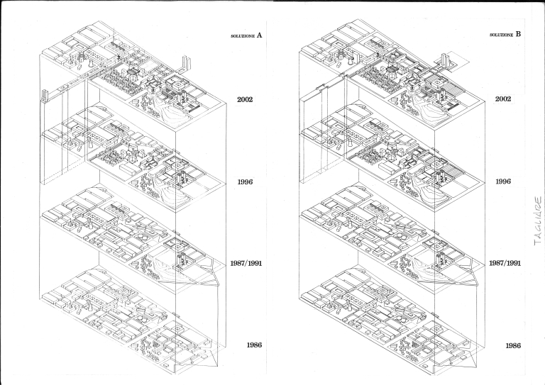
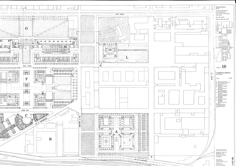
Il piano - esteso a una superficie di oltre 700.000 metri quadri - prende avvio nel 1985 quando la Pirelli, in accordo con il Comune e la Regione Lombardia, bandisce un concorso internazionale ad inviti volto a trasformare le aree di sua proprietà in un nuovo polo tecnologico a scala nazionale. Dopo un secondo grado di giudizio, nel 1988 l'ambizioso progetto viene assegnato alla Gregotti Associati, che negli anni a venire disegnerà il masterplan dell'intero quartiere e la gran parte dei suoi edifici, calibrato mix di ristrutturazione delle preesistenze ed edificazioni ex-novo. Unica eccezione è la sede della Deutsche Bank, realizzata da Gino Valle tra il 1997 e il 2005.
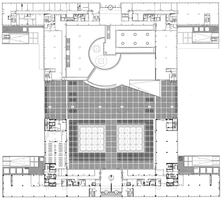
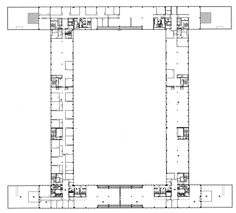
L'organizzazione del comparto urbano si basa sulla sua suddivisione in tre fasce, parallele alla linea ferroviaria che delimita l'area d'intervento, organizzate in grandi blocchi attraverso cui viene riproposto il modello dell'isolato urbano a corte. I blocchi, posizionati lungo una maglia ortogonale con giacitura nord-sud che recupera la distribuzione del preesistente stabilimento, sono concepiti come una serie di piazze pubbliche, attraversate da percorsi pedonali. Nella zona al confine con la stazione ferroviaria di Greco vengono disegnati edifici a destinazione terziaria e universitaria dalle possenti volumetrie, che costituiscono il margine dell'intervento; sull'altro margine del piano, invece, viene ipotizzata la costruzione di una collina artificiale che ricalca l'esperienza del Monte Stella al QT8: non un cumulo di macerie frutto dei bombardamenti, ma i resti degli edifici industriali demoliti.
Info
- Progetto: 1985 - 2005
- Esecuzione: 1991 - 2005
- Committente: Società Pirelli
- Proprietà: Nessuna opzione
Autori
| Nome | Cognome | Ruolo | Fase Progetto | Archivio Architetti | Url Profilo | Autore Principale |
|---|---|---|---|---|---|---|
| Antonio | Angelillo | Collaboratore | Progetto | NO | ||
| Andrea | Aparo - ENEA | Collaboratore | Progetto | NO | ||
| Walter | Arno Noebel | Collaboratore | Progetto | NO | ||
| Spartaco | Azzola | Collaboratore | Progetto | NO | ||
| Stefano | Bellinzona | Collaboratore | Progetto | NO | ||
| Franco | Bertossi | Collaboratore | Progetto | NO | ||
| Sergio | Butti | Collaboratore | Progetto | NO | ||
| Francesca | Cadeo | Collaboratore | Progetto | NO | ||
| Augusto | Cagnardi | Progetto architettonico | Progetto | NO | ||
| Cristina | Calligaris | Collaboratore | Progetto | NO | ||
| Piero | Carlucci | Collaboratore | Progetto | NO | ||
| Rita | Cattaneo | Collaboratore | Progetto | NO | ||
| Pier Luigi | Cerri | Progetto architettonico | Progetto | NO | ||
| Andrea | Chiari Gaggia | Collaboratore | Progetto | NO | ||
| Luciano | Claut | Collaboratore | Progetto | NO | ||
| Paolo | Colao | Collaboratore | Progetto | NO | ||
| Marco | Contini | Collaboratore | Progetto | NO | ||
| Davide | Cornago | Collaboratore | Progetto | NO | ||
| Giulia | Depero | Collaboratore | Progetto | NO | ||
| Sylvie | Donnadieu | Collaboratore | Progetto | NO | ||
| Mauro | Galantino | Collaboratore | Progetto | Visualizza Profilo | https://www.maurogalantinoarchitetto.com/ | NO |
| Claire | Gazeau | Collaboratore | Progetto | NO | ||
| Raffaele | Ghillani | Collaboratore | Progetto | NO | ||
| Gaetano | Gramegna | Collaboratore | Progetto | NO | ||
| Vittorio | Gregotti | Progetto architettonico | Progetto | NO | ||
| Associati International | Gregotti | Progetto architettonico | Progetto | Visualizza Profilo | https://siusa.archivi.beniculturali.it/cgi-bin/siusa/pagina.pl?TipoPag=prodente&Chiave=19482 | NO |
| Associati International | Gregotti | Coordinatore | Progetto | Visualizza Profilo | https://siusa.archivi.beniculturali.it/cgi-bin/siusa/pagina.pl?TipoPag=prodente&Chiave=19482 | SI |
| Marion | Hauff | Collaboratore | Progetto | NO | ||
| Lorenzo | Lotti | Collaboratore | Progetto | NO | ||
| Andrea | Mambriani | Collaboratore | Progetto | NO | ||
| Franco | Meffeis | Coordinatore | Progetto | NO | ||
| Stefano | Parodi | Collaboratore | Progetto | NO | ||
| Sergio | Pascolo | Collaboratore | Progetto | NO | ||
| Claudia | Pedacci | Collaboratore | Progetto | NO | ||
| Carlo | Pirola | Collaboratore | Progetto | NO | ||
| Michele | Reginadi | Progetto architettonico | Progetto | NO | ||
| Christiane | Sattler Zicari | Collaboratore | Progetto | NO | ||
| Donato | Severo | Collaboratore | Progetto | NO | ||
| Architetti Associati | Studio Valle | Progetto architettonico | Progetto | Visualizza Profilo | https://siusa.archivi.beniculturali.it/cgi-bin/siusa/pagina.pl?TipoPag=prodente&Chiave=58225 | SI |
| Renzo | Vallebuona | Collaboratore | Progetto | NO |
- Strutture: tecniche miste
- Materiale di facciata: tecniche miste
- Coperture: piane, praticabili e non; a falde, con coperture in vari materiali
- Serramenti: in alluminio; in legno
- Stato Strutture: Buono
- Stato Materiale di facciata: Buono
- Stato Coperture: Buono
- Stato Serramenti: Buono
- Vincolo: Non Vincolata
- Provvedimenti di tutela: Nessuna opzione
- Data Provvedimento:
- Riferimento Normativo:
- Altri Provvedimenti:
- Foglio Catastale: -
- Particella: -
Note
Nel 2008 la Pirelli ha bandito un nuovo concorso a inviti, volto a promuovere la costruzione di un nuovo quartiere residenziale al margine nord del piano di Gregotti. E' risultato vincitore lo studio Pascolo, incaricato di redigere il masterplan di un comparto diviso in quattro settori e dell'edificazione di uno di questi. Nelle intenzioni della Pirelli, gli altri lotti dovrebbero invece essere affidati a progettisti di chiara fama.
Bibliografia
| Autore | Anno | Titolo | Edizione | Luogo Edizione | Pagina | Specifica |
|---|---|---|---|---|---|---|
| 1986 | Domus n. 673 | No | ||||
| Muratore Giorgio, Capuano Alessandra, Garofalo Francesco, Pellegrini Ettore | 1988 | Italia. Gli ultimi trent'anni | Zanichelli | Bologna | 176; Scheda n. 160 | No |
| Basso Peressut Luca, Valente Ilaria (a cura di) | 1989 | Milano. Architetture per la città 1980-1990 | Editoriale Domus | Milano | No | |
| 1990 | L'Arca n. 40 | No | ||||
| Oechslin Werner | 1990 | Gregotti Associati. 1973-1988 | Electa | Milano | Si | |
| Gamba Roberto | 1995 | Progetto Bicocca | L'Industria delle Costruzioni n. 288 | 62-63 | Si | |
| Bastianello Marta (a cura di) | 1995 | Progetto Bicocca. Un contributo per Milano policentrica | Electa | Milano | Si | |
| 1999 | Domus n. 815 | No | ||||
| Gregotti Vittorio | 1999 | Milano. La Bicocca | Area n. 42 | 98-115 | Si | |
| Molinari Luca (a cura di) | 1999 | Progetto Bicocca. 1985-1998 | Skira | Genève | Si | |
| Martinotti Guido, Gregotti Vittorio | 2000 | Bicocca, il Nord Est di Milano | Abitare n. 394 | 146-157 | Si | |
| 2001 | Gregotti Associati. Centro Direzionale Pirelli Bicocca | Domus n. 690 (supplemento) | 40-43 | Si | ||
| Gramigna Giuliana, Mazza Sergio | 2001 | Milano. Un secolo di architettura milanese dal Cordusio alla Bicocca | Hoepli | Milano | 528-535 | No |
| Molinari Luca | 2001 | La Bicocca abitata | Skira | Genève | Si | |
| Bolocan Goldstein Matteo | 2003 | Trasformazioni a Milano. Pirelli Bicocca, direttrice nord-est | Franco Angeli | Milano | Si | |
| Morpurgo Guido (a cura di) | 2005 | Progetto Bicocca. Headquarters Pirelli Real Estate | Skira | Milano | Si | |
| 2005 | Il nuovo quartier generale del gruppo Pirelli | ABCD n. 23 | 42-45 | Si | ||
| Brandolini Sebastiano | 2005 | Milano. Nuova architettura | Skira | Milano | 76-81 | No |
| Dell'Agnese Elena | 2005 | La Bicocca e il suo territorio. Memoria e progetto | Skira | Milano | Si | |
| Bricocoli Massimo, Curci Francesco, Savoldi Paola | 2014 | Milano, Bicocca. L’architettura del programma | Urbanistica n. 153 | 64-72 | Si | |
| Berizzi Carlo | 2015 | Architectural Guide. Milan. Buildings and Projects since 1919 | DOM Publishers | Berlin | 198-199; 200; 201 | No |
| Andreola Florencia, Biraghi Marco, Lo Ricco Gabriella (a cura di) | 2018 | Milano. L'architettura dal 1945 a oggi | Hoepli | Milano | 230-231 | No |
Fonti Archivistiche
| Titolo | Autore | Ente | Descrizione | Conservazione |
|---|---|---|---|---|
| Archivio fotografico Gregotti Associati | Vittorio Gregotti | CASVA - Centro di Alti Studi sulle Arti Visive, Milano | Quartiere Bicocca, Milano | |
| Fondo Gregotti Associati | Vittorio Gregotti | CASVA - Centro di Alti Studi sulle Arti Visive, Milano | Quartiere Bicocca, Milano |
Allegati
Criteri
| 1. L’edificio o l’opera di architettura è citata in almeno tre studi storico-sistematici sull’architettura contemporanea di livello nazionale e/o internazionale. | |
| 2. L’edificio o l’opera di architettura è illustrata in almeno due riviste di architettura di livello nazionale e/o internazionale. | |
| 4. L’edificio o l’opera di architettura riveste un ruolo significativo nell’ambito dell’evoluzione del tipo edilizio di pertinenza, ne offre un’interpretazione progressiva o sperimenta innovazioni di carattere distributivo e funzionale. | |
| 5. L’edificio o l’opera di architettura introduce e sperimenta significative innovazioni nell’uso dei materiali o nell’applicazione delle tecnologie costruttive. | |
| 6. L’edificio o l’opera di architettura è stata progettata da una figura di rilievo nel panorama dell’architettura nazionale e/o internazionale. | |
| 7. L’edificio o l’opera di architettura si segnala per il particolare valore qualitativo all’interno del contesto urbano in cui è realizzata. |
Sitografia ed altri contenuti online
| Titolo | Url |
|---|---|
| CASVA Milano - Vittorio Gregotti | Visualizza |
| Enciclopedia Treccani - Vittorio Gregotti | Visualizza |
| Studio Valle Architetti Associati | Visualizza |
Crediti Scheda
Enti di riferimento: DARCTitolare della ricerca: Politecnico di Milano - Dipartimento di Industrial Design, Arti, Comunicazione e Moda
Responsabile scientifico: Fulvo Irace, Graziella Leyla Ciagà
Scheda redatta da
creata il 31/12/2012
ultima modifica il 06/02/2025
Revisori:
Alberto Coppo 2022






















































