QUARTIERE PIRELLI
Scheda Opera
- Comune: Cinisello Balsamo
- Denominazione: QUARTIERE PIRELLI
- Indirizzo: Via Guglielmo Marconi
- Data: 1958 - 1960
- Tipologia: Quartieri
- Autori principali: Vico Magistretti, Eugenio Gentili Tedeschi
Descrizione
Il quartiere Pirelli sorge su un'area di oltre ventiseimila metri quadrati, a cavallo del confine tra Cinisello Balsamo e Milano, nei pressi di viale Sarca. È interamente progettato a partire dalle tecnologie costruttive prescelte dal gruppo di progettisti, che puntano a innovative soluzioni nel campo della prefabbricazione per abbattere i costi.
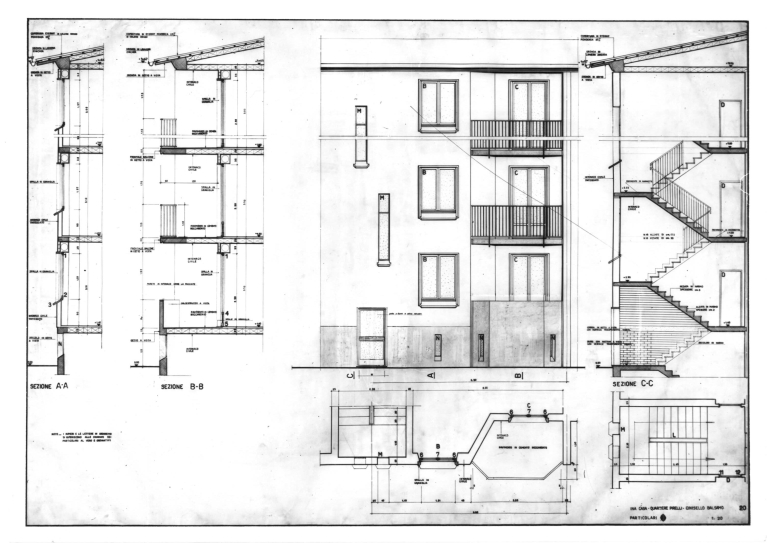
Dal punto di vista planimetrico, l'insediamento è configurato come un vasto giardino pubblico - attrezzato con campo da calcio, aree gioco, percorsi pedonali e piste ciclabili - in cui si collocano due diverse tipologie edilizie: quattro edifici in linea di tre piani fuori terra (articolati in piante a C o a L e posti lungo i margini del lotto) e tre torri di nove piani, a pianta quadrata, per un totale di 290 alloggi. I piani terra delle torri sono lasciati liberi, così come avviene per i blocchi di raccordo tra le stecche orizzontali, dentro cui generalmente si collocano gli impianti di risalita, ma che possono essere occupati anche da alloggi di piccole dimensioni. In questi corpi di fabbrica sono distribuiti dieci appartamenti per piano, di varia metratura, mentre per gli edifici alti il progetto ha previsto la realizzazione di quattro unità per ogni livello. Fanno eccezione i piani attici delle torri, in cui una vasta loggia su cui si proiettano gli ambienti domestici svuota quasi interamente due dei fronti, alterando dimensioni e distribuzione.
Dal punto di vista costruttivo, l'interesse dell'intervento risiede nella soluzione delle gabbie prefabbricate in cemento armato delle torri, che sono poi chiuse da tamponamenti in muratura finiti con pittura al silicone; per gli edifici bassi, è stato invece utilizzato un più tradizionale intonaco civile Terranova. Per tutti i blocchi, infine, le coperture sono in lastre di eternit, i solai in laterizio armato e le aperture sottolineate da cornici in graniglia nera, utilizzata anche per evidenziare in facciata la scansione strutturale delle torri.
Info
- Progetto: 1958 - 1960
- Esecuzione: 1958 - 1960
- Committente: INA-Casa
- Proprietà: Proprietà privata
Autori
| Nome | Cognome | Ruolo | Fase Progetto | Archivio Architetti | Url Profilo | Autore Principale |
|---|---|---|---|---|---|---|
| Egidio | Dell'Orto | Progetto architettonico | Progetto | NO | ||
| Eugenio | Gentili Tedeschi | Progetto architettonico | Progetto | Visualizza Profilo | https://siusa.archivi.beniculturali.it/cgi-bin/pagina.pl?TipoPag=prodpersona&Chiave=21418 | SI |
| Vico | Magistretti | Progetto architettonico | Progetto | Visualizza Profilo | https://archivio.vicomagistretti.it/magistretti/ | SI |
| Mario | Righini | Progetto architettonico | Progetto | NO |
- Strutture: travi e pilastri in cemento armato (corpi bassi); gabbie prefabbricate in calcestruzzo armato (torri); solai in laterizio armato
- Materiale di facciata: tamponamenti in mattoni finiti a intonaco civile tipo Terranova (edifici in linea) o con in pittura al silicone (torri); graniglia nera (cornici delle aperture)
- Coperture: a falde, con manto in lastre di eternit
- Serramenti: in legno laccato
- Stato Strutture: Buono
- Stato Materiale di facciata: Buono
- Stato Coperture: Buono
- Stato Serramenti: Buono
- Vincolo: Non Vincolata
- Provvedimenti di tutela: Nessuna opzione
- Data Provvedimento:
- Riferimento Normativo:
- Altri Provvedimenti:
- Foglio Catastale: 27
- Particella: 135-1
Note
Il quartiere Pirelli nasce come progetto di espansione degli insediamenti residenziali destinati agli operai dell'omonima fabbrica, che aveva sede nell'area intorno a viale Sarca e che è stata riqualificata - dopo il trasferimento degli impianti - a partire da un masterplan disegnato dallo studio Gregotti Associati, attuato tra il 1986 e il 1999.
Bibliografia
| Autore | Anno | Titolo | Edizione | Luogo Edizione | Pagina | Specifica |
|---|---|---|---|---|---|---|
| De Carli Cecilia | 1962 | Quartiere Pirelli a Cinisello Balsamo | L'Architettura. Cronache e Storia n. 83 | 294-299 | Si | |
| Pica Agnoldomenico | 1964 | Architettura moderna in Milano. Guida | Ariminum | Milano | 57 | No |
| Grandi Maurizio, Pracchi Attilio | 1980 | Milano. Guida all'architettura moderna | Zanichelli | Bologna | 277 | No |
| Muratore Giorgio, Capuano Alessandra, Garofalo Francesco, Pellegrini Ettore | 1988 | Italia. Gli ultimi trent'anni | Zanichelli | Bologna | 138; Scheda n. 44 | No |
| Irace Fulvio, Pasca Vanni | 1999 | Vico Magistretti. architetto e designer | Electa | Milano | 52-53 | Si |
Fonti Archivistiche
| Titolo | Autore | Ente | Descrizione | Conservazione |
|---|---|---|---|---|
| Fondo Eugenio Gentili Tedeschi | Eugenio Gentili Tedeschi | Archivio di Stato, Milano | Quartiere Pirelli a Cinisello Balsamo | |
| Archivio Vico Magistretti | Vico Magistretti | Fondazione Vico Magistretti, Milano | Quartiere Pirelli, Cinisello Balsamo |
Allegati
Criteri
| 1. L’edificio o l’opera di architettura è citata in almeno tre studi storico-sistematici sull’architettura contemporanea di livello nazionale e/o internazionale. | |
| 4. L’edificio o l’opera di architettura riveste un ruolo significativo nell’ambito dell’evoluzione del tipo edilizio di pertinenza, ne offre un’interpretazione progressiva o sperimenta innovazioni di carattere distributivo e funzionale. | |
| 5. L’edificio o l’opera di architettura introduce e sperimenta significative innovazioni nell’uso dei materiali o nell’applicazione delle tecnologie costruttive. | |
| 6. L’edificio o l’opera di architettura è stata progettata da una figura di rilievo nel panorama dell’architettura nazionale e/o internazionale. | |
| 7. L’edificio o l’opera di architettura si segnala per il particolare valore qualitativo all’interno del contesto urbano in cui è realizzata. |
Sitografia ed altri contenuti online
| Titolo | Url |
|---|---|
| Archivio Vico Magistretti, Quartiere Pirelli | Visualizza |
| SIUSA - Vico Magistretti | Visualizza |
| Dizionario biografico degli Italiani - Vico Magistretti | Visualizza |
| Enciclopedia Treccani - Vico Magistretti | Visualizza |
| SAN Archivi degli Architetti - Vico Magistretti | Visualizza |
Crediti Scheda
Enti di riferimento: DARCTitolare della ricerca: Politecnico di Milano - Dipartimento di Industrial Design, Arti, Comunicazione e Moda
Responsabile scientifico: Fulvo Irace, Graziella Leyla Ciagà
Scheda redatta da
creata il 31/12/2012
ultima modifica il 19/04/2024
Revisori:
Alberto Coppo 2022








