CHIESA E COMPLESSO PARROCCHIALE DI SAN GIOVANNI BATTISTA ALLA CRETA
Scheda Opera
- Comune: Milano
- Denominazione: CHIESA E COMPLESSO PARROCCHIALE DI SAN GIOVANNI BATTISTA ALLA CRETA
- Indirizzo: Piazza San Giovanni Battista alla Creta N. 11
- Data: 1957 - 1961
- Tipologia: Edifici per il culto
- Autori principali: Giovanni Muzio
Descrizione
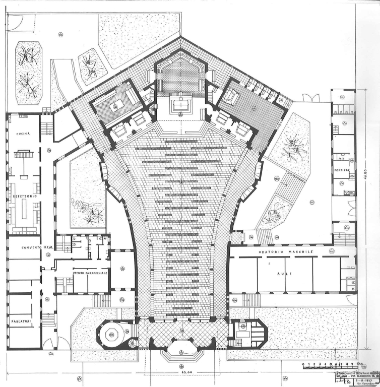
Il complesso francescano di San Giovanni Battista alla Creta, commissionato a Muzio nell'ambito del piano per le nuove chiese di Milano, include l'omonima basilica, un teatro con capienza di seicento posti (ricavato sotto l'invaso religioso), un oratorio e un piccolo convento per sedici frati.
La planimetria è costruita intorno alla figura stilizzata di un giglio che Muzio trasforma nel volume della chiesa, a cui si affiancano i corpi minori - in linea - che ospitano le altre attività previste dal progetto e che ruotano intorno a una vasta piazza-giardino.
Introdotta da una breve scalinata, l'aula vera e propria è preceduta da un nartece allungato ai lati in cui sono collocati il battistero, una cappella funeraria e la bussola che disimpegna l'ingresso principale e quelli alle navatelle laterali, di altezza ridotta rispetto alla navata centrale. Lo scarto volumetrico tra le parti, sottolineato internamente da due file di pilastri in cemento armato a vista, viene sfruttato per inserire sequenze apparentemente casuali di feritoie verticali, che sono la principale fonte di illuminazione della chiesa.
All'esterno il complesso è interamente realizzato con mattoni a vista e dominato dall'imponente copertura della chiesa, che aggetta sul sagrato per oltre cinque metri e che è retta da travi trasversali a prisma triangolare. Ispirata alla figura della tenda, la sagoma della copertura è stata letta dalla critica come un richiamo alle chiese di Raincy e Montmagny di Auguste Perret (Mezzanotte 1974, p. 124).
Info
- Progetto: 1957 - 1961
- Esecuzione: 1957 - 1961
- Committente: Curia Diocesana di Milano, Comitato Nuove Chiese di Milano
- Proprietà: Proprietà Ente religioso
Autori
| Nome | Cognome | Ruolo | Fase Progetto | Archivio Architetti | Url Profilo | Autore Principale |
|---|---|---|---|---|---|---|
| Giuseppe | Borio | Progetto strutturale | Progetto | NO | ||
| Borio | Mangiarotti | Direzione lavori | Esecuzione | NO | ||
| Giovanni | Muzio | Progetto architettonico | Progetto | Visualizza Profilo | https://www.studioarchitetturamuzio.it/archiviogiovannimuzio | SI |
- Strutture: travi trasversali a prisma triangolare (copertura della chiesa) e pilastri in cemento armato e laterizio
- Materiale di facciata: mattoni a vista
- Coperture: a falde (corpi minori); a tenda (chiesa)
- Serramenti: in legno
- Stato Strutture: Buono
- Stato Materiale di facciata: Buono
- Stato Coperture: Buono
- Stato Serramenti: Buono
- Vincolo: Non Vincolata
- Provvedimenti di tutela: Nessuna opzione
- Data Provvedimento:
- Riferimento Normativo:
- Altri Provvedimenti:
- Foglio Catastale: 463
- Particella: A
Note
La chiesa di San Giovanni Battista alla Creta riprende alcuni dei temi già affrontati da Muzio con i santuari di Sant'Antonio a Cremona (1936-1939) e di Sant'Antonio da Padova alla Brunella a Varese (1951-1964), che affrontano il tema dello spazio sacro come luogo coperto da una tenda. Il progetto presenta poi molte assonanze con quello, non realizzato, per il santuario di Sant'Antonio al quartiere Valtesse di Bergamo (1961).
Bibliografia
| Autore | Anno | Titolo | Edizione | Luogo Edizione | Pagina | Specifica |
|---|---|---|---|---|---|---|
| 1959 | Una facciata a Milano | Comunità n. 3 | 48-65 | Si | ||
| Faccioli Arturo (a cura di) | 1962 | Le nuove chiese di Milano. 1950-1960 | Arcivescovado, Comitato per le nuove chiese | Milano | 106-110 | No |
| Mezzanotte Gianni | 1974 | Giovanni Muzio. Architetture francescane | Eris | Milano | 121-131 | Si |
| Fiorio Maria Teresa | 1985 | Le chiese di Milano | Electa | Milano | 357 | No |
| 1987 | Borio Mangiarotti. Costruzioni civili e industriali. 1920-1986 | Grafiche Ghezzi | Milano | 64-65 | Si | |
| Boidi Sergio, Buzzi Ceriani Franco (a cura di) | 1994 | L'architettura di Giovanni Muzio | Abitare Segesta | Milano | 62-72 | No |
| De Carli Cecilia (a cura di) | 1994 | Le nuove chiese della Diocesi di Milano. 1945-1993 | Vita e Pensiero | Milano | 138 | No |
| Irace Fulvio | 1994 | Giovanni Muzio. 1893-1982 Opere | Electa | Milano | 203-230 | No |
Fonti Archivistiche
| Titolo | Autore | Ente | Descrizione | Conservazione |
|---|---|---|---|---|
| Archivio Giovanni e Lorenzo Muzio | Giovanni e Lorenzo Muzio | Fondo privato, Milano | Chiesa e Convento San Giovanni Battista alla Creta, Milano |
Allegati
Criteri
| 1. L’edificio o l’opera di architettura è citata in almeno tre studi storico-sistematici sull’architettura contemporanea di livello nazionale e/o internazionale. | |
| 4. L’edificio o l’opera di architettura riveste un ruolo significativo nell’ambito dell’evoluzione del tipo edilizio di pertinenza, ne offre un’interpretazione progressiva o sperimenta innovazioni di carattere distributivo e funzionale. | |
| 6. L’edificio o l’opera di architettura è stata progettata da una figura di rilievo nel panorama dell’architettura nazionale e/o internazionale. | |
| 7. L’edificio o l’opera di architettura si segnala per il particolare valore qualitativo all’interno del contesto urbano in cui è realizzata. |
Sitografia ed altri contenuti online
| Titolo | Url |
|---|---|
| Dizionario biografico degli Italiani - Giovanni Muzio | Visualizza |
Crediti Scheda
Enti di riferimento: DARCTitolare della ricerca: Politecnico di Milano - Dipartimento di Industrial Design, Arti, Comunicazione e Moda
Responsabile scientifico: Fulvo Irace, Graziella Leyla Ciagà
Scheda redatta da
creata il 31/12/2012
ultima modifica il 02/05/2024
Revisori:
Alberto Coppo 2022









