Censimento delle architetture italiane dal 1945 ad oggi

CASA CHINA-BINO

Scheda Opera

  • Estratto della mappa del Comune di Ivrea con l’identificazione del lotto destinato alla costruzione della casa di Battista China-Bino
  • Planimetria di Villa China-Bino, con segnatura delle specie arboree per l’approntamento del giardino in progetto
  • Progetto definitivo. Prospetto nord-est
  • Progetto definitivo. Prospetto nord-ovest
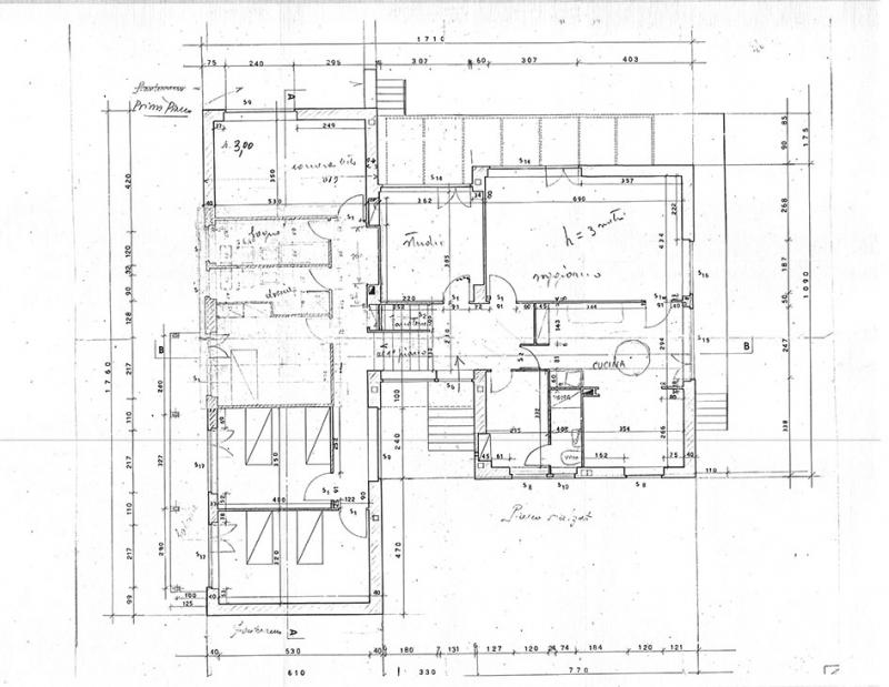
  • Pianta del piano terreno
  • Pianta del piano rialzato
  • Progetto. Prospetto sud-ovest
  • Progetto. Prospetto nord-est
  • Progetto. Prospetto sud-est
  • Progetto. Prospetto nord-ovest
  • Sezione
  • Sezione
  • Pianta della ristrutturazione interna negli anni Duemila
  •  Vista esterna, settembre 1960
  • Interno, settembre 1960
  • Vista esterna, settembre 1960
  • Vista esterna, settembre 1960
  • Vista esterna, settembre 1960
  • Vista esterna, settembre 1960
  • Particolare del manto di copertura originario, ottobre 1998
  • Vista esterna, giugno 2007
  • Vista esterna, giugno 2007
  • Vista esterna, marzo 2008
  • Vista esterna, marzo 2008
  • Vista esterna, marzo 2008
  • Vista esterna, marzo 2008
  • Vista esterna, luglio 2010
  • Particolare dei frangisole, ottobre 2000
  • Particolari del nuovo manto di copertura, 2011
  • Particolari del nuovo manto di copertura, 2011
  • Interni, 2010
  • Interni, 2010
  • Interni, 2010
  • Interni, 2010
  • Ortofoto di Villa China-Bino immersa in un contesto collinare verde e confinante con altri siti residenziali coevi, si distingue per l'impiego del manto di copertura in lamiera chiara, coerente con la conformazione originaria delle falde
  • Comune: Ivrea
  • Località: Crist
  • Denominazione: CASA CHINA-BINO
  • Indirizzo: Via del Crist N. 5
  • Data: 1951 - 1953
  • Tipologia: Abitazioni unifamiliari
  • Autori principali: Emilio Aventino Tarpino, Ufficio Consulenza Case Dipendenti Olivetti UCCD
Descrizione

1. Opera originaria

«Data seduta commissione edilizia: 13.04.1951; Data concessione: 16.04.1951; Abitabilità: 04.03.1953». (Ufficio Tecnico comunale di Ivrea, protocollo n. 1559)

«Casa China-Bino: 1951 / 1963; ubicazione: località Crist, via del Crist, n. 5; progettista: Emilio Aventino Tarpino / UCCD; n. 8 / tavola D / R0044363. L’edificio a due piani fuori terra presenta un andamento planimetrico articolato in più corpi di fabbrica collegati che danno origine a una composizione dinamica, accentuata dall’utilizzo di tetti a falda unica che esaltano l’espressività di una composizione basata sull’incastro di volumi bianchi semplici di chiara ispirazione razionalista. La caratteristica saliente della costruzione è costituita da una struttura frangisole collocata sulla facciata a sud che evoca atmosfere mediterranee, insolite anche per le realizzazioni dell’Ufficio Consulenza Case Dipendenti Olivetti (UCCD). La struttura è in calcestruzzo, le murature in laterizio sono finite a intonaco verniciato di colore bianco nella porzione superiore e rivestite in pietra locale alla base, secondo un modello compositivo ricorrente nelle realizzazioni dell’UCCD dei primi anni cinquanta». (Patrizia Bonifazio, Enrico Giacopelli, Il paesaggio futuro. Letture e norme per il patrimonio dell'architettura moderna a Ivrea, Allemandi, Torino 2007, p. 68)

«L’edificio si sviluppa su due piani fuori terra ed è costituito da più corpi di fabbrica, semplici volumi bianchi, collegati tra loro e coperti da tetti a falda unica. La struttura portante è in calcestruzzo, il basamento è in pietra, le superfici intonacate a calce bianca, frangisole sul lato sud dell’edificio». (Maria Adriana Giusti, Rosa Tamborrino, Guida all'architettura del Novecento in Piemonte (1902-2006), Allemandi, Torino 2008, p. 175)


2. Consistenza dell’opera al 2019 / Stato attuale

L’opera mantiene la destinazione d’uso originaria a residenza unifamiliare. Non presenta, all’esterno, trasformazioni che abbiano alterato i caratteri percettivi del progetto originario, a eccezione della sostituzione del manto di copertura. Originariamente in Eternit, negli anni Duemila la copertura è stata bonificata e sostituita secondo le norme della L. R. 35/95 con pannelli coibentati in lamiera coibentata grigia, compatibilmente con l’inclinazione e la conformazione originaria delle falde.
Negli anni Duemila, l’interno è stato oggetto di un intervento di ristrutturazione per la realizzazione di due servizi igienici nella zona notte, a un livello sopraelevato rispetto alla zona giorno, che non ha subito modifiche di forma e funzione. La villa è in buono stato di conservazione. L’osservazione esterna rivela una continuità e una manutenzione costante e consapevole, grazie alla cura e all’attenzione da parte della attuale proprietà.

(Scheda a cura di Bianca Guiso e Monica Naretto, DAD - Politecnico di Torino)

Info
  • Progetto: 1951 -
  • Esecuzione: - 1953
  • Tipologia Specifica: Casa unifamiliare
  • Committente: Battista China-Bino
  • Proprietà: Proprietà privata
  • Destinazione originaria: Casa unifamiliare
  • Destinazione attuale: Casa unifamiliare
Autori
Nome Cognome Ruolo Fase Progetto Archivio Architetti Url Profilo Autore Principale
Ufficio Consulenza Case Dipendenti Olivetti UCCD Progetto architettonico Progetto SI
Emilio Aventino Tarpino Progetto architettonico Progetto SI
  • Strutture: Struttura in calcestruzzo
  • Materiale di facciata: Muratura in laterizio rifinita a intonaco verniciato di bianco nella porzione superiore dell’edificio e rivestita in pietra locale nella parte inferiore
  • Coperture: A tre falde con orditura in legno e manto in fibrocemento, poi sostituito
  • Serramenti: Serramenti in legno
  • Stato Strutture: Buono
  • Stato Materiale di facciata: Buono
  • Stato Coperture: Buono
  • Stato Serramenti: Buono

													Array
(
    [id_opera] => 2458
    [codice] => TO074
    [denominazione] => CASA CHINA-BINO
    [regione] => Piemonte
    [provincia] => Torino
    [comune] => Ivrea
    [localita] => Crist
    [indirizzo] => Via del Crist N. 5
    [id_categoria] => 2
    [id_tipologia] => 3
    [tipologia_specifica] => Casa unifamiliare 
    [anno_inizio_progetto] => 1951
    [anno_fine_progetto] => 
    [anno_inizio_esecuzione] => 
    [anno_fine_esecuzione] => 1953
    [classificazione] => 
    [id_livello_scheda] => 1
    [codice_iccd] => 
    [codice_benitutelati] => 
    [informazioni_architettoniche] => 1.	Opera originaria

«Data seduta commissione edilizia: 13.04.1951; Data concessione: 16.04.1951; Abitabilità: 04.03.1953». (Ufficio Tecnico comunale di Ivrea, protocollo n. 1559)

«Casa China-Bino: 1951 / 1963; ubicazione: località Crist, via del Crist, n. 5; progettista: Emilio Aventino Tarpino / UCCD; n. 8 / tavola D / R0044363. L’edificio a due piani fuori terra presenta un andamento planimetrico articolato in più corpi di fabbrica collegati che danno origine a una composizione dinamica, accentuata dall’utilizzo di tetti a falda unica che esaltano l’espressività di una composizione basata sull’incastro di volumi bianchi semplici di chiara ispirazione razionalista. La caratteristica saliente della costruzione è costituita da una struttura frangisole collocata sulla facciata a sud che evoca atmosfere mediterranee, insolite anche per le realizzazioni dell’Ufficio Consulenza Case Dipendenti Olivetti (UCCD). La struttura è in calcestruzzo, le murature in laterizio sono finite a intonaco verniciato di colore bianco nella porzione superiore e rivestite in pietra locale alla base, secondo un modello compositivo ricorrente nelle realizzazioni dell’UCCD dei primi anni cinquanta». (Patrizia Bonifazio, Enrico Giacopelli, Il paesaggio futuro. Letture e norme per il patrimonio dell'architettura moderna a Ivrea, Allemandi, Torino 2007, p. 68)

«L’edificio si sviluppa su due piani fuori terra ed è costituito da più corpi di fabbrica, semplici volumi bianchi, collegati tra loro e coperti da tetti a falda unica. La struttura portante è in calcestruzzo, il basamento è in pietra, le superfici intonacate a calce bianca, frangisole sul lato sud dell’edificio». (Maria Adriana Giusti, Rosa Tamborrino, Guida all'architettura del Novecento in Piemonte (1902-2006), Allemandi, Torino 2008, p. 175)


2.	Consistenza dell’opera al 2019 / Stato attuale

L’opera mantiene la destinazione d’uso originaria a residenza unifamiliare. Non presenta, all’esterno, trasformazioni che abbiano alterato i caratteri percettivi del progetto originario, a eccezione della sostituzione del manto di copertura. Originariamente in Eternit, negli anni Duemila la copertura è stata bonificata e sostituita secondo le norme della L. R. 35/95 con pannelli coibentati in lamiera coibentata grigia, compatibilmente con l’inclinazione e la conformazione originaria delle falde.
Negli anni Duemila, l’interno è stato oggetto di un intervento di ristrutturazione per la realizzazione di due servizi igienici nella zona notte, a un livello sopraelevato rispetto alla zona giorno, che non ha subito modifiche di forma e funzione. La villa è in buono stato di conservazione. L’osservazione esterna rivela una continuità e una manutenzione costante e consapevole, grazie alla cura e all’attenzione da parte della attuale proprietà. 

(Scheda a cura di Bianca Guiso e Monica Naretto, DAD - Politecnico di Torino)
    [committente] => Battista China-Bino 
    [foglio_catastale] => 
    [particella] => 
    [strutture] => Struttura in calcestruzzo
    [id_stato_struttura] => 2
    [materiale_facciata] => Muratura in laterizio rifinita a intonaco verniciato di bianco nella porzione superiore dell’edificio e rivestita in pietra locale nella parte inferiore
    [id_stato_facciata] => 2
    [coperture] => A tre falde con orditura in legno e manto in fibrocemento, poi sostituito
    [id_stato_coperture] => 2
    [serramenti] => Serramenti in legno 
    [id_stato_serramenti] => 2
    [destinazione_originaria] => Casa unifamiliare 
    [destinazione_attuale] => Casa unifamiliare 
    [trasformazioni] => 
    [id_tipo_proprieta] => 6
    [specifiche_proprieta] => 
    [id_tipo_provvedimento] => 1
    [data_provvedimento] => 
    [riferimento_normativo] => 
    [altri_provvedimenti] => 
    [vincolo] => 0
    [note] => Si ringrazia la famiglia China-Bino, proprietaria dell’edificio fino al 2012, per la collaborazione alle ricerche e la concessione del materiale fotografico e documentario dell’Archivio privato.
    [denominazione_aggregato] => 
    [latitude] => 45.467190
    [longitude] => 7.866550
    [score] => 5
    [id_user] => 0
    [status] => 1
    [date_add] => 2004-12-31 00:00:00
    [date_upd] => 2025-01-24 10:06:30
    [categoria] => B. Opera selezionata
    [tipologia] => Abitazioni unifamiliari
    [proprieta] => Proprietà privata
    [cat_autori] => Emilio Aventino Tarpino,Ufficio Consulenza Case Dipendenti Olivetti UCCD
    [id_regione] => 9
)
1
												
  • Vincolo: Non Vincolata
  • Provvedimenti di tutela: Nessuna opzione
  • Data Provvedimento:
  • Riferimento Normativo:
  • Altri Provvedimenti:
  • Foglio Catastale: -
  • Particella: -

Note

Si ringrazia la famiglia China-Bino, proprietaria dell’edificio fino al 2012, per la collaborazione alle ricerche e la concessione del materiale fotografico e documentario dell’Archivio privato.

Bibliografia
Autore Anno Titolo Edizione Luogo Edizione Pagina Specifica
Bonifazio Patrizia, Giacopelli Enrico 2007 Il paesaggio futuro. Letture e norme per il patrimonio dell'architettura moderna a Ivrea Allemandi Torino 57, 68 No
Giusti Maria Adriana, Tamborrino Rosa 2008 Guida all'architettura del Novecento in Piemonte (1902-2006) Allemandi Torino 175 No

Allegati
File Didascalia Credito Fotografico
Estratto della mappa del Comune di Ivrea con l’identificazione del lotto destinato alla costruzione della casa di Battista China-Bino Estratto della mappa del Comune di Ivrea con l’identificazione del lotto destinato alla costruzione della casa di Battista China-Bino Archivio Privato Famiglia China-Bino
Planimetria di Villa China-Bino, con segnatura delle specie arboree per l’approntamento del giardino in progetto Planimetria di Villa China-Bino, con segnatura delle specie arboree per l’approntamento del giardino in progetto Archivio Privato Famiglia China-Bino
Progetto definitivo. Prospetto nord-est Progetto definitivo. Prospetto nord-est Archivio Privato Famiglia China-Bino
Progetto definitivo. Prospetto nord-ovest Progetto definitivo. Prospetto nord-ovest Archivio Privato Famiglia China-Bino
Pianta del piano terreno Pianta del piano terreno Archivio Privato Famiglia China-Bino
Pianta del piano rialzato Pianta del piano rialzato Archivio Privato Famiglia China-Bino
Progetto. Prospetto sud-ovest Progetto. Prospetto sud-ovest Archivio Privato Famiglia China-Bino
Progetto. Prospetto nord-est Progetto. Prospetto nord-est Archivio Privato Famiglia China-Bino
Progetto. Prospetto sud-est Progetto. Prospetto sud-est Archivio Privato Famiglia China-Bino
Progetto. Prospetto nord-ovest Progetto. Prospetto nord-ovest Archivio Privato Famiglia China-Bino
Sezione Sezione Archivio Privato Famiglia China-Bino
Sezione Sezione Archivio Privato Famiglia China-Bino
Pianta della ristrutturazione interna negli anni Duemila Pianta della ristrutturazione interna negli anni Duemila Archivio Privato Famiglia China-Bino
 Vista esterna, settembre 1960 Vista esterna, settembre 1960 Archivio Privato Famiglia China-Bino
Interno, settembre 1960 Interno, settembre 1960 Archivio Privato Famiglia China-Bino
Vista esterna, settembre 1960 Vista esterna, settembre 1960 Archivio Privato Famiglia China-Bino
Vista esterna, settembre 1960 Vista esterna, settembre 1960 Archivio Privato Famiglia China-Bino
Vista esterna, settembre 1960 Vista esterna, settembre 1960 Archivio Privato Famiglia China-Bino
Vista esterna, settembre 1960 Vista esterna, settembre 1960 Archivio Privato Famiglia China-Bino
Particolare del manto di copertura originario, ottobre 1998 Particolare del manto di copertura originario, ottobre 1998 Archivio Privato Famiglia China-Bino)
Vista esterna, giugno 2007 Vista esterna, giugno 2007 Archivio Privato Famiglia China-Bino
Vista esterna, giugno 2007 Vista esterna, giugno 2007 Archivio Privato Famiglia China-Bino
Vista esterna, marzo 2008 Vista esterna, marzo 2008 Archivio Privato Famiglia China-Bino
Vista esterna, marzo 2008 Vista esterna, marzo 2008 Archivio Privato Famiglia China-Bino
Vista esterna, marzo 2008 Vista esterna, marzo 2008 Archivio Privato Famiglia China-Bino
Vista esterna, marzo 2008 Vista esterna, marzo 2008 Archivio Privato Famiglia China-Bino
Vista esterna, luglio 2010 Vista esterna, luglio 2010 Archivio Privato Famiglia China-Bino
Particolare dei frangisole, ottobre 2000 Particolare dei frangisole, ottobre 2000 Archivio Privato Famiglia China-Bino
Particolari del nuovo manto di copertura, 2011 Particolari del nuovo manto di copertura, 2011 Archivio Privato Famiglia China-Bino
Particolari del nuovo manto di copertura, 2011 Particolari del nuovo manto di copertura, 2011 Archivio Privato Famiglia China-Bino
Interni, 2010 Interni, 2010 Archivio Privato Famiglia China-Bino
Interni, 2010 Interni, 2010 Archivio Privato Famiglia China-Bino
Interni, 2010 Interni, 2010 Archivio Privato Famiglia China-Bino
Interni, 2010 Interni, 2010 Archivio Privato Famiglia China-Bino
Ortofoto di Villa China-Bino immersa in un contesto collinare verde e confinante con altri siti residenziali coevi, si distingue per l'impiego del manto di copertura in lamiera chiara, coerente con la conformazione originaria delle falde Ortofoto di Villa China-Bino immersa in un contesto collinare verde e confinante con altri siti residenziali coevi, si distingue per l'impiego del manto di copertura in lamiera chiara, coerente con la conformazione originaria delle falde Google Maps - 2020

Criteri
1. L’edificio o l’opera di architettura è citata in almeno tre studi storico-sistematici sull’architettura contemporanea di livello nazionale e/o internazionale.
4. L’edificio o l’opera di architettura riveste un ruolo significativo nell’ambito dell’evoluzione del tipo edilizio di pertinenza, ne offre un’interpretazione progressiva o sperimenta innovazioni di carattere distributivo e funzionale.
5. L’edificio o l’opera di architettura introduce e sperimenta significative innovazioni nell’uso dei materiali o nell’applicazione delle tecnologie costruttive.
6. L’edificio o l’opera di architettura è stata progettata da una figura di rilievo nel panorama dell’architettura nazionale e/o internazionale.
7. L’edificio o l’opera di architettura si segnala per il particolare valore qualitativo all’interno del contesto urbano in cui è realizzata.
Sitografia ed altri contenuti online
Titolo Url
Case UCCD Olivetti Visualizza
Dossier di Candidatura “Ivrea Città Industriale del XX secolo” Visualizza

Crediti Scheda
Enti di riferimento: DGAAP - Segretariato Regionale per il Piemonte
Titolare della ricerca: Politecnico Torino Dipartimento Architettura e Design
Responsabile scientifico: Maria Adriana Giusti, Gentucca Canella (DAD)


Scheda redatta da Bianca Guiso e Monica Naretto
creata il 31/12/2004
ultima modifica il 24/01/2025

Revisori:

Mezzino Davide 2021