NUOVA SEDE “IL SOLE 24 ORE“
Scheda Opera
- Comune: Milano
- Denominazione: NUOVA SEDE “IL SOLE 24 ORE“
- Indirizzo: Viale Monte Rosa N. 91
- Data: 1998 - 2004
- Tipologia: Interventi di recupero e trasformazione
- Autori principali: Architects Renzo Piano Building Workshop
Descrizione
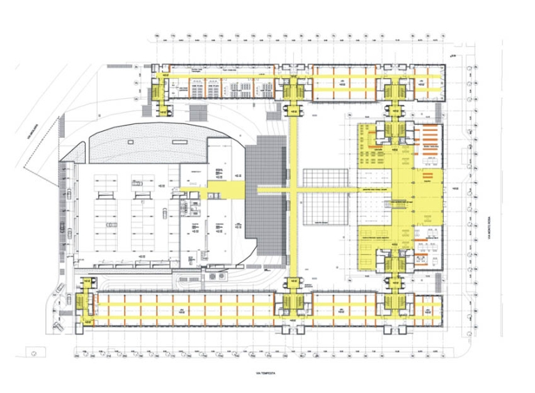
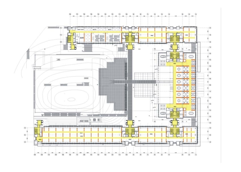
La sede dello storico quotidiano "Il Sole 24 ore" occupa un vasto isolato compreso tra le vie Tempesta e Monte Rosa - da dove avviene l'accesso principale - e piazza Zavattari.
Sviluppato su sei piani fuori terra e due interrati destinati ai servizi, è incentrato attorno a uno spazio verde aperto alla città che configura una collina artificiale, retta da travi ricurve a sezione triangolare in metallo, sotto cui si sviluppa un vasto auditorium e sopra cui si sviluppa un manto verde.
La cifra linguistica e tecnologica del complesso è costituita dalle superfici di tamponamento verticale, che formano un involucro di oltre 20.000 metri quadri in doppio vetro extrachiaro antisfondamento, con proprietà selettive alla radiazione solare, opportunamente schermato da un sistema misto di filtraggio e oscuramento con tende a rullo di colore verde. Le facciate trasparenti s'interrompono solo in corrispondenza degli otto corpi scala, che sono rivestiti in tavelle di terracotta applicate a secco su una struttura in alluminio estruso e declinate in tonalità “giallo Milano“ (un colore ottenuto miscelando argilla, terra sarda e titanio).
Le facciate sono chiuse in altezza dalla copertura metallica, realizzata con un grigliato in acciaio zincato, che funziona come grande frangisole orizzontale attestato sui volumi dell'ultimo piano, arretrati di 4 metri rispetto al filo della facciata. La copertura è retta da una struttura di travi a C, accoppiate e giuntate tra loro.
Info
- Progetto: 1998 - 2004
- Esecuzione: 1998 - 2004
- Tipologia Specifica: Edificio per uffici
- Committente: Il Sole 24 ore
- Proprietà: Proprietà privata
Autori
| Nome | Cognome | Ruolo | Fase Progetto | Archivio Architetti | Url Profilo | Autore Principale |
|---|---|---|---|---|---|---|
| Peutz | & Associés | Progetto acustico | Progetto | NO | ||
| Ove Arup | & Partners | Progetto strutturale | Progetto | NO | ||
| J. | Boon | Collaboratore | Progetto | NO | ||
| M. | Cardenas | Collaboratore | Progetto | NO | ||
| J. | Carter | Collaboratore | Progetto | NO | ||
| E. | Caumont | Collaboratore | Progetto | NO | ||
| Giorgio | Ceruti | Progetto strutturale | Progetto | NO | ||
| A. | Chaaya | Coordinatore | Progetto | NO | ||
| G. | Costa | Collaboratore | Progetto | NO | ||
| D. | Magliulo | Collaboratore | Progetto | NO | ||
| N. | Mecattaf | Progetto architettonico | Progetto | NO | ||
| D. | Miccolis | Progetto architettonico | Progetto | NO | ||
| N. | Pacini | Progetto architettonico | Progetto | NO | ||
| Renzo | Piano | Progetto architettonico | Progetto | Visualizza Profilo | https://www.rpbw.com/people | NO |
| Architects | Renzo Piano Building Workshop | Progetto architettonico | Progetto | http://www.rpbw.com/ | SI | |
| R. | Valverde | Collaboratore | Progetto | NO |
- Strutture: travi e pilastri in cemento armato (edifici ex-Siemens); travi ricurve in metallo a sezione triangolare (auditorium, parcheggi e mensa)
- Materiale di facciata: vetro strutturale (corpo principale); pannelli prefabbricati in terracotta (torri degli ascensori)
- Coperture: piana non praticabile in vetro, protetta da una tettoia in acciaio sospesa sulla soletta che ha struttura formata da travi a C accoppiate e giuntate (avancorpo); curva a giardino (auditorium, parcheggi e mensa)
- Serramenti: in alluminio anodizzato
- Stato Strutture: Buono
- Stato Materiale di facciata: Buono
- Stato Coperture: Buono
- Stato Serramenti: Buono
- Vincolo: Non Vincolata
- Provvedimenti di tutela: Nessuna opzione
- Data Provvedimento:
- Riferimento Normativo:
- Altri Provvedimenti:
- Foglio Catastale: 302
- Particella: 464
Note
L'intervento nasce come operazione di ristrutturazione di un complesso industriale preesistente, in precedenza occupato dall'azienda Siemens-Italtel, già appartenuto alla società Isotta-Fraschini, nella periferia storica nord-occidentale di Milano. Lo stabilimento (costruito negli anni Cinquanta) era articolato in quattro diversi corpi di fabbrica, di cui solo due sono stati inglobati nel progetto di Piano. La sua riconversione è stata il primo passo di un processo di riqualificazione urbana avviato negli anni Novanta.
Bibliografia
| Autore | Anno | Titolo | Edizione | Luogo Edizione | Pagina | Specifica |
|---|---|---|---|---|---|---|
| Colanfranceschi Daniela | 1996 | Sull'involucro in architettura. Herzog, Nouvel, Perrault, Piano, Prix, Suzuki, Venturi, Wines | Dedalo | Roma | No | |
| 2001 | Renzo Piano. Nuova sede del gruppo «Il Sole 24 Ore» | Domus n. 690 (supplemento) | 52-54 | Si | ||
| Boggione Marta | 2003 | Il Sole 24 Ore | OFX n. 75 | 94-103 | Si | |
| Poletti Raffaella (a cura di) | 2004 | Renzo Piano Building Workshop. Nuova sede per il Sole 24 Ore | Il Sole 24 ORE | Milano | Si | |
| Vella Percarlo | 2004 | Una lanterna magica nel cuore di Milano | Frames n. 110 | 66-69 | Si | |
| Cuppini Davide | 2004 | Sede del giornale | The Plan n. 7 | 26-45 | Si | |
| Brandolini Sebastiano | 2005 | Milano. Nuova architettura | Skira | Milano | 182-187 | No |
| Arnaboldi Mario Antonio | 2005 | Il senso nobile | L'Arca n. 199 | 30-41 | Si | |
| Dal Co Francesco | 2006 | Renzo Piano o dell'intelligenza efficace | Casabella n. 749 | 3-11 | No | |
| Capitanucci Maria Vittoria, Pagliani Filippo | 2006 | Trame d'acciaio per il tappeto volante | Aketipo n. 2 | 78-89 | Si | |
| Irace Fulvio (a cura di) | 2007 | Renzo Piano. Le città visibili | Electa | Milano | No | |
| Lo Ricco Gabriella | 2011 | Involucri significanti. La facciata nella contemporaneità. I progetti di Renzo Piano, Herzog & De Meuron e Jean Nouvel | Elementi n. 8 | 20-26 | No | |
| Berizzi Carlo | 2015 | Architectural Guide. Milan. Buildings and Projects since 1919 | DOM Publishers | Berlin | 264 | No |
| Andreola Florencia, Biraghi Marco, Lo Ricco Gabriella (a cura di) | 2018 | Milano. L'architettura dal 1945 a oggi | Hoepli | Milano | 78-79 | No |
Fonti Archivistiche
| Titolo | Autore | Ente | Descrizione | Conservazione |
|---|---|---|---|---|
| Archivio Renzo Piano | Renzo Piano | Fondazione Renzo Piano, Genova Vesima | Il Sole 24 Ore Headquarters, Milan |
Allegati
Criteri
| 1. L’edificio o l’opera di architettura è citata in almeno tre studi storico-sistematici sull’architettura contemporanea di livello nazionale e/o internazionale. | |
| 2. L’edificio o l’opera di architettura è illustrata in almeno due riviste di architettura di livello nazionale e/o internazionale. | |
| 4. L’edificio o l’opera di architettura riveste un ruolo significativo nell’ambito dell’evoluzione del tipo edilizio di pertinenza, ne offre un’interpretazione progressiva o sperimenta innovazioni di carattere distributivo e funzionale. | |
| 5. L’edificio o l’opera di architettura introduce e sperimenta significative innovazioni nell’uso dei materiali o nell’applicazione delle tecnologie costruttive. | |
| 6. L’edificio o l’opera di architettura è stata progettata da una figura di rilievo nel panorama dell’architettura nazionale e/o internazionale. |
Sitografia ed altri contenuti online
| Titolo | Url |
|---|---|
| Il Sole 24 Ore Headquarters 1998-2004, Milan | Visualizza |
| Fondazione Renzo Piano | Visualizza |
| Enciclopedia Treccani - Renzo Piano | Visualizza |
Crediti Scheda
Enti di riferimento: DARCTitolare della ricerca: Politecnico di Milano - Dipartimento di Industrial Design, Arti, Comunicazione e Moda
Responsabile scientifico: Fulvo Irace, Graziella Leyla Ciagà
Scheda redatta da
creata il 31/12/2012
ultima modifica il 06/02/2025
Revisori:
Alberto Coppo 2022










