CASE INA-CASA AL QUARTIERE COMASINA
Scheda Opera
- Comune: Milano
- Denominazione: CASE INA-CASA AL QUARTIERE COMASINA
- Indirizzo: Via Teano N. 9
- Data: 1955 - 1958
- Tipologia: Edilizia residenziale pubblica
- Autori principali: Pietro Lingeri, Piero Bottoni
Descrizione
Tra il 1955 e il 1958 Pietro Lingeri e Piero Bottoni si uniscono nella progettazione di due edifici residenziali - i fabbricati 64 e 64A - nel quartiere autosufficiente Comasina. I due architetti avevano partecipato alla feconda esperienza del quartiere sperimentale Ottava Triennale (QT8), una sorta di esposizione permanente della nuova architettura e di un nuovo modo di abitare, di cui Bottoni era stato principale ideatore e coordinatore urbanistico. In quell'occasione avevano progettato separatamente due edifici multipiano, rispettivamente al centro e ai margini sud-est dell'insediamento: l'edificio Ina-Casa, costruito tra il 1949 e il 1951 da Lingeri insieme a Luigi Zuccoli e la casa INCIS in via Bertinoro, progettata e realizzata da Piero Bottoni tra il 1953 e il 1958.
In queste case sono già presenti molti dei temi architettonici e dei caratteri tipologici che saranno alla base della progettazione dei due edifici al quartiere Comasina: lo sviluppo longitudinale del volume, la sovrapposizione seriale delle singole unità abitative, la disposizione secondo l'asse eliotermico - con i fronti principali rivolti a est e a ovest - e la presenza delle logge sui fronti.
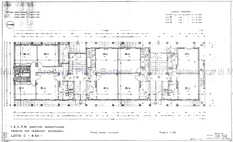
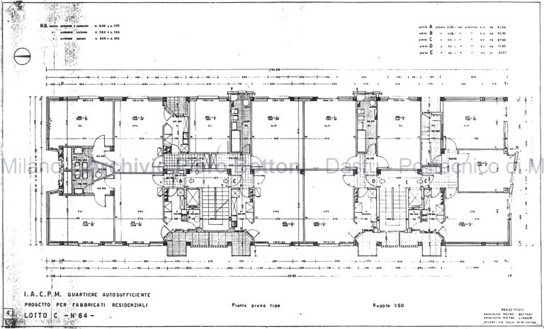
Gli edifici gemelli di via Teano, realizzati per l'Istituto Autonomo Case Popolari, sono due enormi parallelepipedi di nove piani disposti parallelamente e in posizione sfalsata tra loro.
La chiarezza tipologica dell'impianto e la matrice razionalista che permea le scelte architettoniche e compositive fanno delle due case multipiano gli episodi residenziali più originali ma allo stesso tempo più decontestualizzati all'interno del quartiere. Ogni edificio ha due vani scala con ascensori che distribuiscono cinque unità abitative per piano, con alloggi da due a quattro locali. In pianta i locali destinati ai servizi occupano quattro settori stretti e lunghi che vanno da un lato all'altro del fabbricato, dichiarando in facciata la semplicità dello schema interno: nel fronte a est sono evidenziati da stretti loggiati e leggeri sporti murari, nel fronte ovest da due coppie di balconi che si uniscono a una loggia in corrispondenza dei vani scala. Anche sui lati corti la purezza geometrica del volume viene interrotta da due particolari soluzioni di facciata: nel lato nord una fenditura continua - molto simile a quella realizzata nella casa multipiano al QT8 - identifica la presenza dei servizi accentuando la verticalità del fronte, mentre sul lato sud la parte centrale della parete si inclina per ottenere luce da una portafinestra stretta e lunga.
Il quarto e l'ottavo piano sono caratterizzati dalla presenza di grandi aperture che disegnano le facciate: sul lato ovest due logge continue di pertinenza degli appartamenti, sul lato est due logge profonde pensate per il gioco collettivo dei bambini che rimandano all'idea del piano coperto a uso pubblico, una delle più felici intuizioni progettuali di Piero Bottoni proposta negli stessi anni per l'edificio Ina-Casa di Corso Sempione.
Il basamento è ritmato, lungo tre lati degli edifici, da una sequenza di pilastri interamente staccati dalla parete della facciata. Tutt'attorno all'edificio si crea così uno spazio di risulta che, pur mettendo in evidenza l'autonomia delle parti costitutive dell'architettura, a causa delle ristrette dimensioni non riesce ad assurgere alla dignità di un percorso porticato.
Info
- Progetto: 1955 - 1958
- Esecuzione: 1955 - 1958
- Committente: IACP - Istituto Autonomo Case Popolari di Milano
- Proprietà: Proprietà privata
Autori
| Nome | Cognome | Ruolo | Fase Progetto | Archivio Architetti | Url Profilo | Autore Principale |
|---|---|---|---|---|---|---|
| Piero | Bottoni | Progetto architettonico | Progetto | Visualizza Profilo | https://siusa.archivi.beniculturali.it/cgi-bin/siusa/pagina.pl?TipoPag=prodpersona&Chiave=19465 | SI |
| Pietro | Lingeri | Progetto architettonico | Progetto | Visualizza Profilo | https://siusa.archivi.beniculturali.it/cgi-bin/siusa/pagina.pl?TipoPag=prodpersona&Chiave=19782 | SI |
- Strutture: travi e pilastri in cemento armato
- Materiale di facciata: intonaco
- Coperture: a falde, con manto in laterizio
- Serramenti: in legno, con avvolgibili
- Stato Strutture: Buono
- Stato Materiale di facciata: Buono
- Stato Coperture: Buono
- Stato Serramenti: Buono
- Vincolo: Non Vincolata
- Provvedimenti di tutela: Nessuna opzione
- Data Provvedimento:
- Riferimento Normativo:
- Altri Provvedimenti:
- Foglio Catastale: -
- Particella: -
Note
Il quartiere Comasina, realizzato su progetto urbanistico di Irenio Diotallevi, Max Pedrini e Camillo Rossetti a partire dal 1953, è con i suoi ottantaquattro edifici e undicimila vani la più grande realizzazione dello IACP a Milano. Il progetto iniziale prevedeva quattro nuclei residenziali che gravitavano attorno a un centro civico, dominato dalla presenza della grande chiesa a pianta centrale progettata da Angelo Sirtori nel 1957. La realizzazione definitiva del quartiere ha però seguito un'organizzazione più frammentaria, dove la dispersione dei corpi di fabbrica, orientati eliotermicamente, ha prevalso sulla chiarezza del disegno urbano, con conseguente perdita della gerarchia tra gli spazi e minor chiarezza nella definizione dei percorsi. La separazione tra viabilità principale e percorsi pedonali ha consentito una maggior fruizione degli spazi aperti, ma d'altra parte ha svuotato la strada delle sue prerogative urbane, generando un insieme in cui gli edifici appaiono come episodi non riconducibili a un sistema unitario. La forte monofunzionalità residenziale e l'eterogeneità del linguaggio architettonico degli edifici hanno accentuato questo senso di disordine e casualità insediativa. Alla progettazione degli edifici del quartiere hanno partecipato alcuni tra i più noti architetti attivi negli anni Cinquanta; lo stesso Lingeri, oltre ai due edifici realizzati con Bottoni, successivamente progetterà con i figli Angelo e Pier Carlo altre due case, i fabbricati 19 e 20 in via Spadini.
Bibliografia
| Autore | Anno | Titolo | Edizione | Luogo Edizione | Pagina | Specifica |
|---|---|---|---|---|---|---|
| Pica Agnoldomenico, Pifferi Emilio (a cura di) | 1963 | Cento anni di edilizia 1862-1962. La casa del nostro tempo | Societa generale immobiliare di lavori di utilità pubblica ed agricola | Roma | 108 | No |
| IACP (a cura di) | 1984 | Istituto Autonomo per le case popolari della Provincia di Milano, 1908-1983. Dal lavatoio al "solare" | Milano | 65-66 | No | |
| Boriani Maurizio, Morandi Corinna, Rossari Augusto | 1986 | Milano contemporanea. Itinerari di architettura e urbanistica | Designers Riuniti | Torino | 291 | No |
| Consonni Giancarlo, Meneghetti Lodovico, Tonon Graziella (a cura di) | 1990 | Piero Bottoni. Opera completa | Fabbri | Milano | 386-387 | Si |
| Alè Francesca, Lingeri Tommaso | 1992 | Itinerario n. 82. Lingeri e Milano | Domus n. 741 | No | ||
| Collotti Francesco Valerio | 1992 | Pietro Lingeri, case alte, medie, basse a Milano | Domus n. 741 | 100-106 | No | |
| Lingeri Elena (a cura di) | 1995 | Pietro Lingeri 1894-1968. La figura e l'opera | Arti grafiche G.M.C. | Milano | 60-66 | Si |
| Consonni Giancarlo, Meneghetti Lodovico, Tonon Graziella (a cura di) | 2002 | Piero Bottoni e Milano. Case, quartieri, paesaggi 1926-1970 | La vita felice | Milano | 64-65 | No |
| Baglione Chiara, Susani Elisabetta (a cura di) | 2004 | Pietro Lingeri. 1894-1968 | Electa | Milano | Si | |
| Pugliese Raffaele (a cura di) | 2005 | La casa popolare in Lombardia. 1903-2003 | Unicopli | Milano | 190-191 | No |
Fonti Archivistiche
| Titolo | Autore | Ente | Descrizione | Conservazione |
|---|---|---|---|---|
| Archivio Piero Bottoni | Piero Bottoni | Politecnico di Milano, Dipartimento Architettura e Studi Urbani, Milano | Due case Ina-casa in via Teano al quartiere Comasina, Milano | |
| Fondo Pietro Lingeri | Pietro Lingeri | Fondo privato, Milano | Edifici al quartiere Comasina, Milano |
Allegati
Criteri
| 6. L’edificio o l’opera di architettura è stata progettata da una figura di rilievo nel panorama dell’architettura nazionale e/o internazionale. |
Sitografia ed altri contenuti online
| Titolo | Url |
|---|---|
| Archivio Piero Bottoni, Politecnico di Milano | Visualizza |
| Enciclopedia Treccani - Piero Bottoni | Visualizza |
| Dizionario biografico degli Italiani - Pietro Lingeri | Visualizza |
Crediti Scheda
Enti di riferimento: DARCTitolare della ricerca: Politecnico di Milano - Dipartimento di Industrial Design, Arti, Comunicazione e Moda
Responsabile scientifico: Fulvo Irace, Graziella Leyla Ciagà
Scheda redatta da
creata il 31/12/2012
ultima modifica il 24/04/2024
Revisori:
Alberto Coppo 2022















