EDIFICIO PER ABITAZIONI E UFFICI IN VIA DEI GIARDINI 7
Scheda Opera
- Comune: Milano
- Denominazione: EDIFICIO PER ABITAZIONI E UFFICI IN VIA DEI GIARDINI 7
- Indirizzo: Via dei Giardini N. 7
- Data: 1947 - 1950
- Tipologia: Edifici polifunzionali
- Autori principali: Carlo De Carli, Antonio Carminati
Descrizione
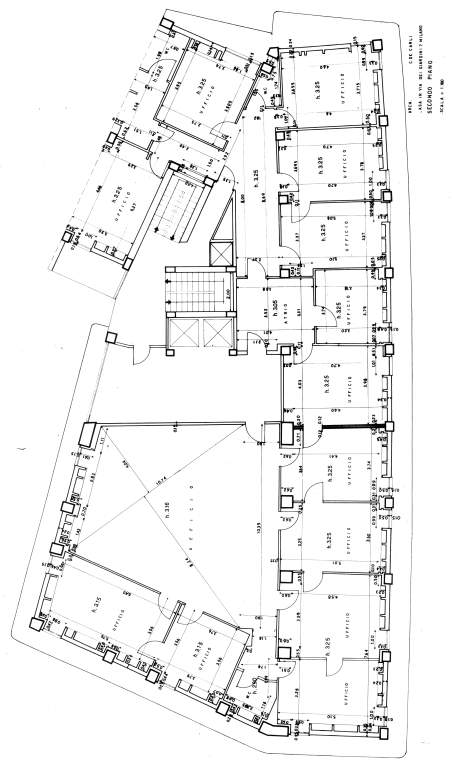
L'edificio si sviluppa su sette piani fuori terra: i primi cinque sono destinati ad uffici; gli ultimi due ospitano gli appartamenti, arretrati rispetto alla facciata sottostante e circondati da terrazze e spazi verdi secondo il modello della “villa pensile“.
Al livello rialzato, l'elemento centrale della distribuzione è un vasto atrio preceduto da una breve scalinata che, attraverso ampie vetrate in cristallo, consente di traguardare la profondità del blocco edilizio fino alla retrostante piazza Sant'Erasmo, verso un frammento dell'antico chiostro monastico da cui la piazza prende il nome. Dall'atrio sono raggiungibili gli impianti di risalita, costituiti da scale e ascensori posti in posizione baricentrica rispetto al complicato andamento planimetrico dell'edificio, che ricalca i confini del lotto a disposizione.
Le facciate sono risolte come sequenza di logge continue sovrapposte, grazie alla scelta di arretrare i tamponamenti verticali rispetto allo scheletro di travi e pilastri in cemento armato. La presenza di questi elementi continui è dettata, da un lato, dalla volontà di garantire un costante rapporto con il verde all'intorno e, dall'altro, dalla possibilità di garantire attraverso le logge una certa unitarietà prospettica, indipendentemente dalla scansione dei locali interni. Richiesta della committenza era infatti la massima elasticità nel disegno della pianta, garantita dalla gabbia strutturale.
I parapetti sono realizzati in vetro trasparente con montanti in alluminio anodizzato, mentre dietro le balaustre si dispongono a fasce orizzontali le aperture continue con serramenti in larice naturale.
Particolare attenzione è dedicata anche al raccordo tra gli elementi portanti, con i pilastri che si rastremano verso l'alto incrociando le travi senza soluzione di continuità, anche grazie all'uniformità delle finiture materiche.
Info
- Progetto: 1947 - 1950
- Esecuzione: 1947 - 1950
- Proprietà: Proprietà privata
Autori
| Nome | Cognome | Ruolo | Fase Progetto | Archivio Architetti | Url Profilo | Autore Principale |
|---|---|---|---|---|---|---|
| Antonio | Carminati | Progetto architettonico | Progetto | SI | ||
| Carlo | De Carli | Progetto architettonico | Progetto | Visualizza Profilo | https://siusa.archivi.beniculturali.it/cgi-bin/siusa/pagina.pl?TipoPag=prodpersona&Chiave=20111&RicProgetto=architetti | SI |
| Eugenio | Saliva | Progetto strutturale | Progetto | NO |
- Strutture: travi, pilastri e solai in cemento armato
- Materiale di facciata: granito di Ausolo; marmo Botticino; intonaco tipo Fulget
- Coperture: piana a terrazza, sistemato a solarium
- Serramenti: in legno di larice naturale
- Stato Strutture: Buono
- Stato Materiale di facciata: Buono
- Stato Coperture: Buono
- Stato Serramenti: Buono
- Vincolo: Non Vincolata
- Provvedimenti di tutela: Nessuna opzione
- Data Provvedimento:
- Riferimento Normativo: Decreto Legislativo 22 gennaio 2004, n. 42 (art. 136)
- Altri Provvedimenti: Dichiarazione di notevole interesse (30/11/2009)
- Foglio Catastale: 349
- Particella: 404
Note
Al piano seminterrato l'esistenza di un vasto ambiente privo di pilastri intermedi, realizzato con solai a telai multipli retti da travi incrociate in cemento armato, consentì a De Carli di allestire tra il 1951 e il 1953 un teatro intitolato a Sant'Erasmo, poi smantellato. Questo locale per spettacoli è stato il primo teatro milanese a scena centrale e i trecento posti a sedere erano sistemati in modo da evitare la creazione di un fuoco prospettico coincidente con il palco. Il loggiato all'ultimo piano è stato coperto nel corso degli anni.
Bibliografia
| Autore | Anno | Titolo | Edizione | Luogo Edizione | Pagina | Specifica |
|---|---|---|---|---|---|---|
| Pica Agnoldomenico | 1950 | Architettura nuova in un giardino antico | Spazio n. 1 | 47-49 | Si | |
| 1952 | Domus n. 268 | No | ||||
| Bottoni Piero | 1954 | Antologia di edifici moderni in Milano | Editoriale Domus | Milano | 114-116 | No |
| Pagani Carlo | 1955 | Architettura italiana oggi | Hoepli | Milano | No | |
| Pica Agnoldomenico | 1964 | Architettura moderna in Milano. Guida | Ariminum | Milano | 43 | No |
| Grandi Maurizio, Pracchi Attilio | 1980 | Milano. Guida all'architettura moderna | Zanichelli | Bologna | 310 | No |
| Gramigna Giuliana, Mazza Sergio | 2001 | Milano. Un secolo di architettura milanese dal Cordusio alla Bicocca | Hoepli | Milano | 226 | No |
Fonti Archivistiche
| Titolo | Autore | Ente | Descrizione | Conservazione |
|---|---|---|---|---|
| Fondo Carlo De Carli | Carlo De Carli | Politecnico di Milano, Area Servizi Bibliotecari di Ateneo, Servizi Storici | Edificio in via dei Giardini 7, Milano |
Allegati
Criteri
| 1. L’edificio o l’opera di architettura è citata in almeno tre studi storico-sistematici sull’architettura contemporanea di livello nazionale e/o internazionale. | |
| 3. L’edificio o l’opera di architettura ha una riconosciuta importanza nel panorama dell’architettura nazionale, degli anni nei quali è stata costruita, anche in relazione ai contemporanei sviluppi sia del dibattito, sia della ricerca architettonica nazionale e internazionale, | |
| 5. L’edificio o l’opera di architettura introduce e sperimenta significative innovazioni nell’uso dei materiali o nell’applicazione delle tecnologie costruttive. | |
| 6. L’edificio o l’opera di architettura è stata progettata da una figura di rilievo nel panorama dell’architettura nazionale e/o internazionale. |
Crediti Scheda
Enti di riferimento: DARCTitolare della ricerca: Politecnico di Milano - Dipartimento di Industrial Design, Arti, Comunicazione e Moda
Responsabile scientifico: Fulvo Irace, Graziella Leyla Ciagà
Scheda redatta da
creata il 31/12/2012
ultima modifica il 15/04/2024
Revisori:
Alberto Coppo 2022









