Censimento delle architetture italiane dal 1945 ad oggi
CASA BERARDUCCI
Scheda Opera
- Comune: Pescara
- Denominazione: CASA BERARDUCCI
- Indirizzo: via De Amicis, 121
- Data: 1971 - 1977
- Tipologia: Abitazioni unifamiliari
- Autori principali: Francesco Berarducci, Donatella Ciocca della Cananea
Descrizione
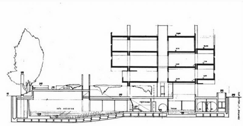
Realizzata sul lungomare nord di Pescara costituisce una originale ripresa di temi architettonici di matrice wrightiana, manifestati nell’articolato gioco plastico offerto dai balconi a terrazzamenti che danno sul mare e dalle superfici piene in cemento armato a vista segnate da aperture di dimensioni differenti. Opera tarda dell’architetto romano Berarducci, riprende i temi essenziali della sua produzione, caratterizzata dall’uso di volumi semplici ed essenziali, particolarmente impiegati nell’architettura religiosa e residenziale.
Info
- Progetto: 1971 - 1973
- Esecuzione: - 1977
- Tipologia Specifica: Edificio per abitazioni con auditorium
- Proprietà: Proprietà privata
Autori
| Nome | Cognome | Ruolo | Fase Progetto | Archivio Architetti | Url Profilo | Autore Principale |
|---|---|---|---|---|---|---|
| Francesco | Berarducci | Progetto architettonico | Progetto | Visualizza Profilo | https://collezionearchitettura.maxxi.art/patrimonio/afa5b1e8-40f7-485a-8b1d-c49018090188/berarducci-francesco | SI |
| Donatella | Ciocca della Cananea | Progetto architettonico | Progetto | SI |
- Strutture: cemento armato
- Materiale di facciata: cemento armato a facciavista
- Coperture: piana
- Serramenti: legno e alluminio
- Stato Strutture: Buono
- Stato Materiale di facciata: Buono
- Stato Coperture: Buono
- Stato Serramenti: Buono
- Vincolo: Non Vincolata
- Provvedimenti di tutela: Nessuna opzione
- Data Provvedimento:
- Riferimento Normativo:
- Altri Provvedimenti:
- Foglio Catastale: -
- Particella: -
Note
-
Bibliografia
| Autore | Anno | Titolo | Edizione | Luogo Edizione | Pagina | Specifica |
|---|---|---|---|---|---|---|
| Bilò Federico | 1995 | Casa per musicisti sul lungomare, in PPC n. 15 La città adriarica | Avezzano | 106 | No | |
| Pozzi Carlo | 2003 | Itinerari del Novevento. L'Architettura cronache e storia n.578 | Mancosu Editore | Roma | 926-928 | No |
| Palestini Caterina - Pozzi Carlo (curatori) | 2013 | L’Architettura in Abruzzo e Molise dal 1945 ad oggi selezione delle opere di rilevante interesse storico artistico (libro) | Gangemi Editore | 174-175 | Si |
Criteri
| 1. L’edificio o l’opera di architettura è citata in almeno tre studi storico-sistematici sull’architettura contemporanea di livello nazionale e/o internazionale. |
Crediti Scheda
Enti di riferimento: PaBAAC - Direzione Regionale per l'AbruzzoTitolare della ricerca: Università degli Studi "G. d'Annunzio" Chieti – Pescara - Dipartimento di Architettura
Responsabile scientifico: Caterina Palestini
Scheda redatta da
creata il 31/12/2013
ultima modifica il 15/03/2024

