CASA FRONTE PARCO
Scheda Opera
- Comune: Milano
- Denominazione: CASA FRONTE PARCO
- Indirizzo: Via Giulianova N. 1
- Data: 1950 - 1952
- Tipologia: Edifici polifunzionali
- Autori principali: Pietro Lingeri
Descrizione
Notevole esempio di condominio razionalista milanese, l'edificio che Pietro Lingeri realizza tra il 1950 e il 1952 prende il nome dalla Società Immobiliare che ne commissiona il progetto e, nonostante il carattere frammentario della sua impostazione urbana dovuto alla mancata realizzazione di alcune predisposizioni di piano, testimonia la continuità della ricerca dell'architetto comasco rispetto ai paradigmi sviluppati durante gli anni Trenta assieme al celebre collega Giuseppe Terragni.
L'impianto planimetrico a C, infatti, composto da tre corpi di fabbrica di differenti dimensioni, era stato concepito per attestarsi su una piccola piazzetta e porsi come estremità meridionale di un nuovo isolato dalla forma allungata, affacciato sul parco Sempione. La mancata realizzazione di questo programma urbanistico, pur nel rapporto inalterato che l'architettura costituisce con il parco, determina una certa incongruenza del progetto rispetto al contesto urbano attuale, soprattutto sul lato verso via Mantegazza che appare oggi irrisolto.
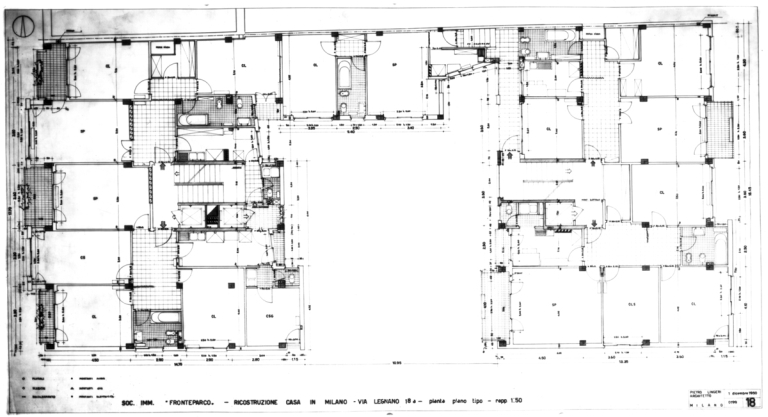
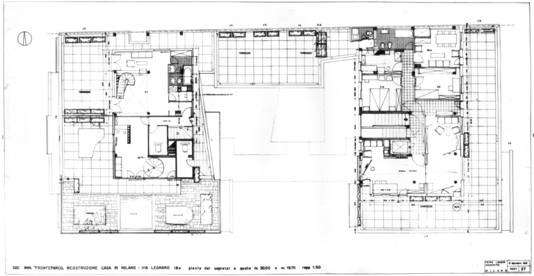
Dal punto di vista compositivo, dimostrando notevole abilità e disinvoltura, Lingeri sviluppa una complessa articolazione distributiva di chiara matrice razionalista, volta a massimizzare le potenzialità offerte dal lotto. La soluzione d'ingresso, ad esempio, con la scala in linea che connette il livello strada con il piano rialzato degli atrii, consente alla rampa delle autorimesse di raggiungere la quota del piano seminterrato e di svilupparsi in profondità nel lotto al di sotto del vano di guardiania, che risulta così sospeso con una sorta di struttura “a ponte“. E ancora, se i due corpi principali collocati parallelamente alla via Legnano presentano una soluzione distributiva tradizionale, ciascuno con il proprio vano scala a doppia rampa che consente l'accesso a due appartamenti per piano, il corpo perpendicolare che li connette invece utilizza la sola prima rampa del volume più basso per garantire l'accesso al suo unico appartamento, generando uno sfalsamento tra i due livelli che porta alle estreme conseguenze le invenzioni distributive già sperimentate a Milano nella Casa Toninello di via Perasto. Infine, sulle diverse quote della sommità dell'edificio, sono ricavate le due “ville sul tetto“, appartamenti dotati di autonomia tipologica e più ampia superficie, secondo un tema ricorrente nei condomini milanesi a partire dagli anni Trenta.
Gli alzati, caratterizzati da un intonaco color rosa chiaro, si articolano attraverso la giustapposizione funzionale di finestre a nastro, balconi, rientranze e sporgenze di gusto razionalista. Il fronte rivolto verso parco Sempione, connotato da una maggiore verticalità, risponde ad una logica figurativa più sobria e regolare. I piani seminterrato e rialzato, che ospitano laboratori e uffici, sono rivestiti in lastre di pietra di Finale e caratterizzati dalla presenza dei pilastri staccati dalle superfici di tamponamento, secondo una soluzione espressiva analoga all'edificio progettato pochi anni prima da Lingeri in via Sacchi. I gradini della scala di accesso esterna sono in granito d'Anzola.
La ricchezza dell'articolazione distributiva, la matrice razionalista dei fronti, l'attento inserimento nel contesto urbano - ancorchè poggiato in parte su previsioni disattese dal successivo sviluppo della città - unitamente ad alcune notevoli soluzioni di dettaglio nel disegno degli interni concorrono ad attribuire alla Casa Fronte Parco una posizione di particolare interesse all'interno della produzione moderna milanese degli anni del dopoguerra.
Info
- Progetto: 1950 - 1952
- Esecuzione: 1950 - 1952
- Committente: Società Immobiliare Fronte Parco
- Proprietà: Proprietà privata
Autori
| Nome | Cognome | Ruolo | Fase Progetto | Archivio Architetti | Url Profilo | Autore Principale |
|---|---|---|---|---|---|---|
| Impresa Costruttori edili | Fra: della Rosa | Impresa esecutrice | Esecuzione | NO | ||
| Pietro | Lingeri | Progetto architettonico | Progetto | Visualizza Profilo | https://siusa.archivi.beniculturali.it/cgi-bin/siusa/pagina.pl?TipoPag=prodpersona&Chiave=19782 | SI |
- Strutture: travi e pilastri in cemento armato
- Materiale di facciata: intonaco, lastre di pietra di Finale
- Coperture: piana a terrazza praticabile
- Serramenti: in legno verniciato bianco
- Stato Strutture: Buono
- Stato Materiale di facciata: Buono
- Stato Coperture: Buono
- Stato Serramenti: Buono
- Vincolo: Non Vincolata
- Provvedimenti di tutela: Nessuna opzione
- Data Provvedimento:
- Riferimento Normativo: Decreto Legislativo 22 gennaio 2004, n. 42 (art. 136)
- Altri Provvedimenti: Dichiarazione di notevole interesse (01/06/1963)
- Foglio Catastale: -
- Particella: -
Note
La Casa Fronte Parco si inserisce come parte integrante di un Piano di Ricostruzione oggi in larga parte disatteso. Le intese sviluppate tra Comune di Milano e la Società Generale di Ricostruzione Medicea, che poi cedette il lotto alla Società Immobiliare Fronte Parco, prevedevano la prosecuzione di via Rivoli fino all'incrocio con via Anfiteatro. Nel punto di intersezione delle due strade avrebbe dovuto originarsi una piccola piazzetta, sulla quale l'edificio di Lingeri si sarebbe attestato. Inoltre, parallelamente all'attuale via Legnano, era tracciata una nuova strada, in fregio al lato est dell'edificio, che si sarebbe configurato così come l'estremità a sud di un isolato compatto, dalla forma allungata e con il lato più esteso affacciato sul parco Sempione.
Bibliografia
| Autore | Anno | Titolo | Edizione | Luogo Edizione | Pagina | Specifica |
|---|---|---|---|---|---|---|
| Bottoni Piero | 1954 | Antologia di edifici moderni in Milano | Editoriale Domus | Milano | 154-157 | No |
| Perogalli Carlo | 1960 | Atrii di case | Görlich | Milano | No | |
| Pica Agnoldomenico | 1964 | Architettura moderna in Milano. Guida | Ariminum | Milano | 35 | No |
| Alè Francesca, Lingeri Tommaso | 1992 | Itinerario n. 82. Lingeri e Milano | Domus n. 741 | No | ||
| Collotti Francesco Valerio | 1992 | Pietro Lingeri, case alte, medie, basse a Milano | Domus n. 741 | 100-106 | No | |
| Gramigna Giuliana, Mazza Sergio | 2001 | Milano. Un secolo di architettura milanese dal Cordusio alla Bicocca | Hoepli | Milano | 242 | Si |
| Baglione Chiara, Susani Elisabetta (a cura di) | 2004 | Pietro Lingeri. 1894-1968 | Electa | Milano | Si | |
| Capitanucci Maria Vittoria | 2012 | Il professionismo colto nel dopoguerra | Solferino | Milano | 26-29 | No |
Fonti Archivistiche
| Titolo | Autore | Ente | Descrizione | Conservazione |
|---|---|---|---|---|
| Fondo Pietro Lingeri | Pietro Lingeri | Fondo privato, Milano | Edificio in via Giulianova, Milano |
Allegati
Criteri
| 1. L’edificio o l’opera di architettura è citata in almeno tre studi storico-sistematici sull’architettura contemporanea di livello nazionale e/o internazionale. | |
| 6. L’edificio o l’opera di architettura è stata progettata da una figura di rilievo nel panorama dell’architettura nazionale e/o internazionale. |
Sitografia ed altri contenuti online
| Titolo | Url |
|---|---|
| Dizionario biografico degli Italiani - Pietro Lingeri | Visualizza |
Crediti Scheda
Enti di riferimento: DARCTitolare della ricerca: Politecnico di Milano - Dipartimento di Industrial Design, Arti, Comunicazione e Moda
Responsabile scientifico: Fulvo Irace, Graziella Leyla Ciagà
Scheda redatta da
creata il 31/12/2012
ultima modifica il 24/04/2024
Revisori:
Alberto Coppo 2022


















