EDIFICIO PER APPARTAMENTI, PIANO DI ZONA 167
Scheda Opera
- Comune: Caserta
- Denominazione: EDIFICIO PER APPARTAMENTI, PIANO DI ZONA 167
- Indirizzo: viale degli Aranci
- Data: 1986 -
- Tipologia: Edilizia residenziale pubblica
- Autori principali: Giuseppe Saetta
Descrizione
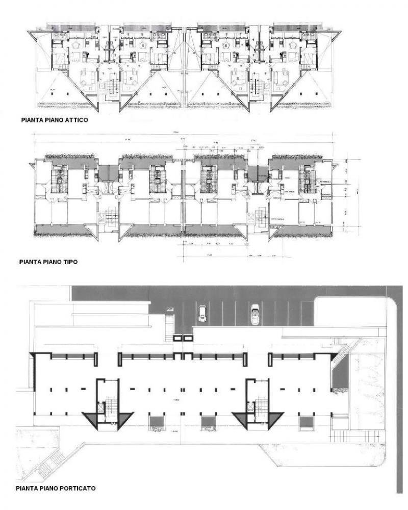
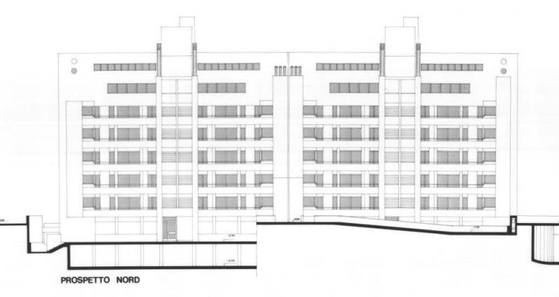
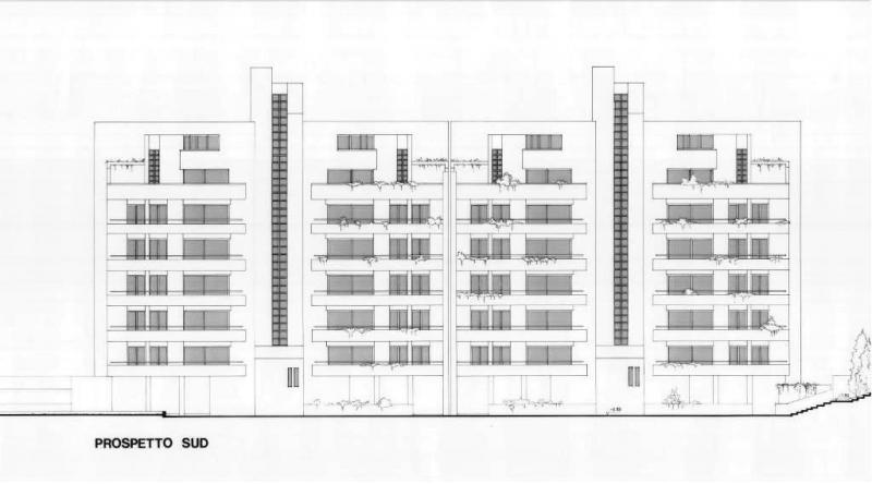
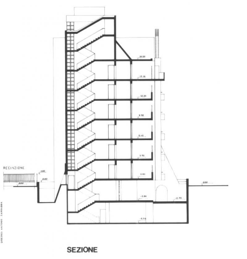
Complesso di edilizia residenziale agevolata costituito da quattro edifici identici realizzati nella parte marginale est dell’area 167 Falciano-Centurano di Caserta. Ciascun edificio consta di un livello interrato, ospitante l’autorimessa, e di sovrastante livello porticato libero, parzialmente interrato rispetto alla quota stradale. Su questi si sviluppano cinque livelli più un attico, tutti a destinazione residenziale.
L’impianto planimetrico si compone di due unità strutturali adiacenti recanti ciascuna due cellule residenziali simmetriche rispetto alla torre scala-ascensore.
L’immagine stereometrica dell’intero corpo è sintetizzabile in quattro prismi a base triangolare intersecati dal susseguirsi degli impalcati orizzontali limitati da parete cieca sulle testate. Particolare attenzione è posta sul fronte nord all'inglobamento organico delle caldaie del riscaldamento in membrature architettoniche caratterizzanti il peculiare linguaggio morfologico.
Info
- Progetto: 1986 -
- Esecuzione: -
- Proprietà: Proprietà pubblico-privata
- Destinazione originaria: Edifici per appartamenti
- Destinazione attuale: Edifici per appartamenti
Autori
- Strutture: Cemento armato
- Materiale di facciata: Intonaco
- Coperture: A falde
- Serramenti: Metallici
- Stato Strutture: Buono
- Stato Materiale di facciata: Buono
- Stato Coperture: Buono
- Stato Serramenti: Buono
- Vincolo: Non Vincolata
- Provvedimenti di tutela: Nessuna opzione
- Data Provvedimento:
- Riferimento Normativo:
- Altri Provvedimenti:
- Foglio Catastale: -
- Particella: -
Note
-
Bibliografia
| Autore | Anno | Titolo | Edizione | Luogo Edizione | Pagina | Specifica |
|---|---|---|---|---|---|---|
| Renato De Fusco | 1996 | La Campania: architettura e urbanistica del Novecento, in Storia e civiltà della Campania. Il Novecento, a cura di G. Pugliese Carratelli | Electa Napoli | Napoli | 143 | Si |
| Beniamino Servino (a cura di) | 1996 | La città eccentrica. Esemplificazione del sistema urbano-territoriale della provincia di Caserta nel ‘900 | Roma | 150-151 | No | |
| Beniamino Servino (a cura di | 1999 | CE900. Guida all'architettura del Novecento in provincia di Caserta | Ordine degli architetti della provincia di Caserta | Roma | 69 | No |
Criteri
| 5. L’edificio o l’opera di architettura introduce e sperimenta significative innovazioni nell’uso dei materiali o nell’applicazione delle tecnologie costruttive. | |
| 7. L’edificio o l’opera di architettura si segnala per il particolare valore qualitativo all’interno del contesto urbano in cui è realizzata. |
Crediti Scheda
Enti di riferimento: DGAAPTitolare della ricerca: Università degli Studi della Campania Luigi Vanvitelli DIC-DEA
Responsabile scientifico: Pasquale Belfiore
Scheda redatta da
creata il 31/12/2017
ultima modifica il 24/01/2025









