PALAZZINA EX VILLA MARIA
Scheda Opera
- Comune: Pescara
- Denominazione: PALAZZINA EX VILLA MARIA
- Indirizzo: via Trento - via Roma - via Nicola Fabrizi
- Data: 1960 -
- Tipologia: Edifici polifunzionali
- Autori principali: Antonio Cataldi Madonna
Descrizione
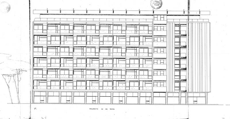
L’edificio realizzato su progetto dell’Architetto Antonio Cataldi Madonna, prevedeva sette piani più un attico, ma in fase di costruzione ha subito alcuni cambiamenti come la costruzione di un ulteriore piano e la modifica dei pilastri al piano terra. La pianta di forma rettangolare presenta una una distribuzione degli ambienti a maglia regolare. Nella parte centrale, lungo l’asse longitudinale sono ubicati i tre corpi scala che consentono gli ingressi alle singole unità e due chiostrine che permettono illuminazione e aerazione degli stessi. I prospetti dell’edificio seguono la maglia lineare della pianta creando un gioco di spazi pieni e vuoti in corrispondenza delle aperture. I parapetti dei balconi esaltano la struttura lineare della palazzina e l’alternanza dei materiali conferisce all’edificio un carattere raffinato.
Info
- Progetto: 1960 -
- Esecuzione: -
- Tipologia Specifica: Palazzina
- Proprietà: Proprietà privata
- Destinazione originaria: Villa Maria
Autori
| Nome | Cognome | Ruolo | Fase Progetto | Archivio Architetti | Url Profilo | Autore Principale |
|---|---|---|---|---|---|---|
| Antonio | Cataldi Madonna | Progetto architettonico | Progetto | Visualizza Profilo | https://siusa.archivi.beniculturali.it/cgi-bin/siusa/pagina.pl?TipoPag=prodpersona&Chiave=55112 | SI |
- Strutture: cemento armato
- Materiale di facciata: Cemento armato a facciavista, intonaco e mosaico
- Coperture: piana
- Serramenti: legno
- Stato Strutture: Buono
- Stato Materiale di facciata: Buono
- Stato Coperture: Buono
- Stato Serramenti: Buono
- Vincolo: Non Vincolata
- Provvedimenti di tutela: Nessuna opzione
- Data Provvedimento:
- Riferimento Normativo:
- Altri Provvedimenti:
- Foglio Catastale: -
- Particella: -
Note
Edificio complesso è il grande blocco realizzato sul sito della demolita Villa Maria, tra via Trento e via Roma e affacciante su via Nicola Fabrizi, all’altezza dei fabbricati della parte sud di Piazza Salotto: l’impostazione tipologica vede la presenza di due chiostrine su cui affacciano servizi, ascensori e corpi scala; il fronte corto, sulla strada più importante, è leggermente ruotato, con una struttura distributiva a galleria diagonale che “stacca” il fronte come un pacchetto autonomo, interamente chiuso sui lati lunghi del complesso a stabilire un contrappunto secco al raffinato gioco di pieni e vuoti ricorrente.
Bibliografia
| Autore | Anno | Titolo | Edizione | Luogo Edizione | Pagina | Specifica |
|---|---|---|---|---|---|---|
| Pozzi Carlo | 2003 | Itinerari del Novevento. L'Architettura cronache e storia n.578 | Mancosu Editore (Roma) | 930 - 931 | No | |
| Palestini Caterina - Pozzi Carlo (curatori) | 2013 | L’Architettura in Abruzzo e Molise dal 1945 ad oggi selezione delle opere di rilevante interesse storico artistico | Gangemi Editore | 182 - 183 | Si | |
| Soprintendenza Archivistica per l'Abruzzo | 2013 | L'Architettura sulla carta Archivi di Architettura in Abruzzo | Tinari Editrice (Villamagna - CH) | 119 | No |
Allegati
Criteri
| 1. L’edificio o l’opera di architettura è citata in almeno tre studi storico-sistematici sull’architettura contemporanea di livello nazionale e/o internazionale. | |
| 6. L’edificio o l’opera di architettura è stata progettata da una figura di rilievo nel panorama dell’architettura nazionale e/o internazionale. |
Crediti Scheda
Enti di riferimento: PaBAAC - Direzione Regionale per l'AbruzzoTitolare della ricerca: Università degli Studi "G. d'Annunzio" Chieti – Pescara - Dipartimento di Architettura
Responsabile scientifico: Caterina Palestini
Scheda redatta da
creata il 31/12/2013
ultima modifica il 16/04/2024















