SCUOLA MATERNA UMBERTO I
Scheda Opera
- Comune: Moncalieri
- Denominazione: SCUOLA MATERNA UMBERTO I
- Indirizzo: Via Real Collegio N. 10
- Data: 1967 - 1971
- Tipologia: Scuole
- Autori principali: Roberto Gabetti, Aimaro Isola, Giorgio Raineri, Teresa Marchini Vernetti
Descrizione
1. Opera originaria
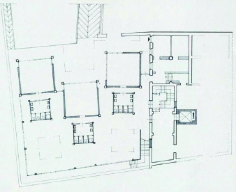
«La problematica del “costruire nel costruito” fino agli anni Settanta, in carenza di una tutela contestuale dell’ambiente urbano, era essenzialmente questione di un personale giudizio critico sulle sostanze e sugli indirizzi dell’architettura moderna, non meno che sul significato di preesistenza, verificato nelle concrete occasioni operative. Questa piccola opera realizzata nel centro storico di Moncalieri, integrando il palazzetto settecentesco sede di una scuola materna religiosa, di una piastra di nuove aule, radicata nell’antico muro di sostegno del terrapieno del giardino e formata da più nuclei funzionali (aule per attività ordinarie, servizi) inglobati in uno spazio continuo di connettivo (attività libere), confronta “contesto urbano e coerenza in architettura”, “dialogando col contesto” (come scrisse Paolo Marconi presentando questa opera su “Moebius”), testimonia nell’adesione operativa alla realtà umile e articolata della “periferia”, concretezza e valenze di un approccio che – nelle sue prime espressioni urbane – era stato un po’ unilateralmente inteso soltanto in termine di revivalistico formalismo». (Agostino Magnaghi, Mariolina Monge, Luciano Re, Guida all’architettura moderna di Torino, Designers Riuniti Editore, Torino 1982, pp. 240-241).
«La guida del sommo del muro di confine sembra voler segnare una netta separazione fra preesistenze ambientali e i nuovi oggetti del paesaggio urbano. Tuttavia, a prescindere dall’uso della materia tradizionale, le ampie superfici trasparenti definiscono un rapporto di interscambio biunivoco tra scolarità e vita ambientale». (Paolo Marconi, Dialogando col contesto: asilo a Moncalieri, in «Moebius», IV, n. 4-5, 1971-72, pag. 129).
2. Consistenza dell’opera al 2019 / Stato attuale
L’edificio si presenta in buono stato di conservazione, preservando i caratteri originali dell’opera. Alcuni adeguamenti normativi hanno riguardato gli interni. Per modifiche dell’impianto di riscaldamento, si segnala la realizzazione di un nuovo camino, di altezza e dimensioni rilevanti, che emerge da una delle coperture. I due prospetti esterni che si affacciano su fronte strada si presentano al 2019 privi di intonaco (rimozione dell’intonaco originale che rende evidente la tessitura muraria originale).
(Scheda a cura di Tanja Marzi, DAD - Politecnico di Torino)
Info
- Progetto: 1967 - 1968
- Esecuzione: 1969 - 1971
- Tipologia Specifica: Scuola materna
- Committente: Amministrazione Asilo Umberto I, Moncalieri
- Proprietà: Nessuna opzione
- Destinazione originaria: Scuola materna
- Destinazione attuale: Scuola materna
Autori
| Nome | Cognome | Ruolo | Fase Progetto | Archivio Architetti | Url Profilo | Autore Principale |
|---|---|---|---|---|---|---|
| Impresa di costruzioni Torino | Aldo Mazza | Impresa esecutrice | Esecuzione | NO | ||
| Roberto | Gabetti | Progetto architettonico | Progetto | Visualizza Profilo | https://www.treccani.it/enciclopedia/roberto-gabetti/ | SI |
| Enrico | Gagliardi | Progetto strutturale | Progetto | NO | ||
| Aimaro | Isola | Progetto architettonico | Progetto | Visualizza Profilo | https://www.isolarchitetti.com/index.php/isolarchitetti-studio | SI |
| Teresa | Marchini Vernetti | Progetto architettonico | Progetto | SI | ||
| Giorgio | Raineri | Progetto architettonico | Progetto | Visualizza Profilo | https://www.museotorino.it/view/s/557ba297e18845aa870a5c8a0f47ab46 | SI |
- Strutture: cemento armato
- Materiale di facciata: intonaco
- Coperture: copertura autoportante a impluvio
- Serramenti: serramenti lignei, grandi aperture su tutti i lati dell’edificio
- Stato Strutture: Buono
- Stato Materiale di facciata: Mediocre
- Stato Coperture: Buono
- Stato Serramenti: Buono
- Vincolo: Non Vincolata
- Provvedimenti di tutela: Nessuna opzione
- Data Provvedimento:
- Riferimento Normativo:
- Altri Provvedimenti:
- Foglio Catastale: -
- Particella: -
Note
-
Bibliografia
| Autore | Anno | Titolo | Edizione | Luogo Edizione | Pagina | Specifica |
|---|---|---|---|---|---|---|
| Marconi Paolo | 1971-72 | Dialogando col contesto: asilo a Moncalieri | Moebius IV, n. 4-5 | 128-131 | No | |
| Magnaghi Agostino, Monge Mariolina, Re Luciano | 1982 | Guida all’architettura moderna di Torino | Designers Riuniti Editore | Torino | 240-241 | No |
| Guerra Andrea, Morresi Manuela | 1996 | Gabetti e Isola. Opere di architettura | Electa | Milano | 134 | No |
| Del Bel Belluz Tamara | 1998 | Giorgio Raineri Architetto | Celid | Torino | 118, 292 | No |
Allegati
Criteri
| 1. L’edificio o l’opera di architettura è citata in almeno tre studi storico-sistematici sull’architettura contemporanea di livello nazionale e/o internazionale. | |
| 6. L’edificio o l’opera di architettura è stata progettata da una figura di rilievo nel panorama dell’architettura nazionale e/o internazionale. | |
| 7. L’edificio o l’opera di architettura si segnala per il particolare valore qualitativo all’interno del contesto urbano in cui è realizzata. |
Sitografia ed altri contenuti online
| Titolo | Url |
|---|---|
| SIUSA - Gabetti e Isola Studio | Visualizza |
| Enciclopedia Treccani - Aimaro Isola | Visualizza |
| Accademia Nazionale di San Luca - Aimaro Isola | Visualizza |
Crediti Scheda
Enti di riferimento: DGAAP - Segretariato Regionale per il PiemonteTitolare della ricerca: Politecnico Torino Dipartimento Architettura e Design
Responsabile scientifico: Maria Adriana Giusti, Gentucca Canella (DAD)
Scheda redatta da Tanja Marzi
creata il 31/12/2004
ultima modifica il 28/01/2025
Revisori:
Mezzino Davide 2021














