EDIFICIO POLIFUNZIONALE E PARCHEGGI
Scheda Opera
- Comune: Jesi
- Denominazione: EDIFICIO POLIFUNZIONALE E PARCHEGGI
- Indirizzo: Viale della Vittoria, Via Mercantini
- Data: 2003 - 2008
- Tipologia: Edifici polifunzionali
- Autori principali: Silvano Rossini
Descrizione
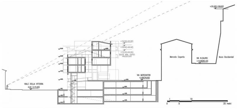
Il recupero di una grande area a ridosso del centro storico di Jesi, sullo storico viale della Vittoria ha rappresentato l’occasione per i progettisti, coordinati e guidati dall’architetto Silvano Rossini, di cimentarsi con una grande opera a metà strada tra interesse pubblico e privato. Il progetto prevede la completa demolizione e successiva ricostruzione, nel pieno rispetto delle cubature (pari a quasi 25.000 metri cubi), di un eterogeneo campionario di edifici con la costruzione di una facciata unitaria che fronteggiasse il trafficato viale. L’edificio comprende al livello del viale della Vittoria spazi commerciali e l’ingresso al parcheggio pubblico interrato fino a due livelli sotto terra e una profondità di oltre 30 metri fino alla retrostante via Mercantini. Al livello superiore sono posti uffici aperti sul viale ma il cui ingresso può avvenire, attraverso un variegato sistema di percorsi, dallo stesso viale o più comodamente dalla retrostante via Mercantini che si trova ad una quota di circa quattro metri superiore rispetto al viale. Su questa via un doppio percorso coperto (porticato) segna una doppia opportunità di ingressi per gli uffici e per i tre livelli di abitazioni che si sviluppano soprattuto nella più tranquilla via Mercantini. Da segnalare la via, solo parzialmente coperta, che corre nel ventre del complesso per tutta la sua lunghezza consentendo di leggere la componente strutturale (evidente il potente telaio in calcestruzzo armato) e impiantistica da un punto di vista inconsueto, che rivela la durezza tecnologica di una costruzione di questa dimensione e allo stesso rivelata la complessa fase progettuale di un edificio così complesso. Le proprietà abitative sono contraddistinte da tagli e metrature diversificate (monolocali, bilocali e trilocali) per rispondere con efficacia alle diverse richieste del mercato immobiliare.
Pur nella composizione formale unitaria dei prospetti la loro frammentazione (per materiali di facciata usati e per la non regolare e uniforme altezza dei fronti) riflettono la variegata edilizia preesistente e ancora presente nel contesto, un segno di permanenza e allo stesso tempo di modernità a cui i progettisti sono riusciti a rispondere con efficacia. (GB)
Info
- Progetto: 2003 - 2004
- Esecuzione: 2005 - 2008
- Tipologia Specifica: Residenze, uffici, spazio commerciale e parcheggio pubblico
- Committente: Società Mercantini srl
- Proprietà: Proprietà privata
- Destinazione originaria: Condomini con uffici, spazi commerciali e parcheggio
- Destinazione attuale: Condomini con uffici, spazi commerciali e parcheggio
Autori
| Nome | Cognome | Ruolo | Fase Progetto | Archivio Architetti | Url Profilo | Autore Principale |
|---|---|---|---|---|---|---|
| Clito | Bartolini | Progetto strutturale | Progetto | NO | ||
| Francesco | Cellini | Consulente | Progetto | Visualizza Profilo | https://accademiasanluca.it/accademici/archivio/francesco-cellini | NO |
| Campanelli | Costruzioni (Monteroberto) | Impresa esecutrice | Esecuzione | NO | ||
| BC | Costruzioni (Osimo) | Impresa esecutrice | Esecuzione | NO | ||
| Alfredo | Mancinelli | Direzione lavori | Esecuzione | NO | ||
| Paolo | Morosetti | Progetto strutturale | Progetto | NO | ||
| Silvano | Rossini | Progetto architettonico | Progetto | Visualizza Profilo | https://studiorossiniarchitetti.eu/ | SI |
| Paolo | Sartini | Progetto Impianti | Progetto | NO | ||
| Carlo | Scortichini | Collaboratore | Progetto | NO | ||
| Fabio | Tarabelli | Collaboratore | Progetto | NO |
- Strutture: Calcestruzzo armato e acciaio
- Materiale di facciata: Intonaco e laterizio
- Coperture: Soletta inclinata e orizzontale in calcestruzzo
- Serramenti: Metallo
- Stato Strutture: Ottimo
- Stato Materiale di facciata: Ottimo
- Stato Coperture: Ottimo
- Stato Serramenti: Ottimo
- Vincolo: Non Vincolata
- Provvedimenti di tutela: Nessuna opzione
- Data Provvedimento:
- Riferimento Normativo:
- Altri Provvedimenti:
- Foglio Catastale: -
- Particella: -
Note
Hanno collaborato con l’architetto alla realizzazione del progetto gli ingegneri Carlo Scortichini, l’architetto Francesco Cellini (consulente). Al progetto delle strutture e alla verifica della legge n 818/84 hanno lavorato gli ingegneri Clito Bartolini e Paolo Morosetti; gli impianti sono stati progettati dall’ingegnere Paolo Sartini mentre il coordinamento generale e la direzione dei lavori è stata affidata all’ingegnere Alfredo Mancinelli. Hanno collaborato alla definizione e alla successiva realizzazione dell’opera l’architetto Fabio Tarabelli. I lavori sono stati eseguiti dall’impresa Campanelli Costruzioni di Monteroberto (AN) e dalla BC Costruzioni di Osimo (AN).
Bibliografia
| Autore | Anno | Titolo | Edizione | Luogo Edizione | Pagina | Specifica |
|---|---|---|---|---|---|---|
| Rossini Silvano | 2009 | Edificio polifunzionale e e parcheggi a Jesi | Progetti n. 23 | Monteroberto | 16-21 | Si |
Criteri
| 7. L’edificio o l’opera di architettura si segnala per il particolare valore qualitativo all’interno del contesto urbano in cui è realizzata. |
Crediti Scheda
Enti di riferimento: DGAAP - Segretariato Regionale per le MarcheTitolare della ricerca: Università Politecnica delle Marche - Dipartimento di Ingegneria Civile Edile e di Architettura
Responsabile scientifico: Antonello Alici
Scheda redatta da
creata il 31/12/2016
ultima modifica il 21/01/2025
Revisori:
Menzietti Giulia 2022




