ISTITUTO TECNICO COMMERCIALE
Scheda Opera
- Comune: Cagli
- Denominazione: ISTITUTO TECNICO COMMERCIALE
- Indirizzo: Via Giovanni Santi
- Data: 1981 - 1985
- Tipologia: Scuole
- Autori principali: Srl Interstudio
Descrizione
Interstudio, formato, tra gli altri, dai progettisti Yasuo Watanabe e Ernesto Olmeda, storici collaboratori dell'architetto Giancarlo De Carlo in alcuni dei più noti progetti a Urbino, è uno studio che lavora, dalla fine degli anni settanta, a numerosi edifici scolastici realizzati nella provincia di Pesaro-Urbino. La sede dell’Istituto Tecnico Commerciale di Cagli è uno dei lavori più noti che lo studio porta a termine a Cagli, piccolo centro dell’entroterra urbinate sulla via Flaminia.
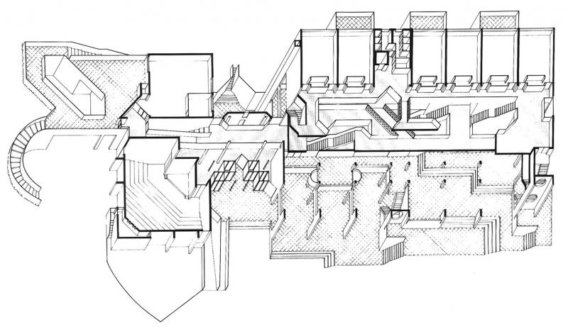
L’edificio sorge fuori dal centro storico in una zona di espansione che ospita oggi anche altri complessi scolastici e la sede del comando locale del Corpo Forestale dello Stato. Il complesso scolastico è formato da una spina centrale di distribuzione che collega longitudinalmente il blocco degli spazi comuni (biblioteca, aula magna-auditorium, mensa e ingresso) con quello della aule orientate a nord, e la zona amministrativa a sud sospesa da possenti setti in calcestruzzo armato a vista. Sotto questa parte sospesa trova posto un portico soleggiato, protetto dal vento e dalla pioggia, e utilizzato dagli studenti nei momenti di pausa, e una piazza scoperta che guarda al paesaggio collinare circostante. Le scale caratterizzano sia la vista esterna che la spina di connessione interna; realizzate come la struttura portante in calcestruzzo faccia-vista, sono arricchite e ravvivate da parapetti metallici di colore giallo, una chiara citazione dei particolari che De Carlo ha utilizzato per analoghi elementi nei Collegi e nelle Facoltà di Urbino.
Info
- Progetto: 1981 - 1982
- Esecuzione: 1982 - 1985
- Tipologia Specifica: Scuola superiore
- Committente: Provincia di Pesaro-Urbino
- Proprietà: proprietà Ente pubblico territoriale
- Destinazione originaria: Scuola superiore
- Destinazione attuale: Scuola superiore
Autori
- Strutture: Calcestruzzo armato
- Materiale di facciata: Calcestruzzo armato e mattone faccia vista
- Coperture: Piane in calcestruzzo armato
- Serramenti: Metallo
- Stato Strutture: Ottimo
- Stato Materiale di facciata: Ottimo
- Stato Coperture: Buono
- Stato Serramenti: Buono
- Vincolo: Non Vincolata
- Provvedimenti di tutela: Nessuna opzione
- Data Provvedimento:
- Riferimento Normativo:
- Altri Provvedimenti:
- Foglio Catastale: -
- Particella: -
Note
Interstudio è formato da: Yasuo Watanabe, Antonio Vecchi, Carlo Ripanti, Ernesto Olmeda. La scuola è stata realizzata dall’impresa Giorgi S.p.A. di Pesaro. L’archivio è custodito presso la società di Ingegneria Interstudio a Pesaro.
Bibliografia
| Autore | Anno | Titolo | Edizione | Luogo Edizione | Pagina | Specifica |
|---|---|---|---|---|---|---|
| Rossi Lamberto | 1986 | Istituto tecnico commerciale a Cagli e scuola media a San Costanzo (Pesaro) | Spazio e società n. 33 | Milano | 46-51 | Si |
| Watanabe Yasuo | 1986 | Cagli and Middle School in San Costanzo | Architecture and Urbanism n. 187 | Tokyo | 69-82 | Si |
| 1986 | Edifici scolastici a Cagli e a San Costanzo, Pesaro | L’industria delle costruzioni n. 179 | Roma | 18-31 | Si | |
| Morganti Renato | 1988 | Gli edifici scolastici dell’Interstudio | L’industria delle costruzioni n. 195 | Roma | Si |
Criteri
| 2. L’edificio o l’opera di architettura è illustrata in almeno due riviste di architettura di livello nazionale e/o internazionale. |
Crediti Scheda
Enti di riferimento: DGAAP - Segretariato Regionale per le MarcheTitolare della ricerca: Università Politecnica delle Marche - Dipartimento di Ingegneria Civile Edile e di Architettura
Responsabile scientifico: Antonello Alici
Scheda redatta da
creata il 31/12/2016
ultima modifica il 24/01/2025
Revisori:
Menzietti Giulia 2021




