CENTRO CIVICO-RELIGIOSO DELLA PARROCCHIA DI SANTA MARIA DELLA PRESENTAZIONE
Scheda Opera
- Comune: Roma
- Località: Trionfale
- Denominazione: CENTRO CIVICO-RELIGIOSO DELLA PARROCCHIA DI SANTA MARIA DELLA PRESENTAZIONE
- Indirizzo: Via Thomas Mann N. 20
- Data: 1995 - 2002
- Tipologia: Edifici per il culto
- Autori principali: Studio Nemesi
Descrizione
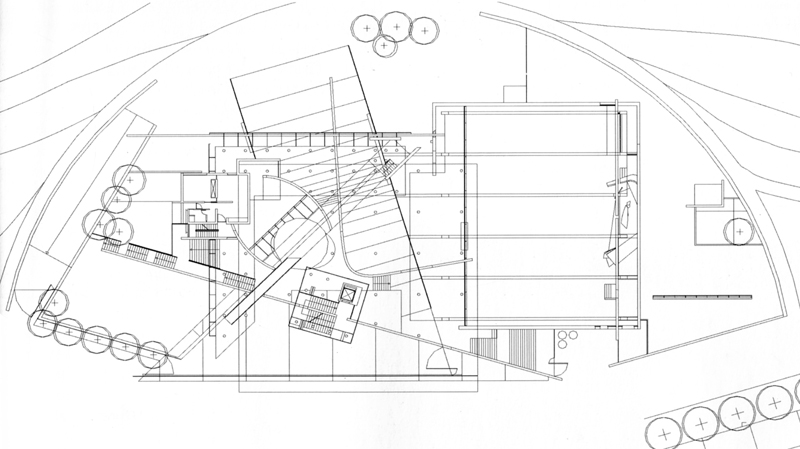
L’intervento, che rientra nel programma ”50 chiese per Roma 2000” intrapreso dal Vicariato di Roma in occasione del Giubileo, consiste nella realizzazione di una ”Pastorale per lo sport”, all'interno del PdZ Quartaccio, insediamento collocato nella periferia settentrionale della città, in una porzione ”marginale” del tessuto metropolitano. Rispetto ai veri e propri centri parrocchiali, che costituiscono il corpo principale del programma giubilare, l’intervento possiede dei forti caratteri di specificità sotto il profilo tipologico. Il programma infatti prevedeva la realizzazione di un complesso a destinazione d’uso mista, in grado cioè di ospitare funzioni connesse alla liturgia - una cappella feriale, alcune aule per la catechesi, la casa del parroco - e spazi legati allo svolgimento di attività prevalentemente sportive ma anche più propriamente civiche - rappresentazioni teatrali, assemblee cittadine - e in casi eccezionali, funzioni religiose. Il progetto dunque, interpretando in chiave simbolica il programma funzionale, vive del rapporto e del contrasto tra due organismi architettonici: la parte civica appare come una ”presenza”, un volume compatto che, nella sua astrazione - ed introversione - sembra un oggetto ”emerso”, come appartenente al paesaggio circostante; la parte sacra si configura viceversa come il progetto di un vuoto, una ”assenza”: il piano copertura insieme alla maglia regolare di pilastri e al piano trasparente che ne costituisce l’involucro definiscono infatti un ambito all'interno del quale convivono in un rapporto dinamico tra loro i volumi destinati alle singole funzioni. Questo spazio, nella doppia valenza di spazio interno e luogo esterno, di spazio denso ma fluido, imploso ma aperto verso il paesaggio, trova il suo valore simbolico nell'essere esso stesso ”materia”, capace di relazionare tra loro i diversi luoghi del progetto e questi stessi con il costruito da una parte ed il paesaggio con l’altra. Rispetto al luogo, un’area di cerniera e di raccordo tra la città e gli spazi aperti tipici della campagna romana, di paesaggio tra natura ed artificio, il progetto, impostato ad una quota media di circa 5 m sotto il livello stradale, dà corpo infatti alla condizione di ”margine”; alla quota inferiore una piazza, spazio per l’incontro e l’aggregazione, rappresenta il fulcro funzionale del complesso, luogo di accesso e smistamento dei flussi di attraversamento.
(da www.nemesistudio.it)
Info
- Progetto: 1995 - 1998
- Esecuzione: 1999 - 2002
- Tipologia Specifica: Centro civico e religioso
- Committente: Vicariato di Roma
- Proprietà: Proprietà Ente religioso
Autori
| Nome | Cognome | Ruolo | Fase Progetto | Archivio Architetti | Url Profilo | Autore Principale |
|---|---|---|---|---|---|---|
| Rossana | Atena | Collaboratore | Progetto | NO | ||
| Francesco | Cherchi | Collaboratore | Progetto | NO | ||
| Maria Claudia | Clemente | Progetto architettonico | Progetto | Visualizza Profilo | https://www.labics.it/studio/founding | NO |
| Daniele | Durante | Collaboratore | Progetto | NO | ||
| Srl | Fibbi & De Camillis | Progetto Impianti | Progetto | NO | ||
| Alberto | Greti | Collaboratore | Progetto | NO | ||
| Francesco | Isidori | Collaboratore | Progetto | Visualizza Profilo | https://www.labics.it/studio/founding | NO |
| Francesco | Mammucari | Collaboratore | Progetto | NO | ||
| Gabriele | Molè | Progetto strutturale | Progetto | NO | ||
| Michele | Molè | Progetto architettonico | Progetto | Visualizza Profilo | https://www.nemesistudio.it/en/people/ | NO |
| Studio | Nemesi | Progetto architettonico | Progetto | Visualizza Profilo | http://www.nemesistudio.it/it/ | SI |
| Srl | Ruggieri Mario | Impresa esecutrice | Esecuzione | NO | ||
| Marco | Sardella | Collaboratore | Progetto | NO | ||
| Adele | Savino | Collaboratore | Progetto | NO | ||
| Camillo | Sommese | Progetto strutturale | Progetto | NO |
- Strutture: cemento armato, acciaio
- Materiale di facciata: calcestruzzo a faccia vista, pannelli prefabbricati leggeri
- Coperture: metallica
- Stato Strutture: Buono
- Stato Materiale di facciata: Discreto
- Stato Coperture: Discreto
- Vincolo: Non Vincolata
- Provvedimenti di tutela: Nessuna opzione
- Data Provvedimento:
- Riferimento Normativo:
- Altri Provvedimenti:
- Foglio Catastale: -
- Particella: -
Note
Attualmente l’edificio versa in uno stato di abbandono.
Bibliografia
| Autore | Anno | Titolo | Edizione | Luogo Edizione | Pagina | Specifica |
|---|---|---|---|---|---|---|
| Zagari Franco | 2000 | Gerico 20+20+20 | Il Progetto n. 6 | 67 | No | |
| Zunino Maria Giulia | 2000 | La piazza nella chiesa | Abitare n. 400 | 176-179 | Si | |
| Marino A. | 2001 | Occasione Borromini | Costruire n. 215 | 226-229 | Si | |
| Strano C. | 2001 | L'ambiente tra esterno e interno | L'Arca n. 161 | 84-87 | Si | |
| Saggio N. | 2002 | Realismo fantastico. Immaginazione e pragmatismo | Costruire n. 227 | 74-77 | Si | |
| Prestinenza Puglisi Luigi | 2002 | Nemesi. Una nuova architettura italiana | Ottagono n. 154 | 86-93 | Si | |
| Casciani Stefano | 2002 | Sacro e profano. Chiesa di periferia | Domus n. 852 | 106-115 | Si | |
| 2002 | Premio Europeo di Architettura "Luigi Cosenza" | Clean | Napoli | 122-125 | No | |
| Molinari Luca | 2002 | Italia 2001 | Il Progetto n. 11 | 63 | No | |
| Prestinenza Puglisi Luigi | 2002 | Tre parole per il prossimo futuro | Meltemi-Babele | Roma | 16-20 | No |
| Locci Massimo | 2003 | Architettura d'avanguardia | AR Magazine n. 49 | 6-13 | Si | |
| 2003 | Monument n. 55 | 64-71 | Si | |||
| Mosco Valerio Paolo | 2004 | Centro parrocchiale a Quartaccio, Roma | L'Industria delle Costruzioni n. 375 | 30-37 | Si | |
| 2004 | Itinerario contemporaneo. Roma | Area n. 76 | 188-197; Scheda n. 59 | No | ||
| Piva Antonio, Galliani Pierfranco (a cura di) | 2005 | Progetto di architettura. Architetti italiani under 50 | Marsilio | Venezia | 174-175 | No |
| 2005 | D'Architettura n. 27 | 94-95 | Si | |||
| Servadio Leonardo | 2005 | Chiesa Santa Maria della Presentazione a Roma. La Piazza sotto un grande tetto | Chiesa Oggi n. 73 | 26-35 | Si | |
| Ciucci Giorgio, Ghio Francesco, Rossi Piero Ostilio | 2006 | Roma. La nuova architettura | Electa | Milano | 244-247 | No |
| Brandolini Sebastiano | 2008 | Roma. Nuova architettura | Skira | Milano | 154-159 | No |
| Bliek Françoise, Del Gallo Paola, De Simoni Pietro (a cura di) | 2012 | Roma. III Millennio. 32 progetti di architettura | Hoepli | Milano | 234-239 | No |
| Rossi Piero Ostilio | 2012 | Roma. Guida all'architettura moderna 1909-2011 (IV ed.) | Laterza | Roma-Bari | Scheda n. 249 | Si |
| Bochicchio Leila | 2013 | Centro Civico Religioso di S. Maria della Presentazione, in Ciresi Francesco (a cura di), 15 x 15. Nuovi sguardi su Roma | Nulla Die | Piazza Armerina | 18-27 | Si |
| Petreschi Marco, Valentin Nilda | 2013 | Chiese della periferia romana 2000-2013. Dal Grande Giubileo all'anno costantiniano | Electa | Milano | 84-87 | Si |
Criteri
| 1. L’edificio o l’opera di architettura è citata in almeno tre studi storico-sistematici sull’architettura contemporanea di livello nazionale e/o internazionale. | |
| 2. L’edificio o l’opera di architettura è illustrata in almeno due riviste di architettura di livello nazionale e/o internazionale. | |
| 4. L’edificio o l’opera di architettura riveste un ruolo significativo nell’ambito dell’evoluzione del tipo edilizio di pertinenza, ne offre un’interpretazione progressiva o sperimenta innovazioni di carattere distributivo e funzionale. | |
| 6. L’edificio o l’opera di architettura è stata progettata da una figura di rilievo nel panorama dell’architettura nazionale e/o internazionale. | |
| 7. L’edificio o l’opera di architettura si segnala per il particolare valore qualitativo all’interno del contesto urbano in cui è realizzata. |
Sitografia ed altri contenuti online
| Titolo | Url |
|---|---|
| S. Maria della presentazione, Roma. Centro polifunzionale, ricreativo e di culto | Visualizza |
Crediti Scheda
Enti di riferimento: PaBAAC - Direzione Regionale per il LazioTitolare della ricerca: Università degli studi di Roma "Sapienza"
Responsabile scientifico: Piero Ostilio Rossi
Scheda redatta da
creata il 31/12/2012
ultima modifica il 28/02/2025
Revisori:
Alberto Coppo 2021






