SCUOLA MATERNA E SCUOLA ELEMENTARE
Scheda Opera
- Comune: Vallefoglia
- Località: Bottega
- Denominazione: SCUOLA MATERNA E SCUOLA ELEMENTARE
- Indirizzo: Via della Libertà e Via Piersanti Mattarella
- Data: 1980 - 1981
- Tipologia: Scuole
- Autori principali: Srl Interstudio
Descrizione
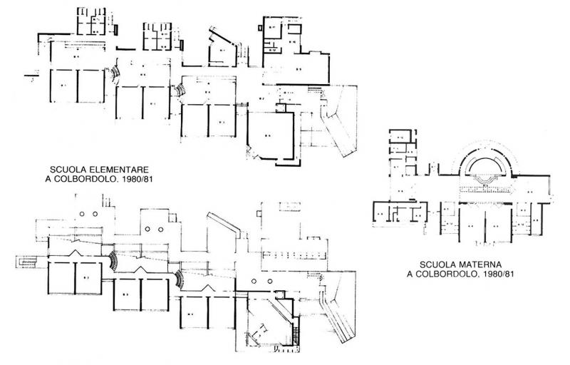
In due edifici distinti nel piccolo centro del pesarese, la firma Interstudio mette a punto soluzioni formali notevolmente differenti in modo da garantire le più efficaci e funzionali condizioni d’uso. La piccola scuola materna comprende due aule per le attività formative e un grande spazio comune che funge da atrio, luogo per i giochi, e refettorio. Completano il progetto gli spazi di servizio e la parte amministrativa che determinano una disposizione planimetrica compatta, raccolta lungo la direttrice che parte dall’ingresso e si sviluppa fino ad una uscita privata sul giardino della scuola.
La scuola elementare ha una pianta molto più articolata che procede in diagonale; i progettisti organizzano gli spazi delle aule, disposte a gruppi di due, su un lato, mente sull’altro orientato a sud sono sistemati i servizi di pertinenza, luoghi di passaggio e collegamento, spazi per l’amministrazione, i laboratori didattici, la hall d’ingresso, ecc.
Esternamente i due edifici affiancati si presentano con un rivestimento in mattoni faccia-vista quasi integrale ad eccezione delle parti strutturali orizzontali (travi e solette) e delle scale che sono mantenute in calcestruzzo armato faccia vista. (GB)
Info
- Progetto: 1980 - 1980
- Esecuzione: 1980 - 1981
- Tipologia Specifica: Scuola materna e scuola elementare
- Committente: Provincia di Pesaro-Urbino
- Proprietà: proprietà Ente pubblico territoriale
- Destinazione originaria: Scuola materna ed elementare
- Destinazione attuale: Scuola materna ed elementare
Autori
- Strutture: Calcestruzzo armato
- Materiale di facciata: Rivestimento in listelli di mattone faccia vista
- Coperture: Piana in calcestruzzo armato
- Serramenti: Metallo
- Stato Strutture: Buono
- Stato Materiale di facciata: Ottimo
- Stato Coperture: Buono
- Stato Serramenti: Buono
- Vincolo: Non Vincolata
- Provvedimenti di tutela: Nessuna opzione
- Data Provvedimento:
- Riferimento Normativo:
- Altri Provvedimenti:
- Foglio Catastale: -
- Particella: -
Note
Interstudio è formato da: Yasuo Watanabe, Antonio Vecchi, Carlo Ripanti, Ernesto Olmeda. Le due scuole, costruite nel comune di Colbordolo, oggi risultato essere nel comune di Vallefoglia che dal 2014 è il frutto dei comuni di Colbordolo e Sant’Angelo in Lizzola. L’archivio è custodito presso la società di Ingegneria Interstudio a Pesaro.
Bibliografia
| Autore | Anno | Titolo | Edizione | Luogo Edizione | Pagina | Specifica |
|---|---|---|---|---|---|---|
| Watanabe Yasuo | 1983 | Elementary School and Kindergarten at Corbordolo | Architecture and Urbanism n. 152 | Tokyo | 78-84 | Si |
| Morganti Renato | 1988 | Gli edifici scolastici dell’Interstudio | L’industria delle costruzioni n. 195 | Roma | Si |
Criteri
| 2. L’edificio o l’opera di architettura è illustrata in almeno due riviste di architettura di livello nazionale e/o internazionale. |
Crediti Scheda
Enti di riferimento: DGAAP - Segretariato Regionale per le MarcheTitolare della ricerca: Università Politecnica delle Marche - Dipartimento di Ingegneria Civile Edile e di Architettura
Responsabile scientifico: Antonello Alici
Scheda redatta da
creata il 31/12/2016
ultima modifica il 24/01/2025
Revisori:
Menzietti Giulia 2021




