NUOVO POLO DIDATTICO MONTE D'AGO
Scheda Opera
- Comune: Ancona
- Località: Monte d'Ago
- Denominazione: NUOVO POLO DIDATTICO MONTE D'AGO
- Indirizzo: Via Brecce Bianche
- Data: 2003 - 2005
- Tipologia: Scuole
- Autori principali: Graziano Baldascino
Descrizione
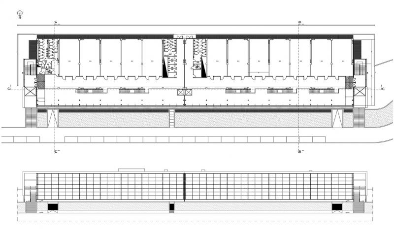
Frutto di un accordo stabilito tra l’Università Politecnica delle Marche e l’impresa Edilmix S.R.L. nella persona dell’ingegnere capo progetto Graziano Baldascino, il nuovo polo Monte d’Ago va a colmare la necessità di nuovi spazi didattici delle facoltà di Ingegneria e Biologia. L’edificio occupa una delle poche aree del campus rimaste libere, alle pendici di Monte d’Ago con una straordinaria vista sulla città e il mare in direzione nord. Proprio il fronte nord è caratterizzato da una facciata vetrata continua (lunga 116 metri e alta 10) che illumina un volume a tutta altezza su cui si affacciano due livelli di aule (24 in totale) di cui il primo con una struttura a ballatoio.
La struttura in calcestruzzo armato, realizzato in opera, del piano seminterrato che ospita un grande garage per auto (superficie di oltre 2500 metri quadrati) sostiene i due livelli superiori, caratterizzati nella parte sud da una struttura in calcestruzzo prefabbricato a telaio e pannelli coibentati a taglio termico (con la presenza di dissipatori sismici opportunamente collocati) e da un telaio in acciaio a vista nella parte nord opportunamente ancorato alla soletta di copertura in calcestruzzo alveolare. Grande attenzione è stata posta al progetto impiantistico e alle problematiche che le aule didattiche e uno spazio vetrato di queste dimensioni pongono sia in estate che in inverno dal punto di vista illuminotecnico, del riscaldamento e del raffrescamento.
Per le sue peculiarità compositive e tecniche l’edificio nel 2008 si aggiudica il Premio Marche Architettura. (GB)
Info
- Progetto: 2003 - 2004
- Esecuzione: 2004 - 2005
- Tipologia Specifica: Edificio per aule e servizi didattici
- Committente: Edilmix S.R.L. - Graziano Baldascino
- Proprietà: Proprietà pubblica
- Destinazione originaria: Edificio per aule e servizi didattici
- Destinazione attuale: Edificio per aule e servizi didattici
Autori
- Strutture: Calcestruzzo armato e acciaio
- Materiale di facciata: Vetro strutturale, calcestruzzo faccia vista, pannelli in metallo
- Coperture: Soletta piana in calcestruzzo armato
- Serramenti: Metallo
- Stato Strutture: Buono
- Stato Materiale di facciata: Buono
- Stato Coperture: Ottimo
- Stato Serramenti: Buono
- Vincolo: Non Vincolata
- Provvedimenti di tutela: Nessuna opzione
- Data Provvedimento:
- Riferimento Normativo:
- Altri Provvedimenti:
- Foglio Catastale: -
- Particella: -
Note
Al progetto hanno lavorato come consulenti per la parte architettonica Fausto Pugnaloni, Paolo Bonvini e Lorenzo Rossi, al progetto strutturale Rodolfo Antonucci, per la parte energetica e impiantistica Paolo Principi, Costanzo Di Perna, Davide Di Fabio, F. Coltellessa. I materiali grafici e di altro genere utilizzati per lo studio sono disponibili presso l’archivio dell’ufficio tecnico dell’Università Politecnica delle Marche di Ancona.
Criteri
| 7. L’edificio o l’opera di architettura si segnala per il particolare valore qualitativo all’interno del contesto urbano in cui è realizzata. |
Crediti Scheda
Enti di riferimento: DGAAP - Segretariato Regionale per le MarcheTitolare della ricerca: Università Politecnica delle Marche - Dipartimento di Ingegneria Civile Edile e di Architettura
Responsabile scientifico: Antonello Alici
Scheda redatta da
creata il 31/12/2016
ultima modifica il 24/01/2025
Revisori:
Menzietti Giulia 2022




