Censimento delle architetture italiane dal 1945 ad oggi

VILLA CASANA (SOPRAELEVAZIONE E RISTRUTTURAZIONE)

Scheda Opera

  • Planimetria
  • Vista del fronte d’ingresso
  • La villa con l’originario tetto “alla francese”, in una cartolina d’epoca
  • Scorcio d’angolo dell’edificio, con la sopraelevazione del secondo piano, 1953
  • Studio di arredamento per la sede della Presidenza Olivetti
  • Studio di arredamento per la sede della Presidenza Olivetti
  • Studio di arredamento per la sede della Presidenza Olivetti
  • Richard Neutra, a sinistra, in visita presso l'ufficio architetti della Olivetti: Annibale Fiocchi. Nel locale, al secondo piano della villa, sono visibili i plastici relativi al quartiere residenziale di Canton Vesco
  • Il salone di ricevimento al piano terreno all’epoca della presidenza di Adriano Olivetti. Si notano gli arredi dell'epoca e il “tubo gas” strutturale, inserito a seguito dell’eliminazione di un muro portante per ampliare il locale
  • Plastico dell’ampliamento, ridotto alle sole ali nord e ovest
  • Pianta dello studio di ampliamento del 1960
  • Vista laterale dello studio di ampliamento
  • Scorcio d'angolo precedente all’ultima ristrutturazione, 1986
  • Il fronte prima della ristrutturazione: si notano la facciata in mattoni a vista e il volume tecnico delle macchine ascensore in copertura
  • Il fronte posteriore, con l’ampliamento di Ottavio Cascio del 1957 per l’inserimento della scala fra il primo ed il secondo piano
  • Pianta della sistemazione esterna per la ristrutturazione a sede dell'Archivio Storico del Gruppo Olivetti, 1987
  • Piante del piano terreno per la ristrutturazione a sede dell'Archivio Storico del Gruppo Olivetti, 1987
  • Pianta del piano primo per la ristrutturazione a sede dell'Archivio Storico del Gruppo Olivetti, 1987
  • Pianta del piano secondo per la ristrutturazione a sede dell'Archivio Storico del Gruppo Olivetti, 1987
  • Scorcio d’angolo dell’edificio ristrutturato, con la nuova facciata intonacata e tinteggiata
  • Il nuovo fronte posteriore
  • La nuova scala in legno, con struttura metallica, per l’accesso al secondo piano
  • L’atrio d’ingresso al piano terreno; si notano gli impianti di sicurezza predisposti per gli archivi
  • Veduta d’insieme, 2019
  • Scorcio, 2019
  • Particolare della sopraelevazione, 2019
  • Particolare della sopraelevazione, 2019
  • Veduta d’insieme, 2019
  • Veduta d’insieme, 2019
  • Perimetrazione nominated property e buffer zone su base ortofoto, 2018
  • Comune: Ivrea
  • Denominazione: VILLA CASANA (SOPRAELEVAZIONE E RISTRUTTURAZIONE)
  • Indirizzo: Via delle Miniere N. 31
  • Data: 1953 - 1988
  • Tipologia: Interventi di recupero e trasformazione
  • Autori principali: Annibale Fiocchi
Descrizione

1. Opera originaria

«Le prime immagini di Villa Casana risalgono ad alcune cartoline d’epoca che ritraggono l'edificio (disposto sulla sommità del colle detto “Montefiorito”, compreso fra la via delle Miniere e la via Jervis), con l'originario tetto “alla francese”, a falde molto inclinate, segnate da stretti abbaini, e con una ringhiera in sommità, a delimitazione di un probabile terrazzo.
Nulla appare cambiato, rispetto alla situazione attuale, nella composizione dei prospetti dei primi due piani fuori terra rivolti verso la strada di accesso: forma, dimensione e numero delle aperture sono rimaste immutate, così come la pensilina d'ingresso ed i balconcini al primo piano.
L’evoluzione compositiva della Villa, legata ai numerosi cambi di destinazione d'uso che l'hanno caratterizzata negli ultimi quarant'anni, si è verificata infatti principalmente al piano della copertura e sui lati posteriori, meno in vista.
Nata come residenza privata della famiglia Carpenero, poi del Cavalier Vittorio Casana, del quale porta ancora il nome, essa è raggiungibile tramite una strada privata, che da via delle Miniere sale sinuosa, attraverso il parco della Villa stessa, sino a raggiungere l'ampio piazzale antistante, per poi ridiscendere sulla via Miniere con un tratto più breve e diretto, che in origine rappresentava l'unico accesso all'edificio.
La strada, illuminata su progetto di Antonio Quistelli (architetto di Napoli) nel 1958, sfila fra antiche e pregiate essenze arboree, dando accesso anche ad un altro fabbricato sorto nel parco a servizio della Villa, denominato Villa Casana piccola, in origine destinato alle scuderie e alla residenza il custode, poi ampliato nel 1957 da Ottavio Cascio, per essere destinato ad Asilo nido.
Sempre nel parco, ma in posizione più defilata e nascosta, si notano ancora i resti di due edifici destinati a serre e magazzini, ormai in disuso, edificati fra il novembre 1954 ed il marzo 1955, su progetto di Antonio Migliasso.
Di fronte all'ingresso principale, una breve scalinata conduce al belvedere della Villa, dal quale si può cogliere una panoramica completa delle Officine di via Jervis e degli edifici al contorno.
La Villa viene acquistata nel 1952 dalla Olivetti, e nel marzo del 1953 l'Ufficio Tecnico Fabbricati dell'Azienda esegue i rilievi dell'edificio, che riportano la distribuzione interna dei locali per l'uso originario di civile abitazione.
Dalle tavole si nota che il locale a nord, adiacente alla collina ed attualmente destinato a cabina elettrica, altro non era che l'androne di transito per l'accesso al cortile interno, sul quale si aprivano gli ingressi di servizio alle cucine e alla Centrale termica.
Lo scalone principale in legno collegava il piano terreno al primo piano, mentre una scala di servizio a chiocciola, sul lato nord, consentiva, partendo comunque dal piano terreno, di raggiungere anche il sottotetto.
Dal sottotetto, disposta sul lato sud, una scaletta metallica sempre a chiocciola, proveniente dal piano inferiore, consentiva probabilmente l'accesso al terrazzo, sul tetto “alla francese”.
Lo scalone centrale in legno, unico rimasto dei collegamenti verticali sinora descritti, continua a rappresentare l'elemento architettonico più significativo dell'edificio, insieme al soffitto a cassettoni del pianerottolo di arrivo al primo piano, realizzato in stucco e decorato a finto legno.
Sempre al primo piano, nel vano scala, si apriva una piccola cappella con l'altare, in cui venivano officiate le funzioni religiose.
Sopraelevazione
A seguito dell'acquisto, la Olivetti destina la Villa a sede dell'Ufficio Architetti; nel settembre del 1953 viene approvato dal Comune di Ivrea un intervento di ampliamento per la realizzazione di uffici nel sottotetto, il luogo delle camere destinate ad alloggio per la servitù; in realtà la modifica non comporta un significativo aumento di superficie utile, ma è mirata ad aumentare la fruibilità e la luminosità dei locali sotto falda, caratterizzati da pareti inclinate cieche e piccoli abbaini. Il progetto, firmato da Annibale Fiocchi, prevede la sostituzione del tetto a falde con una copertura piana in cemento e laterizio, sostenuta lungo il perimetro da esili colonnine in calcestruzzo, di diametro pari a 20 centimetri, realizzate con l'ausilio di tubi in “fibrocemento”.
Il solaio di copertura, semplicemente impermeabilizzato con guaina bituminosa, viene realizzato su due livelli, per seguire il piano di imposta del solaio sottostante mantenendo costante l'altezza interna, e isolato termicamente mediante una soffittatura “Perrier”, con una camera d'aria variabile da 20 a 50 centimetri circa.
Il cornicione, molto pronunciato lungo tutto il perimetro, presenta sul lato est una veletta verticale a scendere, per riparare più efficacemente i serramenti dall’insolazione diretta estiva; sui prospetti di progetto le parti vetrate di questo lato paiono schermate da leggeri frangisole orizzontali (forse semplici veneziane) poi non realizzate.
Il serramento, in ferro-finestra laccato grigio con vetri semplici, corre continuo all'esterno delle colonnine in calcestruzzo, creando un nastro vetrato continuo che stacca il nuovo solaio di copertura dal cordolo in cemento armato sottostante.
Il cordolo perimetrale, direttamente poggiato sull’originario cornicione del tetto a falde, svolge l'importante funzione strutturale di legatura delle murature portanti, in pietra e mattoni pieni, dei piani sottostanti.
Ampliamento
Del febbraio 1957 sono i disegni, di Ottavio Cascio, per la realizzazione di nuovo collegamento verticale fra il primo e di secondo piano, peraltro già ipotizzato nelle tavole relative alla trasformazione del sottotetto: la nuova scala, ad una sola rampa con struttura metallica, viene realizzata verso l'esterno, in aderenza al muro perimetrale ovest dell'edificio, sulla verticale del cortiletto, sfruttando come pianerottolo di partenza il locale della originaria cappella.
La scala viene coperta con una soletta leggera, ed il nuovo vano chiuso con una parete completamente vetrata su struttura metallica.
Sul finire dello stesso anno si effettuano i primi studi, sempre di Ottavio Cascio, per destinare l'edificio a sede della Presidenza della Olivetti.
Per soddisfare le nuove necessità di rappresentanza, nel novembre 1957 viene autorizzata, dal Comune di Ivrea, la copertura del cortiletto interno verso la collina, con la realizzazione di nuovi servizi igienici e locali accessori, mentre l'androne di accesso al cortiletto stesso viene chiuso e utilizzato come Centrale termica.
La Centrale verrà quindi ridimensionata e trasformata in Centrale di scambio termico, sfruttando il vapore della Centrale termica degli stabilimenti; le apparecchiature saranno sistemate in un piccolo vano ricavato nella roccia nei pressi del vecchio androne; quest'ultimo sarà definitivamente destinato a cabina elettrica.
Nel gennaio del 1959 compare, sulla copertura, il torrino per le macchine del nuovo impianto ascensore, in parte vetrato e di notevoli dimensioni; a marzo viene abbattuto il muro portante fra i due locali a nord, a piano terra, per creare un unico salone di ricevimento per i visitatori: il solaio, opportunamente rinforzato, viene sostenuto da travi metalliche, poggiate su due esili colonne costituite da “tubi gas” da 6 pollici.
I nuovi locali, così modificati, vengono dichiarati agibili il 21 ottobre 1959.
Alle modifiche murarie si accompagna uno studio minuzioso delle finiture e dell'arredamento: Adriano Olivetti occuperà l’ampio locale sull'angolo nord-est, al primo piano, caratterizzato dal bow window con il terrazzino.
Nei primi mesi del 1960 evidenti esigenze di nuovi spazi, a servizio della Presidenza, conducono allo studio di massima per un ampliamento di circa 1.000 metri quadrati, sulla collina ad ovest della Villa, da destinare a uffici, salotti e con un'ampia sala riunioni: il nuovo corpo di fabbrica, sviluppato su tre ali chiuse a ferro di cavallo, prevede due collegamenti diretti con la villa, al livello del primo piano, e una scalinata ad ovest per l'accesso diretto dall'esterno, salendo dalla strada nel parco.
Il progetto, poi non realizzato (probabilmente in vista del trasferimento della Presidenza al Palazzo per Uffici, allora in corso di progettazione), è stato anche materializzato in un plastico in legno, dove il corpo aggiuntivo è però limitato a due sole ali ortogonali, aperte sul lato sud.
Nel 1964, terminato il palazzo per uffici ed ivi trasferita la Presidenza, Villa Casana diventa sede dell'Asilo infantile Olivetti, con ulteriori modifiche interne progettate da Ottavio Cascio e realizzate a partire dal gennaio 1966.
Dal 1984 l'edificio ospita le attività del Centro Odontoiatrico Preventivo Infantile e del Centro Pediatrico Olivetti sino a quando, nel luglio 1987, hanno inizio i lavori di trasformazione per accogliere la nuova sede dell'Archivio Storico del Gruppo Olivetti.
Ristrutturazione
Il servizio di Corporate Identity e l'Ufficio Tecnico dell'azienda elaborano il progetto architettonico impiantistico, esteso alla progettazione su misura degli arredi speciali per le scaffalature delle biblioteche e per gli espositori: sono oltre un centinaio le tavole di particolare redatte da Luigi Mariani, che seguirà anche la direzione artistica dei lavori, mentre la direzione tecnica verrà affidata a Sergio Magario.
Il piano terreno viene destinato ad archivi, con scaffalature metalliche compattabili, scorrevoli su rotaie; per ospitare il caveau, illuminato solo da quattro lucernari zenitali a cupola, viene ampliata la copertura del cortiletto interno, demolendo i servizi igienici e realizzando un ulteriore sbancamento di circa 60 metri cubi in roccia viva.
Al primo piano le Biblioteche, con i libri di Camillo e Adriano Olivetti, le Edizioni di Comunità e le pubblicazioni di carattere aziendale; al secondo e ultimo piano la Direzione, gli Uffici, l'Archivio dei disegni e la Sala conferenze.
Vengono completamente ristrutturati gli interni, integrando all'arredamento gli impianti di sicurezza e controllo, sostituiti i pavimenti con granito legno, rinforzato il solaio nord per sopportare gli elevati carichi e sostituita la scala metallica di collegamento fra il primo ed il secondo piano, a rampa unica, con una nuova scala in legno, su travi metalliche, interrotta da un piano di riposo intermedio.
L'installazione di un ascensore oleodinamico consente la demolizione completa del vecchio torrino con macchine e funi; viene eliminato anche il vaso di espansione dell'impianto termico, ottenendo così un solaio di copertura completamente piano.
I nuovi serramenti, in alluminio elettrocolore testa di moro, e i vetri-camera color bronzo, vanno a sostituire gli originali infissi in legno e le avvolgibili; anche la parete in ferro e vetro del lato ovest lascia spazio ad un curtain-wall con vetri a specchio, mentre l’ampliamento del secondo piano viene evidenziato con una fascia di frangisole a palette verticali orientabili elettricamente.
Anche i prospetti esterni subiscono un radicale intervento tipologico e cromatico: Hans von Klier decide di uniformare le parti in mattoni pieni facciavista, dei corpi di fabbrica a nord e ad est, con i finti mattoni, tracciati su intonaco e parzialmente danneggiati, del corpo a sud; un leggero intonaco di rasatura, tinteggiato in rosa, e la ripresa con pittura ai silicati grigia delle pareti in cemento, rendono omogenee le fronti, su cui si stagliano i grandi serramenti senza più montante centrale.
Le parti in ferro delle ringhiere dei balconi, e la struttura di sostegno della pensilina d’ingresso, vengono trattati con smalto ferromicaceo verde; sulla collina ad ovest si realizza una scala metallica esterna, per l’uscita di sicurezza diretta dal secondo piano, già prevista nell’ampliamento di Annibale Fiocchi ma poi non realizzata. Sempre all’esterno viene rifatta la pavimentazione del piazzale, eliminando l’asfalto e posando cubetti di porfido del Trentino, viene pavimentata con ciottoli la scala di ingresso al belvedere ed ampliato il parcheggio, sfruttando parte dell’area a verde sul lato sud.
[…] Riferimenti generali: Progetto architettonico – Sopraelevazione: Annibale Fiocchi; Ristrutturazione: Daniele Boltri, Luigi Mariani, Hans von Klier. Progetto strutturale – Sopraelevazione: Antonio Migliasso; Ristrutturazione: Pier Lorenzo Alvigini. Direzione lavori – Sopraelevazione: Aventino Tarpino; Ristrutturazione: Sergio Guidolin. Concessione Edilizia – Sopraelevazione: 21 settembre 1953; Ristrutturazione: 27 luglio 1987. Agibilità – Sopraelevazione: 16 luglio 1954; Ristrutturazione: 14 novembre 1988. Superfici – piano terreno: 450 mq; piano primo: 380 mq; piano secondo: 370 mq». (Pier Paride Vidari, Daniele Boltri, Giovanni Maggia, Enrico Papa, Architetture olivettiane a Ivrea. I luoghi del lavoro e i servizi socio-assistenziali di fabbrica, Gangemi, Roma 1998, pp. 260-269)

«Area di corso Jervis, via delle Miniere, via Pavone, via Carandini, strada Monte Navale.
[…] L’area è inoltre caratterizzata dalla presenza sulla sommità della collina a nord-ovest da Villa Casana, edificio storico di inizio secolo immerso in un parco con annessa una villetta, acquistato dalla Società Olivetti nel 1952. Sia la Villa Casana che la Villetta sono oggi sede dell’Associazione Archivio Storico Olivetti (dal 1998). Durante gli anni contrassegnati dall’attività della fabbrica, la Villa è stata dapprima sede dell’Ufficio Architetti (1953), poi della Presidenza Olivetti (1957) e infine del centro odontoiatrico e pediatrico Olivetti (dal 1984), mentre la villetta è stata sede dell’asilo infantile Olivetti (1976).
[…] L’Associazione Archivio Storico Olivetti, costituito a Ivrea nel 1998 su iniziativa della Società Olivetti, in accordo con la Fondazione Adriano Olivetti e con la partecipazione di importanti soci pubblici e privati, svolge attività di raccolta, riordino, conservazione, studio e promozione del vastissimo patrimonio archivistico riguardante la storia della Società e delle personalità della famiglia Olivetti. […] L’Associazione ha sede presso Villa Casana, edificio storico immerso in un grande parco non lontano dal centro della città di Ivrea e sovrastante l’edificio residenziale ovest». (Dossier di Candidatura di Ivrea Città Industriale del XX secolo nella lista del Patrimonio Mondiale Unesco, pp. 42, 225)

2. Consistenza dell’opera al 2019 / Stato attuale

Originariamente destinata a residenza unifamiliare, l’opera ha negli anni modificato più volte la propria destinazione d’uso sino a diventare, nel 1987, la nuova sede dell'Archivio Storico del gruppo Olivetti. In tale occasione gli interni sono stati completamente ristrutturati integrando all'arredamento gli impianti di sicurezza e controllo; i pavimenti sono stati sostituiti con granito e legno; il solaio nord è stato rinforzato per sopportare i nuovi carichi; la scala metallica di collegamento fra il primo ed il secondo piano, a rampa unica, è stata sostituita con una nuova scala in legno su travi metalliche, interrotta da un piano di riposo intermedio. Il vecchio torrino è stato demolito in seguito all’installazione di un ascensore oleodinamico e il vaso di espansione dell'impianto termico è stato eliminato per ottenere un solaio di copertura completamente piano.


Inoltre gli originali infissi in legno e le avvolgibili sono stati sostituiti da nuovi serramenti in alluminio elettrocolore testa di moro e vetri-camera color bronzo, la parete in ferro e vetro del lato ovest è stata sostituita da un curtain-wall con vetri a specchio e l’ampliamento del secondo piano è estato evidenziato con una fascia di frangisole a palette verticali.
Anche i prospetti esterni hanno subito un radicale cambiamento tipologico e cromatico: le parti in mattoni pieni facciavista dei corpi di fabbrica a nord e ad est sono state uniformate con i finti mattoni tracciati su intonaco del corpo a sud. I fronti, su cui è stato applicato un leggero strato di intonaco di rasatura tinteggiato di rosa, sono stati resi omogenei dalla ripresa con pittura ai silicati grigia delle pareti in cemento. I serramenti hanno per il montante centrale. Infine, la pavimentazione del piazzale è stata rifatta eliminando l’asfalto e posando cubetti di porfido del Trentino, la scala di ingresso al belvedere è stata pavimentata con ciottoli e il parcheggio è stato ampliando sfruttando parte dell’area verde sul lato sud.
Sulle superfici esterne si riscontrano alcune forme di degrado.

Il complesso di Villa Casana è incluso nella buffer zone del sito “Ivrea, città industriale del XX secolo” inserito nel 2018 nella World Heritage List dell'UNESCO. (http://whc.unesco.org/en/list/1538)

(Scheda a cura di Stefania Dassi MiBACT SR-PIE con Bianca Guiso, DAD - Politecnico di Torino)

Info
  • Progetto: 1953 -
  • Esecuzione: - 1988
  • Tipologia Specifica: Uffici e servizi
  • Committente: Olivetti
  • Proprietà: Nessuna opzione
  • Destinazione originaria: Uffici
  • Destinazione attuale: Associazione Archivio Storico Olivetti
Autori
Nome Cognome Ruolo Fase Progetto Archivio Architetti Url Profilo Autore Principale
Pier Lorenzo Alvigini Progetto strutturale Progetto NO
Daniele Boltri Progetto architettonico Progetto NO
Ottavio Cascio Progetto architettonico Progetto NO
Annibale Fiocchi Progetto architettonico Progetto SI
Sergio Magario Direzione lavori Esecuzione NO
Luigi Mariani Progetto architettonico Progetto NO
Antonio Migliasso Progetto strutturale Progetto NO
Emilio Aventino Tarpino Direzione lavori Esecuzione NO
Hans Von Klier Progetto architettonico Progetto NO
  • Strutture: Calcestruzzo
  • Materiale di facciata: Il serramento, in ferro-finestra laccato grigio con vetri semplici, corre continuo all'esterno delle colonnine in calcestruzzo, creando un nastro vetrato continuo che stacca il nuovo solaio di copertura dal cordolo in cemento armato sottostante.
  • Coperture: Sostituzione del tetto a falde con una copertura piana in cemento e laterizio, sostenuta lungo il perimetro da esili colonnine in calcestruzzo, di diametro pari a 20 centimetri, realizzate con l'ausilio di tubi in “fibrocemento”
  • Serramenti: Serramento in ferro-finestra laccato grigio con vetri semplici.
  • Stato Strutture: Buono
  • Stato Materiale di facciata: Buono
  • Stato Coperture: Buono
  • Stato Serramenti: Buono

													Array
(
    [id_opera] => 3103
    [codice] => TO053
    [denominazione] => VILLA CASANA (SOPRAELEVAZIONE E RISTRUTTURAZIONE)
    [regione] => Piemonte
    [provincia] => Torino
    [comune] => Ivrea
    [localita] => 
    [indirizzo] => Via delle Miniere N. 31
    [id_categoria] => 2
    [id_tipologia] => 31
    [tipologia_specifica] => Uffici e servizi
    [anno_inizio_progetto] => 1953
    [anno_fine_progetto] => 
    [anno_inizio_esecuzione] => 
    [anno_fine_esecuzione] => 1988
    [classificazione] => 
    [id_livello_scheda] => 1
    [codice_iccd] => 
    [codice_benitutelati] => 
    [informazioni_architettoniche] => 1.	Opera originaria 

«Le prime immagini di Villa Casana risalgono ad alcune cartoline d’epoca che ritraggono l'edificio (disposto sulla sommità del colle detto “Montefiorito”, compreso fra la via delle Miniere e la via Jervis), con l'originario tetto “alla francese”, a falde molto inclinate, segnate da stretti abbaini, e con una ringhiera in sommità, a delimitazione di un probabile terrazzo.
Nulla appare cambiato, rispetto alla situazione attuale, nella composizione dei prospetti dei primi due piani fuori terra rivolti verso la strada di accesso: forma, dimensione e numero delle aperture sono rimaste immutate, così come la pensilina d'ingresso ed i balconcini al primo piano. 
L’evoluzione compositiva della Villa, legata ai numerosi cambi di destinazione d'uso che l'hanno caratterizzata negli ultimi quarant'anni, si è verificata infatti principalmente al piano della copertura e sui lati posteriori, meno in vista.
Nata come residenza privata della famiglia Carpenero, poi del Cavalier Vittorio Casana, del quale porta ancora il nome, essa è raggiungibile tramite una strada privata, che da via delle Miniere sale sinuosa, attraverso il parco della Villa stessa, sino a raggiungere l'ampio piazzale antistante, per poi ridiscendere sulla via Miniere con un tratto più breve e diretto, che in origine rappresentava l'unico accesso all'edificio.
La strada, illuminata su progetto di Antonio Quistelli (architetto di Napoli) nel 1958, sfila fra antiche e pregiate essenze arboree, dando accesso anche ad un altro fabbricato sorto nel parco a servizio della Villa, denominato Villa Casana piccola, in origine destinato alle scuderie e alla residenza il custode, poi ampliato nel 1957 da Ottavio Cascio, per essere destinato ad Asilo nido.
Sempre nel parco, ma in posizione più defilata e nascosta, si notano ancora i resti di due edifici destinati a serre e magazzini, ormai in disuso, edificati fra il novembre 1954 ed il marzo 1955, su progetto di Antonio Migliasso.
Di fronte all'ingresso principale, una breve scalinata conduce al belvedere della Villa, dal quale si può cogliere una panoramica completa delle Officine di via Jervis e degli edifici al contorno.
La Villa viene acquistata nel 1952 dalla Olivetti, e nel marzo del 1953 l'Ufficio Tecnico Fabbricati dell'Azienda esegue i rilievi dell'edificio, che riportano la distribuzione interna dei locali per l'uso originario di civile abitazione.
Dalle tavole si nota che il locale a nord, adiacente alla collina ed attualmente destinato a cabina elettrica, altro non era che l'androne di transito per l'accesso al cortile interno, sul quale si aprivano gli ingressi di servizio alle cucine e alla Centrale termica.
Lo scalone principale in legno collegava il piano terreno al primo piano, mentre una scala di servizio a chiocciola, sul lato nord, consentiva, partendo comunque dal piano terreno, di raggiungere anche il sottotetto. 
Dal sottotetto, disposta sul lato sud, una scaletta metallica sempre a chiocciola, proveniente dal piano inferiore, consentiva probabilmente l'accesso al terrazzo, sul tetto “alla francese”. 
Lo scalone centrale in legno, unico rimasto dei collegamenti verticali sinora descritti, continua a rappresentare l'elemento architettonico più significativo dell'edificio, insieme al soffitto a cassettoni del pianerottolo di arrivo al primo piano, realizzato in stucco e decorato a finto legno. 
Sempre al primo piano, nel vano scala, si apriva una piccola cappella con l'altare, in cui venivano officiate le funzioni religiose. 
Sopraelevazione
A seguito dell'acquisto, la Olivetti destina la Villa a sede dell'Ufficio Architetti; nel settembre del 1953 viene approvato dal Comune di Ivrea un intervento di ampliamento per la realizzazione di uffici nel sottotetto, il luogo delle camere destinate ad alloggio per la servitù; in realtà la modifica non comporta un significativo aumento di superficie utile, ma è mirata ad aumentare la fruibilità e la luminosità dei locali sotto falda, caratterizzati da pareti inclinate cieche e piccoli abbaini. Il progetto, firmato da Annibale Fiocchi, prevede la sostituzione del tetto a falde con una copertura piana in cemento e laterizio, sostenuta lungo il perimetro da esili colonnine in calcestruzzo, di diametro pari a 20 centimetri, realizzate con l'ausilio di tubi in “fibrocemento”.
Il solaio di copertura, semplicemente impermeabilizzato con guaina bituminosa, viene realizzato su due livelli, per seguire il piano di imposta del solaio sottostante mantenendo costante l'altezza interna, e isolato termicamente mediante una soffittatura “Perrier”, con una camera d'aria variabile da 20 a 50 centimetri circa.
Il cornicione, molto pronunciato lungo tutto il perimetro, presenta sul lato est una veletta verticale a scendere, per riparare più efficacemente i serramenti dall’insolazione diretta estiva; sui prospetti di progetto le parti vetrate di questo lato paiono schermate da leggeri frangisole orizzontali (forse semplici veneziane) poi non realizzate.
Il serramento, in ferro-finestra laccato grigio con vetri semplici, corre continuo all'esterno delle colonnine in calcestruzzo, creando un nastro vetrato continuo che stacca il nuovo solaio di copertura dal cordolo in cemento armato sottostante. 
Il cordolo perimetrale, direttamente poggiato sull’originario cornicione del tetto a falde, svolge l'importante funzione strutturale di legatura delle murature portanti, in pietra e mattoni pieni, dei piani sottostanti.
Ampliamento 
Del febbraio 1957 sono i disegni, di Ottavio Cascio, per la realizzazione di nuovo collegamento verticale fra il primo e di secondo piano, peraltro già ipotizzato nelle tavole relative alla trasformazione del sottotetto: la nuova scala, ad una sola rampa con struttura metallica, viene realizzata verso l'esterno, in aderenza al muro perimetrale ovest dell'edificio, sulla verticale del cortiletto, sfruttando come pianerottolo di partenza il locale della originaria cappella.
La scala viene coperta con una soletta leggera, ed il nuovo vano chiuso con una parete completamente vetrata su struttura metallica.
Sul finire dello stesso anno si effettuano i primi studi, sempre di Ottavio Cascio, per destinare l'edificio a sede della Presidenza della Olivetti.
Per soddisfare le nuove necessità di rappresentanza, nel novembre 1957 viene autorizzata, dal Comune di Ivrea, la copertura del cortiletto interno verso la collina, con la realizzazione di nuovi servizi igienici e locali accessori, mentre l'androne di accesso al cortiletto stesso viene chiuso e utilizzato come Centrale termica. 
La Centrale verrà quindi ridimensionata e trasformata in Centrale di scambio termico, sfruttando il vapore della Centrale termica degli stabilimenti; le apparecchiature saranno sistemate in un piccolo vano ricavato nella roccia nei pressi del vecchio androne; quest'ultimo sarà definitivamente destinato a cabina elettrica. 
Nel gennaio del 1959 compare, sulla copertura, il torrino per le macchine del nuovo impianto ascensore, in parte vetrato e di notevoli dimensioni; a marzo viene abbattuto il muro portante fra i due locali a nord, a piano terra, per creare un unico salone di ricevimento per i visitatori: il solaio, opportunamente rinforzato, viene sostenuto da travi metalliche, poggiate su due esili colonne costituite da “tubi gas” da 6 pollici. 
I nuovi locali, così modificati, vengono dichiarati agibili il 21 ottobre 1959. 
Alle modifiche murarie si accompagna uno studio minuzioso delle finiture e dell'arredamento: Adriano Olivetti occuperà l’ampio locale sull'angolo nord-est, al primo piano, caratterizzato dal bow window con il terrazzino.
Nei primi mesi del 1960 evidenti esigenze di nuovi spazi, a servizio della Presidenza, conducono allo studio di massima per un ampliamento di circa 1.000 metri quadrati, sulla collina ad ovest della Villa, da destinare a uffici, salotti e con un'ampia sala riunioni: il nuovo corpo di fabbrica, sviluppato su tre ali chiuse a ferro di cavallo, prevede due collegamenti diretti con la villa, al livello del primo piano, e una scalinata ad ovest per l'accesso diretto dall'esterno, salendo dalla strada nel parco.
Il progetto, poi non realizzato (probabilmente in vista del trasferimento della Presidenza al Palazzo per Uffici, allora in corso di progettazione), è stato anche materializzato in un plastico in legno, dove il corpo aggiuntivo è però limitato a due sole ali ortogonali, aperte sul lato sud.
Nel 1964, terminato il palazzo per uffici ed ivi trasferita la Presidenza, Villa Casana diventa sede dell'Asilo infantile Olivetti, con ulteriori modifiche interne progettate da Ottavio Cascio e realizzate a partire dal gennaio 1966. 
Dal 1984 l'edificio ospita le attività del Centro Odontoiatrico Preventivo Infantile e del Centro Pediatrico Olivetti sino a quando, nel luglio 1987, hanno inizio i lavori di trasformazione per accogliere la nuova sede dell'Archivio Storico del Gruppo Olivetti.
Ristrutturazione
Il servizio di Corporate Identity e l'Ufficio Tecnico dell'azienda elaborano il progetto architettonico impiantistico, esteso alla progettazione su misura degli arredi speciali per le scaffalature delle biblioteche e per gli espositori: sono oltre un centinaio le tavole di particolare redatte da Luigi Mariani, che seguirà anche la direzione artistica dei lavori, mentre la direzione tecnica verrà affidata a Sergio Magario. 
Il piano terreno viene destinato ad archivi, con scaffalature metalliche compattabili, scorrevoli su rotaie; per ospitare il caveau, illuminato solo da quattro lucernari zenitali a cupola, viene ampliata la copertura del cortiletto interno, demolendo i servizi igienici e realizzando un ulteriore sbancamento di circa 60 metri cubi in roccia viva. 
Al primo piano le Biblioteche, con i libri di Camillo e Adriano Olivetti, le Edizioni di Comunità e le pubblicazioni di carattere aziendale; al secondo e ultimo piano la Direzione, gli Uffici, l'Archivio dei disegni e la Sala conferenze. 
Vengono completamente ristrutturati gli interni, integrando all'arredamento gli impianti di sicurezza e controllo, sostituiti i pavimenti con granito legno, rinforzato il solaio nord per sopportare gli elevati carichi e sostituita la scala metallica di collegamento fra il primo ed il secondo piano, a rampa unica, con una nuova scala in legno, su travi metalliche, interrotta da un piano di riposo intermedio.
L'installazione di un ascensore oleodinamico consente la demolizione completa del vecchio torrino con macchine e funi; viene eliminato anche il vaso di espansione dell'impianto termico, ottenendo così un solaio di copertura completamente piano.
I nuovi serramenti, in alluminio elettrocolore testa di moro, e i vetri-camera color bronzo, vanno a sostituire gli originali infissi in legno e le avvolgibili; anche la parete in ferro e vetro del lato ovest lascia spazio ad un curtain-wall con vetri a specchio, mentre l’ampliamento del secondo piano viene evidenziato con una fascia di frangisole a palette verticali orientabili elettricamente. 
Anche i prospetti esterni subiscono un radicale intervento tipologico e cromatico: Hans von Klier decide di uniformare le parti in mattoni pieni facciavista, dei corpi di fabbrica a nord e ad est, con i finti mattoni, tracciati su intonaco e parzialmente danneggiati, del corpo a sud; un leggero intonaco di rasatura, tinteggiato in rosa, e la ripresa con pittura ai silicati grigia delle pareti in cemento, rendono omogenee le fronti, su cui si stagliano i grandi serramenti senza più montante centrale. 
Le parti in ferro delle ringhiere dei balconi, e la struttura di sostegno della pensilina d’ingresso, vengono trattati con smalto ferromicaceo verde; sulla collina ad ovest si realizza una scala metallica esterna, per l’uscita di sicurezza diretta dal secondo piano, già prevista nell’ampliamento di Annibale Fiocchi ma poi non realizzata. Sempre all’esterno viene rifatta la pavimentazione del piazzale, eliminando l’asfalto e posando cubetti di porfido del Trentino, viene pavimentata con ciottoli la scala di ingresso al belvedere ed ampliato il parcheggio, sfruttando parte dell’area a verde sul lato sud.
[…] Riferimenti generali: Progetto architettonico – Sopraelevazione: Annibale Fiocchi; Ristrutturazione: Daniele Boltri, Luigi Mariani, Hans von Klier. Progetto strutturale – Sopraelevazione: Antonio Migliasso; Ristrutturazione: Pier Lorenzo Alvigini. Direzione lavori – Sopraelevazione: Aventino Tarpino; Ristrutturazione: Sergio Guidolin. Concessione Edilizia – Sopraelevazione: 21 settembre 1953; Ristrutturazione: 27 luglio 1987. Agibilità – Sopraelevazione: 16 luglio 1954; Ristrutturazione: 14 novembre 1988. Superfici – piano terreno: 450 mq; piano primo: 380 mq; piano secondo: 370 mq». (Pier Paride Vidari, Daniele Boltri, Giovanni Maggia, Enrico Papa, Architetture olivettiane a Ivrea. I luoghi del lavoro e i servizi socio-assistenziali di fabbrica, Gangemi, Roma 1998, pp. 260-269)

«Area di corso Jervis, via delle Miniere, via Pavone, via Carandini, strada Monte Navale.
[…] L’area è inoltre caratterizzata dalla presenza sulla sommità della collina a nord-ovest da Villa Casana, edificio storico di inizio secolo immerso in un parco con annessa una villetta, acquistato dalla Società Olivetti nel 1952. Sia la Villa Casana che la Villetta sono oggi sede dell’Associazione Archivio Storico Olivetti (dal 1998). Durante gli anni contrassegnati dall’attività della fabbrica, la Villa è stata dapprima sede dell’Ufficio Architetti (1953), poi della Presidenza Olivetti (1957) e infine del centro odontoiatrico e pediatrico Olivetti (dal 1984), mentre la villetta è stata sede dell’asilo infantile Olivetti (1976).
[…] L’Associazione Archivio Storico Olivetti, costituito a Ivrea nel 1998 su iniziativa della Società Olivetti, in accordo con la Fondazione Adriano Olivetti e con la partecipazione di importanti soci pubblici e privati, svolge attività di raccolta, riordino, conservazione, studio e promozione del vastissimo patrimonio archivistico riguardante la storia della Società e delle personalità della famiglia Olivetti. […] L’Associazione ha sede presso Villa Casana, edificio storico immerso in un grande parco non lontano dal centro della città di Ivrea e sovrastante l’edificio residenziale ovest». (Dossier di Candidatura di Ivrea Città Industriale del XX secolo nella lista del Patrimonio Mondiale Unesco, pp. 42, 225)

2.	Consistenza dell’opera al 2019 / Stato attuale  

Originariamente destinata a residenza unifamiliare, l’opera ha negli anni modificato più volte la propria destinazione d’uso sino a diventare, nel 1987, la nuova sede dell'Archivio Storico del gruppo Olivetti. In tale occasione gli interni sono stati completamente ristrutturati integrando all'arredamento gli impianti di sicurezza e controllo; i pavimenti sono stati sostituiti con granito e legno; il solaio nord è stato rinforzato per sopportare i nuovi carichi; la scala metallica di collegamento fra il primo ed il secondo piano, a rampa unica, è stata sostituita con una nuova scala in legno su travi metalliche, interrotta da un piano di riposo intermedio. Il vecchio torrino è stato demolito in seguito all’installazione di un ascensore oleodinamico e il vaso di espansione dell'impianto termico è stato eliminato per ottenere un solaio di copertura completamente piano.
 

Inoltre gli originali infissi in legno e le avvolgibili sono stati sostituiti da nuovi serramenti in alluminio elettrocolore testa di moro e vetri-camera color bronzo, la parete in ferro e vetro del lato ovest è stata sostituita da un curtain-wall con vetri a specchio e l’ampliamento del secondo piano è estato evidenziato con una fascia di frangisole a palette verticali. 
Anche i prospetti esterni hanno subito un radicale cambiamento tipologico e cromatico: le parti in mattoni pieni facciavista dei corpi di fabbrica a nord e ad est sono state uniformate con i finti mattoni tracciati su intonaco del corpo a sud. I fronti, su cui è stato applicato un leggero strato di intonaco di rasatura tinteggiato di rosa, sono stati resi omogenei dalla ripresa con pittura ai silicati grigia delle pareti in cemento. I serramenti hanno per il montante centrale. Infine, la pavimentazione del piazzale è stata rifatta eliminando l’asfalto e posando cubetti di porfido del Trentino, la scala di ingresso al belvedere è stata pavimentata con ciottoli e il parcheggio è stato ampliando sfruttando parte dell’area verde sul lato sud.
Sulle superfici esterne si riscontrano alcune forme di degrado. 

Il complesso di Villa Casana è incluso nella buffer zone del sito “Ivrea, città industriale del XX secolo” inserito nel 2018 nella World Heritage List dell'UNESCO. (http://whc.unesco.org/en/list/1538)

(Scheda a cura di Stefania Dassi MiBACT SR-PIE con Bianca Guiso, DAD - Politecnico di Torino)
    [committente] => Olivetti
    [foglio_catastale] => 
    [particella] => 
    [strutture] => Calcestruzzo
    [id_stato_struttura] => 2
    [materiale_facciata] => Il serramento, in ferro-finestra laccato grigio con vetri semplici, corre continuo all'esterno delle colonnine in calcestruzzo, creando un nastro vetrato continuo che stacca il nuovo solaio di copertura dal cordolo in cemento armato sottostante. 
    [id_stato_facciata] => 2
    [coperture] => Sostituzione del tetto a falde con una copertura piana in cemento e laterizio, sostenuta lungo il perimetro da esili colonnine in calcestruzzo, di diametro pari a 20 centimetri, realizzate con l'ausilio di tubi in “fibrocemento”
    [id_stato_coperture] => 2
    [serramenti] => Serramento in ferro-finestra laccato grigio con vetri semplici. 
    [id_stato_serramenti] => 2
    [destinazione_originaria] => Uffici
    [destinazione_attuale] => Associazione Archivio Storico Olivetti
    [trasformazioni] => 
    [id_tipo_proprieta] => 1
    [specifiche_proprieta] => 
    [id_tipo_provvedimento] => 1
    [data_provvedimento] => 
    [riferimento_normativo] => 
    [altri_provvedimenti] => 
    [vincolo] => 0
    [note] => La ristrutturazione include due interventi principali:
Sopraelevazione (1953-1954): progettista Annibale Fiocchi e progetto strutturale Antonio Migliasso, Direzione lavori Aventino Trapino.
Ristrutturazione (1987-1988): progettisti Daniele Boltri, Luigi Mariani, Hans von Klier e progetto strutturale Pier Lorenzo Alvigini, Direzione lavori Sergio Guidolin.
Il progetto di Ottavio Cascio  (1957) per destinare l'edificio a sede della Presidenza Olivetti con lo studio dell'ampliamento (1960) non  fu realizzato.
Nel 1964 Villa Casana diventa sede dell'Asilo infantile Olivetti con ulteriori modifiche progettate da Ottavio Cascio.
Nel 1984 l'edificio ospita il Centro Odontoiatrico Preventivo Infantile  e il Centro Pediatrico Olivetti.
Dal 1987  inizia la trasformazione per accogliere la sede dell'Archivio Storico del Gruppo Olivetti.
    [denominazione_aggregato] => 
    [latitude] => 45.459545
    [longitude] => 7.870651
    [score] => 2
    [id_user] => 0
    [status] => 1
    [date_add] => 2004-12-31 00:00:00
    [date_upd] => 2025-01-28 14:30:46
    [categoria] => B. Opera selezionata
    [tipologia] => Interventi di recupero e trasformazione
    [proprieta] => Nessuna opzione
    [cat_autori] => Annibale Fiocchi
    [id_regione] => 9
)
1
												
  • Vincolo: Non Vincolata
  • Provvedimenti di tutela: Nessuna opzione
  • Data Provvedimento:
  • Riferimento Normativo:
  • Altri Provvedimenti:
  • Foglio Catastale: -
  • Particella: -

Note

La ristrutturazione include due interventi principali: Sopraelevazione (1953-1954): progettista Annibale Fiocchi e progetto strutturale Antonio Migliasso, Direzione lavori Aventino Trapino. Ristrutturazione (1987-1988): progettisti Daniele Boltri, Luigi Mariani, Hans von Klier e progetto strutturale Pier Lorenzo Alvigini, Direzione lavori Sergio Guidolin. Il progetto di Ottavio Cascio (1957) per destinare l'edificio a sede della Presidenza Olivetti con lo studio dell'ampliamento (1960) non fu realizzato. Nel 1964 Villa Casana diventa sede dell'Asilo infantile Olivetti con ulteriori modifiche progettate da Ottavio Cascio. Nel 1984 l'edificio ospita il Centro Odontoiatrico Preventivo Infantile e il Centro Pediatrico Olivetti. Dal 1987 inizia la trasformazione per accogliere la sede dell'Archivio Storico del Gruppo Olivetti.

Bibliografia
Autore Anno Titolo Edizione Luogo Edizione Pagina Specifica
1976 L’Architecture d’aujourd’hui n. 188 13 No
Boltri Daniele, Maggia Giovanni, Papa Enrico, Vidari Pier Paride 1998 Architetture olivettiane a Ivrea. I luoghi del lavoro e i servizi socio-assistenziali di fabbrica Gangemi Roma 260-269 No
Astarita Rossano 2000 Gli architetti di Olivetti. Una storia di committenza industriale Franco Angeli Milano 177 No

Allegati
File Didascalia Credito Fotografico
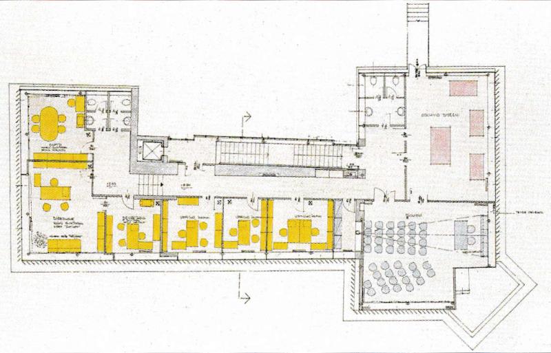
Planimetria Planimetria Tratto da - Boltri, Maggia, Papa, Vidari, Gangemi 1998
Vista del fronte d’ingresso Vista del fronte d’ingresso Tratto da - Boltri, Maggia, Papa, Vidari, Gangemi 1998
La villa con l’originario tetto “alla francese”, in una cartolina d’epoca La villa con l’originario tetto “alla francese”, in una cartolina d’epoca Tratto da - Boltri, Maggia, Papa, Vidari, Gangemi 1998
Scorcio d’angolo dell’edificio, con la sopraelevazione del secondo piano, 1953 Scorcio d’angolo dell’edificio, con la sopraelevazione del secondo piano, 1953 Tratto da - Boltri, Maggia, Papa, Vidari, Gangemi 1998
Studio di arredamento per la sede della Presidenza Olivetti Studio di arredamento per la sede della Presidenza Olivetti Tratto da - Boltri, Maggia, Papa, Vidari, Gangemi 1998
Studio di arredamento per la sede della Presidenza Olivetti Studio di arredamento per la sede della Presidenza Olivetti Tratto da - Boltri, Maggia, Papa, Vidari, Gangemi 1998
Studio di arredamento per la sede della Presidenza Olivetti Studio di arredamento per la sede della Presidenza Olivetti Tratto da - Boltri, Maggia, Papa, Vidari, Gangemi 1998
Richard Neutra, a sinistra, in visita presso l'ufficio architetti della Olivetti: Annibale Fiocchi. Nel locale, al secondo piano della villa, sono visibili i plastici relativi al quartiere residenziale di Canton Vesco Richard Neutra, a sinistra, in visita presso l'ufficio architetti della Olivetti: Annibale Fiocchi. Nel locale, al secondo piano della villa, sono visibili i plastici relativi al quartiere residenziale di Canton Vesco Tratto da - Boltri, Maggia, Papa, Vidari, Gangemi 1998
Il salone di ricevimento al piano terreno all’epoca della presidenza di Adriano Olivetti. Si notano gli arredi dell'epoca e il “tubo gas” strutturale, inserito a seguito dell’eliminazione di un muro portante per ampliare il locale Il salone di ricevimento al piano terreno all’epoca della presidenza di Adriano Olivetti. Si notano gli arredi dell'epoca e il “tubo gas” strutturale, inserito a seguito dell’eliminazione di un muro portante per ampliare il locale Tratto da - Boltri, Maggia, Papa, Vidari, Gangemi 1998
Plastico dell’ampliamento, ridotto alle sole ali nord e ovest Plastico dell’ampliamento, ridotto alle sole ali nord e ovest Tratto da - Boltri, Maggia, Papa, Vidari, Gangemi 1998
Pianta dello studio di ampliamento del 1960 Pianta dello studio di ampliamento del 1960 Tratto da - Boltri, Maggia, Papa, Vidari, Gangemi 1998
Vista laterale dello studio di ampliamento Vista laterale dello studio di ampliamento Tratto da - Boltri, Maggia, Papa, Vidari, Gangemi 1998
Scorcio d'angolo precedente all’ultima ristrutturazione, 1986 Scorcio d'angolo precedente all’ultima ristrutturazione, 1986 Tratto da - Boltri, Maggia, Papa, Vidari, Gangemi 1998
Il fronte prima della ristrutturazione: si notano la facciata in mattoni a vista e il volume tecnico delle macchine ascensore in copertura Il fronte prima della ristrutturazione: si notano la facciata in mattoni a vista e il volume tecnico delle macchine ascensore in copertura Tratto da - Boltri, Maggia, Papa, Vidari, Gangemi 1998
Il fronte posteriore, con l’ampliamento di Ottavio Cascio del 1957 per l’inserimento della scala fra il primo ed il secondo piano Il fronte posteriore, con l’ampliamento di Ottavio Cascio del 1957 per l’inserimento della scala fra il primo ed il secondo piano Tratto da - Boltri, Maggia, Papa, Vidari, Gangemi 1998
Pianta della sistemazione esterna per la ristrutturazione a sede dell'Archivio Storico del Gruppo Olivetti, 1987 Pianta della sistemazione esterna per la ristrutturazione a sede dell'Archivio Storico del Gruppo Olivetti, 1987 Tratto da - Boltri, Maggia, Papa, Vidari, Gangemi 1998
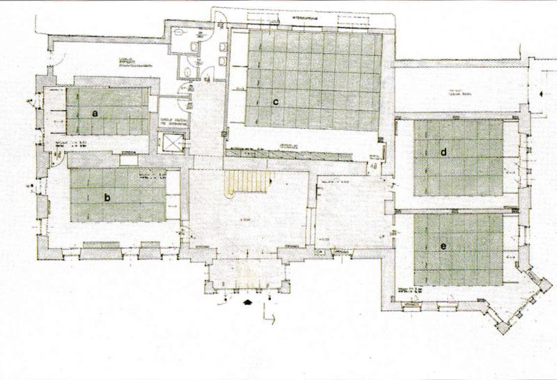
Piante del piano terreno per la ristrutturazione a sede dell'Archivio Storico del Gruppo Olivetti, 1987 Piante del piano terreno per la ristrutturazione a sede dell'Archivio Storico del Gruppo Olivetti, 1987 Tratto da - Boltri, Maggia, Papa, Vidari, Gangemi 1998
Pianta del piano primo per la ristrutturazione a sede dell'Archivio Storico del Gruppo Olivetti, 1987 Pianta del piano primo per la ristrutturazione a sede dell'Archivio Storico del Gruppo Olivetti, 1987 Tratto da - Boltri, Maggia, Papa, Vidari, Gangemi 1998
Pianta del piano secondo per la ristrutturazione a sede dell'Archivio Storico del Gruppo Olivetti, 1987 Pianta del piano secondo per la ristrutturazione a sede dell'Archivio Storico del Gruppo Olivetti, 1987 Tratto da - Boltri, Maggia, Papa, Vidari, Gangemi 1998
Scorcio d’angolo dell’edificio ristrutturato, con la nuova facciata intonacata e tinteggiata Scorcio d’angolo dell’edificio ristrutturato, con la nuova facciata intonacata e tinteggiata Tratto da - Boltri, Maggia, Papa, Vidari, Gangemi 1998
Il nuovo fronte posteriore Il nuovo fronte posteriore Tratto da - Boltri, Maggia, Papa, Vidari, Gangemi 1998
La nuova scala in legno, con struttura metallica, per l’accesso al secondo piano La nuova scala in legno, con struttura metallica, per l’accesso al secondo piano Tratto da - Boltri, Maggia, Papa, Vidari, Gangemi 1998
L’atrio d’ingresso al piano terreno; si notano gli impianti di sicurezza predisposti per gli archivi L’atrio d’ingresso al piano terreno; si notano gli impianti di sicurezza predisposti per gli archivi Tratto da - Boltri, Maggia, Papa, Vidari, Gangemi 1998
Veduta d’insieme, 2019 Veduta d’insieme, 2019 Bianca Guiso - 2019
Scorcio, 2019 Scorcio, 2019 Bianca Guiso - 2019
Particolare della sopraelevazione, 2019 Particolare della sopraelevazione, 2019 Bianca Guiso - 2019
Particolare della sopraelevazione, 2019 Particolare della sopraelevazione, 2019 Bianca Guiso - 2019
Veduta d’insieme, 2019 Veduta d’insieme, 2019 Bianca Guiso - 2019
Veduta d’insieme, 2019 Veduta d’insieme, 2019 Bianca Guiso - 2019
Perimetrazione nominated property e buffer zone su base ortofoto, 2018 Perimetrazione nominated property e buffer zone su base ortofoto, 2018 Tratto da - Dossier di Candidatura WHL “Ivrea Città Industriale del XX secolo” 2018

Criteri
5. L’edificio o l’opera di architettura introduce e sperimenta significative innovazioni nell’uso dei materiali o nell’applicazione delle tecnologie costruttive.
6. L’edificio o l’opera di architettura è stata progettata da una figura di rilievo nel panorama dell’architettura nazionale e/o internazionale.
Sitografia ed altri contenuti online
Titolo Url
Dossier di Candidatura “Ivrea Città Industriale del XX secolo” Visualizza

Crediti Scheda
Enti di riferimento: DGAAP - Segretariato Regionale per il Piemonte
Titolare della ricerca: Politecnico Torino Dipartimento Architettura e Design
Responsabile scientifico: Maria Adriana Giusti, Gentucca Canella (DAD)


Scheda redatta da Stefania Dassi con Bianca Guiso
creata il 31/12/2004
ultima modifica il 28/01/2025

Revisori:

Mezzino Davide 2021