FACOLTÀ DI GIURISPRUDENZA E RETTORATO DELL'UNIVERSITÀ ROMA TRE
Scheda Opera
- Comune: Roma
- Località: Ostiense
- Denominazione: FACOLTÀ DI GIURISPRUDENZA E RETTORATO DELL'UNIVERSITÀ ROMA TRE
- Indirizzo: Via Ostiense N. 159
- Data: 1998 - 2000
- Tipologia: Università - Campus
- Autori principali: Giuseppe Pasquali
Descrizione
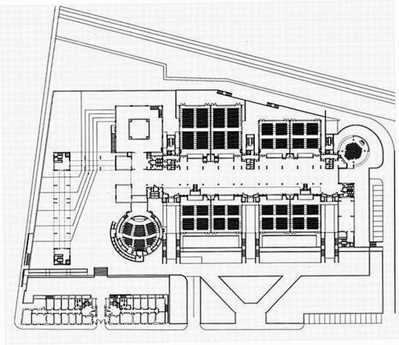
Il Rettorato, il Dipartimento e la Facoltà di Giurisprudenza dell’Università Roma Tre si trovano su via Ostiense, nell’area occupata dal primo polo industriale della città del Novecento, in particolare dalle Vetrerie Riunite di Angelo Bordoni. Frutto del progetto degli architetti Alfredo Passeri e Giuseppe Pasquali, la nuova Facoltà di Giurisprudenza occupa una superficie di circa 26.000 mq. L’edificio è costituito da due volumi ad L su cui si innestano dei corpi più bassi. All'interno della struttura sono presenti: nove aule didattiche al piano terra distribuite attraverso un’ampia galleria; un’aula magna circolare rivestita in zinco-titanio nel suo prospetto esterno atta ad ospitare 260 persone e che si manifesta come elemento caratterizzante dell’intera struttura; una grande biblioteca di 700 mq su due livelli, dotata di ascensore, e collegata con un piano-galleria allestito con tavoli e armadietti per gli studenti. Gli altri due livelli sono invece dedicati alle attività dipartimentali e agli uffici del Rettorato.
Le strutture sono in calcestruzzo armato tradizionale, ad eccezione di alcuni elementi che, per esigenze strutturali, sono stati eseguiti in acciaio, come nel caso della copertura della galleria distributiva al primo piano dell’edificio principale. La definizione della planimetria segue uno schema regolare, e le funzioni legate ai differenti edifici vengono sottolineate nei prospetti esterni dalla differenziazione del rivestimento: cortina di mattoni rossi a faccia vista per la Facoltà, lastre di zinco-titanio per il volume interamente chiuso dell’Aula Magna, e acciaio e vetro per la struttura che invece ospita gli uffici del Rettorato. Tutto il complesso si trova ad una quota più elevata rispetto alla strada e definisce così una vasta area completamente pedonalizzata.
Info
- Progetto: 1998 - 1998
- Esecuzione: 1998 - 2000
- Committente: Università degli Studi di Roma “Roma Tre“
- Proprietà: Proprietà pubblica
Autori
| Nome | Cognome | Ruolo | Fase Progetto | Archivio Architetti | Url Profilo | Autore Principale |
|---|---|---|---|---|---|---|
| Elio | Basile | Collaboratore | Progetto | NO | ||
| Luciano | Benedetto | Collaboratore | Progetto | NO | ||
| D.L. Giampaolo | Berti | Impresa esecutrice | Esecuzione | NO | ||
| Srl | COSTINCEM | Impresa esecutrice | Esecuzione | NO | ||
| Srl | CPA | Impresa esecutrice | Esecuzione | NO | ||
| Davide | De Gregori | Collaboratore | Progetto | NO | ||
| Srl | Di Leonardo | Impresa esecutrice | Progetto | NO | ||
| Gaetano | Di Stefano | Collaboratore | Progetto | NO | ||
| Franco | Donato | Progetto preliminare | Progetto | NO | ||
| spa | ISA | Impresa esecutrice | Progetto | NO | ||
| Antonio Maria | Michetti | Progetto strutturale | Progetto | Visualizza Profilo | https://siusa.archivi.beniculturali.it/cgi-bin/siusa/pagina.pl?TipoPag=prodpersona&Chiave=58145 | NO |
| Giuseppe | Pasquali | Progetto architettonico | Progetto | SI | ||
| Alfredo | Passeri | Progetto architettonico | Progetto | NO | ||
| Lino | Perfetti | Progetto strutturale | Progetto | NO | ||
| Srl | SAG | Impresa esecutrice | Progetto | NO | ||
| Srl | System | Progetto Impianti | Progetto | NO | ||
| G M | Verdone | Collaboratore | Progetto | NO | ||
| spa | VIBROSUD | Impresa esecutrice | Esecuzione | NO |
- Strutture: cemento armato
- Materiale di facciata: cortina di mattoni, pannelli prefabbricati leggeri
- Coperture: piana
- Stato Strutture: Ottimo
- Stato Materiale di facciata: Ottimo
- Stato Coperture: Ottimo
- Vincolo: Non Vincolata
- Provvedimenti di tutela: Nessuna opzione
- Data Provvedimento:
- Riferimento Normativo:
- Altri Provvedimenti:
- Foglio Catastale: -
- Particella: -
Note
-
Bibliografia
| Autore | Anno | Titolo | Edizione | Luogo Edizione | Pagina | Specifica |
|---|---|---|---|---|---|---|
| 2000 | Capitolium Millennio n.14 | 45 | Si | |||
| Comune di Roma (a cura di) | 2000 | ROMACAMBIA | Palombi | Roma | 27-32 | No |
| Mastrigli Gabriele (a cura di) | 2001 | Università Roma Tre | Abitare n. 408 | 96-103 | Si | |
| 2001 | Pasquali e Passeri. Rettorato, Facoltà, Dipartimento di Giurisprudenza, Università di Roma tTre | Casabella n. 687 | 56-65 | Si | ||
| Stucchi Silvano (a cura di) | 2001 | Rettorato, Facoltà e Dipartimento di Giurisprudenza Università Roma Tre | L'Industria delle Costruzioni n. 359 | 26-39 | Si | |
| Torelli Landini Enrica, Travaglini Carlo Maria (a cura di) | 2001 | Fabbriche della conoscenza. Roma Tre nel territorio e nella riqualificazione dell'area Ostiense | Università degli Studi Roma Tre | Roma | 32-35 | No |
| 2002 | Rettorato e Facoltà di Giurisprudenza all'Ostiense | Foglio di Groma n. 23 | No | |||
| 2004 | Itinerario contemporaneo. Roma | Area n. 76 | 188-197, Scheda n. 37 | No | ||
| Ciucci Giorgio, Ghio Francesco, Rossi Piero Ostilio | 2006 | Roma. La nuova architettura | Electa | Milano | 218-221 | No |
| Censi Maria Rita, Frontero Dante, Germani Angelo | 2006 | RM ‘06’ Roma. Architettura contemporanea | Kappa | Roma | 30/1-30/8 | No |
| Passeri Alfredo | 2007 | Le Vetrerie Riunite Bordoni, oggi Rettorato e Facoltà di Giurisprudenza di Roma Tre, in Torelli Landini Enrica (a cura di), Roma. memorie della città industriale | Palombi | Roma | 191-195 | No |
| 2007 | Alfredo Passeri & Giuseppe Pasquali. Università Roma Tre, administration & juridik | Arkitektur n. 8 | 42-43 | Si | ||
| Brandolini Sebastiano | 2008 | Roma. Nuova architettura | Skira | Milano | 132-137 | No |
| Bliek Françoise, Del Gallo Paola, De Simoni Pietro (a cura di) | 2012 | Roma. III Millennio. 32 progetti di architettura | Hoepli | Milano | 138-145 | No |
| Rossi Piero Ostilio | 2012 | Roma. Guida all'architettura moderna 1909-2011 (IV ed.) | Laterza | Roma-Bari | Scheda n. 218 | Si |
| 2013 | Italia en México 2013 | AR Magazine n. 108 | 32 | No |
Criteri
| 1. L’edificio o l’opera di architettura è citata in almeno tre studi storico-sistematici sull’architettura contemporanea di livello nazionale e/o internazionale. | |
| 2. L’edificio o l’opera di architettura è illustrata in almeno due riviste di architettura di livello nazionale e/o internazionale. | |
| 3. L’edificio o l’opera di architettura ha una riconosciuta importanza nel panorama dell’architettura nazionale, degli anni nei quali è stata costruita, anche in relazione ai contemporanei sviluppi sia del dibattito, sia della ricerca architettonica nazionale e internazionale, | |
| 4. L’edificio o l’opera di architettura riveste un ruolo significativo nell’ambito dell’evoluzione del tipo edilizio di pertinenza, ne offre un’interpretazione progressiva o sperimenta innovazioni di carattere distributivo e funzionale. |
Crediti Scheda
Enti di riferimento: PaBAAC - Direzione Regionale per il LazioTitolare della ricerca: Università degli studi di Roma "Sapienza"
Responsabile scientifico: Piero Ostilio Rossi
Scheda redatta da
creata il 31/12/2012
ultima modifica il 28/02/2025
Revisori:
Alberto Coppo 2021



