CHIESA DELLA MERCEDE
Scheda Opera
- Comune: Alghero
- Denominazione: CHIESA DELLA MERCEDE
- Indirizzo: Piazza della Mercede
- Data: 1959 - 1960
- Tipologia: Edifici per il culto
- Autori principali: Franco Minissi
Descrizione
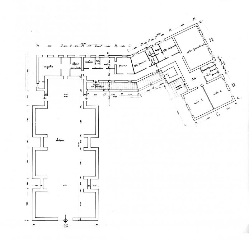
Il complesso religioso di N.S. della Mercede ad Alghero del 1960 elaborato da F.Cella e F. Minissi, architetto romano docente della facoltà di architettura della capitale ed uno degli esponenti della nuova architettura italiana del dopoguerra, costituisce un esempio di architettura religiosa che, a partire dall’interpretazione della tipologia classica, la elabora volumetricamente con alcune soluzioni molto interessanti: la teoria di grandi vetrate incorniciate da strutture in c.a. a vista che corre lungo tutto il perimetro interpreta la luce gotica in maniera moderna; l’uso del calcare a vista come rivestimento posto in opus incertum; il campanile autonomo. La chiesa è a navata unica con cappelle laterali. Il progetto è il modello di altri due edifici religiosi progettati dagli stessi autori in Sardegna, la nuova chiesa di S. Francesco a Macomer del 1962 e la chiesa parrocchiale a Noragugume del 1964. L’edificio è stato realizzato in un area dell’espansione urbana della città di Alghero precedentemente destinata ad area cimiteriale. Era presente, infatti, l’antico cimitero della città, spostato negli anni ’30 nel nuovo sito cimiteriale. Intorno all’edificio si è realizzata una delle zone della nuova città a carattere prevalentemente pubblico: i giardini pubblici, le scuole elementari e medie, le poste, la sede della Polizia di Stato, impianti sportivi. L’edificio ha rappresentato per lo sviluppo urbano della città avviato dopo gli anni ’60 un punto di riferimento che ha permesso di costituire un nuovo spazio urbano pubblico rilevante; la città ritrova in un area di nuova edificazione gli elementi per costituire un luogo di identificazione di una nuova popolazione urbana che in quegli anni si trasferiva dai luoghi storici della residenza (il centro storico) verso abitazioni di carattere moderno. Oggi la piazza della Mercede e gli spazi attigui rappresentano un delle zone centrali della città maggiormente vissute e dotate di servizi.
Info
- Progetto: 1959 - 1959
- Esecuzione: 1960 - 1960
- Committente: Frati Mercedari
- Proprietà: Proprietà Ente religioso
- Destinazione originaria: chiesa
- Destinazione attuale: chiesa
Autori
| Nome | Cognome | Ruolo | Fase Progetto | Archivio Architetti | Url Profilo | Autore Principale |
|---|---|---|---|---|---|---|
| F. | Cella | Direzione lavori | Esecuzione | NO | ||
| F. | Cella | Progetto strutturale | Progetto | NO | ||
| F. | Cella | Progetto architettonico | Progetto | NO | ||
| Franco | Minissi | Progetto architettonico | Progetto | Visualizza Profilo | https://siusa.archivi.beniculturali.it/cgi-bin/siusa/pagina.pl?TipoPag=prodpersona&Chiave=32028 | SI |
- Strutture: calcestruzzo armato
- Materiale di facciata: muratura in pietra calcarea ad opus Incertum
- Coperture: capriate e copertura in calcestruzzo armato
- Serramenti: vetrate policrome; porte e portoni in legno di rovere
- Vincolo: Non Vincolata
- Provvedimenti di tutela: Nessuna opzione
- Data Provvedimento:
- Riferimento Normativo:
- Altri Provvedimenti:
- Foglio Catastale: -
- Particella: -
| Codice ICCd | Ubicazione | Tipologia | Soggetto | Autore | Materia Tecnica | Stato di Conservazione | Restauri |
|---|---|---|---|---|---|---|---|
| presbiterio | Mosaico | immagine sacra | Aligi Sassu |
Note
Scheda redatta da Giorgio Peghin, Università degli Studi di Sassari, Dipartimento di Architettura, Design e Urbanistica (2004).
Bibliografia
| Autore | Anno | Titolo | Edizione | Luogo Edizione | Pagina | Specifica |
|---|---|---|---|---|---|---|
| Sanna Antonello, Mura Gianni (a cura di) | 1999 | Paesi e città della Sardegna. Le Città | Cuec/Banco di Sardegna | Cagliari | 176-187 | Si |
| Casu Alessandra, Lino Aldo, Sanna Antonello (a cura di) | 2001 | La città ricostruita. Le vicende urbanistiche in Sardegna nel secondo dopoguerra | Cuec/INU | Cagliari | Si | |
| Peghin Giorgio Mario | 2009 | Chiesa parrocchiale N.S. della Mercede ad Alghero (F. Minissi, F. Cella, 1955-1968), in La costruzione dell'architettura. Temi e opere del dopoguerra italiano, P. G. Bardelli et al. (a cura di) | Gangemi | Roma | 89-96 | Si |
| Lucchini Marco | 2009 | Chiesa della Mercede, in L'identità molteplice. Architettura Contemporanea in Sardegna dal 1930 al 2008 | Aisara | Cagliari | 70-71 | Si |
| Vivio Beatrice | 2010 | Franco Minissi: Musei e restauri. La trasparenza come valore | Gangemi | Roma | 34 | Si |
| Pala Andrea | 2015 | Guida delle chiese romaniche in Sardegna | Scuola Sarda Ed. | Cagliari | Si |
Allegati
Criteri
| 4. L’edificio o l’opera di architettura riveste un ruolo significativo nell’ambito dell’evoluzione del tipo edilizio di pertinenza, ne offre un’interpretazione progressiva o sperimenta innovazioni di carattere distributivo e funzionale. | |
| 5. L’edificio o l’opera di architettura introduce e sperimenta significative innovazioni nell’uso dei materiali o nell’applicazione delle tecnologie costruttive. | |
| 6. L’edificio o l’opera di architettura è stata progettata da una figura di rilievo nel panorama dell’architettura nazionale e/o internazionale. | |
| 7. L’edificio o l’opera di architettura si segnala per il particolare valore qualitativo all’interno del contesto urbano in cui è realizzata. |
Sitografia ed altri contenuti online
| Titolo | Url |
|---|---|
| Dizionario biografico degli Italiani - Franco Minissi | Visualizza |
| SAN Archivi degli Architetti - Franco Minissi | Visualizza |
Crediti Scheda
Enti di riferimento: DGAAP - Segretariato Regionale per la SardegnaTitolare della ricerca: Università degli Studi di Cagliari – DICAAR
Responsabile scientifico: Paolo Sanjust
Scheda redatta da
creata il 31/12/2016
ultima modifica il 30/04/2024
Revisori:
Martina Massaro






















