CANTINA SAN GIOVENALE
Scheda Opera
- Comune: Blera
- Località: La Macchia
- Denominazione: CANTINA SAN GIOVENALE
- Indirizzo: Strada Provinciale 42
- Data: 2007 - 2012
- Tipologia: Edifici per attività agricole
- Autori principali: Studio Associato Fabrica
Descrizione
Lo studio Fabrica progetta un edificio in cui le scelte costruttive consentono la sua fusione armonica con il paesaggio circostante, senza mai allontanarsi dalle esigenze dettate dalla sua specifica funzione.
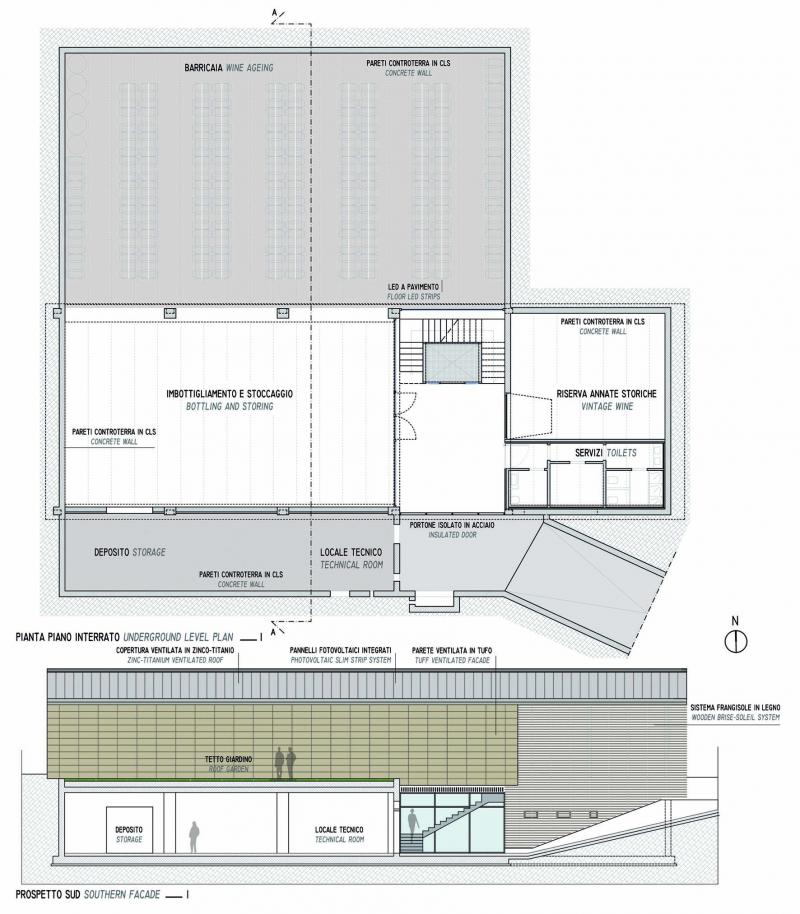
L’impianto planimetrico, un rettangolo che ha lati nel rapporto di 1 a 3, è basato sulla sequenza delle lavorazioni dell’uva ed è dimensionato per disporre le attrezzature lungo le pareti lasciando libero lo spazio centrale. A partire dal portico delimitato da un frangisole in legno, il volume allungato diventa un cannocchiale che, attraverso un’ampia vetrata, prolunga lo spazio interno verso la campagna e le colline circostanti.
Nel grande ambiente – destinato all'invecchiamento del vino, all'imbottigliamento e alla riserva storica oltre che a ospitare un serbatoio dell’acqua piovana – i sostegni sono ridotti al minimo per lasciare spazio alle botti. Per illuminare l’ambiente sono usate luci radenti lungo le pareti e strisce di luce a led a pavimento. Le pareti ventilate propongono un uso innovativo del tradizionale rivestimento in lastre di tufo e, insieme al tetto, anch’esso ventilato e costituito per metà da una superficie fotovoltaica, sono studiate per minimizzare le dispersioni termiche.
Il progetto ha ricevuto la menzione “Under 40“ nella sezione realizzazioni del Premio Internazionale di progettazione Spazio DiVino, bandito dall'Ordine degli Architetti, Pianificatori, Paesaggisti e Conservatori di Roma in collaborazione con il Gambero Rosso.
Info
- Progetto: 2007 - 2010
- Esecuzione: 2010 - 2012
- Committente: San Giovenale Agricola S.r.l.
- Proprietà: Proprietà privata
Autori
| Nome | Cognome | Ruolo | Fase Progetto | Archivio Architetti | Url Profilo | Autore Principale |
|---|---|---|---|---|---|---|
| Ditta | Colemar - interni | Impresa esecutrice | Esecuzione | NO | ||
| S.r.l. - cemento armato | COREST | Impresa esecutrice | Esecuzione | NO | ||
| Impresa | E.D.G. - impianti meccanici | Impresa esecutrice | Esecuzione | NO | ||
| Impresa | Ecotermia - impianto geotermico | Impresa esecutrice | Esecuzione | NO | ||
| Micaela | Esposito | Progetto architettonico | Progetto | NO | ||
| Studio Associato | Fabrica | Progetto architettonico | Progetto | Visualizza Profilo | http://www.fabricaassociati.it/ | SI |
| Impresa | G.M.C. - impianti elettrico e fotovoltaico | Impresa esecutrice | Esecuzione | NO | ||
| Studio Cooperativo | I.P.R. SCRL | Progetto Impianti | Progetto | NO | ||
| Saverio | Nicastro | Collaboratore | Progetto | NO | ||
| Giulia | Santarelli | Collaboratore | Progetto | NO | ||
| Severino | Scungio - carpenteria metallica e facciata ventilata | Impresa esecutrice | Esecuzione | NO | ||
| Luigi | Serio | Progetto strutturale | Progetto | NO | ||
| Luigi | Serio | Progetto architettonico | Progetto | NO | ||
| Metal | Ter | Impresa esecutrice | Esecuzione | NO | ||
| Unimetal & MC3 | Impresa esecutrice | Esecuzione | NO |
- Strutture: calcestruzzo armato, acciaio e legno
- Materiale di facciata: facciata ventilata in blocchi di tufo e listelli in legno; vetro
- Coperture: a doppia falda con rivestimento in lamiera in zincotitanio
- Serramenti: vetrata strutturale
- Stato Strutture: Buono
- Stato Materiale di facciata: Buono
- Stato Coperture: Buono
- Stato Serramenti: Buono
- Vincolo: Non Vincolata
- Provvedimenti di tutela: Nessuna opzione
- Data Provvedimento:
- Riferimento Normativo:
- Altri Provvedimenti:
- Foglio Catastale: 25
- Particella: 298
Note
Premio internazionale di progettazione "Spazio diVino", 2012 menzione nella sezione "opere realizzate" Segnalazione della Giuria per il Paesaggio Premio Dedalo Minosse 2014
Bibliografia
| Autore | Anno | Titolo | Edizione | Luogo Edizione | Pagina | Specifica |
|---|---|---|---|---|---|---|
| Di Giuliomaria Paola | 2012 | La cultura del vino e la sua architettura | AR Magazine n. 103 | 21-25 | Si |
Allegati
Criteri
| 4. L’edificio o l’opera di architettura riveste un ruolo significativo nell’ambito dell’evoluzione del tipo edilizio di pertinenza, ne offre un’interpretazione progressiva o sperimenta innovazioni di carattere distributivo e funzionale. | |
| 7. L’edificio o l’opera di architettura si segnala per il particolare valore qualitativo all’interno del contesto urbano in cui è realizzata. |
Crediti Scheda
Enti di riferimento: DGAAP - Segretariato Regionale per il LazioTitolare della ricerca: Università degli studi di Tor Vergata
Responsabile scientifico: Rosalia Vittorini
Scheda redatta da Barbara Paroli
creata il 31/12/2012
ultima modifica il 17/04/2024
Revisori:
Alberto Coppo 2022





