CASA VOLPINI
Scheda Opera
- Comune: Urbino
- Località: Canavaccio
- Denominazione: CASA VOLPINI
- Indirizzo: Strada Provinciale delle Cesane N. 129
- Data: 1975 - 1975
- Tipologia: Abitazioni unifamiliari
- Autori principali: Gian Piero Frassinelli
Descrizione
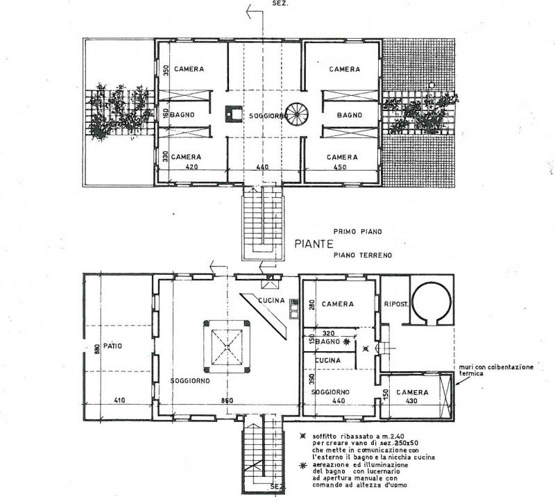
La casa, situata a pochi chilometri da Urbino, era in origine una tenuta colonica, su cui interviene Piero Frassinelli (Superstudio). L’intervento più evidente all’esterno è l’inserimento di un nuovo volume - rivestito in vetrocemento, ceramica bianca, acciaio e vetro - che “seziona” trasversalmente l’edificio in due parti uguali. Sui lati corti sono inoltre aggiunti due patii perimetrati in ceramica bianca, che disegnano idealmente dei volumi perfetti e astratti, in netto contrasto alla matericità dell’edificio antico. L’interno, anch’esso moderno, è giocato sul contrasto dei colori bianco (la struttura portante), blu (i volumi quadrati e chiusi delle stanze) e verde (il focolare e i collegamenti verticali).
All’interno, Frassinelli tramuta la stalla al piano terra in zona giorno, caratterizzata da 4 colonne in rocchi di cotto, al centro delle quali colloca un camino con cappa di acciaio. Il piano superiore (zona notte) è concepito come un ambiente unico coperto dal tetto a vista, al cui centro resta un ambiente di soggiorno e un passaggio sopraelevato, allineato alla scala a chiocciola leggera (racchiusa da un cilindro in rete elettrosaldata), per sfruttare lo spazio tra il colmo e la copertura della zona notte. (MP)
Info
- Progetto: 1975 - 1975
- Esecuzione: 1975 - 1975
- Tipologia Specifica: Abitazione unifamiliare
- Proprietà: Nessuna opzione
- Destinazione originaria: Abitazione colonica
- Destinazione attuale: Abitazione privata
Autori
- Strutture: Calcestruzzo armato e acciaio
- Materiale di facciata: Muratura faccia vista, ceramica, vetro, metallo e coppi
- Coperture: Falda inclinata in calcestruzzo armato, metallo e coppi
- Serramenti: Legno e metallo
- Stato Strutture: Buono
- Stato Materiale di facciata: Buono
- Stato Coperture: Buono
- Stato Serramenti: Buono
- Vincolo: Non Vincolata
- Provvedimenti di tutela: Nessuna opzione
- Data Provvedimento:
- Riferimento Normativo:
- Altri Provvedimenti:
- Foglio Catastale: -
- Particella: -
Note
-
Bibliografia
| Autore | Anno | Titolo | Edizione | Luogo Edizione | Pagina | Specifica |
|---|---|---|---|---|---|---|
| 1977 | Superstudio, Tre case, tre soluzioni | Domus n. 569 | Milano | 37-40 | Si | |
| 1977 | Caratterizzazione di un rirpristino | Ville e Giardini | Milano | 20-24 | Si | |
| Felicori Bianca | 2020 | Casa Volpini, dal progetto di Superstudio all’annuncio di vendita | Domus | Milano | Si |
Criteri
| 4. L’edificio o l’opera di architettura riveste un ruolo significativo nell’ambito dell’evoluzione del tipo edilizio di pertinenza, ne offre un’interpretazione progressiva o sperimenta innovazioni di carattere distributivo e funzionale. | |
| 6. L’edificio o l’opera di architettura è stata progettata da una figura di rilievo nel panorama dell’architettura nazionale e/o internazionale. |
Sitografia ed altri contenuti online
| Titolo | Url |
|---|---|
| domus web | Visualizza |
Crediti Scheda
Enti di riferimento: DGAAP - Segretariato Regionale per le MarcheTitolare della ricerca: Università Politecnica delle Marche - Dipartimento di Ingegneria Civile Edile e di Architettura
Responsabile scientifico: Antonello Alici
Scheda redatta da
creata il 31/12/2016
ultima modifica il 24/01/2025
Revisori:
Menzietti Giulia 2021




