I-RUR (ISTITUTO PER IL RINNOVAMENTO URBANO E RURALE DEL CANAVESE)
Scheda Opera
- Comune: Vidracco
- Denominazione: I-RUR (ISTITUTO PER IL RINNOVAMENTO URBANO E RURALE DEL CANAVESE)
- Indirizzo: Via Baldissero N. 21
- Data: 1957 - 1984
- Tipologia: Centri di ricerca
- Autori principali: Eduardo Vittoria
Descrizione
1. L’opera originaria
«Nel 1964 le cronache dell’I-Rur riportavano:
“I mobili per televisori sono la lavorazione più recente avviata nel laboratorio di Vidracco, che si è rapidamente trasformato da una produzione pressoché artigianale in vera e propria ebanisteria industriale.
Il laboratorio – situato alla periferia del paese, a metà della valle del Chiusella – dà lavoro a 210 persone (nel 1962 i dipendenti erano 150), e la produzione ha registrato, nel 1963, un incremento di circa il 65% rispetto all’anno precedente.
I motivi di questo sviluppo, che fanno del laboratorio di Vidracco la maggiore tra le attività dell’I-Rur, sono da ricercarsi nella richiesta sempre più consistente delle nuove produzioni.
Il laboratorio infatti fornisce ad importanti aziende di radio, di giradischi e, più recentemente, di televisori, i mobili necessari a queste apparecchiature.
Tutte queste lavorazioni, di data relativamente recente, si aggiungono a quella tradizionale delle valigette per le macchine per scrivere portatili e semi-standard della Olivetti, verso le quali il laboratorio si era unicamente indirizzato alle sue origini.
Sia in quest’ultimo settore, sia in quello degli apparecchi audiovisivi vi sono buone prospettive di sviluppo.
Appunto tenendo conto della necessità di una adeguata sistemazione delle lavorazioni che consenta di sostenere un elevato ritmo produttivo, sta per essere stata avviata a Vidracco la costruzione di un altro lotto dello stabilimento, che si aggiungerà a quello realizzato nel 1962 su progetto dell’architetto Eduardo Vittoria”.
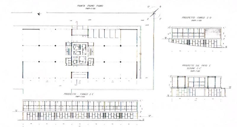
I disegni architettonici originali dello stabilimento sono datati “aprile 1957”, con aggiornamenti del dicembre 1960. Nei disegni il fabbricato è già concepito in due lotti distinti, ciascuno composto da 9 maglie strutturali di 7,5 metri di lato, per un totale di circa 500 metri quadrati per lotto. I due lotti, a pianta quadrata, sono separati fra loro da un corpo di fabbrica di collegamento, arretrato su entrambi i fronti di mezzo modulo, e con un patio interno a verde, pari a un modulo e mezzo. Ai lati del patio sono previsti, per ogni modulo, un gruppo di servizi igienici su entrambi i piani e la scala di collegamento a due rampe; adiacente alla scala, solo per il primo lotto, è indicato un montacarichi.
La struttura è in cemento armato con pilastri a sezione quadrata perimetrali e quattro pilastri a croce centrali per ogni lotto, con travi ordite nei due sensi ortogonali e rastremate all’attacco dei pilastri centrali.
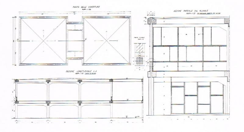
La copertura è piana in cemento armato impermeabilizzato, con linee di displuvio diagonali rispetto alla pianta quadrata e scarichi pluviali disposti ai quattro vertici, con discese incassate nella muratura ai lati dei pilastri d’angolo.
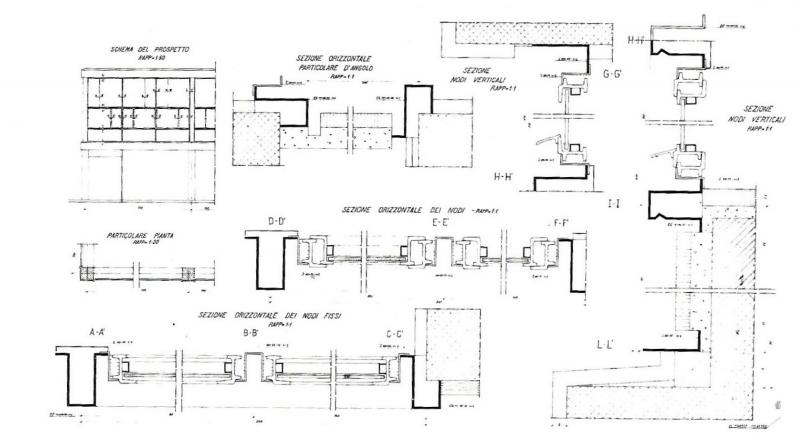
I prospetti sono caratterizzati da parti neutre piene, in muratura rivestita con piastrelle di ceramica chiara, a finitura opaca, e da ampi serramenti in profilato ferro-finestra, con vetri semi-doppi e sottodavanzali in “Glasal” bianco.
I profilati dei serramenti sono laccati in tinta blu, i profili secondari ed i fermavetri sono invece di colore grigio chiaro.
L’elemento dominante dei serramenti non è però il colore, ma il ritmare dei moduli: al piano terreno ogni maglia strutturale è suddivisa in cinque moduli, di cui i due intermedi presentano la parte centrale apribile; al primo piano i moduli sono limitati a tre, con specchiature asimmetriche alternate e fascia inferiore apribile a bilico orizzontale.
L’ingresso principale è ricavato nella rientranza del corpo di collegamento fra il primo ed il secondo lotto, al primo piano lato nord-ovest, sfruttando la strada a monte, più alta; una strada interna scende costeggiando l’edificio a nord, e consente l’accesso alle aperture di servizio del piano inferiore, sul fronte opposto.
La zona d’ingresso è connotata da materiali più ricercati: scalinata e pavimentazione sono in pietra locale grezza, coperti in parte da una pensilina rivestita all’intradosso con doghe di legno; le due porte sono separate da una vasca fioriera in cemento a vista, leggermente sopraelevata, che trova riscontro anche nella parte interna, e da un pannello sempre in cemento con il logo Olivetti in bassorilievo.
Sul lato destro il gruppo delle canne fumarie, rivestito con mattonelle di cotto a vista, completa l’insieme, in cui solo le due porte, ora di alluminio anodizzato naturale, differiscono dal progetto originale.
Di tale progetto sono stati realizzati entrambi i lotti, ma in epoche diverse: il primo (che attualmente risulta al centro del fabbricato) nel 1961 e il secondo nel 1964.
I prospetti rispecchiano esattamente quanto previsto da Eduardo Vittoria; materiali e colori sono uniformi (fatta eccezione per il rivestimento, in tesserine di ceramica, delle strutture a vista del primo lotto) tanto da rendere i due corpi di fabbrica perfettamente integrati ed omogenei, nonostante la loro realizzazione sia avvenuta in due tempi.
Non così invece dal punto di vista compositivo e distributivo: scompare il patio per lasciare spazio, al piano terreno, agli spogliatoi; al primo piano si ricava un’area da adibire a reception, recuperando così quasi 500 metri cubi di volumetria utile.
All’interno viene realizzata una sola scala, nel primo lotto, e i servizi igienici vengono spostati sul lato nord-ovest, in adiacenza al muro perimetrale, verso l’intercapedine a cielo libero.
Si perdono così la simmetria e l’ordine formale inizialmente previsti, oltre ad aver rinunciato all’illuminazione naturale che il patio avrebbe garantito a vaste aree interne.
Nel 1968 Ottavio Cascio sviluppa uno studio per la sistemazione ad uffici dello stabilimento, con varianti che incideranno solo sulla distribuzione interna, dando luogo a partizioni leggere per la realizzazione di alcuni locali più raccolti e a una nuova reception per la zona di ingresso.
Nel 1969 altri lavori di ristrutturazione riguarderanno il fabbricato comunale adiacente al laboratorio, sul lato nord, per la sistemazione della Mensa e del Dopomensa; nel settembre dello stesso anno Ottavio Cascio progetta un nuovo locale esterno per la Centrale termica.
Nel dicembre del 1979, su progetto di Luigi Rossi, viene coperta con una pensilina metallica la rientranza in corrispondenza del corpo di collegamento fra i primi due lotti, sul lato sud-est.
Ma è nel 1984 che l’edificio subisce la trasformazione più consistente: Eduardo Vittoria e Antonio Migliasso realizzano il terzo lotto, in ampliamento ai due originari.
Il nuovo corpo di fabbrica viene innestato sul fronte sud-ovest del primo lotto, che da allora figura come corpo di fabbrica centrale rispetto all’intera costruzione.
La maglia strutturale conserva il modulo di 7,50 metri, ripetuto però per 12 volte anziché 9, così da ottenere una pianta rettangolare, e non quadrata come per i primi due edifici.
La struttura, in cemento armato precompresso, è costituita da travi disposte parallelamente al lato più lungo, poggiate su pilastri a sezione quadrata; la copertura è del tipo a “dalle” prefabbricate, sempre in cemento.
L’orditura a travi parallele, a fronte della struttura a piastra dei solai dei primi due lotti, genera un’altezza di trave decisamente maggiore, ben visibile in corrispondenza dei nodi di giunzione dell’ampliamento.
L’attacco con il fabbricato esistente è risolto con l’arretramento delle fronti di mezzo modulo, come fra il primo ed il secondo lotto, ma i progettisti optano per uno stacco deciso, realizzando questi tratti di prospetto con un rivestimento neutro in lastre di policarbonato a doppia parete.
Sulle tre facciate in vista riprendono invece i materiali ed i colori utilizzati in origine: rivestimento in piastrelle ceramiche delle pareti piene e doppio colore, blu e grigio, per i serramenti, realizzati in alluminio, con vetri-camera a piccola specchiatura.
La destinazione d’uso prevista (stabilimento di produzione) e la normativa sul risparmio energetico, danno luogo a parti vetrate molto ridotte rispetto ai primi due lotti; sul progetto preliminare sono previste solo due strette fasce verticali ai lati di ogni pilastro perimetrale, poi collegate fra loro, in sede esecutiva, con una ulteriore fascia vetrata orizzontale posta in alto, sotto le travi di bordo.
Restano invariate l’altezza fuori terra e la copertura piana.
Nel maggio 1985 è ancora Andrea Migliasso a progettare e dirigere la realizzazione di un parcheggio a terrazze sulla testata sud-ovest, a quote più basse rispetto alla strada, per oltre 50 posti auto.
Nel settembre 1988, con il trasferimento delle attività produttive in altra sede, l’edificio diventa oggetto di studio da parte di Joannis Koumentakis, per il riutilizzo della struttura a sede di istruzione, nell’ambito delle attività di formazione aziendale […]. L’intervento di Koumentakis è rimasto sulla carta: l’edificio oggi, è destinato interamente a deposito di materiale vario». (Daniele Boltri, Giovanni Maggia, Enrico Papa, Pier Paride Vidari, Architetture olivettiane a Ivrea. I luoghi del lavoro e i servizi socio-assistenziali di fabbrica, Fondazione Adriano Olivetti, Gangemi Editore, Roma 1998, pp. 146, 153-155).
2. Consistenza dell’opera al 2019
Il complesso risulta al 2019 in uso, come architettura polifunzionale ospitante un centro congressi, laboratori artigianali, attività commerciali, servizi alla persona. Complessivamente l’edificio, nelle sue tre fasi principali (primo, secondo e terzo lotto), risulta permanente e leggibile. La mixité di funzioni ha indotto una serie di sovrascritture e inserimenti funzionali, come l’apposizione di insegne, la parziale sostituzione dei serramenti, il fissaggio di tende, unità esterne di condizionatori, strutture di dehors. Le nuove funzioni hanno anche determinato una ulteriore differente articolazione compositiva interna, seppure nella persistenza dei sistemi e dei fulcri strutturali d’impianto. Sul fronte nord-ovest, verso monte, l’originario ingresso con pensilina e gruppo di canne fumarie rivestite da mattonelle in cotto, posto nell’arretramento tra i blocchi uno e due, risulta riscritto, con la giustapposizione di una sorta di bussola in linea col filo del prospetto. Sul fronte opposto, sud (più propriamente sud-est), l’originaria finitura in lastre di policarbonato del corpo di collegamento fra i lotti due e tre non è più presente. In generale, il rapporto tra pieni e superfici finestrate è rispettato, le piastrelle in ceramica chiara sono conservate. Sono rilevabili alcuni degradi fisiologici, come dilavamento e presenza di patine biologiche sulle partiture in calcestruzzo a vista.
(Scheda a cura di Monica Naretto, DAD - Politecnico di Torino)
Info
- Progetto: 1957 - 1961
- Esecuzione: 1961 - 1984
- Tipologia Specifica: Laboratori
- Committente: Olivetti
- Proprietà: Proprietà privata
- Destinazione originaria: Laboratorio
- Destinazione attuale: Centro polifunzionale: laboratori artigianali, attività commerciali, poliambulatorio
Autori
| Nome | Cognome | Ruolo | Fase Progetto | Archivio Architetti | Url Profilo | Autore Principale |
|---|---|---|---|---|---|---|
| Antonio | Migliasso | Progetto strutturale | Progetto | NO | ||
| Antonio | Migliasso | Direzione lavori | Esecuzione | NO | ||
| Eduardo | Vittoria | Progetto architettonico | Progetto | Visualizza Profilo | https://www.architettiroma.it/50_anni_professione/vittoria-eduardo/ | SI |
- Strutture: Primo e secondo lotto: - cemento armato con pilastri a sezione quadrata perimetrali e quattro pilastri a croce centrali per ogni lotto, con travi ordite nei due sensi ortogonali e rastremate all’attacco dei pilastri centrali. Terzo lotto: - cemento armato
- Materiale di facciata: Parti neutre in muratura rivestita con piastrelle di ceramica chiara, a finitura opaca. Ampi serramenti in profilato ferro-finestra, laccati in tinta blu, con vetri semi-doppi e sottodavanzali in “Glasal” bianco.
- Coperture: Primo e secondo lotto: - copertura piana in cemento armato impermeabilizzato. Terzo lotto: - copertura in cemento del tipo a “dalle” prefabbricate.
- Serramenti: Ampi serramenti in profilato ferro-finestra, con vetri semi-doppi e sottodavanzali in “Glasal” bianco. I profilati dei serramenti sono laccati in tinta blu, i profili secondari ed i fermavetri sono invece di colore grigio chiaro.
- Stato Strutture: Buono
- Stato Materiale di facciata: Mediocre
- Stato Coperture: Buono
- Stato Serramenti: Mediocre
- Vincolo: Non Vincolata
- Provvedimenti di tutela: Vincolo ambientale
- Data Provvedimento:
- Riferimento Normativo: Aree tutelate per legge ai sensi dell’art 142 del D.Lgs n 42 del 2004, Lettera B
- Altri Provvedimenti:
- Foglio Catastale: -
- Particella: -
Note
-
Bibliografia
| Autore | Anno | Titolo | Edizione | Luogo Edizione | Pagina | Specifica |
|---|---|---|---|---|---|---|
| Boltri Daniele, Maggia Giovanni, Papa Enrico, Vidari Pier Paride | 1998 | Architetture Olivettiane a Ivrea. I luoghi del lavoro e i servizi socio-assistenziali di fabbrica, Fondazione Adriano Olivetti | Gangemi Editore | Roma | 146-157 | No |
| Giusti Maria Adriana, Tamborrino Rosa | 2008 | Guida del Piemonte. Architettura del Novecento | , Allemandi & C | Torino | 344 | No |
Allegati
Criteri
| 4. L’edificio o l’opera di architettura riveste un ruolo significativo nell’ambito dell’evoluzione del tipo edilizio di pertinenza, ne offre un’interpretazione progressiva o sperimenta innovazioni di carattere distributivo e funzionale. | |
| 6. L’edificio o l’opera di architettura è stata progettata da una figura di rilievo nel panorama dell’architettura nazionale e/o internazionale. | |
| 7. L’edificio o l’opera di architettura si segnala per il particolare valore qualitativo all’interno del contesto urbano in cui è realizzata. |
Crediti Scheda
Enti di riferimento: DGAAP - Segretariato Regionale per il PiemonteTitolare della ricerca: Politecnico Torino Dipartimento Architettura e Design
Responsabile scientifico: Maria Adriana Giusti, Gentucca Canella (DAD)
Scheda redatta da Monica Naretto
creata il 31/12/2004
ultima modifica il 28/01/2025
Revisori:
Mezzino Davide 2022



























