RIONE RESIDENZIALE INA - OLIVETTI
Scheda Opera
- Comune: Pozzuoli
- Denominazione: RIONE RESIDENZIALE INA - OLIVETTI
- Indirizzo: via Terracciano, N. 19
- Data: 1952 - 1963
- Tipologia: Edilizia residenziale pubblica
- Autori principali: Luigi Cosenza
Descrizione
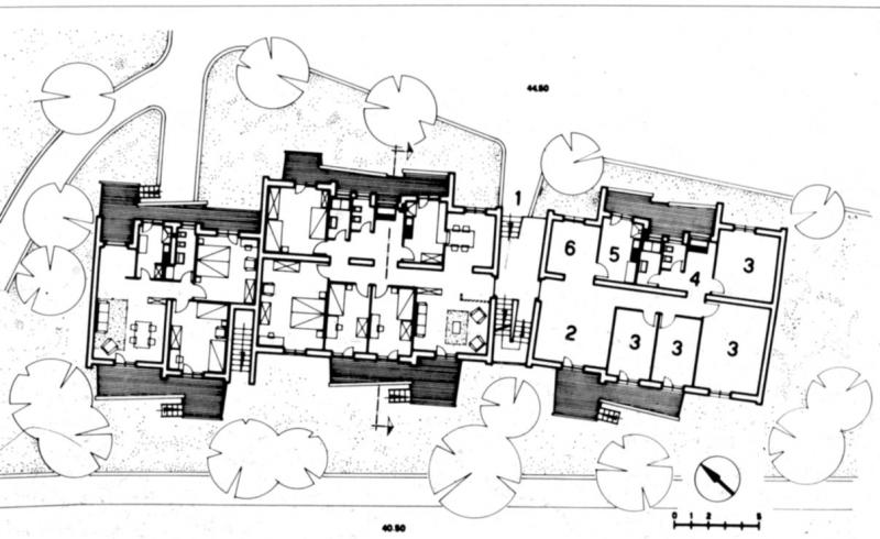
Poco lontano dello stabilimento verso Pozzuoli sorge il quartiere Ina casa e case Olivetti su un terreno di circa 20.000 mq, iniziato nel 1955 con 2500 mp coperti, 47 appartamenti e 324 vani, ampliate nel 1959 con altri 250 vani, e ulteriormente esteso ad altri 230 vani. La concezione del quartiere si basa su una unità urbanistico volumetrica. Il progetto sorge a poca distanza dalle rovine dell'anfiteatro Flavio e in prossimità della fabbrica Olivetti. Il progetto è stato concepito per lotti, tra il 1952 e il 1963. Le case del primo lotto (1952-55) si richiamano ai caratteri dell’edilizia rurale nelle modalità di aggregazione e di disposizione delle palazzine, che definiscono spazi aperti comuni. Nelle case del secondo lotto (1957-59) la ricerca si concentra sulla apertura alla luce degli ambienti interni mediante l’inclinazione dei muri esterni, che ripetono in pianta l’immagine della sezione trasversale dei padiglioni della fabbrica, dove l’inclinazione era applicata alle coperture. Nel terzo lotto (1961-63) l’attenzione è volta ai meccanismi aggregativi di tre palazzine attorno alla scala aperta comune, che consente di ottenere l’affaccio all'esterno su tre dei quattro lati di ognuna. È presente ancora una volta lo schema della corte campana centro di vita collettiva delimitato dagli edifici ed il carattere delle sequenze di abitazioni continue incernierate le une alle altre dalle scale all'aperto. Gli edifici sono prevalentemente a tre livelli e le tipologie degli alloggi cambiano nei lotti successivi richiamando con chiarezza il processo evolutivo nel tempo del progettista.
Come si evince dalla relazione di progetto la superficie degli alloggi varia da 95 a 135 mq, con una consistenza da due a quattro camere da letto, un soggiorno, un pranzo, oppure un soggiorno-pranzo, cucina, bagno e gabinetto e un locale per lavatoio o lavoro. Tutti gli alloggi sono dotati di terrazzo in parte protetto da frangisole in lamierino metallico. La struttura portante è per la maggior parte dei casi in pietra di tufo con solai in cemento armato e laterizio. I serramenti sono in profilati di ferro e finestre, porte interne e persiane in legno. I pavimenti sono in piastrelle di graniglia con battiscopa in marmo di trani, mentre le pareti sono intonacate e tinteggiate con colori lavabili. Il quartiere è servito da una rete di strade e viali pedonali con spazi verdi per i giochi dei bambini e per la sosta all'aperto. Nel quartiere erano anche previsti locali per un centro sociale, un centro sanitario e un'autorimessa per i automezzi e motociclette.
Info
- Progetto: 1952 -
- Esecuzione: - 1963
- Committente: Olivetti
- Proprietà: Proprietà privata
- Destinazione originaria: abitativa
- Destinazione attuale: abitativa
Autori
| Nome | Cognome | Ruolo | Fase Progetto | Archivio Architetti | Url Profilo | Autore Principale |
|---|---|---|---|---|---|---|
| Pietro | Ciaravolo | Progetto strutturale | Progetto | NO | ||
| Luigi | Cosenza | Progetto architettonico | Progetto | Visualizza Profilo | https://siusa.archivi.beniculturali.it/cgi-bin/siusa/pagina.pl?TipoPag=prodpersona&Chiave=55393 | SI |
| Massimo | Nizzoli | Consulente | Progetto | NO | ||
| Pietro | Porcinai | Progetto del verde | Progetto | Visualizza Profilo | https://siusa.archivi.beniculturali.it/cgi-bin/siusa/pagina.pl?TipoPag=prodpersona&Chiave=52169 | NO |
- Strutture: Cemento armato
- Materiale di facciata: Intonaco
- Coperture: Piana
- Serramenti: Legno e metallo
- Stato Strutture: Discreto
- Stato Materiale di facciata: Discreto
- Stato Coperture: Discreto
- Stato Serramenti: Discreto
- Vincolo: Vincolata
- Provvedimenti di tutela: Dichiarazione di notevole interesse
- Data Provvedimento: DDR 20/09/2005
- Riferimento Normativo: D.Lgs. 42/2004, art. 10 c.3 lett. a
- Altri Provvedimenti:
- Foglio Catastale: -
- Particella: -
Note
Referenze fotografiche 7) foto in "Servizi e assistenza sociale di fabbrica", Olivetti spa, 1963 8) foto F. Roiter, in "Olivetti 1908-1958", Olivetti spa, 1958
Bibliografia
| Autore | Anno | Titolo | Edizione | Luogo Edizione | Pagina | Specifica |
|---|---|---|---|---|---|---|
| Labò Mario | 1955 | Lo stabilimento e il quartiere Olivetti a Pozzuoli dell'ing. Luigi Cosenza | «Casabella», n. 206 | 57-61 | Si | |
| Labò Mario | 1955 | Lo stabilimento e il quartiere Olivetti a Pozzuoli | «L'architettura. Cronache e storia», n. 2, luglio-agosto | Si | ||
| 1956 | Quartiere INA-Casa Olivetti a Pozzuoli | «L'Architecture D'Aujourd'hui», n. 66 | Si | |||
| 1956 | Case ad appartamenti per la Olivetti | «Domus», n. 320 | 8 | Si | ||
| Moccia Francesco Domenico | 1987 | Luigi Cosenza. L’opera completa, a cura di G. Cosenza, F.D. Moccia | Electa Napoli / Clean | Napoli | 167-171 | Si |
| Stenti Sergio | 1993 | Napoli moderna. Città e case popolari 1968-1980 | CLEAN Edizioni | Napoli | 157-159 | Si |
| Conforti Claudia | 1997 | Roma, Napoli, la Sicilia, in Storia dell'architettura italiana. Il secondo Novecento, (a cura di) F. Dal Co | Electa | Milano | 185 | No |
| Stenti Sergio | 2006 | INA Ponticelli e Olivetti Pozzuoli : due paradigmi dell’INA-Casa primo settennio, in Città, architettura e edilizia pubblica, (a cura di) Ugo Carughi | CLEAN Edizioni | Napoli | 141-151 | Si |
| Buccaro Alfredo, Mainini Giancarlo (a cura di) | 2006 | Nucleo abitativo INA Olivetti, in Luigi Cosenza oggi 1905/2005 | CLEAN Edizioni | Napoli | 24, 134-137 | Si |
Fonti Archivistiche
| Titolo | Autore | Ente | Descrizione | Conservazione |
|---|---|---|---|---|
| Fondo Luigi Cosenza, Case popolari Olivetti-Pozzuoli, 1952-1963 - 1957-1959 | Luigi Cosenza | Archivio di Stato di Napoli |
Allegati
Criteri
| 1. L’edificio o l’opera di architettura è citata in almeno tre studi storico-sistematici sull’architettura contemporanea di livello nazionale e/o internazionale. | |
| 2. L’edificio o l’opera di architettura è illustrata in almeno due riviste di architettura di livello nazionale e/o internazionale. | |
| 3. L’edificio o l’opera di architettura ha una riconosciuta importanza nel panorama dell’architettura nazionale, degli anni nei quali è stata costruita, anche in relazione ai contemporanei sviluppi sia del dibattito, sia della ricerca architettonica nazionale e internazionale, | |
| 4. L’edificio o l’opera di architettura riveste un ruolo significativo nell’ambito dell’evoluzione del tipo edilizio di pertinenza, ne offre un’interpretazione progressiva o sperimenta innovazioni di carattere distributivo e funzionale. | |
| 5. L’edificio o l’opera di architettura introduce e sperimenta significative innovazioni nell’uso dei materiali o nell’applicazione delle tecnologie costruttive. | |
| 6. L’edificio o l’opera di architettura è stata progettata da una figura di rilievo nel panorama dell’architettura nazionale e/o internazionale. | |
| 7. L’edificio o l’opera di architettura si segnala per il particolare valore qualitativo all’interno del contesto urbano in cui è realizzata. |
Sitografia ed altri contenuti online
| Titolo | Url |
|---|---|
| Archivio Luigi Cosenza | Visualizza |
| SAN Archivi degli Architetti - Luigi Cosenza | Visualizza |
| Dizionario biografico degli Italiani - Luigi Cosenza | Visualizza |
Crediti Scheda
Enti di riferimento: DGAAPTitolare della ricerca: Università degli Studi della Campania Luigi Vanvitelli DIC-DEA
Responsabile scientifico: Pasquale Belfiore
Scheda redatta da Ugo Carughi
creata il 31/12/2017
ultima modifica il 29/01/2025











