CASA GUZZINI-RAFANELLI (EX BURGIA)
Scheda Opera
- Comune: Recanati
- Località: Recanati
- Denominazione: CASA GUZZINI-RAFANELLI (EX BURGIA)
- Indirizzo: Corso Persicani
- Data: 1995 - 1998
- Tipologia: Interventi di recupero e trasformazione
- Autori principali: Danilo Guerri
Descrizione
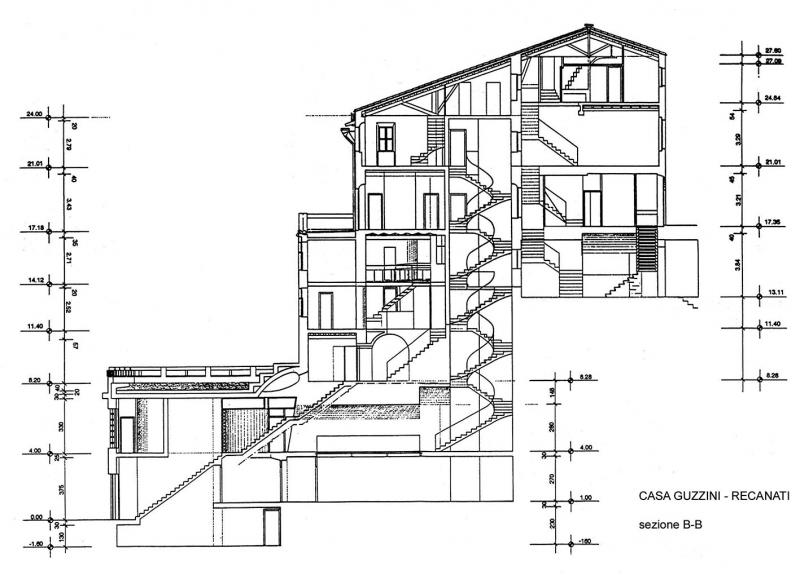
L'architetto Danilo Guerri in questo progetto realizza un importante restauro in un palazzo urbano che, insistendo su un terreno in forte pendenza, nel fronte verso valle si eleva per nove livelli raggruppati a gradoni in gruppi di tre. L’edificio viene diviso in vari appartamenti, separati dalla proprietà principale, i cui accessi sono posti sia sul corso che sulla via sottostante. Nei vari gradoni del palazzo viene ricavata una terrazza e un piccolo giardino che il padrone di casa ama curare.
Guerri in questo progetto realizza un importante restauro in un palazzo urbano che, insistendo su un terreno in forte pendenza, nel fronte verso valle si eleva per nove livelli raggruppati a gradoni in gruppi di tre. L’edificio, che sviluppa una superficie totale di circa 1.100 metri quadrati, viene diviso in vari appartamenti, separati dalla proprietà principale, i cui accessi sono posti sia sul corso che sulla via sottostante. Nei vari gradoni del palazzo viene ricavata una terrazza e un piccolo giardino che il padrone di casa ama curare.
Per gli interni Guerri inserisce nel cuore della casa una poderosa scala in calcestruzzo armato a pianta ellittica che collega praticamente tutti i livelli del palazzo, che sono caratterizzati da una pianta sempre diversa; la balaustra in metallo è un’autentica opera d’arte e si innesta ad altre opere in carpenteria metallica di nuova realizzazione e altre già presenti nell’edificio. (GB)
Info
- Progetto: 1995 - 1998
- Esecuzione: 1996 - 1998
- Tipologia Specifica: Palazzo urbano
- Committente: Privato
- Proprietà: Proprietà privata
- Destinazione originaria: Palazzo urbano
- Destinazione attuale: Palazzo urbano
Autori
| Nome | Cognome | Ruolo | Fase Progetto | Archivio Architetti | Url Profilo | Autore Principale |
|---|---|---|---|---|---|---|
| Danilo | Guerri | Progetto architettonico | Progetto | Visualizza Profilo | https://siusa.archivi.beniculturali.it/cgi-bin/siusa/pagina.pl?TipoPag=prodpersona&Chiave=43462 | SI |
| Cristina | Neri | Collaboratore | Progetto | NO | ||
| Roberto | Pesaresi | Collaboratore | Progetto | NO | ||
| Alberto | Pozzi | Collaboratore | Progetto | NO | ||
| Simona | Ragaglia | Progetto strutturale | Progetto | NO |
- Strutture: Acciaio e calcestruzzo armato
- Materiale di facciata: Mattone faccia vista
- Coperture: A falde con coppi e terrazza verde
- Serramenti: Legno
- Stato Strutture: Ottimo
- Stato Materiale di facciata: Ottimo
- Stato Coperture: Ottimo
- Stato Serramenti: Ottimo
- Vincolo: Non Vincolata
- Provvedimenti di tutela: Nessuna opzione
- Data Provvedimento:
- Riferimento Normativo:
- Altri Provvedimenti:
- Foglio Catastale: -
- Particella: -
Note
Il progetto è frutto della collaborazione tra Danilo Guerri e gli architetti Cristiana Neri, Roberto Pesaresi e Alberto Pozzi. Per le strutture ha collaborato l’ingegnere Simona Ragaglia. I lavori sono stati realizzati dall’impresa Sauro Grimaldi di Matelica. Il materiale è conservato presso l’archivio privato dello studio Danilo Guerri.
Bibliografia
| Autore | Anno | Titolo | Edizione | Luogo Edizione | Pagina | Specifica |
|---|---|---|---|---|---|---|
| Pieri Elisabetta | 2000 | Casa Guzzini - Rafanelli, ex Bruglia, a Recanati | Costruire in laterizio n. 75 | Roma | Si | |
| Molinari Luca | 2000 | Danilo Guerri. Casa per abitazioni a Recanati | Abitare n. 397 | Milano | 138-141 | Si |
| Pugnaloni Fausto, Alberti Francesco | 2000 | Nei luoghi del progetto urbano. Danilo Guerri, temi e immagini del mutamento | Alinea | Firenze | No | |
| Leoni Francesco | 2017 | Danilo Guerri maestro di spazio | Quodlibet | Macerata | 120-125 | No |
Criteri
| 2. L’edificio o l’opera di architettura è illustrata in almeno due riviste di architettura di livello nazionale e/o internazionale. | |
| 6. L’edificio o l’opera di architettura è stata progettata da una figura di rilievo nel panorama dell’architettura nazionale e/o internazionale. |
Sitografia ed altri contenuti online
| Titolo | Url |
|---|---|
| Danilo Guerri - Biografia | Visualizza |
| MAXXI Patrimonio - Danilo Guerri | Visualizza |
Crediti Scheda
Enti di riferimento: DGAAP - Segretariato Regionale per le MarcheTitolare della ricerca: Università Politecnica delle Marche - Dipartimento di Ingegneria Civile Edile e di Architettura
Responsabile scientifico: Antonello Alici
Scheda redatta da
creata il 31/12/2016
ultima modifica il 24/01/2025
Revisori:
Menzietti Giulia 2022




