EDIFICIO PER RESIDENZE E NEGOZI
Scheda Opera
- Comune: Caserta
- Denominazione: EDIFICIO PER RESIDENZE E NEGOZI
- Indirizzo: via Capitano Laviano, 68
- Data: 1987 - 1988
- Tipologia: Abitazioni plurifamiliari
- Autori principali: Giuseppe Saetta
Descrizione
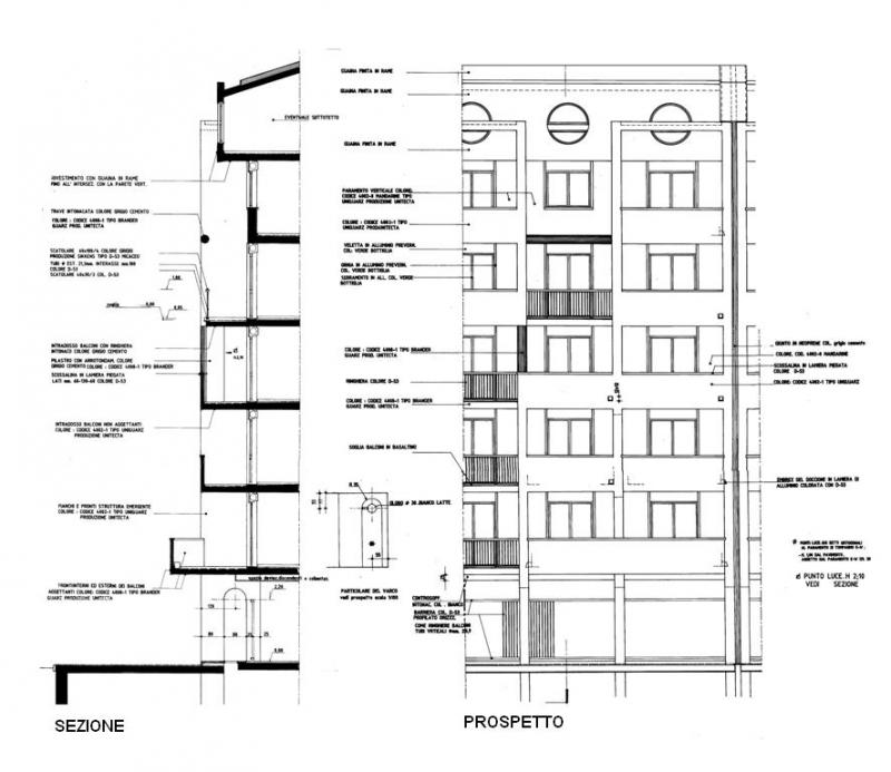
L’edificio si compone di quattro blocchi adiacenti disposti in linea lungo l’asse longitudinale del lotto in direzione est-ovest a partire da via Laviano secondo lo schema tipologico ricorrente nel territorio comunale di Caserta fino agli anni ottanta. Lo sviluppo in alzato presenta, oltre al piano interrato destinato ad autorimessa, un livello prossimo al piano stradale destinato a negozi, in testata e sul lato nord, e a percorsi porticati di accesso ai vani scala-ascensore e spazi verdi a sud; sovrastano il tutto cinque livelli residenziali ciascuno con otto cellule abitative. Il manufatto manifesta un'evidente diversità di linguaggio tra il fronte sud, risolto con un sistema di forti aggetti motivati dall'orientamento oltre che dall'idea compositiva, e il fronte nord, connotato da maschi di tompagno con bucature alternati a terrazzi con parapetto cieco, distinti da precisa dicromia e con finestrature a nastro verticale per i corpi scale. Sul fronte sud si nota, tanto al piano terra che nella continuità dei terrazzi di una stessa unità, l’impiego reiterato di fornici archivoltati che alludono al passaggio longitudinale di cantiere dei Ponti della Valle.
Info
- Progetto: 1987 -
- Esecuzione: - 1988
- Proprietà: Proprietà privata
- Destinazione originaria: Edifici per appartamenti
- Destinazione attuale: Edifici per appartamenti
Autori
- Strutture: Cemento armato
- Materiale di facciata: Intonaco
- Coperture: Piana
- Serramenti: Metallici
- Stato Strutture: Buono
- Stato Materiale di facciata: Buono
- Stato Coperture: Buono
- Stato Serramenti: Buono
- Vincolo: Non Vincolata
- Provvedimenti di tutela: Nessuna opzione
- Data Provvedimento:
- Riferimento Normativo:
- Altri Provvedimenti:
- Foglio Catastale: -
- Particella: -
Note
-
Bibliografia
| Autore | Anno | Titolo | Edizione | Luogo Edizione | Pagina | Specifica |
|---|---|---|---|---|---|---|
| Renato De Fusco | 1996 | La Campania: architettura e urbanistica del Novecento, in Storia e civiltà della Campania. Il Novecento, a cura di G. Pugliese Carratelli | Electa Napoli | Napoli | 143 | Si |
| Pasquale Belfiore | 2006 | Frammenti di qualità architettonica. Percorsi dell’età post-moderna, 1958-1995, in Napoli e la Campania nel Novecento. Diario di un secolo, a cura di A. Croce, F. Tessitore, D. Conte | Liguori | Napoli | 187 (vol. 2) | No |
Criteri
| 5. L’edificio o l’opera di architettura introduce e sperimenta significative innovazioni nell’uso dei materiali o nell’applicazione delle tecnologie costruttive. | |
| 7. L’edificio o l’opera di architettura si segnala per il particolare valore qualitativo all’interno del contesto urbano in cui è realizzata. |
Crediti Scheda
Enti di riferimento: DGAAPTitolare della ricerca: Università degli Studi della Campania Luigi Vanvitelli DIC-DEA
Responsabile scientifico: Pasquale Belfiore
Scheda redatta da
creata il 31/12/2017
ultima modifica il 24/01/2025





