NUOVA SEDE DELLA COMPAGNIA DEI TRASPORTI PUBBLICI DELLA PROVINCIA DI NAPOLI
Scheda Opera
- Comune: Arzano
- Denominazione: NUOVA SEDE DELLA COMPAGNIA DEI TRASPORTI PUBBLICI DELLA PROVINCIA DI NAPOLI
- Indirizzo: Corso Salvatore D’Amato, N. 51
- Data: 2005 - 2008
- Tipologia: Sedi di enti pubblici e istituzioni
- Autori principali: Bruno Discepolo, Alessandro Fasanaro, Giovanni Aurino, Società di Ingegneria Od'A Officina d'Architettura
Descrizione
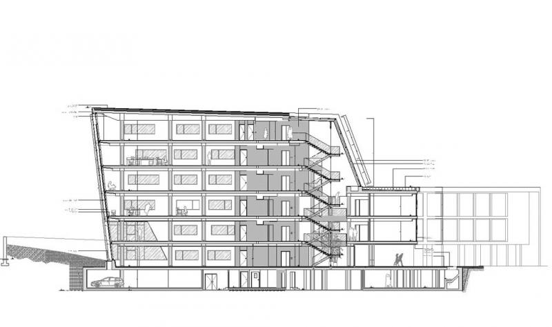
II progetto di sostituzione edilizia della palazzina uffici si inserisce nel programma di riqualificazione, rifunzionalizzazione e valorizzazione del complesso di proprietà della Compagnia Trasporti Pubblici di Arzano. Il progetto curato dallo Studio Od’A-Officina d’Architettura srl in tutte le sue fasi, dal preliminare all'esecutivo, ha interessato un'area di 3000 mq di cui 1580 mq di superficie coperta per un volume totale di 9520 mc.
L’intervento ha previsto la demolizione del vecchio e fatiscente edificio e la ricostruzione di un moderno e funzionale complesso di uffici articolato in due corpi di fabbrica: il primo, di cinque piani, è destinato a ospitare l’area direzionale dell’azienda; il secondo, di due soli piani, si innesta ortogonalmente sul primo, e si sviluppa su pilotis, lasciando libero il piano terra. I due corpi di fabbrica sono serviti da un unico volume- scala la cui collocazione risulta una vera e propria cerniera della composizione.
Info
- Progetto: 2005 -
- Esecuzione: - 2008
- Committente: CTP Compagnia dei Trasporti Pubblici della Provincia di Napoli
- Proprietà: Proprietà pubblica
- Destinazione originaria: Uffici direzionali
- Destinazione attuale: Uffici direzionali
Autori
| Nome | Cognome | Ruolo | Fase Progetto | Archivio Architetti | Url Profilo | Autore Principale |
|---|---|---|---|---|---|---|
| Giovanni | Aurino | Progetto architettonico | Progetto | Visualizza Profilo | https://www.oda.na.it/chi-siamo/ | SI |
| Maurizio | Campopiano | Progetto strutturale | Progetto | NO | ||
| Fulvio | Capuano | Progetto Impianti | Progetto | NO | ||
| Bruno | Discepolo | Progetto architettonico | Progetto | Visualizza Profilo | https://www.oda.na.it/chi-siamo/ | SI |
| Alessandro | Fasanaro | Progetto architettonico | Progetto | Visualizza Profilo | https://www.oda.na.it/chi-siamo/ | SI |
| Vincenzo | Fiorillo | Collaboratore | Progetto | NO | ||
| Società di Ingegneria | Od'A Officina d'Architettura | Progetto architettonico | Progetto | Visualizza Profilo | https://www.oda.na.it/ | SI |
- Strutture: C.A.
- Materiale di facciata: continua
- Coperture: piana
- Serramenti: metallici
- Stato Strutture: Ottimo
- Stato Materiale di facciata: Buono
- Stato Coperture: Buono
- Stato Serramenti: Buono
- Vincolo: Non Vincolata
- Provvedimenti di tutela: Nessuna opzione
- Data Provvedimento:
- Riferimento Normativo:
- Altri Provvedimenti:
- Foglio Catastale: -
- Particella: -
Note
-
Criteri
| 7. L’edificio o l’opera di architettura si segnala per il particolare valore qualitativo all’interno del contesto urbano in cui è realizzata. |
Sitografia ed altri contenuti online
| Titolo | Url |
|---|---|
| Officina d'Architettura | Visualizza |
Crediti Scheda
Enti di riferimento: DGAAPTitolare della ricerca: Università degli Studi della Campania Luigi Vanvitelli DIC-DEA
Responsabile scientifico: Pasquale Belfiore
Scheda redatta da
creata il 31/12/2017
ultima modifica il 29/01/2025
Revisori:
Martina Massaro







