COMPLESSO RESIDENZIALE 'POLINA'
Scheda Opera
- Comune: Gricignano di Aversa
- Località: Gricignano d’Aversa
- Denominazione: COMPLESSO RESIDENZIALE 'POLINA'
- Indirizzo: Via Giuseppe Mazzini, Via Bettino Craxi, Via Enrico Berlinguer
- Data: 2003 - 2017
- Tipologia: Edilizia residenziale pubblica
- Autori principali: Ferruccio Izzo
Descrizione
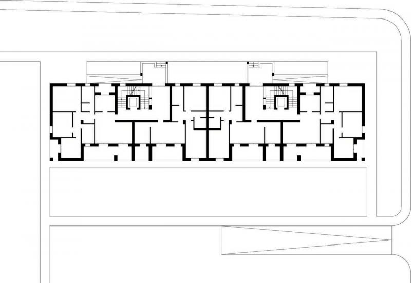
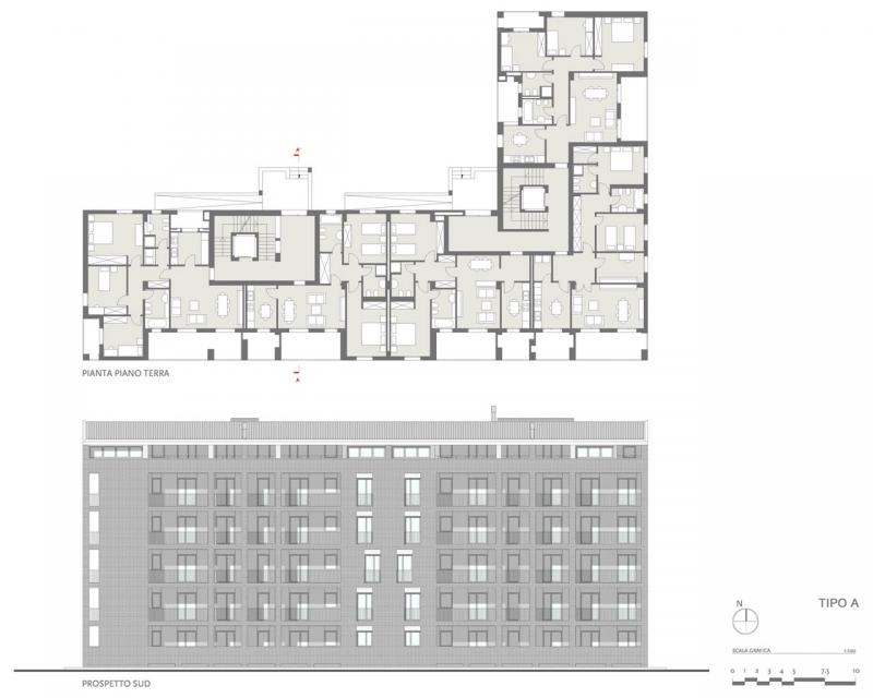
Il complesso residenziale prevede un’articolazione in tre aree disposte lungo la direzione est-ovest, nelle quali gli edifici si aggregano in maniera diversa, in rapporto alle loro caratteristiche tipologiche, generando spazi aperti che si configurano come corti verdi. Ciascun parco è servito da un sistema di parcheggi seminterrati con collegamenti alla viabilità principale, mentre gli spazi delle corti sono a esclusivo uso pedonale.
Diversi tipi edilizi danno luogo a un'ampia varietà di appartamenti con metrature da 65 a 115 mq. Il collegamento verticale è garantito da un blocco scale con ascensore che serve da due a quattro appartamenti per piano. Gli appartamenti più piccoli sono composti da soggiorno, cucina, camera da letto e bagno e almeno una loggia coperta. Le unità abitative di media quadratura hanno soggiorno, cucina due camere, due bagni e una loggia, mentre le unità più grandi dispongono di una camera in più e si aprono su una loggia e un balcone a servizio della cucina, entrambi coperti.
Le strutture sono in cemento armato e gli edifici hanno un rivestimento esterno in mattoni.
Info
- Progetto: 2003 -
- Esecuzione: 2011 - 2017
- Tipologia Specifica: Edifici in linea e a blocco
- Committente: Gricignano 7 srl (Mirabella Sg Spa)
- Proprietà: Proprietà privata
- Destinazione originaria: Complesso residenziale
- Destinazione attuale: Complesso residenziale
Autori
| Nome | Cognome | Ruolo | Fase Progetto | Archivio Architetti | Url Profilo | Autore Principale |
|---|---|---|---|---|---|---|
| Ferruccio | Izzo | Progetto architettonico | Progetto | Visualizza Profilo | https://albertoizzo-partners.it/complesso-residenziale-polina-gricinano-daversa-caserta/ | SI |
- Strutture: calcestruzzo armato
- Materiale di facciata: cemento faccia vista; mattoni faccia vista
- Coperture: piane
- Serramenti: alluminio anodizzato
- Stato Strutture: Ottimo
- Stato Materiale di facciata: Ottimo
- Stato Coperture: Ottimo
- Stato Serramenti: Ottimo
- Vincolo: Non Vincolata
- Provvedimenti di tutela: Nessuna opzione
- Data Provvedimento:
- Riferimento Normativo:
- Altri Provvedimenti:
- Foglio Catastale: -
- Particella: -
Note
Referenze fotografiche archivio studio Izzo & Partners
Bibliografia
| Autore | Anno | Titolo | Edizione | Luogo Edizione | Pagina | Specifica |
|---|---|---|---|---|---|---|
| Izzo Ferruccio | 2010 | Complesso direzionale e alberghiero Polina, in Architettura per oggi e per domani | CLEAN Edizioni | Napoli | 130-133 | Si |
| Adelina Picone | 2011 | Social Housing-Polina | «Rassegna ANIAI», n. 1 | Napoli | 26-29 | Si |
| Izzo Ferruccio | 2012 | Costruire per riqualificare. Tre architetture di resistenza | Paparoedizioni | Napoli | 63-93 | Si |
| Diego Lama | 2017 | Izzo a Caserta | «Corriere del Mezzogiorno», 17 gennaio | Si |
Allegati
Criteri
| 7. L’edificio o l’opera di architettura si segnala per il particolare valore qualitativo all’interno del contesto urbano in cui è realizzata. |
Sitografia ed altri contenuti online
| Titolo | Url |
|---|---|
| Studio Alberto Izzo & Partners | Visualizza |
Crediti Scheda
Enti di riferimento: DGAAPTitolare della ricerca: Università degli Studi della Campania Luigi Vanvitelli DIC-DEA
Responsabile scientifico: Pasquale Belfiore
Scheda redatta da
creata il 31/12/2017
ultima modifica il 24/01/2025
Revisori:
Martina Massaro














