RICOSTRUZIONE DELLA SERRA PIACENTINI PER GLI SPAZI DI ACCOGLIENZA DEL PALAZZO DELLE ESPOSIZIONI
Scheda Opera
- Comune: Roma
- Località: Monti
- Denominazione: RICOSTRUZIONE DELLA SERRA PIACENTINI PER GLI SPAZI DI ACCOGLIENZA DEL PALAZZO DELLE ESPOSIZIONI
- Indirizzo: Via Milano, via Piacenza
- Data: 2003 - 2007
- Tipologia: Interventi di recupero e trasformazione
- Autori principali: Architetti Associati ABDR
Descrizione
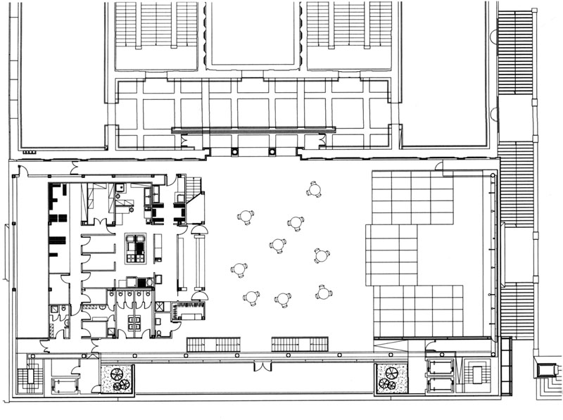
Il progetto di ricostruzione del Giardino d’inverno realizzato nel 1883 da Pio Piacentini sulla copertura del Palazzo delle Esposizioni ricostituisce l’antico coronamento, demolito negli anni Trenta, a partire dalle dimensioni del manufatto originario (50x21 m con un’altezza di colmo di 30 m rispetto alla quota d’ingresso di via Milano).
L’intervento è costituito da un volume ad alto rendimento climatico-ambientale, interamente racchiuso da lastre di vetro strutturale stratificato senza intelaiature, integrate da un sistema di tende mobili ad elevata capacità riflettente; vi si accede, dall'edificio ottocentesco, attraverso un atrio sviluppato in altezza per 23 m come un grande camino luminoso, definito da superfici con diverse inclinazioni e rivestite in legno. La ricostruzione della Serra Piacentini ricompone in maniera inedita il fronte del Palazzo delle Esposizioni su via Piacenza che di notte si propone come un’inattesa e sorprendente lanterna urbana.
Info
- Progetto: 2003 -
- Esecuzione: - 2007
- Tipologia Specifica: ristorante
- Committente: Comune di Roma, azienda speciale Palaexpo
- Proprietà: Nessuna opzione
Autori
| Nome | Cognome | Ruolo | Fase Progetto | Archivio Architetti | Url Profilo | Autore Principale |
|---|---|---|---|---|---|---|
| Architetti Associati | ABDR | Progetto architettonico | Progetto | Visualizza Profilo | https://collezionearchitettura.maxxi.art/patrimonio/f2f9eed0-22b3-4b73-a3ec-0c540b49922e/abdr-architetti-associati | SI |
| Steffen | Ahl | Collaboratore | Progetto | NO | ||
| Maria Laura | Arlotti | Progetto architettonico | Progetto | NO | ||
| Angela | Arnone | Collaboratore | Progetto | NO | ||
| Michele | Beccu | Progetto architettonico | Progetto | NO | ||
| Valerio | Calderaro | Progetto Impianti | Progetto | NO | ||
| Paolo | Desideri | Progetto architettonico | Progetto | NO | ||
| Mario | Desideri | Progetto strutturale | Progetto | NO | ||
| Alessandra | Gobbo | Collaboratore | Progetto | NO | ||
| Ufficio Tecnico | IGIT | Progetto esecutivo | Esecuzione | NO | ||
| Odine | Manfroni | Progetto strutturale | Progetto | NO | ||
| Maria | Persichella | Collaboratore | Progetto | NO | ||
| Marta | Petacco | Collaboratore | Progetto | NO | ||
| Filippo | Raimondo | Progetto architettonico | Progetto | NO | ||
| Alessio | Scarale | Collaboratore | Progetto | NO | ||
| Stefano | Tiburzi | Progetto Impianti | Progetto | NO | ||
| spa | Ufficio Tecnico SAC | Impresa esecutrice | Esecuzione | NO | ||
| Giancarlo | Vaccher | Collaboratore | Progetto | NO |
- Strutture: acciaio
- Materiale di facciata: curtain wall (vetro)
- Coperture: a botte (vetro e ghisa)
- Serramenti: vetrate appese
- Stato Strutture: Ottimo
- Stato Materiale di facciata: Ottimo
- Stato Coperture: Ottimo
- Stato Serramenti: Ottimo
- Vincolo: Non Vincolata
- Provvedimenti di tutela: Nessuna opzione
- Data Provvedimento:
- Riferimento Normativo:
- Altri Provvedimenti:
- Foglio Catastale: -
- Particella: -
Note
Parallelamente alla ricostruzione della Serra Piacentini lo Studio ABDR ha curato il progetto esecutivo della ristrutturazione del Palazzo delle Esposizioni. Il progetto definitivo è a cura di Firouz Galdo e la direzione artistica è di Michele De Lucchi.
Bibliografia
| Autore | Anno | Titolo | Edizione | Luogo Edizione | Pagina | Specifica |
|---|---|---|---|---|---|---|
| 2003 | AR Magazine n. 50 | 30-33 | Si | |||
| Pagano Vincenzo, Prestinenza Puglisi Luigi | 2004 | Roma. Capitale Futura/Rome. Tomorrow's Capital - Palazzo delle Esposizioni a Roma, e ricostruzione della ex serra Piacentini | Ottagono n. 169 | 151 | No | |
| 2004 | Itinerario contemporaneo. Roma | Area n. 76 | 188-197; Scheda n. 7 | No | ||
| 2004 | Progetto per la ricostruzione della "serra ex-Piacentini" del Palazzo delle Esposizioni di Roma | D'Architettura n. 24 | 72-77 | Si | ||
| D'Alessandro Giancarlo | 2005 | Dal sampietrino alla nuvola. Idieci anni che hanno cambiato Roma | Nutrimenti | Roma | 157 | No |
| Alessandrini Diana | 2005 | Roma. Il futuro è in cantiere | Edilazio | Roma | 111-113 | No |
| 2005 | The Plan n. 11 | 7-12 | No | |||
| 2005 | WA World Architecture n. 184 | 90-93 | Si | |||
| Monti Carlo, Ronzoni Maria Rosa | 2006 | L'Italia si trasforma. Città in competizione | BE-MA | Milano | 225 | No |
| 2006 | Domus n. 888-889 | Si | ||||
| Raimondo Filippo | 2006 | Le ragioni della Forma | Sala Editori | Pescara | 86-93 | No |
| Ciucci Giorgio, Ghio Francesco, Rossi Piero Ostilio | 2006 | Roma. La nuova architettura | Electa | Milano | 118-119 | No |
| 2006 | Dalla relazione di progetto. Project for the reconstruction of the Piacentini ex-Greenhouse at the Exhibition Centre in Rome | Metamorfosi n. 59 | 36-39 | Si | ||
| Valandro P. | 2007 | ABDR, Ex-Piacentini Greenhouse, Palazzo delle Esposizioni in Roma | Materia Trasparenze/Trasparencies n. 56 | 78-89 | Si | |
| Locci Massimo | 2007 | Nuova vita per il Palaexpo | AR Magazine n. 73 | 7-10 | Si | |
| 2007 | Modulo n. 337 | Si | ||||
| 2007 | Progetti Roma n. 6 | No | ||||
| Brandolini Sebastiano | 2008 | Roma. Nuova architettura | Skira | Milano | 68-73 | No |
| 2010 | Restauro e nuova serra del Palazzo delle Esposizioni a Roma | L'Industria delle Costruzioni n. 411 | 54-61 | Si | ||
| Bliek Françoise, Del Gallo Paola, De Simoni Pietro (a cura di) | 2012 | Roma III millennio. 32 progetti di architettura | Hoepli | Milano | 42-49 | No |
| Rossi Piero Ostilio | 2012 | Roma. Guida all'architettura moderna 1909-2011 (IV ed.) | Laterza | Roma-Bari | Scheda n. 233 | Si |
| Mondaini Gianluigi, Potenza Domenico | 2014 | ABDR Architetti Associati | Edilstampa | Roma | 122-131 | Si |
| Costi Dario | 2015 | ABDR. Temi, opere e progetti | Electa | Milano | No |
Criteri
| 1. L’edificio o l’opera di architettura è citata in almeno tre studi storico-sistematici sull’architettura contemporanea di livello nazionale e/o internazionale. | |
| 2. L’edificio o l’opera di architettura è illustrata in almeno due riviste di architettura di livello nazionale e/o internazionale. | |
| 3. L’edificio o l’opera di architettura ha una riconosciuta importanza nel panorama dell’architettura nazionale, degli anni nei quali è stata costruita, anche in relazione ai contemporanei sviluppi sia del dibattito, sia della ricerca architettonica nazionale e internazionale, | |
| 5. L’edificio o l’opera di architettura introduce e sperimenta significative innovazioni nell’uso dei materiali o nell’applicazione delle tecnologie costruttive. | |
| 6. L’edificio o l’opera di architettura è stata progettata da una figura di rilievo nel panorama dell’architettura nazionale e/o internazionale. |
Sitografia ed altri contenuti online
| Titolo | Url |
|---|---|
| Palazzo delle esposizioni, Roma | Visualizza |
| Enciclopedia Treccani - ABDR | Visualizza |
Crediti Scheda
Enti di riferimento: PaBAAC - Direzione Regionale per il LazioTitolare della ricerca: Università degli studi di Roma "Sapienza"
Responsabile scientifico: Piero Ostilio Rossi
Scheda redatta da
creata il 31/12/2012
ultima modifica il 28/02/2025
Revisori:
Alberto Coppo 2021



