STAZIONE LINEA1 MN PIAZZA CAVOUR
Scheda Opera
- Comune: Napoli
- Località: San Lorenzo
- Denominazione: STAZIONE LINEA1 MN PIAZZA CAVOUR
- Indirizzo: Piazza Cavour
- Data: 1999 - 2001
- Tipologia: Edifici per i trasporti
- Autori principali: Gae Aulenti
Descrizione
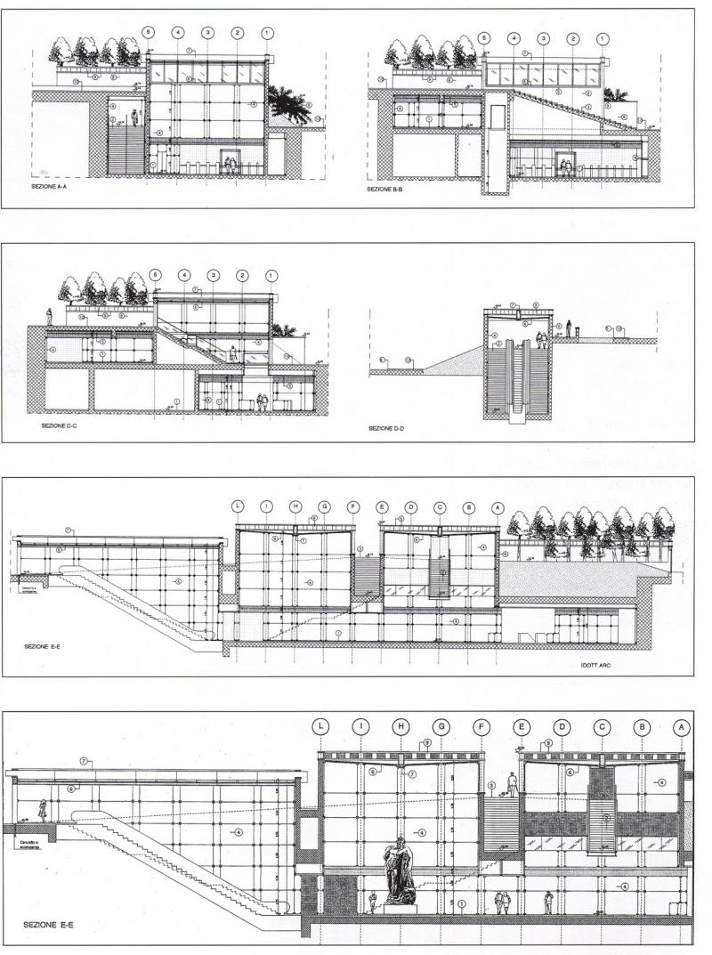
L’intervento della stazione ‘Museo’, in piazza Cavour, è particolarmente riuscito sotto l’aspetto urbano, oltre che negli spazi interni caratterizzati, come nella stazione Dante, dal rivestimento con pannelli di vetro bianco retro-smaltato. Nella sistemazione dell’intera area la Aulenti non ha previsto cambiamenti radicali, ma ha dato una diversa fisionomia a quanto già esisteva: i giardini, risistemati, e la strada, nella quale ha inserito una sorta di spartitraffico a forma di fuso allungato trattato a verde con piante, che vuole stabilire una continuità ambientale con i giardini determinando una prevalenza del verde sulle strade e sui marciapiedi. In particolare, la funzione di questa sottile area verde al centro della strada dovrebbe ‘annunciare’ la presenza dei giardini per chi, provenendo da via Foria, non potrebbe altrimenti intuirne la presenza finché non è fisicamente in piazza Cavour. La vicinanza del Museo Nazionale si avverte sia nei bassi paramenti murari, tinti in rosso pompeiano e coronati da una sorta di merlatura in basaltina, sia negli interni della stazione, che accolgono le riproduzioni dell’Ercole Farnese e della Testa Carafa, oltre che le immagini delle sculture pompeiane fotografate da Mimmo Jodice.
Info
- Progetto: 1999 -
- Esecuzione: - 2001
- Committente: Comune di Napoli
- Proprietà: proprietà Ente pubblico territoriale
- Destinazione originaria: Stazione della metropolitana
- Destinazione attuale: Stazione della metropolitana
Autori
| Nome | Cognome | Ruolo | Fase Progetto | Archivio Architetti | Url Profilo | Autore Principale |
|---|---|---|---|---|---|---|
| Gae | Aulenti | Progetto architettonico | Progetto | Visualizza Profilo | https://siusa.archivi.beniculturali.it/cgi-bin/pagina.pl?TipoPag=prodpersona&Chiave=21154 | SI |
| Marco | Buffoni | Progetto architettonico | Progetto | Visualizza Profilo | https://www.gaeaulentiarchitettiassociati.com/marco-buffoni | NO |
| C. | Costa | Progetto architettonico | Progetto | NO | ||
| Vittoria | Massa | Progetto architettonico | Progetto | Visualizza Profilo | https://www.gaeaulentiarchitettiassociati.com/vittoria-massa | NO |
- Strutture: Cemento armato
- Materiale di facciata: Intonaco
- Coperture: Piana, lucernari
- Serramenti: Metallici
- Stato Strutture: Ottimo
- Stato Materiale di facciata: Ottimo
- Stato Coperture: Ottimo
- Stato Serramenti: Buono
- Vincolo: Non Vincolata
- Provvedimenti di tutela: Nessuna opzione
- Data Provvedimento:
- Riferimento Normativo:
- Altri Provvedimenti:
- Foglio Catastale: -
- Particella: -
| Codice ICCd | Ubicazione | Tipologia | Soggetto | Autore | Materia Tecnica | Stato di Conservazione | Restauri |
|---|---|---|---|---|---|---|---|
| interno | Antonio Basiucci, 2000 | ||||||
| interno | Fabio Donato, 2000 | ||||||
| interno | Mimmo Jodice, 2000 | ||||||
| interno | Luciano D'Alessandro, 2000 | ||||||
| interno | Raffaella Mariniello, 2000 |
Note
Referenze fotografiche NA182: Peppe Avallone
Bibliografia
| Autore | Anno | Titolo | Edizione | Luogo Edizione | Pagina | Specifica |
|---|---|---|---|---|---|---|
| Ferlenga Alberto, Gravagnuolo Benedetto ( a cura di) | 2005 | Dal duemila al futuro. Architetture e infrastrutture per lo sviluppo a Napoli e in Campania | «Casabella», allegato, n°737 | Si | ||
| 2006 | Metrò-polis. La sfida del trasporto su ferro a Napoli e in Campania | Editrice Abitare Segesta | Milano | Si | ||
| Gravagnuolo Benedetto | 2008 | Napoli dal Novecento al futuro | Electa Napoli | Napoli | 230 e segg. | Si |
| 2009 | Dal Restauro alla conservazione. Terza mostra internazionale del restauro monumentale. | Alinea Editrice | Città di Castello | No | ||
| Cascetta Ennio, Gravagnuolo Benedetto (a cura di) | 2013 | Le Metropolitane e il futuro delle città. Atti del convegno (Napoli, 19 febbraio 2013, Facoltà di Ingegneria) | CLEAN Edizioni | Napoli | Si | |
| Fasanaro Renaldo | 2017 | I percorsi dell’arte nelle stazioni della metropolitana di Napoli | «Architettura e percorso», sn | 89-92 | Si | |
| De Michele Alessia, De Risi Roberta | 2017 | Napoli Metro per metro | FAR_ART | Napoli | Si | |
| Darley Gillian | 2019 | Art on the underground: Architecture. | «Apollo», vol. 189, n. 674 | 28-29 | Si |
Allegati
Criteri
| 4. L’edificio o l’opera di architettura riveste un ruolo significativo nell’ambito dell’evoluzione del tipo edilizio di pertinenza, ne offre un’interpretazione progressiva o sperimenta innovazioni di carattere distributivo e funzionale. | |
| 6. L’edificio o l’opera di architettura è stata progettata da una figura di rilievo nel panorama dell’architettura nazionale e/o internazionale. | |
| 7. L’edificio o l’opera di architettura si segnala per il particolare valore qualitativo all’interno del contesto urbano in cui è realizzata. |
Sitografia ed altri contenuti online
| Titolo | Url |
|---|---|
| Dizionario biografico degli Italiani - Gae Aulenti | Visualizza |
| Enciclopedia Treccani - Gae Aulenti | Visualizza |
| Gae Aulenti Architetti Associati | Visualizza |
| Archivio Gae Aulenti | Visualizza |
Crediti Scheda
Enti di riferimento: DGAAPTitolare della ricerca: Università degli Studi della Campania Luigi Vanvitelli DIC-DEA
Responsabile scientifico: Pasquale Belfiore
Scheda redatta da Ugo Carughi
creata il 31/12/2017
ultima modifica il 29/01/2025








