VILLA BILOTTA
Scheda Opera
- Comune: San Marzano sul Sarno
- Denominazione: VILLA BILOTTA
- Indirizzo: Via Termine Bianco
- Data: 2006 - 2009
- Tipologia: Abitazioni unifamiliari
- Autori principali: Elvira Romano
Descrizione
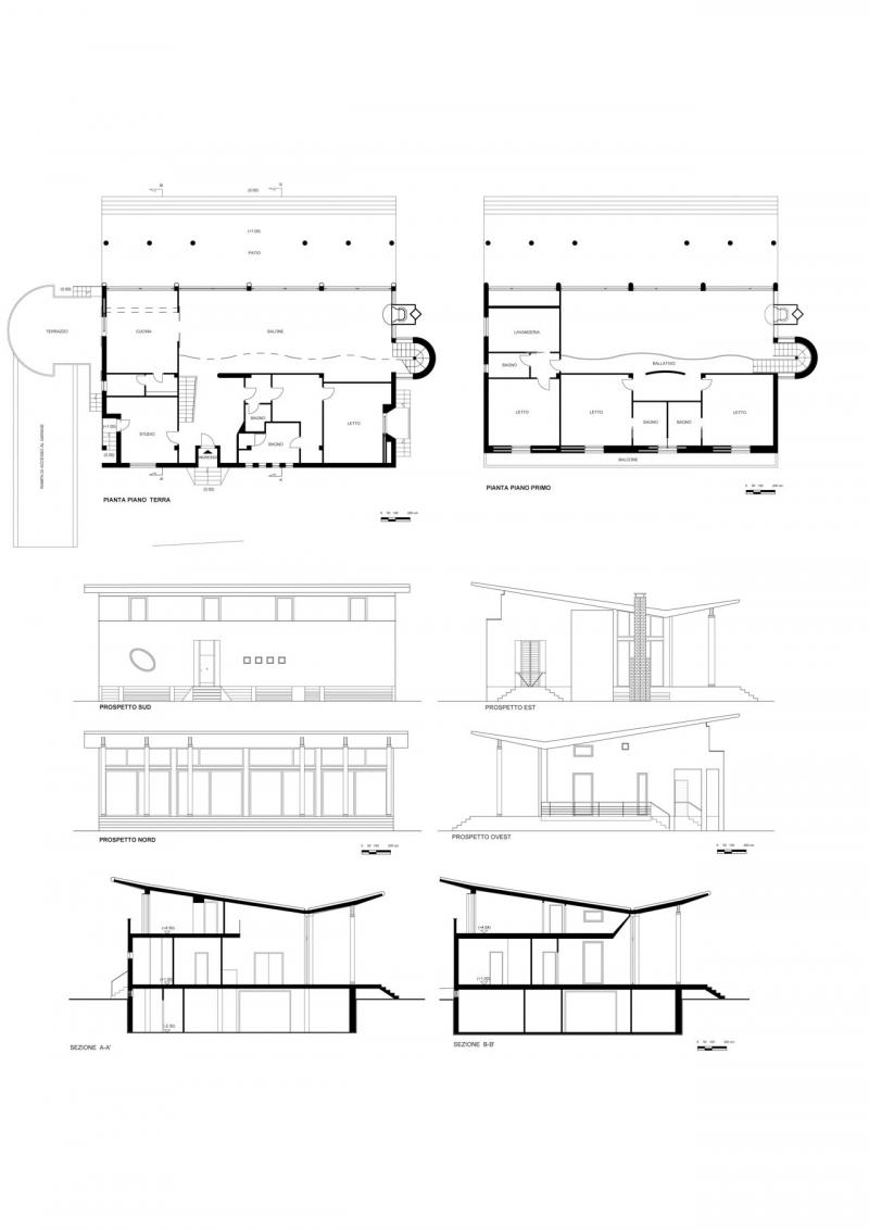
Sul piano tipologico, l'opera è una tradizionale abitazione unifamiliare composta da un piano seminterrato con garage e altri ambienti, un piano rialzato con la zona giorno e un primo piano riservato alla zona notte con stanze e servizi raccordati da un ballatoio che affaccia sul soggiorno a doppia altezza. Al piano rialzato, una serie di terrazze replicano all'aperto verso il giardino le funzioni di soggiorno e pranzo interne. Sul piano formale, la novità figurativa è rappresentata da una sorta di ordine gigante sul fronte interamente vetrato ove sei colonne a tutta altezza sostengono una grande pensilina. Partono da un basamento gradonato ed è dunque evidente l'intenzionale assonanza con la classica composizione del tempio greco. Più compatte le altre facciate, con un calibrato disegno delle aperture. Nei territori periferici dei piccoli centri, del salernitano come altrove, spesso infestati da edilizia scadente o capricciosa, questa casa è un esempio di buona, confortevole e interessante architettura.
Info
- Progetto: 2006 - 2007
- Esecuzione: 2007 - 2009
- Tipologia Specifica: Nuova Costruzione
- Committente: Privato
- Proprietà: Proprietà privata
- Destinazione originaria: ABITAZIONE
- Destinazione attuale: ABITAZIONE
Autori
- Strutture: C.A
- Materiale di facciata: INTONACO- PITTURA- VETRATE
- Coperture: RIVESTIMENTO IN RAME
- Serramenti: ALLUMINIO
- Stato Strutture: Buono
- Vincolo: Non Vincolata
- Provvedimenti di tutela: Nessuna opzione
- Data Provvedimento:
- Riferimento Normativo:
- Altri Provvedimenti:
- Foglio Catastale: -
- Particella: -
Note
-
Bibliografia
| Autore | Anno | Titolo | Edizione | Luogo Edizione | Pagina | Specifica |
|---|---|---|---|---|---|---|
| Enrico Sicignano | Abitare la Terra n.33/34 Una Modernità antica | Gangemi Editori | 32-33 | No |
Criteri
| 5. L’edificio o l’opera di architettura introduce e sperimenta significative innovazioni nell’uso dei materiali o nell’applicazione delle tecnologie costruttive. | |
| 7. L’edificio o l’opera di architettura si segnala per il particolare valore qualitativo all’interno del contesto urbano in cui è realizzata. |
Crediti Scheda
Enti di riferimento: DGAAPTitolare della ricerca: Università degli Studi della Campania Luigi Vanvitelli DIC-DEA
Responsabile scientifico: Pasquale Belfiore
Scheda redatta da
creata il 31/12/2017
ultima modifica il 22/01/2025








