INTENSIVO IN VIA MAGNA GRECIA
Scheda Opera
- Comune: Roma
- Località: Appio Latino
- Denominazione: INTENSIVO IN VIA MAGNA GRECIA
- Indirizzo: Via Magna Grecia N. 29
- Data: - 1952
- Tipologia: Abitazioni plurifamiliari
- Autori principali: Angelo Di Castro
Descrizione
La palazzina si trova in via Magna Grecia e ospita negozi ed abitazioni. In essa l'autore affianca alla concezione prospettica, come valore aggiuntivo, un sapiente uso dei colori e dei materiali, che esprimono valori architettonici e funzionali nuovi ed originali. La palazzina, nonostante spezzi il fronte stradale estroflettendosi, riesce a inserirsi in modo magistrale lungo la via senza spiccare in modo vistoso. La particolare evoluzione artistica di Di Castro lo porta a considerare aspetti diversificati che vanno dai grandi temi affrontati nei concorsi, all'edilizia pubblica e privata, agli arredi urbani, agli aspetti decorativi dell’architettura minore.
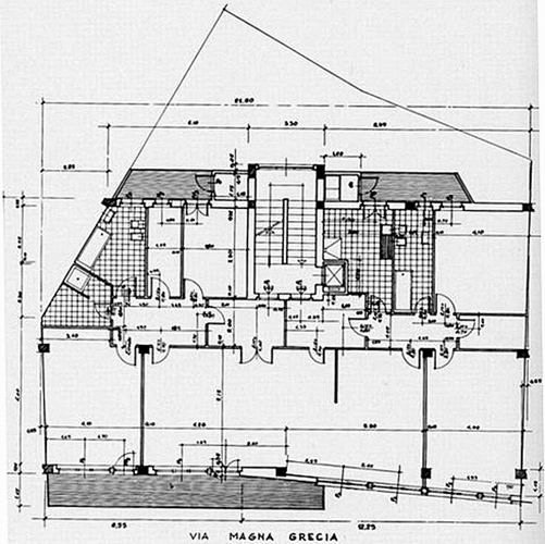
Il fabbricato è composto da sette piani fuori terra: il piano terra è adibito ad attività commerciali, il primo piano ad uffici, mentre gli altri cinque sono residenze composte da due appartamenti per ogni piano con un taglio medio per unità di circa 135 mq. L’attacco al cielo è risolto da una copertura piatta, da cui aggetta un elemento frangisole a sinistra e un piccolo cornicione a destra; i piani intermedi sono costituiti da un balcone dove affacciano delle porte-finestra, e da un marcapiano.
In alternanza si trova un blocco inclinato e sporgente che ospita una serie di finestre, riquadrate nella parte inferiore con un rettangolo pieno di diverso colore e materiale; l’attacco a terra è caratterizzato dall'ingresso centrale a due ante (che risale alla costruzione dell’edificio) e dalla presenza di quattro vetrine di esercizi commerciali poste due per lato.
Info
- Progetto: -
- Esecuzione: 1949 - 1952
- Proprietà: Proprietà privata
Autori
| Nome | Cognome | Ruolo | Fase Progetto | Archivio Architetti | Url Profilo | Autore Principale |
|---|---|---|---|---|---|---|
| Angelo | Di Castro | Progetto architettonico | Progetto | Visualizza Profilo | https://siusa.archivi.beniculturali.it/cgi-bin/siusa/pagina.pl?TipoPag=prodpersona&Chiave=28899&RicProgetto=architetti | SI |
- Strutture: cemento armato
- Materiale di facciata: intonaco
- Coperture: piana
- Stato Strutture: Buono
- Stato Materiale di facciata: Buono
- Stato Coperture: Buono
- Vincolo: Non Vincolata
- Provvedimenti di tutela: Nessuna opzione
- Data Provvedimento:
- Riferimento Normativo:
- Altri Provvedimenti:
- Foglio Catastale: -
- Particella: -
Note
-
Bibliografia
| Autore | Anno | Titolo | Edizione | Luogo Edizione | Pagina | Specifica |
|---|---|---|---|---|---|---|
| Sapori Francesco | 1953 | Architettura in Roma 1901-1950 | Belardetti | Roma | 214 | No |
| De Guttry Irene | 1978 | Guida di Roma moderna dal 1870 ad oggi | De Luca | Roma | 93 | No |
| Mariano Fabio (a cura di) | 1983 | Angelo di Castro. Disegni, pitture, architetture | Kappa | Roma | 42-43 | No |
| Ordine degli Architetti di Roma | 1988 | Angelo Di Castro Decano | Kappa | Roma | 2 | No |
| Sgarbi Vittorio | 1991 | Dizionario dei monumenti italiani e dei loro autori. Roma. Dal Rinascimento ai giorni nostri | Bompiani | Milano | 102 | No |
| Finelli Luciana, Foà Di Castro Fiorella (a cura di) | 2000 | Angelo di Castro architetto romano | Kappa | Roma | 56 | Si |
| De Guttry Irene | 2001 | Guida di Roma moderna dal 1870 ad oggi | De Luca | Roma | 93 | No |
| Balducci Fabio | 2018 | Angelo Di Castro nel professionismo romano del secondo dopoguerra | L'Industria delle Costruzioni n. 464 | 116-120 | No | |
| Balducci Fabio | 2021 | Angelo Di Castro. Tra le pieghe del moderno | Quodlibet | Macerata | No |
Allegati
Criteri
| 4. L’edificio o l’opera di architettura riveste un ruolo significativo nell’ambito dell’evoluzione del tipo edilizio di pertinenza, ne offre un’interpretazione progressiva o sperimenta innovazioni di carattere distributivo e funzionale. | |
| 6. L’edificio o l’opera di architettura è stata progettata da una figura di rilievo nel panorama dell’architettura nazionale e/o internazionale. |
Sitografia ed altri contenuti online
| Titolo | Url |
|---|---|
| MAXXI Patrimonio - Angelo di Castro | Visualizza |
| Enciclopedia Treccani - Angelo Di Castro | Visualizza |
Crediti Scheda
Enti di riferimento: PaBAAC - Direzione Regionale per il LazioTitolare della ricerca: Università degli studi di Roma "Sapienza"
Responsabile scientifico: Piero Ostilio Rossi
Scheda redatta da
creata il 31/12/2012
ultima modifica il 28/02/2025
Revisori:
Alberto Coppo 2021






